
Plan de maison Lucinda (3049)
Acheter ce planÀ partir de 1895$ Voir prix et options
Plan de maison Lucinda (3049)
Plan de Jumelé avec sous-sol aménagé optionnel ($), chambre des maîtres au r-d-c, 1 à 3 chambres, entrée split
Venez nous voir
Estimation
Coûts ($) Est. entrepreneur - S-sol non-fini | À partir de 529,176$ |
Coûts ($) Est. entrepreneur - S-sol fini | À partir de 588,781$ |
Spécifications générales
Surface aménagée totale | 1728 pi2 |
Rez-de-chaussée | 1728 pi2 |
Sous-sol aménageable | 1728 pi2 |
Sous-sol aménagé (Optionel $) | 1728 pi2 |
Largeur | 48'0" |
Profondeur | 36'0" |
Hauteur dessus fondations au faite | 20'8" |
Murs extérieurs | 2 X 6 |
Type de fondation incluse au plan | Sous-sol aménageable |
Autres fondations disponibles (des frais peuvent s'appliquer) | Sous-sol aménagé |
Code Entrepreneur | MA |
Spécifications sur les pièces
Chambre(s) | 1, 2, 3 |
Salle(s) de bain complète(s) | 2 |
Demi Salle(s) de Bain | - |
Type de garage | - |
Espace boni aménageable | - |
Rangement boni | - |
Superficie balcon et/ou perron abrité | 62 pi2 |
LOGEMENT 1 (GAUCHE) | LOGEMENT 2 (DROITE) | LOGEMENT 2 (DROITE) | |
Surface aménagée totale | 864 pi2 | 864 pi2 | 864 pi2 |
Rez-de-chaussée | 864 pi2 | 864 pi2 | 864 pi2 |
Largeur | 24' 0" | 24' 0" | 24' 0" |
Profondeur | 36' 0" | 36' 0" | 36' 0" |
Hauteur dessus fondations au faite | 20' 8" | 20' 8" | 20' 8" |
Murs extérieurs | 2 X 6 | 2 X 6 | 2 X 6 |
Type de fondation | Sous-sol aménageable | Sous-sol aménageable | Sous-sol aménageable |
Chambre(s) | 3 | 3 | 3 |
Salle(s) de bain | 2 | 2 | 2 |
Demi Salle(s) de Bain | - | - | - |
Type de garage | - | - | - |
Espace boni aménageable | - | - | - |
Rangement boni | - | - | - |
Estimation
Coûts ($) Est. entrepreneur - S.sol non-fini | À partir de 529,176$ i |
Coûts ($) Est. entrepreneur - S.sol fini | À partir de 588,781$ i |
Spécifications générales
Surface aménagée totale | 1728 pi2 |
Sous-sol aménagé (Optionel $) | 1728 pi2 |
Rez-de-chaussée | 1728 pi2 |
Sous-sol aménageable | 1728 pi2 |
Largeur | 48'0" |
Profondeur | 36'0" |
Hauteur dessus fondations au faite | 20'8" |
Murs extérieurs | 2 X 6 |
Type de fondation incluse au plan | Sous-sol aménageable i |
Autres fondations disponibles (des frais peuvent s'appliquer) | Sous-sol aménagé |
Code Entrepreneur | MA |
Spécifications sur les pièces
Chambre(s) | 1, 2, 3 |
Salle(s) de bain complète(s) | 2 |
Demi Salle(s) de Bain | - |
Type de garage | - |
Espace boni aménageable | - i |
Rangement boni | - i |
Superficie balcon et/ou perron abrité | 62 pi2 |
Spécifications des unités
LOGEMENT 1 (GAUCHE) | LOGEMENT 2 (DROITE) | LOGEMENT 2 (DROITE) | |
Surface aménagée totale | 864 pi2 | 864 pi2 | 864 pi2 |
Rez-de-chaussée | 864 pi2 | 864 pi2 | 864 pi2 |
Largeur | 24' 0" | 24' 0" | 24' 0" |
Profondeur | 36' 0" | 36' 0" | 36' 0" |
Hauteur dessus fondations au faite | 20' 8" | 20' 8" | 20' 8" |
Murs extérieurs | 2 X 6 | 2 X 6 | 2 X 6 |
Type de fondation | Sous-sol aménageable | Sous-sol aménageable | Sous-sol aménageable |
Chambre(s) | 3 | 3 | 3 |
Salle(s) de bain | 2 | 2 | 2 |
Demi Salle(s) de Bain | - | - | - |
Type de garage | - | - | - |
Espace boni aménageable | - | - | - |
Rangement boni | - | - | - |
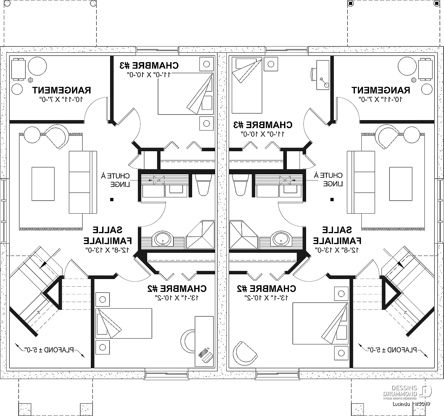
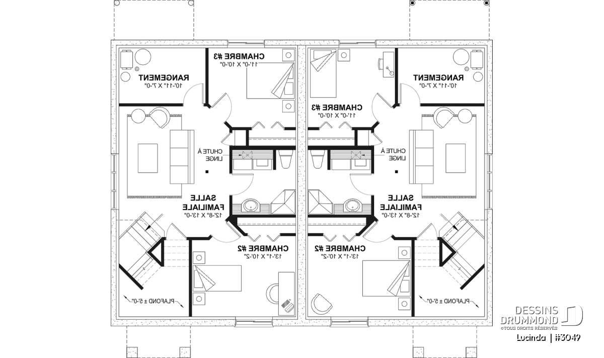
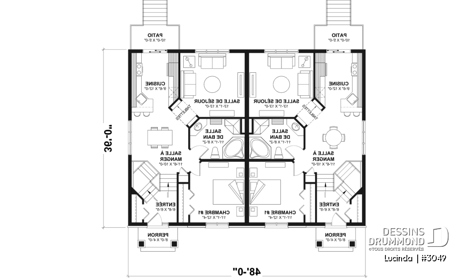
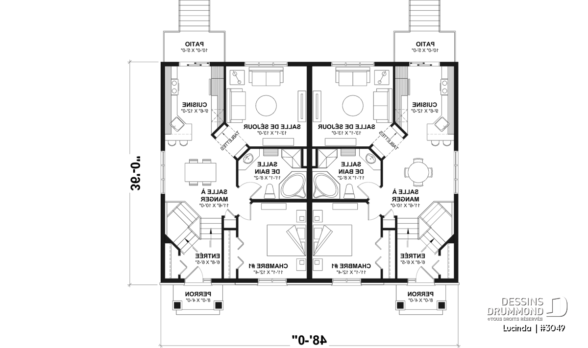
Rez-de-chaussée
Sous-sol aménageable
Sous-sol aménagé (Optionel $)



Voir la grandeur des pièces et hauteur des plafonds
Sous-sol aménagé (Optionel $) | ||
---|---|---|
Pièces | Dimensions | Plafond |
Salle familiale | 14'0" x 16'6" | ~ 8'0" |
Salle de bain complète | 8'0" x 8'2" | ~ 8'0" |
Chambre à coucher | 13'2" x 10'0" | ~ 8'0" |
Chambre à coucher | 11'0" x 10'0" | ~ 8'0" |
Rangement | 10'11" x 7'0" | ~ 8'0" |
Lingerie | 1'8" x 2'0" | ~ 8'0" |
Rangement | 8'10" x 9'6" | N/D |
Chambre à coucher | 13'2" x 10'0" | ~ 8'0" |
Garde-robe | 7'6" x 2'0" | ~ 8'0" |
Lingerie | 1'8" x 2'0" | ~ 8'0" |
Rangement | 10'11" x 7'0" | ~ 8'0" |
Rangement | 8'10" x 9'6" | N/D |
Salle de bain complète | 8'0" x 8'2" | ~ 8'0" |
Salle familiale | 14'0" x 16'6" | ~ 8'0" |
Chambre à coucher | 11'0" x 10'0" | ~ 8'0" |
Garde-robe | 6'0" x 2'0" | ~ 8'0" |
Rez-de-chaussée | ||
---|---|---|
Pièces | Dimensions | Plafond |
Chambre à coucher | 11'0" x 12'4" | ~ 8'0" |
Salle de bain complète | 11'0" x 8'2" | ~ 8'0" |
Salle de séjour | 13'0" x 13'0" | ~ 8'0" |
Salle à manger | 11'6" x 10'10" | ~ 8'0" |
Cuisine | 9'6" x 11'0" | ~ 8'0" |
Entrée ou vestibule | 6'8" x 6'6" | ~ 11'5" |
Lingerie | 1'8" x 2'0" | ~ 8'0" |
Perron | 7'10" x 4'0" | N/D |
Terrasse | 10'0" x 5'0" | N/D |
Chambre à coucher | 11'0" x 12'4" | ~ 8'0" |
Garde-robe | 2'0" x 7'10" | ~ 8'0" |
Cuisine | 9'6" x 11'0" | ~ 8'0" |
Garde-manger | 2'0" x 2'0" | ~ 8'0" |
Entrée ou vestibule | 6'8" x 6'6" | ~ 11'5" |
Garde-robe | 2'2" x 5'8" | ~ 11'5" |
Lingerie | 1'8" x 2'0" | ~ 8'0" |
Perron | 7'10" x 4'0" | N/D |
Salle à manger | 11'6" x 10'10" | ~ 8'0" |
Salle de bain complète | 11'0" x 8'2" | ~ 8'0" |
Salle de séjour | 13'0" x 13'0" | ~ 8'0" |
Terrasse | 10'0" x 5'0" | N/D |
Sous-sol aménageable |
---|
Autres informations utiles sur ce plan
Plan de jumelée avec sous-sol aménagé (en option $) permettant jusqu'à 3 chambres, 2 salles de bain et 2 salles familiales!
.
Éléments distinctifs
Plan de maisons jumelées de style classique avec entrée split.
Entrée originale avec garde-robe sur le même palier et plafond à 11'5'' donnant une belle amplitude à ce secteur.
salle à manger en mezzanine.
Pièces intérieures toutes de bonnes dimensions.
Chambre principale au rez-de-chaussée.
Chute à linge prévue à la salle de bain complète du rez-de-chaussée.
Cloisons à angle stratégiques comme celles entre la salle de séjour et la salle à manger aménagées avec tablettes pour rangement additionnel.
*Sous-sol aménagé (optionnel $):
Deux chambres secondaires prévues.
Salle familiale attrayante.
Salle de douche avec coin laveuse/sécheuse et rangement.
Grand rangement.
*Si vous souhaitez acheter le plan du sous-sol aménagé, veuillez sélectionner cette option dans le panier d'achat, dans la section "Sélectionner votre fondation". Si vous ne sélectionnez pas cette option, vous recevrez le sous-sol non fini, sans frais additionnel.
Particularité(s) du plan
Comptoir-lunch, Vue paronamique, Salle de jeux, Plafond à plus de 8', Chute à linge, Tablettes, Bain et douche séparés, Mezzanine
Style(s) architectural du plan
Transitionnel, Champêtre, Européen, Traditionnelle, Américain, Classique
Notes légales
Ce modèle est protégé par la Loi sur les Droits d'Auteur.
De plus, les illustrations présentées peuvent différer du plan détaillé que vous recevrez, car ces derniers sont régulièrement ajustés afin de respecter les normes de construction en vigueur.
Plans similaires
Consultés précédemment
Questions et commentaires sur ce plan
08 Septembre
Service à la clientele
Bonjour monsieur Lefebvre,
Merci de votre intérêt pour Dessins Drummond.
Présentement, nous n'avons pas d'illustrations en 3 dimensions de nos plans.
Comme les coordonnées de nos clients particuliers sont confidentielles et que nous n'avons pas de maisons modèles, nous référons habituellement les gens à des entrepreneurs, clients de Dessins Drummond, pour ce genre de demande. Pour le plan 3049, nous n'avons pas d'entrepreneur qui a acheté ce plan dans la région de Lanaudière. Comme l'entente que nous avons avec nos clients entrepreneurs est de leur référer uniquement des gens de leur région, je ne peux donc pas vous fournir de référence.
Pour toute autre question, vous pouvez me recontacter, je me ferai un plaisir de vous répondre. Vous pouvez également contacter l'Agence Dessins Drummond de votre région.
Sincèrement,
France, Service à la clientèle
Questions et commentaires
08 Septembre
Pierre Lefebvre
Nous sommes intéressé par le Plan W3049 de voir ce plan en 3D ou si non pouvons nous visiter une maison témoin ou en construction dans la région de Lanaudière.
Remerciement
08 Septembre
Service à la clientele
Bonjour monsieur Lefebvre,
Merci de votre intérêt pour Dessins Drummond.
Présentement, nous n'avons pas d'illustrations en 3 dimensions de nos plans.
Comme les coordonnées de nos clients particuliers sont confidentielles et que nous n'avons pas de maisons modèles, nous référons habituellement les gens à des entrepreneurs, clients de Dessins Drummond, pour ce genre de demande. Pour le plan 3049, nous n'avons pas d'entrepreneur qui a acheté ce plan dans la région de Lanaudière. Comme l'entente que nous avons avec nos clients entrepreneurs est de leur référer uniquement des gens de leur région, je ne peux donc pas vous fournir de référence.
Pour toute autre question, vous pouvez me recontacter, je me ferai un plaisir de vous répondre. Vous pouvez également contacter l'Agence Dessins Drummond de votre région.
Sincèrement,
France, Service à la clientèle
Merci pour votre commentaire! Celui-ci doit être approuvé avant d'être mis en ligne, veuillez allouer une période de 24 heures.
Erreur avec google reCaptcha! Veuillez réessayer.
Vous souhaitez apporter des modifications à ce plan?
Estimation gratuite en ligneVenez nous voir
Nos 31 bureauxVous apprécierez aussi
Pour vous assurer de bien préparer votre projet, nous vous proposons ce guide accompagnateur.
Voir le guidePlans similaires
Description
Rez-de-chaussée: Entrée à palier, salle à manger, cuisine avec comptoir lunch, salle de séjour, salle de bain et chambre principale.
*Sous-sol aménagé (optionnel $):
Deux chambres secondaires, salle familiale, salle de douche avec coin laveuse/sécheuse et rangement.
*Si vous souhaitez acheter le plan du sous-sol aménagé, veuillez sélectionner cette option dans le panier d'achat, dans la section "Sélectionner votre fondation". Si vous ne sélectionnez pas cette option, vous recevrez le sous-sol non fini, sans frais additionnel.
Prix et
reconnaissance










08 Septembre
Pierre Lefebvre
Nous sommes intéressé par le Plan W3049 de voir ce plan en 3D ou si non pouvons nous visiter une maison témoin ou en construction dans la région de Lanaudière.
Remerciement