Plan de maison Olympe (3992)
Plan de maison scandinave moderne, plafond cathédrale avec poutres de bois, cuisine extérieure abritée, foyer
Visite virtuelle
Autres informations utiles sur ce plan
Plan de maison plain-pied scandinave moderne avec plafond cathédrale, 2 à 4 chambres et terrasse couverte
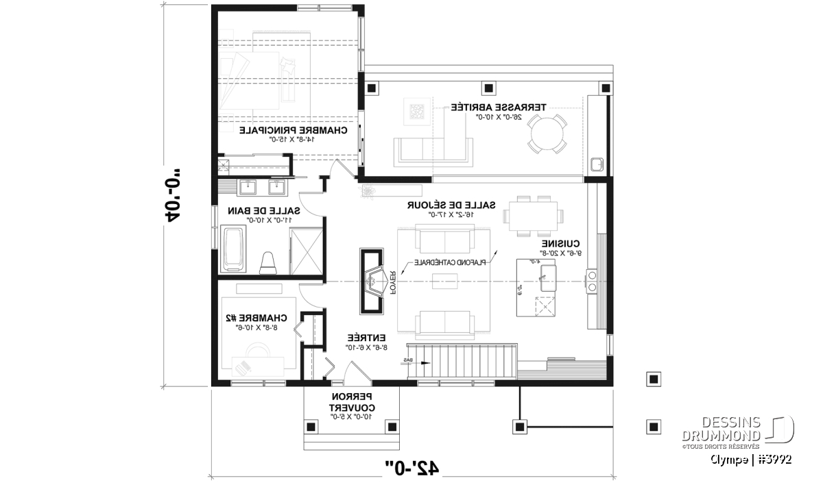
Le modèle OLYMPE (plan #3992) de Dessins Drummond séduit au premier regard par son allure élégant et intemporel. Que vous l’imaginiez en bord de lac ou au pied d’une montagne de ski, ce plain-pied évoque immédiatement le chalet douillet où il fait bon entrer, été comme hiver.
Sa façade épurée, de style scandinave, attire par sa simplicité nordique qui laisse toute la place aux matériaux et aux volumes. Ce modèle, bien pensé, se distingue des autres plain-pieds grâce à une grande porte de garage intégrée, permettant d’accéder directement de la salle familiale à la terrasse extérieure. Conçu pour les amoureux de la nature, ce plan allie modernité, confort et convivialité, tout en pouvant facilement recevoir des panneaux solaires Konergie, pour un mode de vie écoresponsable.
À l’intérieur, le cœur de la maison impressionne. Le salon, la cuisine et la salle à manger se déploient dans une vaste aire ouverte, baignée de lumière naturelle grâce aux immenses fenêtres et au plafond cathédral atteignant 16 pieds de hauteur. Les poutres de bois apparentes renforcent l’ambiance chaleureuse et donnent encore plus de caractère à cet espace. Une porte de garage s’ouvre directement sur la grande terrasse couverte, où vous attendent une cuisine extérieure et un coin lounge idéal pour les repas en famille ou les soirées entre amis. Été comme hiver, cette terrasse protégée deviendra sans aucun doute le lieu de rassemblement préféré de tous.
La chambre principale, véritable cocon, profite d’un accès privé à la terrasse et communique directement avec une salle de bain complète, élégante et pratique, incluant douche séparée et baignoire. Avec son foyer central au salon pour les soirées d’hiver et sa terrasse couverte pour les beaux jours, le plan OLYMPE réunit tout ce qu’il faut pour une vie confortable et inspirante.
---
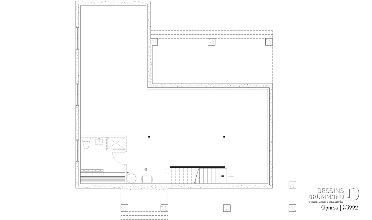
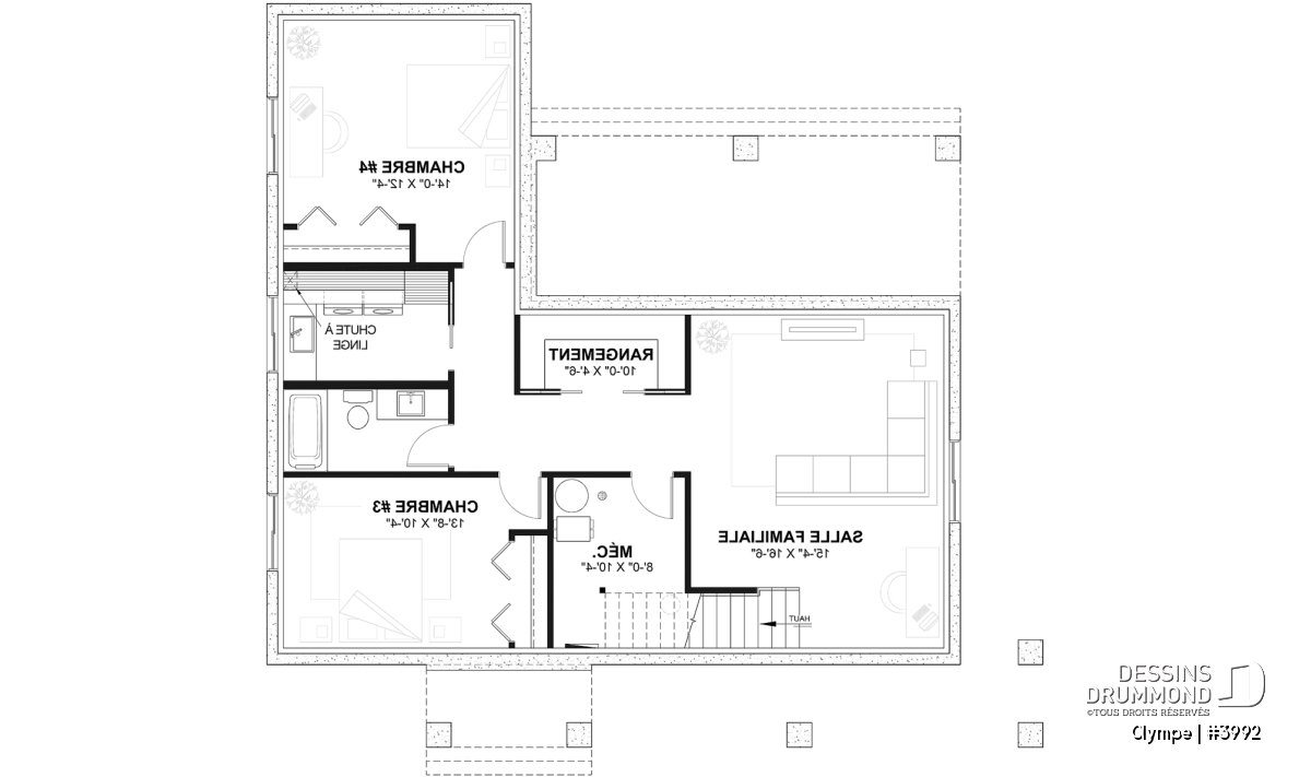
*Sous-sol aménagé (optionnel $):
Deux chambres secondaires confortables et lumineuses, idéales pour les enfants, les invités ou même un bureau à domicile.
Salle familiale spacieuse pouvant aussi servir de salle de jeux, parfaite pour les moments de détente, les soirées cinéma ou les activités en famille.
Salle de bain complète et salle de lavage fonctionnelle, avec une chute à linge ingénieuse directement reliée à la chambre principale, rendant les tâches quotidiennes plus simples et pratiques.
*Si vous souhaitez acheter le plan du sous-sol aménagé, tel que présenté sur la page de ce plan, veuillez sélectionner cette option dans le panier d'achat, dans la section "Sélectionner votre fondation". Si vous ne sélectionnez pas cette option, vous recevrez le sous-sol non fini, sans frais additionnel.
---
À NOTER:
Les poutres apparentes décoratives ne sont pas incluses dans notre estimation du coût de construction.
---
Ce plan fait partie d’une collection de 3 modèles dont voici les principales caractéristiques :
Plan # 3992 : modèle de base avec 1212 pieds carrés, sans garage, 2 chambres, salle de lavage prévue au sous-sol. UN PLAN DE SOUS-SOL AMÉNAGÉ EST OFFERT EN OPTION ($).
Plan # 3992-V1 : plancher exactement comme le modèles de base (# 3992), mais avec garage, 2 chambres, buanderie au sous-sol.
Plan # 3992-V2 : modèle agrandie à 1604 pieds carrés, avec garage, 3 chambres, buanderie au rez-de-chaussée.
Éléments distinctifs
Maison de style Scandinave Moderne, lumineuse et épurée.
Porte de garage intérieure pratique donnant accès à la grande terrasse arrière couverte.
Terrasse pouvant être aménagée avec cuisine extérieure et coin lounge pour profiter pleinement des journées ensoleillées.
Plafond cathédrale d’environ 16' au séjour, à la cuisine et à la salle à manger, avec poutres apparentes pour une touche nordique chaleureuse.
Plafond de 9' dans les chambres et la salle de bain, offrant confort et intimité.
Salle de séjour lumineuse avec foyer, parfaite pour créer une ambiance douce et apaisante.
Cuisine moderne avec grand îlot central, idéale pour cuisiner et recevoir.
Chambre des maîtres avec accès privé à la terrasse arrière et communication directe avec la salle de bain.
Salle de bain complète avec bain et grande douche séparés pour un confort optimal.
Sous-sol non fini, prêt à être aménagé selon vos besoins présents ou futurs.
---
*Sous-sol aménagé (optionnel $):
2 chambres secondaires.
Salle familiale ou salle de jeux.
Salle de bain et salle de lavage avec pratique chute à linge provenant de la chambre principale du rez-de-chaussée.
---
*Si vous souhaitez acheter le plan du sous-sol aménagé, tel que présenté sur la page de ce plan, veuillez sélectionner cette option dans le panier d'achat, dans la section "Sélectionner votre fondation". Si vous ne sélectionnez pas cette option, vous recevrez le sous-sol non fini, sans frais additionnel.
Particularité(s) du plan
Vue paronamique, Foyer, Ilôt, Aire ouverte, Plafond cathédrale, Terrain étroit, Terrasse abritée, Chute à linge, Plafond à plus de 8'
Style(s) architectural du plan
Scandinave, Moderne, Moderne rustique, Champêtre, Contemporain / Zen, Vacances, bordure de lac, Transitionnel, Chalet, Nordique, Cape Cod, En forme de L, Farmhouse, Farmhouse moderne, Nordique Moderne
Notes légales
Ce modèle est protégé par la Loi sur les Droits d'Auteur.
De plus, les illustrations présentées peuvent différer du plan détaillé que vous recevrez, car ces derniers sont régulièrement ajustés afin de respecter les normes de construction en vigueur.
Plans similaires
Consultés précédemment
Questions et commentaires
24 Décembre
Daniel Frigon
Avez-vous des plans pour bi-génération ?
J'ai en tête une maison unifamiliale 2 étages avec possibilité de 5 chambres pour les jeunes et une autre maison pour les ainés plein pied faisant un L avec la maison principale, les 2 étant reliées par un garage double.
06 Janvier
Service Clientèle
Bonjour Mr. Frigon,
nous avons quelques modèles de maison intergénérationnelle. Voici le lien pour les voir: dessinsdrummond.com/collection/plans-de-maisons-bi-generation
Cependant, les besoins sont très variés en terme d'espace et je pense que vous pourriez commencer par trouver un plan que vous aimez, et nous pourrions par la suite le modifier afin d'y intégrer le nombre de chambres désirées, garage, etc.
Nos 22 bureaux sont en mesure de vous modifier ou concevoir un plan entièrement sur mesure. Voici la liste de nos 22 bureaux au Québec: dessinsdrummond.com/points-de-vente-dessins-drummond
Si vous avez d'autres questions, svp ne pas hésiter à nous contacter:
Tél: 1-800-567-1413 ext. 109
Courriel: info@dessinsdrummond.com
Merci et au plaisir de vous accompagner dans ce beau projet intergénérationnel!
27 Juin
janot fournier
je suis intéressé au modèle V-1, Est-ce possible de combiner le plan V-1 et V-2? i.e. installer la buanderie au rez de chaussé?
06 Janvier
Service Clientèle
Bonjour,
J'ignore pourquoi mais votre question ne semble pas nous être parvenue. J'en suis sincèrement désolée.
Effectivement, il est possible de modifier le plan en ce sens, nos 22 bureaux au Québec sont spécialisés dans la modification de nos plans.
Voici la liste des bureaux (s'il n'est pas trop tard): dessinsdrummond.com/points-de-vente-dessins-drummond
Merci ne pas hésitez à nous contacter au besoin:
Tél: 1-800-567-1413 ext. 109
ou: info@dessinsdrummond.com
01 Juin
Bernard Duval
Bonsoir à vous,
J’aimerais savoir ou ce situerais le garage et en plus je veux une garçonnière au dessus du garage,
Merci à vous,
Il n’y aura pas de sous-sol, pas de vide sanitaire non plus
06 Janvier
Service à la clientèle
Bonjour,
J'ignore pourquoi mais votre question (et celles de plusieurs autres personnes en 2018 et 2017) ne semble pas nous être parvenue. J'en suis sincèrement désolée.
Effectivement, il est possible de modifier le plan en ce sens, nos 22 bureaux au Québec sont spécialisés dans la modification de nos plans.
Voici la liste des bureaux (s'il n'est pas trop tard): dessinsdrummond.com/points-de-vente-dessins-drummond
Merci ne pas hésitez à nous contacter au besoin:
Tél: 1-800-567-1413 ext. 109
ou: info@dessinsdrummond.com
28 Novembre
Raymond Neveu
Jaimerais connaître l'endroit si on ajoute un garage et les coûts reliés.
Merci
Raymond Neveu
06 Janvier
Service à la clientèle
Bonjour Mr. Neveu
J'ignore pourquoi mais votre question ne semble pas nous être parvenue. J'en suis sincèrement désolée.
Vous pouvez consulter 2 versions de ce plan, avec garage, ci-bas, ainsi que leur coût approx. de construction:
3992-V1: dessinsdrummond.com/plan/olympe-2-scandinave-1003268
3992-V2:
dessinsdrummond.com/plan/olympe-3-scandinave-1003269
Il est possible de modifier le plan en ce sens, nos 22 bureaux au Québec sont spécialisés dans la modification de nos plans.
Voici la liste des bureaux (s'il n'est pas trop tard): dessinsdrummond.com/points-de-vente-dessins-drummond
Merci ne pas hésitez à nous contacter au besoin:
Tél: 1-800-567-1413 ext. 109
ou: info@dessinsdrummond.com
Merci pour votre commentaire! Celui-ci doit être approuvé avant d'être mis en ligne, veuillez allouer une période de 24 heures.
Erreur avec google reCaptcha! Veuillez réessayer.







































24 Décembre
Daniel Frigon
Avez-vous des plans pour bi-génération ?
J'ai en tête une maison unifamiliale 2 étages avec possibilité de 5 chambres pour les jeunes et une autre maison pour les ainés plein pied faisant un L avec la maison principale, les 2 étant reliées par un garage double.