Plan de Garage Marceline (2988)
Plan de garage double offrant espace boni aménageable à l'étage
Autres informations utiles sur ce plan
Plan de garage double de style Craftsman proposant espace aménageable à l'étage
.
Éléments distinctifs
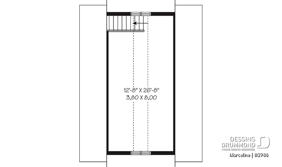
Plan de garage double de 21'4'' x 28'4''
Total de 953 pi.ca. dont 606 pi.ca. au rez-de-chaussée et 347 pi.ca. à l'étage, pour rangement.
Plafond à 8' de hauteur
Murs isolés et sur dalle flottante
Porte et fenêtres latérales
Style(s) architectural du plan
Transitionnel, Champêtre, Rustique, Européen, Traditionnelle, Américain, Cape Cod, Nordique
Notes légales
Ce modèle est protégé par la Loi sur les Droits d'Auteur.
De plus, les illustrations présentées peuvent différer du plan détaillé que vous recevrez, car ces derniers sont régulièrement ajustés afin de respecter les normes de construction en vigueur.
AVANT DE PLACER VOTRE COMMANDE, il est de votre responsabilité de faire les vérifications nécessaires auprès de votre municipalité concernant les restrictions se rattachant à l'ajout d'un garage détaché sur un terrain, car NOS PLANS NE SONT NI REMBOURSABLES ET NI ÉCHANGEABLES. Plusieurs municipalités permettent l'ajout d'un garage détaché, mais imposent à celui-ci un format maximal. Le fait de vous enquérir de telles informations vous permettra de mieux cibler le format de garage possible à aménager.
Plans similaires
Consultés précédemment
Questions et commentaires
08 Avril
David
Bonjours, qu'elle est la pente de toit de ce modèle ??
09 Avril
Jessica
Bonjour et bien sûr!
La pente de toit pour ce plan est 10/12.
J'espère que ça vous aidera dans vos recherches!
16 Octobre
Marie-Line Couture
Serait-il possible de savoir la grandeur de la fenêtre à l'étage svp?
Merci!
13 Avril
mathieu
bonjour, jaimerais avoir une information
lorsque vous avez un 2e etage habitable, avec un escalier, est qu'il y a une porte pour empecher lair chaud de monter en haut? merci
13 Avril
Service à la clientele
Bonjour et merci d'avoir pris le temps de nous écrire.
Il n'a pas de porte pour isoler l?espace boni sur ce modèle de garage.
N'hésitez pas de me relancer si vous avez d'autres questions ou commentaires.
Bien à vous
Deborah
18 Avril
Marcel Sirard
J'ai bati ma maison plan No:W3100 et je désire batir le garage No: w2988. J'ai besoin de savoir la hauteur du rez de chaussée et de la porte de garage pour etre sur que je recontre les normes municipales.
Merci Marcel Sirard Brownsburg-Chatham
19 Avril
Service à la clientele
Cher monsieur Sirard,
Merci de votre confiance envers Dessins Drummond.
Le plafond du rez-de-chaussée a 8 pieds. La porte de garage mesure 16'-0" x 7'-0".
Pour toute autre question, n'hésitez pas à me recontacter. Je me ferai un plaisir de vous répondre.
Bien à vous,
Doreen, Service à la clientèle
Merci pour votre commentaire! Celui-ci doit être approuvé avant d'être mis en ligne, veuillez allouer une période de 24 heures.
Erreur avec google reCaptcha! Veuillez réessayer.









08 Avril
David
Bonjours, qu'elle est la pente de toit de ce modèle ??