Plan de maison Soho (3736)
Acheter ce planÀ partir de 1655$ Voir prix et options
Plan de maison Soho (3736)
Maison de style transitionnel à aire ouverte, suite des parents au rez-de-chaussée, bureau à l'étage
Venez nous voir
Estimation
Coûts ($) Est. entrepreneur | À partir de 553,018$ |
Spécifications générales
Surface aménagée totale | 1917 pi2 |
Rez-de-chaussée | 1221 pi2 |
Étage | 696 pi2 |
Largeur | 62'4" |
Profondeur | 39'0" |
Hauteur dessus fondations au faite | 28'2" |
Murs extérieurs | 2 X 6 |
Type de fondation incluse au plan | Dalle flottante |
Autres fondations disponibles (des frais peuvent s'appliquer) | Vide sanitaire, Dalle monolithique |
Code Entrepreneur | E |
Spécifications sur les pièces
Chambre(s) | 3, 4 |
Salle(s) de bain complète(s) | 2 |
Demi Salle(s) de Bain | 1 |
Type de garage | 1 voiture (435 pi2) |
Espace boni aménageable | - |
Rangement boni | 282 pi2 |
Superficie balcon et/ou perron abrité | 38 pi2 |
Estimation
Spécifications générales
Surface aménagée totale | 1917 pi2 |
Rez-de-chaussée | 1221 pi2 |
Étage | 696 pi2 |
Largeur | 62'4" |
Profondeur | 39'0" |
Hauteur dessus fondations au faite | 28'2" |
Murs extérieurs | 2 X 6 |
Type de fondation incluse au plan | Dalle flottante i |
Autres fondations disponibles (des frais peuvent s'appliquer) | Vide sanitaire, Dalle monolithique |
Conception par le bureau de | Jenn x Dessins Drummond |
Code Entrepreneur | E |
Spécifications sur les pièces
Salle à manger
Vue avant
Demi salle de bain
Demi salle de bain
Note: Les photos de cette maison peuvent différer du plan d'origine, duquel elles proviennent.
Demi salle de bain
Note: Les photos de cette maison peuvent différer du plan d'origine, duquel elles proviennent.
Salle de bain
Cuisine
Cuisine
Cuisine
Cuisine
Salon
Salon
Salon
Salle à manger
Note: Les photos de cette maison peuvent différer du plan d'origine, duquel elles proviennent.
Salle à manger
Entrée ou vestibule
Note: Les photos de cette maison peuvent différer du plan d'origine, duquel elles proviennent.
Entrée ou vestibule
Salle utilitaire / lavage
Secteur activité
Note: Les photos de cette maison peuvent différer du plan d'origine, duquel elles proviennent.







































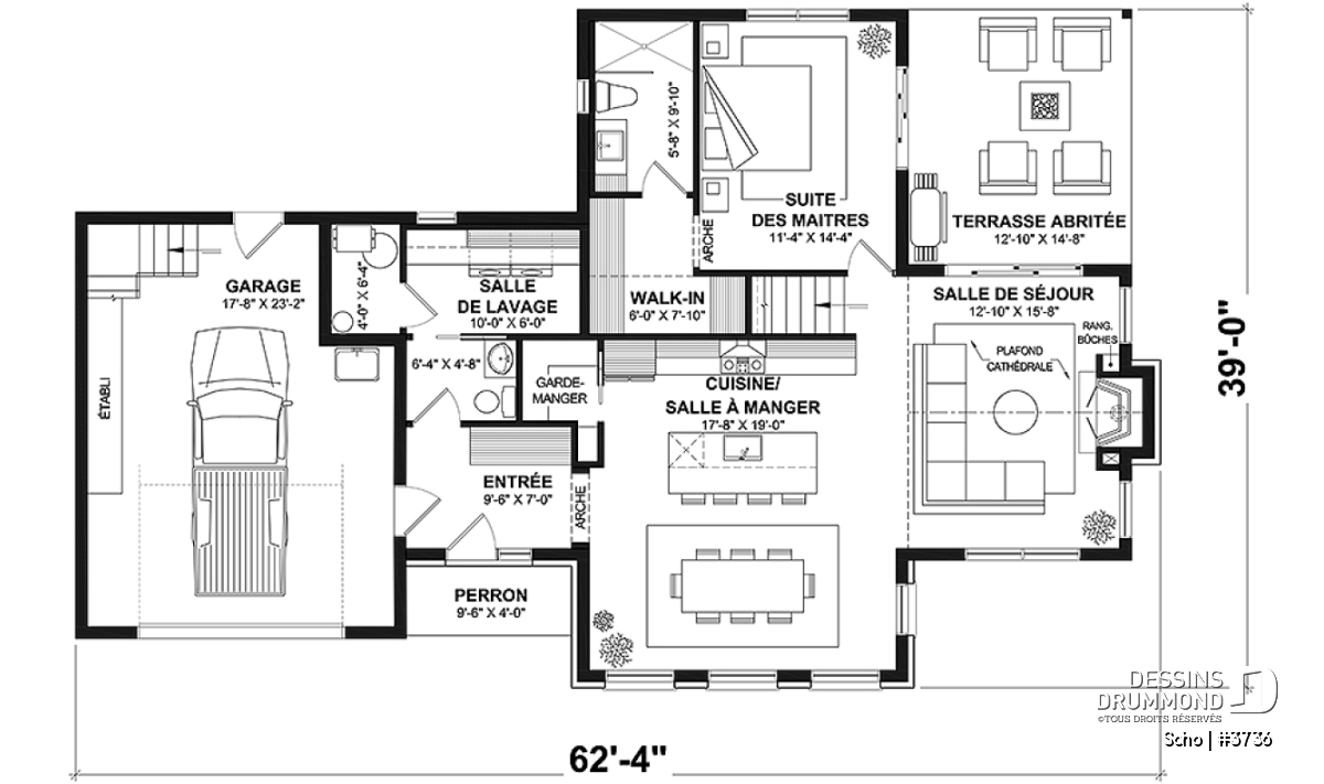
Voir la grandeur des pièces et hauteur des plafonds
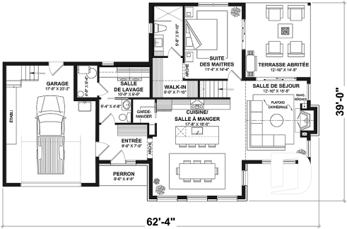
Rez-de-chaussée | ||
---|---|---|
Pièces | Dimensions | Plafond |
Garage | 17'8" x 23'2" | ~ 9'6" |
Perron | 9'6" x 4'0" | N/D |
Entrée ou vestibule | 9'6" x 7'0" | ~ 9'0" |
Coin toilette/lavabo | 6'4" x 4'8" | ~ 9'0" |
Salle de lavage | 10'0" x 6'0" | ~ 9'0" |
Pièce de mécanique | 4'0" x 6'4" | ~ 9'0" |
Cuisine/salle à manger | 17'8" x 19'0" | ~ 9'0" |
Îlot | 8'6" x 3'6" | N/D |
Garde-manger | 4'4" x 4'8" | ~ 9'0" |
Suite des maîtres | 11'4" x 14'4" | ~ 9'0" |
Walk-in | 6'0" x 7'10" | ~ 9'0" |
Salle de douche | 5'8" x 9'10" | ~ 9'0" |
Douche | 5'8" x 3'0" | N/D |
Lingerie | 1'0" x 1'10" | N/D |
Terrasse abritée | 12'10" x 14'8" | ~ 9'4" |
Salle de séjour | 12'10" x 15'8" | ~ 11'10" |
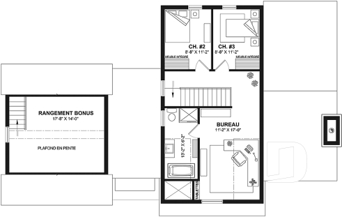
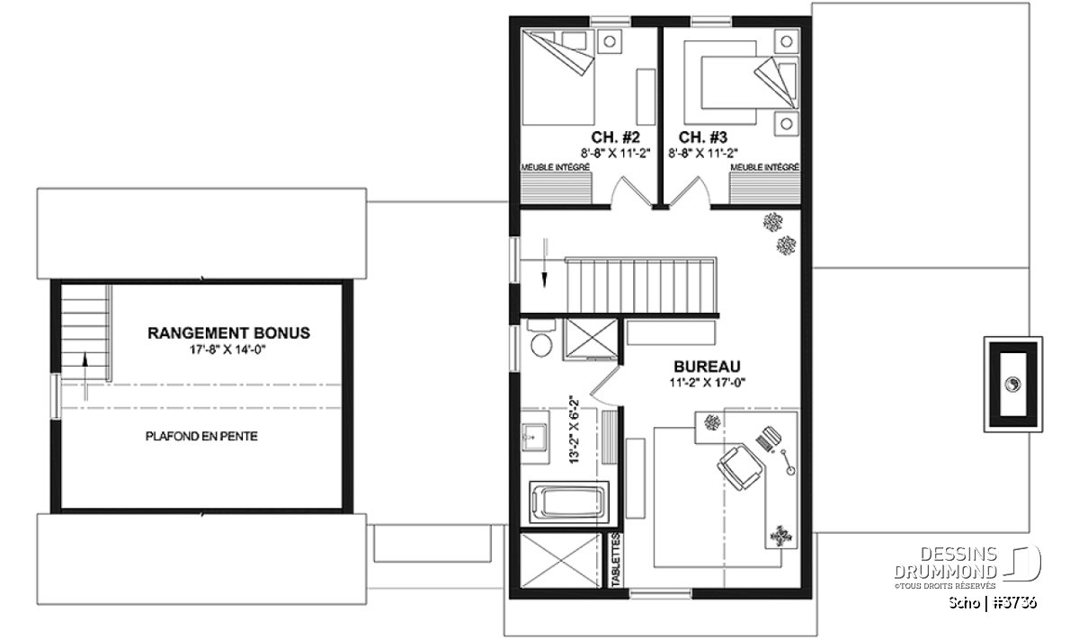
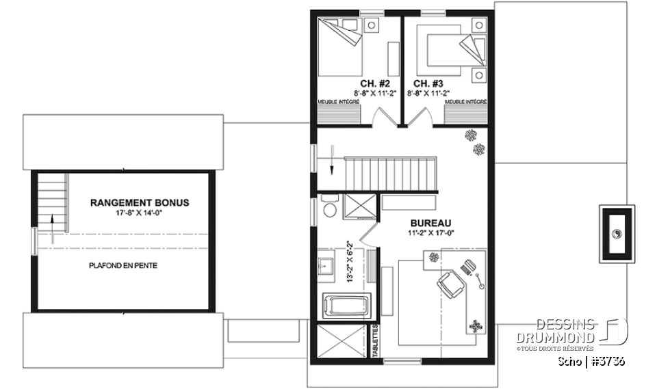
Étage | ||
---|---|---|
Pièces | Dimensions | Plafond |
Rangement boni | 17'8" x 14'0" | ~ 6'0" |
Bureau à domicile | 11'2" x 17'0" | ~ 8'0" |
Salle de bain complète | 13'2" x 6'2" | ~ 8'0" |
Douche | 4'0" x 3'0" | N/D |
Lingerie | 1'10" x 3'0" | N/D |
Chambre à coucher | 8'8" x 11'2" | ~ 8'0" |
Chambre à coucher | 8'8" x 11'2" | ~ 8'0" |
Autres informations utiles sur ce plan
Maison compact bien aménagée pour famille de 4 personnes avec 3 chambres + bureau!
.
Éléments distinctifs
Maison d'inspiration transitionnelle, proposant des matériaux nobles tels la pierre en façade et à la cheminée.
Les planchers sont à 9' au rez-de-chaussée, sauf à la salle de séjour.
Belle arche entre l'entrée principale et le secteur cuisine / salle à manger.
Cuisine proposant beaucoup d'armoire, un garde-manger et un îlot.
Pratique salle de lavage, au rez-de-chaussée.
Plafond cathédrale de 11'10'' et foyer à la salle de séjour.
Chambre des parents est au rez-de-chaussée et possède sa salle de douche privative, ainsi qu'un walk-in.
Les 2 chambres prévues à l'étage se partagent une salle de bain complète.
Le grand bureau aménagé à l'étage pourrait devenir la chambre #4.
Rangement prévu au-dessus du garage et accessible par une escalier (plafond en pente à ce secteur).
Le garage est suffisamment grand pour y aménager un coin établie.
La terrasse abritée propose 188 pi.ca. de plancher qui pourrait aisément accueillir une salle à manger ou un secteur lounge.
Particularité(s) du plan
Aire ouverte, Espace boni aménageable, Foyer, Garde-manger, Ilôt, Plafond cathédrale, Salle de lavage au rez-de-chaussée, Suite des maîtres au rdc, Terrasse abritée, Bureau / Salle étude, Arche, Auto-Construction
Style(s) architectural du plan
Transitionnel, Européen, Farmhouse moderne, Nordique Moderne, Moderne, Contemporain / Zen, Tendance
Notes légales
Ce modèle est protégé par la Loi sur les Droits d'Auteur.
De plus, les illustrations présentées peuvent différer du plan détaillé que vous recevrez, car ces derniers sont régulièrement ajustés afin de respecter les normes de construction en vigueur.
Plans similaires
Consultés précédemment
Merci pour votre commentaire! Celui-ci doit être approuvé avant d'être mis en ligne, veuillez allouer une période de 24 heures.
Erreur avec google reCaptcha! Veuillez réessayer.
Vous souhaitez apporter des modifications à ce plan?
Estimation gratuite en ligneVenez nous voir
Nos 31 bureauxVous apprécierez aussi
Pour vous assurer de bien préparer votre projet, nous vous proposons ce guide accompagnateur.
Voir le guidePlans similaires
Description
Rez-de-chaussée:
Entrée, salle d'eau, salle de lavage, cuisine, salle à manger, salle de séjour, suite des maîtres, salle de bain.
Étage:
2 chambres, salle de bain et bureau.
Fondation: dalle flottante. Autres types de fondation disponibles.
Garage simple avec coin établi.
Terrasse abritée à l'arrière.
Prix et
reconnaissance









