Vue arrière - MODÈLE DE BASE - Plan de chalet rustique chaleureux et lumineux avec mezzanine, plafond cathédral et aire ouverte invitante - Laurentides

Vue arrière - MODÈLE DE BASE

Rez-de-chaussée - Plan de chalet rustique chaleureux et lumineux avec mezzanine, plafond cathédral et aire ouverte invitante - Laurentides

Rez-de-chaussée

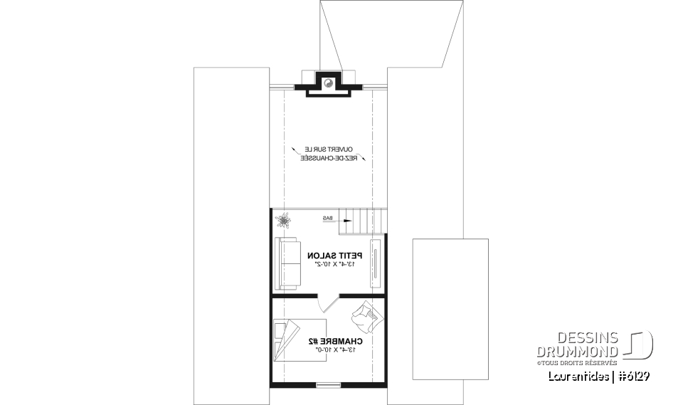
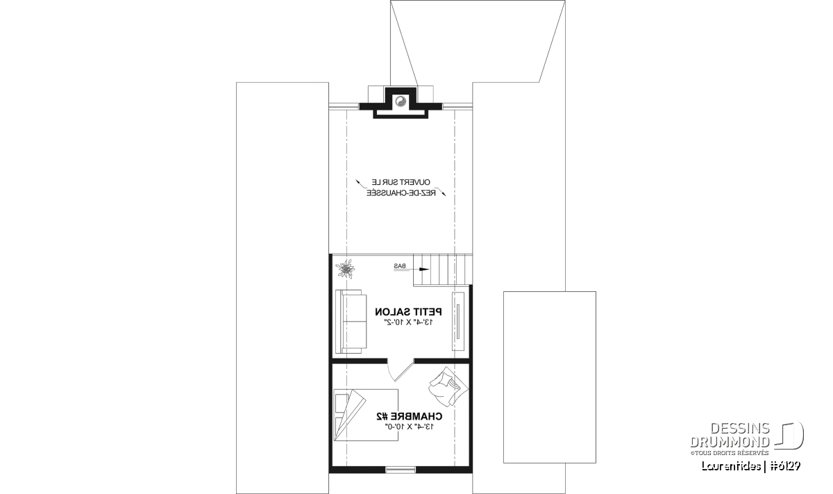
Étage - Plan de chalet rustique chaleureux et lumineux avec mezzanine, plafond cathédral et aire ouverte invitante - Laurentides

Étage

Vue avant - MODÈLE DE BASE - Laurentides

Vue avant - MODÈLE DE BASE

Élévation avant - Laurentides

Élévation avant

Alternative - Laurentides

Alternative

Alternative - Laurentides

Alternative

Alternative - Laurentides

Alternative

Laurentides Plan de maison 6129

Plan de chalet rustique chaleureux et lumineux avec mezzanine, plafond cathédral et aire ouverte invitante

À partir de

1515$

Fiche technique sommaire Plan #6129
Estimation ($) 352,145$
Surface habitable 1285 pi² Chambre 2
Salle de Bain 1 Salle d'eau -
Fondation incluse Dalle flottante Garage -
Largeur 28'0" Profondeur 36'0"

Besoin d’aide ?

Nos experts vous guident dans votre projet grâce à plus de 30 bureaux au Québec.

Joignez-nous

Consultez notre guide utilisateur

Un outil conçu pour vous simplifier la vie.

Ouvrir le guide

Besoin d’une assurance habitation ?

Pour obtenir votre prix, c’est juste ici

Obtenir une soumission Advertisement

Détails supplémentaires

Estimation

Spécifications générales

Surface aménagée totale
1285 pi²
Rez-de-chaussée
1017 pi²
Étage
268 pi²
Largeur
28'0"
Profondeur
36'0"
Hauteur dessus fondations au faite
26'4"
Murs extérieurs
2 X 6
Autres fondations disponibles (des frais peuvent s'appliquer)
Dalle monolithique
Conception pour l'entrepreneur
Code Entrepreneur
C

Spécifications sur les pièces

Chambre(s)
2
Salle(s) de bain complète(s)
1
Demi Salle(s) de Bain
-
Type de garage
-
Superficie balcon et/ou perron abrité
65 pi²

Rez-de-chaussée

Pièces
Dimensions
Plafond
Terrasse abritée
14'0" x 9'0"
~ 10'0"
Perron abrité
4'4" x 15'4"
~ 10'0"
Terrasse
14'0" x 9'0"
N/D
Salle de séjour
15'2" x 14'0"
~ 18'4"
Salle à manger
11'6" x 8'0"
~ 16'0"
Cuisine
11'6" x 11'4"
~ 9'0"
Îlot
6'4" x 3'6"
N/D
Salle de bain complète
9'6" x 11'0"
~ 9'0"
Douche
4'0" x 3'0"
N/D
Toilette en cabine
5'2" x 2'8"
~ 9'0"
Pièce de mécanique
9'6" x 3'8"
~ 9'0"
Chambre à coucher
13'0" x 11'0"
~ 9'0"
Walk-in
6'8" x 3'6"
~ 9'0"
Coin laveuse/sécheuse
3'6" x 3'10"
~ 9'0"
Entrée ou vestibule
6'0" x 6'0"
~ 9'0"

Étage

Pièces
Dimensions
Plafond
Petit salon
13'4" x 10'2"
~ 8'0"
Chambre à coucher
13'4" x 10'0"
~ 8'0"

Plan de chalet rustique Laurentides (#6129) – 2 chambres avec mezzanine et plafond cathédral

Le modèle Laurentides (#6129) est un plan de maison de style chalet rustique au charme chaleureux et enveloppant, qui séduit dès le premier regard par sa superbe couleur foncée et son allure authentique. Pensé pour s’intégrer harmonieusement à un environnement naturel, ce modèle peut autant servir de chalet de ski que de maison rustique à la campagne, offrant une atmosphère accueillante en toute saison.

L’entrée principale abritée ajoute une touche pratique et appréciée, particulièrement lors des journées enneigées ou pluvieuses. Dès que l’on franchit le seuil, on découvre un intérieur lumineux et bien pensé, avec des plafonds de 9’ au rez-de-chaussée qui procurent une agréable sensation d’espace. Le plafond cathédral spectaculaire au salon et à la cuisine vient amplifier cette impression, tout en laissant pénétrer une abondante lumière naturelle.

Le rez-de-chaussée propose une superficie de 1017 pi², organisée autour d’une aire ouverte conviviale regroupant la cuisine, la salle à manger et le salon. Le foyer central devient rapidement le cœur de la maison, créant une ambiance chaleureuse idéale pour les soirées en famille ou entre amis. La cuisine, dotée d’un îlot central, est à la fois fonctionnelle et parfaite pour recevoir.

La chambre principale est judicieusement située au rez-de-chaussée, à proximité d’une salle de bain complète offrant un accès facile pour les occupants et les invités. Un espace laveuse-sécheuse superposé, discrètement intégré près de la chambre, ajoute à la fonctionnalité quotidienne sans compromettre l’esthétique.

À l’étage, une mezzanine ouverte de 268 pi² surplombe les espaces de vie, apportant une belle dimension architecturale au chalet. On y retrouve un petit salon télé, parfait pour se détendre, ainsi qu’une chambre secondaire idéale pour accueillir la famille ou les invités.

La fondation incluse est une dalle flottante, parfaitement adaptée à ce type de construction, bien que d’autres types de fondations soient également disponibles selon vos besoins et votre terrain.

Mention : Conception de ce chalet réalisée pour LOCATION AUTHENTIK. Ce chalet sera disponible à louer prochainement.

Éléments distinctifs

Plan de maison de style chalet rustique au charme chaleureux et enveloppant.
Entrée principale abritée, pratique en toute saison.
Plafonds de 9’ au rez-de-chaussée pour une belle sensation d’espace.
Plafond cathédral spectaculaire au salon et à la cuisine, baigné de lumière.
Chambre principale située au rez-de-chaussée, près d’une salle de bain complète.
Salle de bain fonctionnelle avec accès facile pour les occupants et invités.
Espace laveuse-sécheuse superposé, discrètement intégré près de la chambre.
Aire ouverte conviviale regroupant cuisine, salle à manger et salon.
Foyer central chaleureux, véritable cœur de la maison.
Cuisine avec îlot central, idéale pour cuisiner et recevoir.
Mezzanine ouverte offrant une vue plongeante sur les espaces de vie.
Petit salon télé à l’étage, parfait pour un coin détente.
Chambre secondaire à l’étage, idéale pour invités ou enfants.

Particularité(s) du plan

Aire ouverte, Meuble(s) encastré(s), Bain et douche séparés, Plafond à plus de 8', Plafond cathédrale, Ilôt, Vue paronamique, Terrasse abritée, Foyer, Mezzanine, Boudoir / Vivoir

Style(s) architectural du plan

Rustique, Farmhouse moderne, Tendance, Canadien, Chalet, Chalet de ski, Moderne rustique, Vacances, bordure de lac, Champêtre, Montagne

Plans similaires
Logo Dessins Drummond image Dessins Drummond
Le modèle Laurentides est protégé par la loi sur les droits d'auteur.

Les illustrations présentées peuvent différer du plan détaillé que vous recevrez, car ces derniers sont régulièrement ajustés afin de respecter les normes de construction en vigueur.

En savoir plus

Une question ou un commentaire sur ce plan ?

Information de contact

Votre demande

Ajouter vos images ou photos

Pour ajouter une ou des photos, veuillez cliquer ou glisser vos fichiers dans la zone ci-bas. Vous pouvez ajouter jusqu'à huit photos JPG ou JPEG. Cette opération n'est pas obligatoire.

Désolé, votre navigateur ne supporte pas l'envoi de fichier.