Vue arrière - MODÈLE DE BASE - Modèle méditerranéen, vue panoramique, 4 chambres, atrium, plafond 9' - La Jolla

Vue arrière - MODÈLE DE BASE

Rez-de-chaussée - Modèle méditerranéen, vue panoramique, 4 chambres, atrium, plafond 9' - La Jolla

Rez-de-chaussée

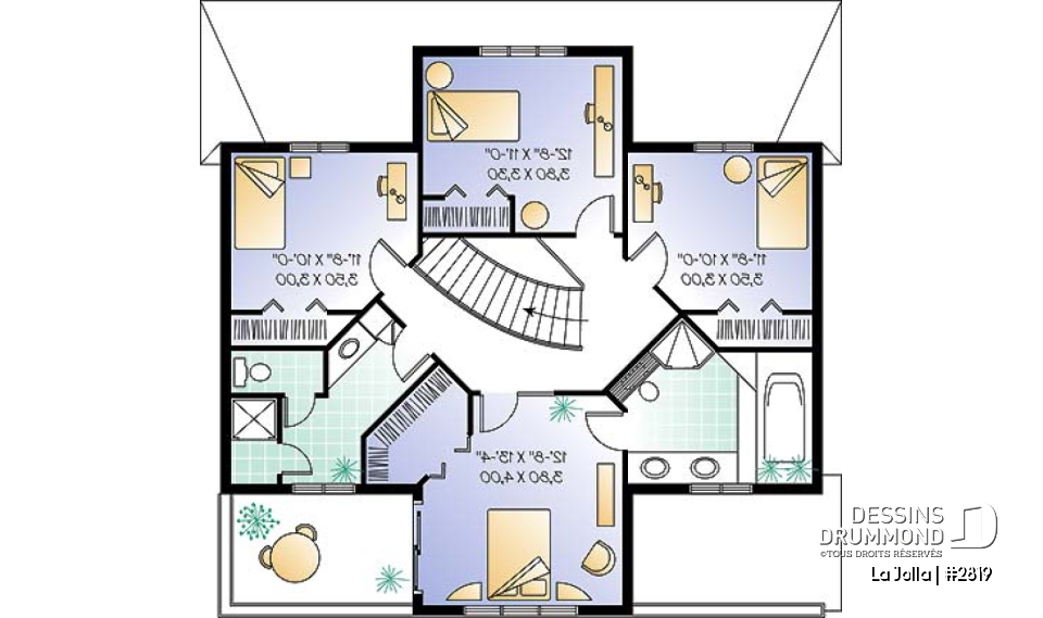
Étage - Modèle méditerranéen, vue panoramique, 4 chambres, atrium, plafond 9' - La Jolla

Étage

Vue avant - MODÈLE DE BASE - La Jolla

Vue avant - MODÈLE DE BASE

La Jolla Plan de maison 2819

Modèle méditerranéen, vue panoramique, 4 chambres, atrium, plafond 9'

À partir de

1740$

Fiche technique sommaire Plan #2819
Estimation ($) 647,563$
Surface habitable 2119 pi² Chambre 4
Salle de Bain 2 Salle d'eau 1
Fondation incluse Sous-sol aménageable Garage 1 voiture
Largeur 38'0" Profondeur 38'0"

Besoin d’aide ?

Nos experts vous guident dans votre projet grâce à plus de 30 bureaux au Québec.

Joignez-nous

Consultez notre guide utilisateur

Un outil conçu pour vous simplifier la vie.

Ouvrir le guide

Un accompagnement sur mesure

De la modification de plans au design d’intérieur, nous vous guidons à chaque étape.

Découvrir nos services

Détails supplémentaires

Estimation

Spécifications générales

Surface aménagée totale
2119 pi²
Rez-de-chaussée
1087 pi²
Étage
1032 pi²
Largeur
38'0"
Profondeur
38'0"
Hauteur dessus fondations au faite
26'6"
Murs extérieurs
2 X 6
Murs extérieurs
2 X 6
Sous-sol aménageable
Autres fondations disponibles (des frais peuvent s'appliquer)
Dalle flottante, Vide sanitaire, Dalle monolithique
Code Entrepreneur
E

Spécifications sur les pièces

Chambre(s)
4
Salle(s) de bain complète(s)
2
Demi Salle(s) de Bain
1
Type de garage
1 voiture (242 pi²)
Superficie balcon et/ou perron abrité
27 pi²

Rez-de-chaussée

Pièces
Dimensions
Plafond
Cuisine
11'8" x 17'4"
~ 9'0"
Salle à manger
11'4" x 12'0"
~ 9'0"
Salle de séjour
12'8" x 16'4"
~ 9'0"
Entrée ou vestibule
13'0" x 5'0"
N/D
Salle utilitaire (buanderie +)
6'0" x 8'0"
~ 9'0"
Garage
11'4" x 20'0"
~ 10'4"
Perron
8'8" x 3'8"
~ 9'0"
Patio
11'2" x 8'0"
N/D
Balcon
11'0" x 7'2"
N/D
Verrière ou solarium
11'4" x 7'4"
~ 9'0"
Demie salle de bain ou coin toilette
5'2" x 4'8"
~ 9'0"

Étage

Pièces
Dimensions
Plafond
Salle de bain complète
10'6" x 8'0"
~ 8'0"
Chambre à coucher
12'8" x 11'0"
~ 9'0"
Chambre à coucher
11'8" x 10'0"
~ 8'0"
Chambre à coucher
11'8" x 10'0"
~ 8'0"
Suite des maîtres
12'8" x 13'4"
~ 9'0"

Maison de style méditerranéen proposant un balcon privé à la suite des parents!

.

Éléments distinctifs

Plafond à 9 pieds sur tout le rez-de-chaussée. Foyer mitoyen à la salle à manger et la salle de séjour.

Particularité(s) du plan

Foyer, Salle de lavage au rez-de-chaussée, Comptoir-lunch, Vue paronamique, Plafond à plus de 8', Suite des maîtres à l'étage, Walk-in ch. maîtres, Bain et douche séparés, Lavabo double, Balcon à l'étage, Vestibule, Salle à manger formel

Style(s) architectural du plan

Méditerranéen, Vacances, bordure de lac, Floride

Plans similaires
Logo Dessins Drummond image Dessins Drummond
Le modèle La Jolla est protégé par la loi sur les droits d'auteur.

Les illustrations présentées peuvent différer du plan détaillé que vous recevrez, car ces derniers sont régulièrement ajustés afin de respecter les normes de construction en vigueur.

En savoir plus

Une question ou un commentaire sur ce plan ?

Information de contact

Votre demande

Ajouter vos images ou photos

Pour ajouter une ou des photos, veuillez cliquer ou glisser vos fichiers dans la zone ci-bas. Vous pouvez ajouter jusqu'à huit photos JPG ou JPEG. Cette opération n'est pas obligatoire.

Désolé, votre navigateur ne supporte pas l'envoi de fichier.