Vue arrière - MODÈLE DE BASE - Plan de plain-pied avec rez-de-jardin, belle lumière naturelle, grande terrasse - Gordon

Vue arrière - MODÈLE DE BASE

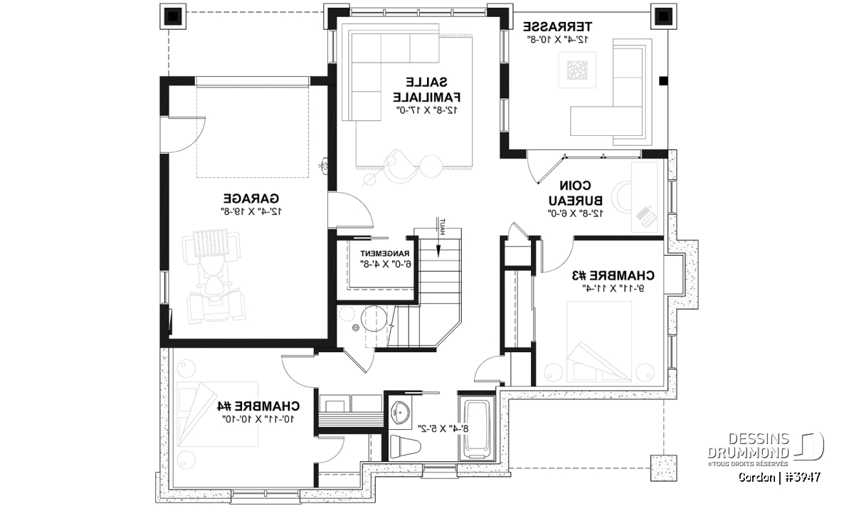
Rez-de-chaussée - Plan de plain-pied avec rez-de-jardin, belle lumière naturelle, grande terrasse - Gordon

Rez-de-chaussée

Sous-sol aménagé - Plan de plain-pied avec rez-de-jardin, belle lumière naturelle, grande terrasse - Gordon

Sous-sol aménagé

Vue avant - MODÈLE DE BASE - Gordon

Vue avant - MODÈLE DE BASE

Gordon Plan de maison 3947

Plan de plain-pied avec rez-de-jardin, belle lumière naturelle, grande terrasse

À partir de

1740$

Fiche technique sommaire Plan #3947
Estimation ($) 469,674$ (Sous-sol non-fini) | 505,789$ (Sous-sol fini)
Surface habitable 2145 pi² Chambre 2, 3, 4
Salle de Bain 2 Salle d'eau -
Fondation incluse Sous-sol aménagé + sortie extérieure (Rez-de-jardin) Garage 1 voiture
Largeur 40'0" Profondeur 38'8"

Besoin d’aide ?

Nos experts vous guident dans votre projet grâce à plus de 30 bureaux au Québec.

Joignez-nous

Consultez notre guide utilisateur

Un outil conçu pour vous simplifier la vie.

Ouvrir le guide

Besoin d’une assurance habitation ?

Pour obtenir votre prix, c’est juste ici

Obtenir une soumission Advertisement

Détails supplémentaires

Estimation

Spécifications générales

Surface aménagée totale
2145 pi²
Rez-de-chaussée
1200 pi²
Sous-sol aménagé
945 pi²
Largeur
40'0"
Profondeur
38'8"
Hauteur dessus fondations au faite
29'10"
Murs extérieurs
2 X 6
Sous-sol aménagé + sortie extérieure (Rez-de-jardin)
Code Entrepreneur
E

Spécifications sur les pièces

Chambre(s)
2, 3, 4
Salle(s) de bain complète(s)
2
Demi Salle(s) de Bain
-
Type de garage
1 voiture (265 pi²)
Superficie balcon et/ou perron abrité
60 pi²

Rez-de-chaussée

Pièces
Dimensions
Plafond
Chambre à coucher
12'4" x 13'0"
~ 9'0"
Walk-in
5'10" x 4'8"
~ 9'0"
Balcon
12'4" x 5'0"
~ 9'10"
Salle de bain
8'4" x 7'10"
~ 9'0"
Chambre à coucher
11'0" x 9'10"
~ 9'0"
Walk-in
5'4" x 3'8"
~ 9'0"
Garde-robe
3'8" x 1'8"
~ 9'0"
Entrée ou vestibule
6'4" x 5'4"
~ 9'0"
Garde-robe
5'4" x 3'8"
~ 9'0"
Perron abrité
12'0" x 5'4"
~ 8'10"
Salle de séjour
18'0" x 13'0"
~ 15'4"
Cuisine/salle à manger
12'8" x 17'0"
~ 9'0"
Îlot
4'8" x 3'0"
N/D
Terrasse abritée
12'4" x 5'8"
~ 9'10"
Terrasse
12'4" x 5'0"
N/D

Sous-sol aménagé

Pièces
Dimensions
Plafond
Salle de bain complète
8'5" x 5'3"
~ 8'0"
Chambre à coucher
10'0" x 11'5"
~ 8'0"
Salle de lavage
5'1" x 3'0"
~ 8'0"
Chambre à coucher
11'0" x 10'11"
~ 8'0"
Garage
12'4" x 19'8"
~ 8'0"
Garde-robe
6'0" x 6'8"
~ 8'0"
Lingerie
2'1" x 2'9"
~ 8'0"
Lingerie
2'1" x 2'0"
~ 8'0"
Patio
12'0" x 10'8"
N/D
Salle familiale
12'8" x 17'0"
~ 8'0"

Plan de maison plain-pied moderne rustique avec sous-sol rez-de-jardin et terrasse couverte – GORDON (#3947)

Le GORDON (#3947) est un plan de maison plain-pied de style moderne rustique qui combine parfaitement design, confort et fonctionnalité. Conçu pour maximiser la lumière naturelle et le lien avec l’extérieur, ce modèle propose 1 200 pi² au rez-de-chaussée ainsi que 945 pi² supplémentaires au rez-de-jardin. Il offre ainsi un aménagement équilibré, parfaitement adapté aux modes de vie d’aujourd’hui.

Dès le premier regard, cette maison séduit par son cachet chaleureux et sa galerie couverte à l’avant. À l’arrière, la terrasse partiellement abritée prolonge naturellement les espaces de vie vers l’extérieur. Que ce soit pour profiter d’un moment de détente ou recevoir des invités, cet aménagement permet de vivre pleinement chaque saison.

À l’intérieur, le rez-de-chaussée propose une aire de vie ouverte et lumineuse. Une généreuse fenestration à l’arrière laisse entrer une abondante lumière naturelle, créant une ambiance conviviale et apaisante. La cuisine se distingue par son grand îlot central, idéal pour cuisiner et rassembler. La salle à manger adjacente bénéficie de la même luminosité, tandis que la salle de séjour offre un espace accueillant rehaussé par un plafond cathédral.

La chambre principale, située au rez-de-chaussée, propose un espace intime et fonctionnel avec walk-in et accès à un espace extérieur privé. Une seconde chambre, pouvant aussi servir de bureau, ajoute une flexibilité intéressante. Un vestibule bien pensé ainsi que plusieurs espaces de rangement viennent compléter ce niveau pour faciliter le quotidien.

Le rez-de-jardin permet d’agrandir considérablement l’espace habitable. On y retrouve deux chambres supplémentaires, une salle de bain complète ainsi qu’une grande salle familiale baignée de lumière grâce à la configuration arrière. Un coin bureau et des espaces de rangement supplémentaires rendent ce niveau aussi polyvalent que pratique.

De plus, le plan GORDON (#3947) peut être entièrement personnalisé selon vos besoins. Que ce soit pour modifier l’aménagement, ajuster les dimensions ou adapter le style extérieur, ce modèle évolue avec votre projet.

Avec son design réfléchi, ses espaces lumineux et son ouverture sur l’extérieur, le GORDON (#3947) représente un excellent choix pour une maison moderne, confortable et évolutive.

Éléments distinctifs

Modèle de maison de style moderne rustique aux couleurs tendance.
Galerie couverte à l’avant et partiellement à l’arrière pour profiter de l’extérieur en tout confort.
Garage pratique avec accès arrière, idéal pour le rangement des équipements récréatifs.
Vestibule d’entrée avec vestiaire fonctionnel et bien pensé.
Plafonds de 9 pieds au rez-de-chaussée et plafond cathédral à la salle de séjour.
Grand îlot de cuisine parfait pour cuisiner et recevoir.
Cuisine et salle à manger baignées de lumière grâce à une fenestration généreuse.
Spacieuse salle de séjour avec plafond cathédral et accès à la terrasse partiellement abritée.
Chambre principale au rez-de-chaussée avec walk-in et terrasse privée.
Chambre secondaire (ou bureau) également dotée d’un walk-in au rez-de-chaussée.
Sous-sol en rez-de-jardin comprenant deux chambres additionnelles avec garde-robe.
Salle de bain complète au sous-sol.
Grande salle familiale lumineuse avec fenestration abondante.
Coin bureau avec vue sur la terrasse abritée.
Espace laveuse-sécheuse aménagé dans une garde-robe.
Plusieurs espaces de rangement pratiques.

Particularité(s) du plan

Foyer, Plafond cathédrale, Walk-in ch. maîtres, Ilôt, Vestiaire, Plafond à plus de 8', Terrasse abritée, Bureau / Salle étude, Bain et douche séparés, Lavabo double, Vestibule

Style(s) architectural du plan

Moderne rustique, Vacances, bordure de lac, Nordique, Américain, Chalet, Chalet de ski, Rustique, Montagne, Ranch, Champêtre

Plans similaires
Logo Dessins Drummond image Dessins Drummond
Le modèle Gordon est protégé par la loi sur les droits d'auteur.

Les illustrations présentées peuvent différer du plan détaillé que vous recevrez, car ces derniers sont régulièrement ajustés afin de respecter les normes de construction en vigueur.

En savoir plus

Une question ou un commentaire sur ce plan ?

Information de contact

Votre demande

Ajouter vos images ou photos

Pour ajouter une ou des photos, veuillez cliquer ou glisser vos fichiers dans la zone ci-bas. Vous pouvez ajouter jusqu'à huit photos JPG ou JPEG. Cette opération n'est pas obligatoire.

Désolé, votre navigateur ne supporte pas l'envoi de fichier.