Connexion
À partir de 1680$
Les photos de cette maison peuvent différer du plan d'origine, duquel elles proviennent. Pour toute modification, veuillez contacter l’un de nos 30 bureaux.
Le plan de maison AUGUSTA 3 (plan #2678-V2) est une version agrandie du plan Augusta 2 (2678-V1). Ce plan de maison de style champêtre rappelle le style chaleureux et simple à la fois des maisons retrouvées dans le Maine.
Avec un plancher de deux étages, proposant 3 chambres et garage, ce plan est idéal pour les familles possédant un terrain étroit et à la recherche de ces deux commodités.
Un garde-manger et un grand îlot à la cuisine, ainsi que des plafonds de 9' partout au rez-de-chaussée donne une amplitude à ce plancher compact.
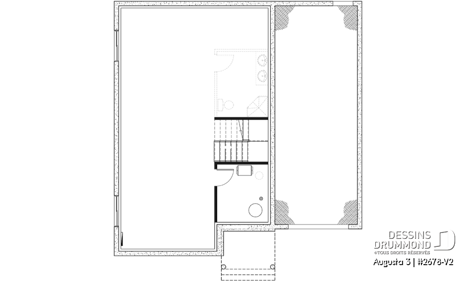
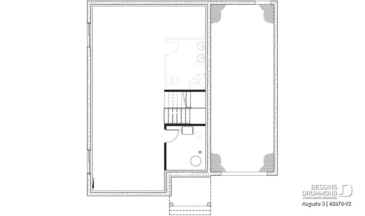
La salle d'eau et le vestiaire localisés au rez-de-chaussée sont de belles commodités recherchées par les futurs acheteurs.
La salle de lavage est localisée à l'étage, pratique pour les jeunes familles.
La suite des parents inspire à de bons moments de détente en proposant une grande garde-robe de type walk-in et une salle de bain privée.
Les deux chambres supplémentaires sont grandes et incluent un coin bureau et des garde-robes fort logeables.
Cette 3ème version du plan 2678 saura vous plaire si vous êtes à la recherche d'un peu plus d'espace!
Plan de maison de style champêtre.
Plafond à 9' au rez-de-chaussée.
Grand vestiaire à l'entrée du garage.
Salle d'eau pour les invités.
3 chambres, salle de bain complète pour les enfants, et salle de lavage à l'étage.
Suite des parents avec salle de bain privée et grande garde-robe de type walk-in.
Cuisine avec grand îlot et garde-manger de type walk-in.
Garage une voiture très profond permettant le rangement d''une moto ou autres.
Plafond en pente, Plafond à plus de 8', Salle de lavage à l'étage, Garde-manger, Vestiaire, Bar à café, Walk-in ch. maîtres, Ilôt, Aire ouverte, Suite des maîtres à l'étage, Bain et douche séparés
Champêtre, Américain, Traditionnelle, Anglais, Farmhouse, Transitionnel, Farmhouse moderne
Bardeau de cèdre blanc (Blanc Maibec)
Lambris de bois véritable (Blanc Maibec)
Prenez rendez-vous dès aujourd’hui avec l’un de nos designers-cuisinistes et donnez vie à votre projet !