Plan de maison Mayfair (2327)
Acheter ce planÀ partir de 1215$ Voir prix et options
Plan de maison Mayfair (2327)
Plan de plain-pied, 2 à 5 chambres, 1 ou 2 sdb, cuisine avec îlot, sous-sol aménagé optionnel ($)
Visite virtuelle
Venez nous voir
Estimation
| Coûts ($) Est. entrepreneur - S-sol non-fini | À partir de 274,986$ |
| Coûts ($) Est. entrepreneur - S-sol fini | À partir de 305,736$ |
Spécifications générales
| Surface aménagée totale | 960 pi2 |
| Rez-de-chaussée | 960 pi2 |
| Sous-sol aménageable | 960 pi2 |
| Sous-sol aménagé (Optionel $) | 960 pi2 |
| Largeur | 29'8" |
| Profondeur | 33'4" |
| Hauteur dessus fondations au faite | 19'7" |
| Murs extérieurs | 2 X 6 |
| Type de fondation incluse au plan | Sous-sol aménageable |
| Autres fondations disponibles (des frais peuvent s'appliquer) | Sous-sol aménagé, Dalle flottante, Vide sanitaire, Dalle monolithique |
| Code Entrepreneur | A |
Spécifications sur les pièces
| Chambre(s) | 2, 3, 4, 5 |
| Salle(s) de bain complète(s) | 2 |
| Demi Salle(s) de Bain | - |
| Type de garage | - |
| Espace boni aménageable | - |
| Rangement boni | - |
| Superficie balcon et/ou perron abrité | 20 pi2 |
Estimation
| Coûts ($) Est. entrepreneur - S.sol non-fini | À partir de 274,986$ i |
| Coûts ($) Est. entrepreneur - S.sol fini | À partir de 305,736$ i |
Spécifications générales
| Surface aménagée totale | 960 pi2 |
| Rez-de-chaussée | 960 pi2 |
| Sous-sol aménagé (Optionel $) | 960 pi2 |
| Sous-sol aménageable | 960 pi2 |
| Largeur | 29'8" |
| Profondeur | 33'4" |
| Hauteur dessus fondations au faite | 19'7" |
| Murs extérieurs | 2 X 6 |
| Type de fondation incluse au plan | Sous-sol aménageable i |
| Autres fondations disponibles (des frais peuvent s'appliquer) | Sous-sol aménagé, Dalle flottante, Vide sanitaire, Dalle monolithique |
| Conception par le bureau de | Jenn x Dessins Drummond |
| Code Entrepreneur | A |
Spécifications sur les pièces
Conception : Jenn x Dessins Drummond
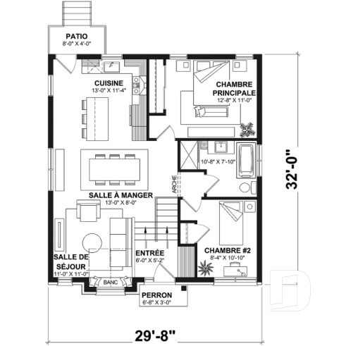
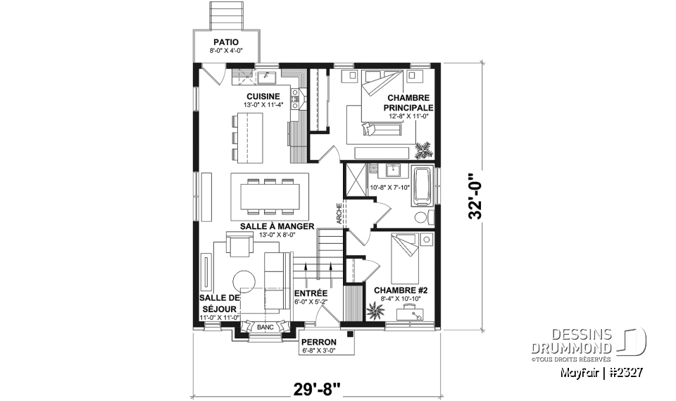
Rez-de-chaussée
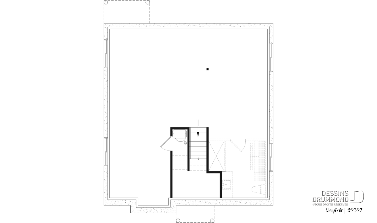
Sous-sol aménageable
Sous-sol aménagé (Optionel $)
Voir la grandeur des pièces et hauteur des plafonds
| Rez-de-chaussée | ||
|---|---|---|
| Pièces | Dimensions | Plafond |
| Salle de bain complète | 10'8" x 7'10" | ~ 8'0" |
| Douche | 2'8" x 4'0" | N/D |
| Lingerie | 1'0" x 1'2" | N/D |
| Cuisine | 13'0" x 11'4" | ~ 8'0" |
| Îlot | 6'0" x 3'0" | N/D |
| Salle à manger | 13'0" x 8'0" | ~ 8'0" |
| Salle de séjour | 11'0" x 11'0" | ~ 11'4" |
| Chambre à coucher | 12'8" x 11'0" | ~ 8'0" |
| Garde-robe | 7'6" x 2'0" | ~ 8'0" |
| Chambre à coucher | 8'4" x 10'10" | ~ 8'0" |
| Garde-robe | 3'0" x 2'0" | ~ 8'0" |
| Entrée ou vestibule | 6'0" x 5'2" | ~ 10'2" |
| Patio | 8'0" x 4'0" | N/D |
| Perron | 6'8" x 3'0" | N/D |
| Abri d'auto | 0'0" x 0'0" | N/D |
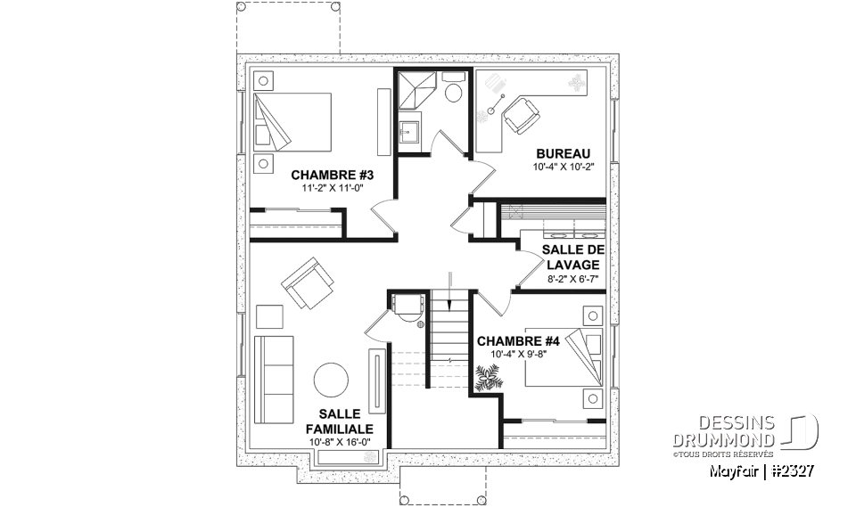
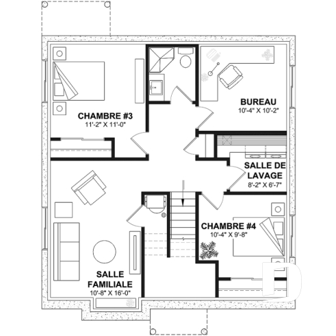
| Sous-sol aménagé (Optionel $) | ||
|---|---|---|
| Pièces | Dimensions | Plafond |
| Chambre à coucher | 10'4" x 9'8" | ~ 8'0" |
| Garde-robe | 8'0" x 2'0" | ~ 8'0" |
| Salle de lavage | 8'2" x 6'7" | ~ 8'0" |
| Garde-robe | 2'10" x 1'10" | ~ 8'0" |
| Chambre à coucher | 11'2" x 11'0" | ~ 8'0" |
| Garde-robe | 7'2" x 2'0" | ~ 8'0" |
| Bureau à domicile | 10'4" x 10'2" | ~ 8'0" |
| Salle de bain | 5'6" x 6'4" | ~ 8'0" |
| Salle familiale | 10'8" x 16'0" | ~ 8'0" |
| Sous-sol aménageable |
|---|
Autres informations utiles sur ce plan
Magnifique maison aux accents campagne française proposant 2 à 4 chambres + possibilité d'un bureau!
.
Éléments distinctifs
Beau style architectural avec accent chaleureux en bois.
Magnifique fenêtre à arche à l'avant.
Possibilité de 4 chambres + bureaux, ou 5 chambres.
2 salons.
Coin déjeuner.
2 salles de bain.
*Sous sol aménagé (optionnel $):
2 chambres, bureau (ou chambre #5), salle familiale, salle de lavage, salle de douche et rangement.
*Si vous souhaitez acheter le plan du sous-sol aménagé, veuillez sélectionner cette option dans le panier d'achat, dans la section "Sélectionner votre fondation". Si vous ne sélectionnez pas cette option, vous recevrez le sous-sol non fini, sans frais additionnel.
Particularité(s) du plan
Bain et douche séparés, Plafond cathédrale, Ilôt, Bureau / Salle étude, Chute à linge, Banquette, Arche, Auto-Construction
Style(s) architectural du plan
Notes légales
Ce modèle est protégé par la Loi sur les Droits d'Auteur.
De plus, les illustrations présentées peuvent différer du plan détaillé que vous recevrez, car ces derniers sont régulièrement ajustés afin de respecter les normes de construction en vigueur.
Plans similaires
Consultés précédemment
Merci pour votre commentaire! Celui-ci doit être approuvé avant d'être mis en ligne, veuillez allouer une période de 24 heures.
Erreur avec google reCaptcha! Veuillez réessayer.
Vous souhaitez apporter des modifications à ce plan?
Estimation gratuite en ligneVenez nous voir
Nos 31 bureauxVous apprécierez aussi
Pour vous assurer de bien préparer votre projet, nous vous proposons ce guide accompagnateur.
Voir le guidePlans similaires
Description
Rez-de-chaussée:
Entrée split, salle de séjour, salle à manger, cuisine avec îlot, 2 chambres, salle de bain.
*Sous sol aménagé (optionnel $):
2 chambres, bureau (ou chambre #5), salle familiale, salle de lavage, salle de douche et rangement.
*Si vous souhaitez acheter le plan du sous-sol aménagé, veuillez sélectionner cette option dans le panier d'achat, dans la section "Sélectionner votre fondation". Si vous ne sélectionnez pas cette option, vous recevrez le sous-sol non fini, sans frais additionnel.
Prix et
reconnaissance






















