Plan de maison Cubika (3730)
Acheter ce planÀ partir de 1440$ Voir prix et options
Plan de maison Cubika (3730)
Plan de maison contemporaine abordable à étage, 3 chambres, salle de lavage à l'étage, garde-manger
Venez nous voir
Estimation
| Coûts ($) Est. entrepreneur | À partir de 406,825$ |
Spécifications générales
| Surface aménagée totale | 1454 pi2 |
| Rez-de-chaussée | 727 pi2 |
| Étage | 727 pi2 |
| Sous-sol | 727 pi2 |
| Largeur | 27'4" |
| Profondeur | 28'4" |
| Hauteur dessus fondations au faite | 23'1" |
| Murs extérieurs | 2 X 6 |
| Type de fondation incluse au plan | Sous-sol aménageable |
| Autres fondations disponibles (des frais peuvent s'appliquer) | Dalle flottante, Vide sanitaire, Dalle monolithique |
| Code Entrepreneur | C |
Spécifications sur les pièces
| Chambre(s) | 3 |
| Salle(s) de bain complète(s) | 1 |
| Demi Salle(s) de Bain | 1 |
| Type de garage | - |
| Espace boni aménageable | - |
| Rangement boni | - |
| Superficie balcon et/ou perron abrité | 42 pi2 |
Estimation
Spécifications générales
| Surface aménagée totale | 1454 pi2 |
| Sous-sol | 727 pi2 |
| Rez-de-chaussée | 727 pi2 |
| Étage | 727 pi2 |
| Largeur | 27'4" |
| Profondeur | 28'4" |
| Hauteur dessus fondations au faite | 23'1" |
| Murs extérieurs | 2 X 6 |
| Type de fondation incluse au plan | Sous-sol aménageable i |
| Autres fondations disponibles (des frais peuvent s'appliquer) | Dalle flottante, Vide sanitaire, Dalle monolithique |
| Code Entrepreneur | C |
Spécifications sur les pièces
Voir la grandeur des pièces et hauteur des plafonds
| Sous-sol |
|---|
| Rez-de-chaussée | ||
|---|---|---|
| Pièces | Dimensions | Plafond |
| Cuisine | 11'6" x 12'4" | ~ 8'0" |
| Garde-manger | 3'2" x 7'3" | ~ 8'0" |
| Vestiaire | 5'0" x 5'2" | ~ 8'0" |
| Entrée ou vestibule | 8'10" x 4'4" | ~ 8'0" |
| Salle de bain | 7'3" x 5'2" | ~ 8'0" |
| Lingerie | 2'2" x 1'4" | ~ 8'0" |
| Salle de séjour | 11'8" x 14'8" | ~ 8'0" |
| Salle à manger | 11'0" x 12'4" | ~ 8'0" |
| Patio | 12'0" x 6'0" | N/D |
| Perron | 10'4" x 4'8" | ~ 8'4" |
| Étage | ||
|---|---|---|
| Pièces | Dimensions | Plafond |
| Chambre à coucher | 11'8" x 12'6" | ~ 8'0" |
| Walk-in | 8'0" x 4'6" | ~ 8'0" |
| Chambre à coucher | 9'4" x 9'4" | ~ 8'0" |
| Garde-robe | 2'0" x 5'2" | ~ 8'0" |
| Chambre à coucher | 10'2" x 12'0" | ~ 8'0" |
| Garde-robe | 4'4" x 2'0" | ~ 8'0" |
| Salle de bain complète | 7'10" x 12'6" | ~ 8'0" |
| Lingerie | 1'2" x 4'0" | ~ 8'0" |
| Douche | 4'0" x 3'0" | ~ 8'0" |
| Salle de lavage | 5'8" x 9'4" | ~ 8'0" |
Autres informations utiles sur ce plan
Plan de maison moderne, de forme cubique, offrant 3 chambres et salle de lavage à l'étage!
Le plan de maison CUBIKA(#3730), offre une maison de forme cubique qui au style très moderne et contemporain. De plus, le fait que le plan soit de cette forme diminue les coûts de construction. Trois chambres, une salle de bain et une salle d’eau se retrouvent dans les 1 454 Pieds de ce plan. En plus de la salle de séjour, la cuisine et la salle à manger, un sous-sol est aménageable.
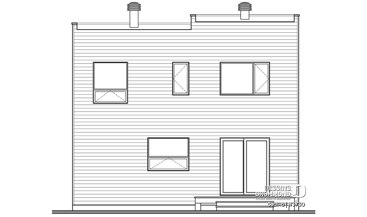
De l’extérieur, l’aménagement du revêtement donne un look très prestigieux et moderne. Avec plusieurs textures et couleurs, comme le toit de la galerie foncé et carré, des contours de fenêtres noirs, la porte double vitrée, l’ajout d’une touche de blanc et d’un pan de mur en bois décoratif, le look est parfait. Veuillez noter qu’ici aussi, de l’économie est créée, en priorisant d’autres matériaux tout aussi intéressants que la maçonnerie et un toit complexe. Ceux-ci sont plus dispendieux, en les remplaçant avec cette option, la maison devient plus abordable.
Une fois entrée dans la maison, une aire spacieuse avec une banquette et une garde-robe walk-in fait office de vestibule. Un peu plus loin sur la droite, nous retrouvons la salle d’eau, avant l’espace cuisine et salle à manger. La cuisine, comprenant un ilot central et un évier double, possède également un garde-manger de type walk-in se rend très fonctionnelle et à aire ouverte sur l’espace de salle à manger. Cette dernière laisse entrer beaucoup de luminosité grâce à une grande fenêtre d’un côté, et une porte patio sur le mur perpendiculaire, donnant accès à la terrasse extérieure. Pour compléter le rez-de-chaussée, la salle de séjour se trouve au-devant de la maison. Aussi très éclairé grâce entre autres à l'une des grandes fenêtres de la façade.
Les trois chambres, dont celles des maîtres avec la deuxième grande fenêtre de la façade et un walk-in, se trouvent à l’étage. Les deux autres chambres sont de bonne dimension, pouvant aisément servir de chambre d’enfants et/ou chambre d’amis. De plus, une salle de bain avec une douche séparée du bain, avec un évier double et la salle de lavage sont sur le même étage.
CUBIKA, une maison moderne avec un coût abordable pour autant de commodité et espace.
Éléments distinctifs
Plan de maison moderne cubique.
Plancher offrant 3 chambre.
Grand vestiaire d'entrée.
Salle de lavage à l'étage.
Cuisine avec garde-manger et îlot.
Salle d'eau au rez-de-chaussée.
Chambre des parents avec garde-robe de type walk-in.
Salle de bain familiale avec bain et douche séparés et deux lavabos.
Salle de lavage à l'étage.
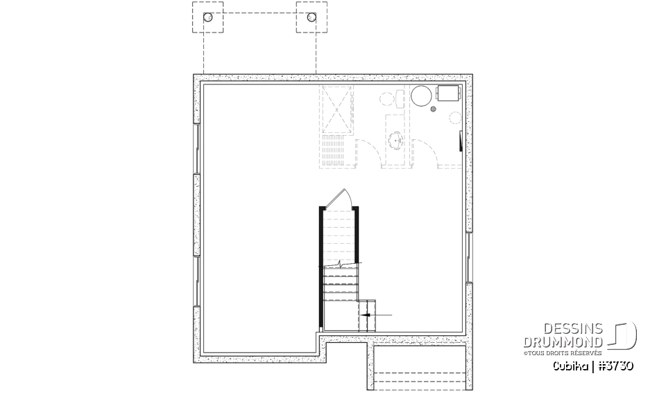
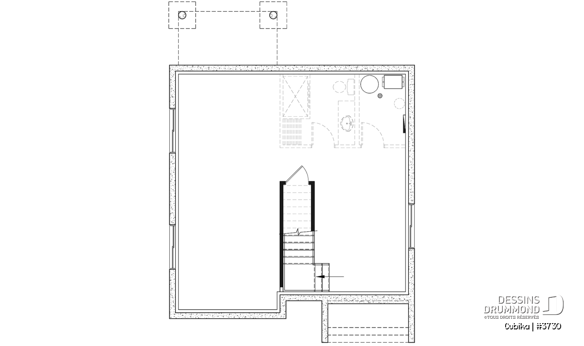
Sous-sol non fini, à aménager selon vos besoins.
Particularité(s) du plan
Garde-manger, Vue paronamique, Salle de lavage à l'étage, Ilôt, Walk-in ch. maîtres, Vestiaire, Aire ouverte, Banquette, Bain et douche séparés, Lavabo double
Style(s) architectural du plan
Notes légales
Ce modèle est protégé par la Loi sur les Droits d'Auteur.
De plus, les illustrations présentées peuvent différer du plan détaillé que vous recevrez, car ces derniers sont régulièrement ajustés afin de respecter les normes de construction en vigueur.
Plans similaires
Consultés précédemment
Merci pour votre commentaire! Celui-ci doit être approuvé avant d'être mis en ligne, veuillez allouer une période de 24 heures.
Erreur avec google reCaptcha! Veuillez réessayer.
Vous souhaitez apporter des modifications à ce plan?
Estimation gratuite en ligneVenez nous voir
Nos 31 bureauxVous apprécierez aussi
Pour vous assurer de bien préparer votre projet, nous vous proposons ce guide accompagnateur.
Voir le guidePlans similaires
Description
Rez-de-chaussée:
Vestiaire, salle d'eau, cuisine, salle à manger, salon.
Étage:
3 chambres, salle de bain et salle de lavage.
Sous-sol non fini, à aménager. Autres types de fondation disponibles.
Prix et
reconnaissance










