Estimation gratuite en ligne
Estimation gratuite en ligne
FR
  • EN
Connexion / Inscription
0
Voir mon panier Aucun plan dans votre panier
Estimation gratuite en ligne
  • Plans de maison
  • Collections
  • Photos
  • Design int.
  • Sur mesure
  • Réno
  • Entrepreneurs
  • PLANS
  • COLLECTIONS
  • PHOTOS
  • DESIGN D'INT.
  • SUR MESURE
  • RÉNO
  • ENTREPRENEURS
Dessins Drummond
  • Recherche avancée
  • Collaborations
  • Collections de plans
  • Nouveautés
  • Récemment vendus
  • 100 Plans + populaires
  • Galerie photos
  • Par coût de construction
  • Par nombre de chambre(s)
  • Par type de fondation
  • Farmhouse
  • Contemporain
  • Scandinave
  • Plain-pied
  • Maison à étage
  • Chalet
  • Mini-maison
  • Garage
  • Remise / Pavillon piscine
  • Bi-génération / Jumelé / Multi
  • Plans sur mesure
  • Joindre un des 31 bureaux
  • 0
    Voir toute la liste Aucun plan dans vos favoris
  • 0
    Afficher le comparateur Aucun plan dans votre comparateur
Recherche Rapide
Dessins Drummond
  • Recherchez votre plan
    Recherchez votre plan
    JE CHERCHE...
    • Plain-pied
    • Maison à étages
    • Chalet
    • Bi-Génération
    • Jumelé
    • Garage
    • Bachelor
    • Multi-logement
    • mini-maison
    • Pavillon
    Voir tous les plans
  • Collaborations
    Collaborations
    Collaborations Maibec
    Collaborations Stûv
    Collaborations Konergie
    Collaborations Rinox
    Collaborations Rona
    Collection Jenn X Dessins Drummond
  • Collections populaires
    Collections populaires
    JE CHERCHE...
    • Nouveautés
    • Farmhouse
    • Contemporaine
    • Scandinave
    • Par type de fondation
    • Moins de 250 000$
    • Maison avec bureau
    • 3 chambres + 2 sdb.
    • Bi-Génération
    • Plans éco-responsables et durables
    • Récemment vendus
    Voir toutes les collections
  • Modifier un plan
    Modifier un plan
    Modifier un plan
    • Comment ça marche
    • Formulaire en ligne
    • Galerie photos
    • Combien ça coûte
    Demander une soumission Nos 31 points de vente

    Besoin d'un entrepreneur?
  • Plan sur mesure
    Plan sur mesure
    Obtenir un sur mesure
    • Comment ça marche
    • Formulaire en ligne
    • Galerie photos
    • Combien ça coûte
    Prendre RDV Nos 31 points de vente

    Besoin d'un entrepreneur?
  • Plan de rénovation
    Plan de rénovation
    Améliorer votre maison (rénovation)
    • Comment ça marche
    • Formulaire en ligne
    • Rencontre à nos bureaux
    • Plan de rénovation en ligne
    • Combien ça coûte
    Galerie photos de rénovation
    • Voir toutes les photos
    • Agrandissement
    • Ajout d'étage
    • Ajout de garage ou d'abri d'auto
    • Ajout de solarium
    • Ajout de terrasse ou de galerie
    • Embellissement extérieur
    • Réorganisation intérieure
    Prendre RDV Nos 31 points de vente

    Besoin d'un entrepreneur?
  • Maison référence
  • photos & vidéos
    Plans et projets
    PLANS DESSINS DRUMMOND Voir la galerie
    PLANS SUR MESURE Voir la galerie
    PLANS MODIFIÉS Voir la galerie
    PLANS RÉNOVATIONS AVANT/APRÈS Voir la galerie
    VIDÉOS Voir les vidéos
  • Information sur nos plans
    Information sur nos plans
    Forfaits plans & options
    • Estimation des coûts de construction
    • Différent forfaits
    • Options de fondations disponibles
    Engagement du meilleur plan
    • Voir plus de détails
    Information technique
    • Tout ce qu'il faut savoir
  • Services complémentaires
    Services complémentaires
    Services complémentaires au plan
    • Liste des matériaux
    • Document d'aide à la construction
    • Licence pour construction multiple

    Besoin d'un entrepreneur?
  • Section entrepreneurs
    Section entrepreneurs
    Programme
    • Entrepreneur
    Autres services
    • Services reliés aux plans
    • Licence pour dessinateurs
    • Publicisez votre entreprise sur notre site
    Plans pour entrepreneur Contacter notre représentant

    Besoin d'un entrepreneur?
  • Blogue
  • FAQ
    Foire aux questions
    Questions fréquentes
    • Estimation des coûts de construction
    • Questions techniques sur nos plans
    • Questions sur la modification de nos plans
    • Questions sur nos services additionnels
    • Questions sur les droits d'auteur
  • Nos 31 bureaux
  • PLANS
  • COLLECTIONS
  • DESIGN INT.
  • SUR MESURE
  • RÉNO
  • ENTREPRENEURS
Dessins Drummond

Recherche

?

  • 0
  • 1
  • 2
  • 3
  • 4
  • 5
  • 6+
Recherche avancée
Vacances de Noël 2025
Version couleur no. 6 - Vue avant - Maison Farmhouse à deux étages avec suite des parents, mezzanines et vaste potentiel d’aménagement - Tristan 2
Vue avant – Modèle ORIGINAL - Tristan 2
Vue avant - MODÈLE DE BASE - Tristan 2
Élévation arrière - Tristan 2
Version couleur no. 1 - Vue avant - Tristan 2
Version couleur no. 2 - Vue avant - Tristan 2
Version couleur no. 4 - Vue avant - Tristan 2
Version couleur no. 5 - Vue avant - Tristan 2
Version couleur no. 7 - Vue avant - Tristan 2
Version couleur no. 8 - Vue avant - Tristan 2
Version couleur no. 9 - Vue avant - Tristan 2

Entrer votre code postal pour filtrer les produits disponibles dans votre région.

Fermer
${ currentTag.enterprise_name }
${ currentTag.modele }
${ currentTag.price }
${ currentTag.description }
${ currentTag.enterprise_description }
${ currentTag.label }
Fermer Éditer
Vignette Version couleur no. 6 - Vue avant - 2871
Vignette Vue avant – Modèle ORIGINAL - 2871
Vignette Vue avant - MODÈLE DE BASE - 2871
Vignette Élévation arrière - 2871
Vignette Version couleur no. 1 - Vue avant - 2871
Vignette Version couleur no. 2 - Vue avant - 2871
Vignette Version couleur no. 4 - Vue avant - 2871
Vignette Version couleur no. 5 - Vue avant - 2871
Vignette Version couleur no. 7 - Vue avant - 2871
Vignette Version couleur no. 8 - Vue avant - 2871
Vignette Version couleur no. 9 - Vue avant - 2871
Accueil
Recherchez votre plan
Fiche du plan - Tristan 2 2871

Plan de maison Tristan 2  (2871)

Acheter ce plan
À partir de 2200$
Voir prix et options
Superficie p2 2764
Chambre 4
S. bains 3
S. eau 1
Estimation ($)
Avec un entrepreneur À partir de 858,452$?
Fondation
Vide sanitaire (Inclus dans l'estimation)?
Garage 2 voitures
Largeur 55'8"
Profondeur 44'4"
Accueil
Recherchez votre plan
Fiche du plan - Tristan 2 2871

Plan de maison Tristan 2  (2871)

Maison Farmhouse à deux étages avec suite des parents, mezzanines et vaste potentiel d’aménagement

Favoris
Comparer
Inverser
Imprimer
Questions
Partager

Acheter ce plan

À partir de 2200$
Spécial: Livraison gratuite!
Voir prix et options
?

Besoin d'aide?

Contactez-nous
?

Venez nous voir

Nos 31 bureaux
Modifier ce plan : Estimation gratuite
Outils
Partager
Favoris
Comparer
Inverser
Imprimer
Questions

  • Planchers
  • Détails
    techniques

Estimation

Coûts ($) Est. entrepreneur À partir de 858,452$
i

Spécifications générales

Surface aménagée totale 2764 pi2
Rez-de-chaussée 1558 pi2
Étage 1206 pi2
Largeur 55'8"
Profondeur 44'4"
Hauteur dessus fondations au faite 31'0"
Murs extérieurs 2 X 6
Type de fondation incluse au plan Vide sanitaire
i
Autres fondations disponibles (des frais peuvent s'appliquer) Dalle flottante, Dalle monolithique
Code Entrepreneur H

Spécifications sur les pièces

Chambre(s) 4
Salle(s) de bain complète(s) 3
Demi Salle(s) de Bain 1
Type de garage 2 voitures (525 pi2)
Espace boni aménageable -
i
Rangement boni -
i
Superficie balcon et/ou perron abrité 559 pi2
Nos points de vente Nos estimations ($)

Estimation

Coûts ($) Est. entrepreneur À partir de 858,452$ i

Spécifications générales

Surface aménagée totale 2764 pi2
Rez-de-chaussée 1558 pi2
Étage 1206 pi2
Largeur 55'8"
Profondeur 44'4"
Hauteur dessus fondations au faite 31'0"
Murs extérieurs 2 X 6
Type de fondation incluse au plan Vide sanitaire i
Autres fondations disponibles (des frais peuvent s'appliquer) Dalle flottante, Dalle monolithique
Code Entrepreneur H

Spécifications sur les pièces

Chambre(s) 4
Salle(s) de bain complète(s) 3
Demi Salle(s) de Bain 1
Type de garage 2 voitures (525 pi2)
Espace boni aménageable - i
Rangement boni - i
Superficie balcon et/ou perron abrité 559 pi2
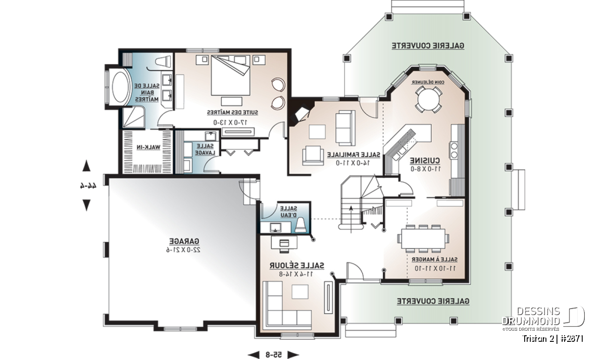
Rez-de-chaussée - Maison Farmhouse à deux étages avec suite des parents, mezzanines et vaste potentiel d’aménagement - Tristan 2
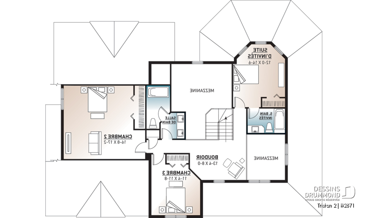
Étage - Maison Farmhouse à deux étages avec suite des parents, mezzanines et vaste potentiel d’aménagement - Tristan 2

Entrer votre code postal pour filtrer les produits disponibles dans votre région.

Fermer
${ currentTag.enterprise_name }
${ currentTag.modele }
${ currentTag.enterprise_description }
${ currentTag.description }
${ currentTag.price }
${ currentTag.label }
Fermer Éditer

Rez-de-chaussée

Étage

Vignette Rez-de-chaussée - 2871
Vignette Étage - 2871
Voir les autres versions de ce plan
Modifier ce plan : Estimation gratuite

Voir la grandeur des pièces et hauteur des plafonds

Rez-de-chaussée
Pièces Dimensions Plafond
Cuisine 12'0" x 11'0" ~ 9'0"
Coin déjeuner 11'0" x 8'0" ~ 9'0"
Salle à manger 11'10" x 11'10" ~ 9'0"
Salle de séjour 11'4" x 14'8" ~ 9'0"
Salle familiale 14'0" x 11'0" ~ 9'0"
Lingerie 5'4" x 1'4" ~ 9'0"
Salle utilitaire (buanderie +) 6'8" x 6'9" ~ 9'0"
Garage 22'0" x 21'6" ~ 10'6"
Garde-robe 2'10" x 3'0" N/D
Perron 25'10" x 6'2" N/D
Perron 37'5" x 6'2" N/D
Perron 6'2" x 29'6" N/D
Demie salle de bain ou coin toilette 7'6" x 4'4" ~ 9'0"
Suite des maîtres 17'0" x 13'0" ~ 9'0"
Étage
Pièces Dimensions Plafond
Salle de bain complète 8'9" x 12'5" ~ 8'0"
Chambre à coucher 16'8" x 17'2" ~ 8'0"
Chambre à coucher 11'4" x 11'8" ~ 8'0"
Chambre à coucher 12'0" x 14'6" ~ 8'0"
Lingerie 3'0" x 2'0" ~ 8'0"

Autres informations utiles sur ce plan

Maison Farmhouse américaine à deux étages : élégance familiale, lumière abondante et espaces pensés pour le confort

Cette maison à deux étages de style Farmhouse américaine se distingue par son charme intemporel et son sens pratique parfaitement adapté à la vie de famille. Dès l'arrivée, la grande galerie couverte qui entoure trois façades de la maison crée une atmosphère accueillante, tout en protégeant des intempéries. Ce porche généreux devient rapidement un lieu de détente où il fait bon prendre un café ou saluer les voisins.

Un accueil chaleureux et une architecture Farmhouse irrésistible

En poussant la porte, un hall d’entrée clair et dégagé donne immédiatement le ton. L’espace est soigné, lumineux et met en valeur la qualité des matériaux choisis. Le rez-de-chaussée se caractérise par des plafonds de 9 pieds, auxquels s’ajoutent des zones en mezzanine au-dessus de la salle à manger et de la salle familiale. Ce jeu de hauteurs apporte une amplitude remarquable et confère à l’ensemble une allure élégante et aérienne.

Aires de vie conviviales, cuisine lumineuse et suite des maîtres au rez-de-chaussée

La salle à manger formelle est idéale pour recevoir famille et amis lors des événements importants. À proximité, la cuisine lumineuse impressionne par son organisation efficace : un walk-in garde-manger pour maximiser le rangement, un comptoir-lunch pratique pour les repas rapides, et un coin déjeuner baigné de lumière naturelle.

Ouverte sur la salle familiale, la cuisine permet de rester au cœur des échanges. La salle familiale, quant à elle, est animée par un foyer chaleureux qui crée une ambiance enveloppante, parfaite pour les soirées d’hiver ou les moments de détente.

La suite des maîtres, située au rez-de-chaussée, offre un véritable refuge. On y retrouve un walk-in généreux et une salle de bain privée de grand format avec bain indépendant, douche séparée et meuble-lavabo double. Un salon indépendant doté d’un coin bureau complète l’étage, offrant un espace supplémentaire pour travailler ou relaxer en toute tranquillité. Une salle d’eau et une salle de lavage, placées en retrait, assurent discrétion et fonctionnalité.

Étage lumineux, mezzanines aériennes et potentiel d’aménagement au sous-sol

À l’étage, deux mezzanines surplombent les pièces principales, ajoutant un charme architectural unique et augmentant la luminosité. Trois chambres s’y trouvent, dont l’une dispose de sa propre salle de bain — un atout très apprécié pour accueillir des invités ou pour un adolescent souhaitant davantage d’intimité. Les deux autres chambres partagent une salle de bain complète avec zones séparées pour maximiser l’efficacité du matin. Un petit boudoir lumineux forme un coin lecture apaisant.

Le sous-sol non fini représente un véritable terrain de possibilités : espace gym, salle familiale, chambres additionnelles ou rangement abondant selon les besoins.

Le garage double latéral offre un accès direct à la maison, ajoutant encore à la commodité du quotidien.

Pour une version similaire munie d’un plein sous-sol, consultez le plan TRISTAN (#4871).

Éléments distinctifs

Spacieuse maison à deux étages de style Farmhouse américaine, parfaite pour les familles souhaitant allier confort et praticité.
Grande galerie couverte sur trois côtés, offrant une entrée chaleureuse et protectrice en toute saison.
Hall d’entrée dégagé qui crée une première impression soignée et lumineuse.
Le rez-de-chaussée propose des plafonds de 9 pieds, avec des hauteurs en mezzanine au-dessus de la salle à manger et de la salle familiale pour accentuer l’effet d’ouverture.
Salle à manger formelle pensée pour accueillir parents et amis lors des grandes occasions.
Cuisine conviviale dotée d’un walk-in garde-manger, d’un comptoir-lunch et d’un coin déjeuner lumineux.
Ouverte sur la salle familiale, où un foyer ajoute une ambiance chaleureuse et invitante.
La suite des maîtres, située au rez-de-chaussée, comprend un walk-in généreux et une grande salle de bain privée avec bain, douche individuelle et meuble-lavabo double.
Un salon indépendant muni d’un coin bureau offre un espace tranquille pour le travail ou la détente.
Salle d’eau et salle de lavage discrètement positionnées, à l’écart des espaces de vie.
À l’étage, deux mezzanines surplombent les pièces principales et ajoutent un charme architectural distinctif.
Trois chambres s’y trouvent, dont une avec salle de bain privée, idéale pour recevoir des invités ou répondre aux besoins d’un ado.
Les deux autres chambres partagent une salle de bain complète, avec zone lavabo séparée de la toilette et du bain.
Un petit boudoir lumineux crée un coin lecture intime et agréable.
Le sous-sol non fini permet de nombreuses possibilités d’aménagement : chambres additionnelles, salle familiale, gym maison ou espaces de rangement.
Garage double latéral offrant un accès direct à la maison, situé près d’une garde-robe pratique.
Pour une version similaire munie d’un plein sous-sol, consultez le plan TRISTAN (#4871).

Particularité(s) du plan

Foyer, Mezzanine, Terrasse abritée, Vue paronamique, Garde-manger, Suite d'invités, Salle de lavage au rez-de-chaussée, Garage latéral, Plafond à plus de 8', Suite des maîtres au rdc, Walk-in ch. maîtres, Galerie 2-3 côtés, Dinette / Coin déjeuner, Comptoir-lunch, Bureau / Salle étude, Lavabo double, Bain et douche séparés, Salle à manger formel, Boudoir / Vivoir

Style(s) architectural du plan

Champêtre, Farmhouse, Traditionnelle

Notes légales

Ce modèle est protégé par la Loi sur les Droits d'Auteur.

De plus, les illustrations présentées peuvent différer du plan détaillé que vous recevrez, car ces derniers sont régulièrement ajustés afin de respecter les normes de construction en vigueur.

Comparer
Questions

Plans similaires

  • Vue avant - MODÈLE DE BASE -  - Oakville 2
    Oakville 2
    (3861-V1)
  • Version couleur no. 5 - Vue avant -  - New cotton country 2
    New cotton country 2
    (2615-V1)
  • Version couleur no. 1 - Vue avant -  - Joachim
    Joachim
    (3605)
  • Vue avant - MODÈLE DE BASE -  - Bridge
    Bridge
    (3893)
  • Vue avant - MODÈLE DE BASE -  - Midwest 2
    Midwest 2
    (3926-V1)
  • Version couleur no. 1 - Vue avant -  - Oakville
    Oakville
    (3861)

Consultés précédemment

Version couleur no. 6 - Vue avant - Maison Farmhouse à deux étages avec suite des parents, mezzanines et vaste potentiel d’aménagement - Tristan 2

Tristan 2 (2871)

Vue avant - MODÈLE DE BASE - Plan de maison Champêtre 4 chambres, garage double, chambre des maîtres r-d-c, solarium, 2 balcons abrités - Hirondelle 2

Hirondelle 2 (2617)

Vue avant - MODÈLE DE BASE - Superbe maison à étage  avec 3 chambres, bureau, cuisine avec îlot, garage, buanderie au r-d-c  - Bourassa

Bourassa (2605)

Vue avant - MODÈLE DE BASE - Plan de maison moderne, grand garage, 2 chambres, grand cuisine avec îlot central, buanderie au rdc. - Gamelin

Gamelin (3283)

Merci pour votre commentaire! Celui-ci doit être approuvé avant d'être mis en ligne, veuillez allouer une période de 24 heures.

Erreur avec google reCaptcha! Veuillez réessayer.

Poser une question ou laissez un commentaire sur ce plan

Répondre à ce commentaire :

Veuillez cocher la case ci-haute.

Acheter ce plan

?
À partir de 2200$

Vous souhaitez apporter des modifications à ce plan?

Estimation gratuite en ligne

Besoin d'aide?

?
Contactez-nous

Venez nous voir

Nos 31 bureaux

Vous apprécierez aussi

  • Vue avant - MODÈLE DE BASE - Plan 2 étages de 4 chambres avec garage double, bureau, garde-manger, vestiaire et suite des maîtres - Nikolas 3
    Nikolas 3
    (3855-V2)
  • Version couleur no. 1 - Vue avant - Plan de grande maison 4 chambres, garage double + bureau, 2 chambres avec salle bain privée - Goldbourn
    Goldbourn
    (2615)
  • Alternative - Plan de maison Farmhouse, 3-4 chambres, chambre parents avec balcon, terrasse, bureau, foyer, buanderie au rdc - Nikolas 2
    Nikolas 2
    (3855-V1)
  • Version couleur no. 3 - Vue avant - Superbe modèle de maison 4 chambres, Farmhouse américaine, grande suite des parents au rez-de-chaussée - Tristan
    Tristan
    (4871)
  • Vue avant - MODÈLE DE BASE - 3 chambres 2 salles de bain, maison contemporaine, terrasses couvertes, suite des maîtres, garage double - Liana
    Liana
    (3882)
  • Vue avant - MODÈLE DE BASE - Plan de maison farmhouse 4 chambres, garage double, bureau à domicile & grand espace boni au-dessus du garage - Turningdale
    Turningdale
    (3830)

Pour vous assurer de bien préparer votre projet, nous vous proposons ce guide accompagnateur.

Voir le guide

Plans similaires

  • Vue avant - MODÈLE DE BASE -  - Oakville 2
    Oakville 2
    (3861-V1)
  • Version couleur no. 5 - Vue avant -  - New cotton country 2
    New cotton country 2
    (2615-V1)
  • Version couleur no. 1 - Vue avant -  - Joachim
    Joachim
    (3605)
  • Vue avant - MODÈLE DE BASE -  - Bridge
    Bridge
    (3893)
  • Vue avant - MODÈLE DE BASE -  - Midwest 2
    Midwest 2
    (3926-V1)
  • Version couleur no. 1 - Vue avant -  - Oakville
    Oakville
    (3861)

Voir plus...

Voir plus...

  • Version couleur no. 1 - Vue avant -  - Quatres Bourgeois
    Quatres Bourgeois
    (2661)
  • Version couleur no. 2 - Vue avant -  - La Prairie
    La Prairie
    (2689)
  • Version couleur no. 1 - Vue avant -  - Orsay 2
    Orsay 2
    (3616-V1)
  • Version couleur no. 2 - Vue avant -  - Cartwright
    Cartwright
    (2671)
  • Vue avant - MODÈLE DE BASE -  - Bainbridge 3
    Bainbridge 3
    (3816-V1)
  • Vue avant - MODÈLE DE BASE -  - Marseille 2
    Marseille 2
    (3846-V1)
  • Version couleur no. 6 - Vue avant -  - Rosie 3
    Rosie 3
    (2853A-V1)
  • Version couleur no. 2 - Vue avant -  - Aveyron
    Aveyron
    (3862)
  • Version couleur no. 3 - Vue avant -  - Montrose
    Montrose
    (3604)
  • Vue avant - MODÈLE DE BASE -  - Rosie 2
    Rosie 2
    (2853A)
  • Version couleur no. 1 - Vue avant -  - Hirondelle 3
    Hirondelle 3
    (2884A)
  • Vue avant - MODÈLE DE BASE -  - Marseille
    Marseille
    (3846)
  • Version couleur no. 1 - Vue avant -  - Pelusa
    Pelusa
    (3831)
  • Vue avant - MODÈLE DE BASE -  - Vertbois
    Vertbois
    (2696)
  • Alternative -  - Rosie
    Rosie
    (2853)
  • Vue avant - MODÈLE DE BASE -  - Grandbois
    Grandbois
    (3813)
  • Version couleur no. 1 - Vue avant -  - Abraham
    Abraham
    (2621)
  • Vue avant - MODÈLE DE BASE -  - Duvernay
    Duvernay
    (2641)
  • Vue avant - MODÈLE DE BASE -  - Glenhaven
    Glenhaven
    (2645)
  • Alternative -  - Lacombe
    Lacombe
    (2674)
  • Vue avant - MODÈLE DE BASE -  - Rosie 4
    Rosie 4
    (3812)
  • Vue avant - MODÈLE DE BASE -  - Rosie 5
    Rosie 5
    (3826)
  • Vue avant - MODÈLE DE BASE -  - Adonis
    Adonis
    (3833)
  • Version couleur no. 4 - Vue avant -  - Midwest
    Midwest
    (3926)

Description

Rez-de-chaussée:
Salle à manger formelle, cuisine avec coin déjeuner, salle familiale avec foyer, salle de séjour, suite chambre des maîtres avec salle de bain privée et garde-robe walk-in, salle d'eau, salle de lavage.
Étage:
Trois chambres secondaires dont l'une avec salle de bain privée, coin ordinateur, salle de bain, mezzanine.
Garage double, latéral.
Fondation: vide sanitaire. Autres types de fondation également disponibles.

Voir aussi

Recherchez votre plan Comment modifier un plan Galerie photos

Prix et
reconnaissance

best of houzz service 2024
best of houzz service 2023
best of houzz service 2022
best of houzz service 2021
best of houzz 2020
best of houzz 2019
best of houzz 2018
best of houzz 2016
best of houzz 2016 Design
best of houzz 2015

Nos Plans

  • Recherche avancée
  • Collections
  • Collaborations
  • Nouveautés
  • Récemment vendus
  • Les 100 + populaires
  • Photos & vidéos

Collaborations

Collections

Modifier un plan

Conception exclusive sur mesure

Rénover ou agrandir ma maison

Formulaires

Formulaires

  • Modifier un plan de la collection
  • Faire concevoir un plan sur mesure
  • Obtenir un plan pour rénover ou agrandir
  • Inscription au programme entrepreneur
  • Demander des informations générales
  • Parlez au président
  • Postuler pour un travail chez Dessins Drummond
  • Envoyer des photos de ma maison
  • Demandes relatives à la protection des renseignements personnels

SERVICE À LA CLIENTÈLE

Nos services

  • Estimation ($) construction
  • Forfaits de plans
  • Modification de plan
  • Plan de maison sur mesure
  • Plan de rénovation
  • Services complémentaires
  • Information sur nos plans
  • Trouver un entrepreneur
  • Programme pour entrepreneur
  • License pour dessinateurs
  • Conseils de nos experts
  • Publicisez votre entreprise sur notre site
  • Répertoire de nos annonceurs

SERVICE À LA CLIENTÈLE

  • Paiement, expédition, suivi
  • Politique de retour
  • Support technique

À propos

  • Notre histoire
  • 31 points de vente
  • Territoires disponibles
  • Engagement du meilleur plan
  • Kit média
  • Emploi
  • Blogue
  • Droits d'auteur & légal
  • Plan de site
  • Contact

Plan du site

Dessins Drummond | Votre meilleur plan

31 bureaux au Québec
1 800 567-1413

infolettre

Restez à l'affût des dernières tendances & recevez nos offres et promotions, en primeur!

Merci de votre inscription à notre cyberlettre!

Erreur google reCaptcha! Veuillez réessayer.

Copyright 2025 Dessins Drummond INC. Tous droits réservés. | Politique de vie privée

Connexion


Vous avez oublié votre mot de passe? Cliquez ici.

Créer mon compte

Voici une brève description de nos différents forfaits. Veuillez sélectionner le forfait qui vous convient. Vous pouvez modifier le forfait à l'étape subséquente, au besoin.

Plan version PDF:

Plan complet envoyé par courriel (format original du plan 18''x24'' ou 24''x36'')

5 copies de plan + PDF:

Inclut: 5 copies de plan, plan en format PDF (version réduite).

Foundation

Plusieurs options de fondation sont disponibles pour chacun de nos plans, cliquez sur « Voir prix et options » ci-bas pour les détails et coûts associés.

Type de fondation

La fondation précisée à cette ligne est incluse dans le plan que vous recevrez, dans le prix du plan ainsi que dans l'estimation du coût de construction SAUF dans le cas d'un sous-sol aménagé. La finition d'un sous-sol aménagé n'est JAMAIS incluse dans notre estimation sauf si avis contraire précisé dans la description du plan et/ou dans la section élément distinctif, sur la page du plan. Un sous-sol aménageable est un sous-sol non-fini, à finir plus tard, selon vos besoins.

Veuillez noter que plusieurs types de fondation additionnels sont disponibles, certains moyennant un frais. Vous pourrez sélectionner le type de fondation désiré, dans le bon de commande en ligne.

Si le type de fondation que vous souhaitez ne se trouve pas dans la liste des autres fondations disponibles, veuillez contacter notre service à la clientèle afin d'obtenir un estimé de notre département de modification de plan, ou simplement compléter le formulaire de demande de modification suivant : https://dessinsdrummond.com/formulaire-modification-de-plan-en-ligne et vous recevrez votre estimation gratuite dans les 2 à 4 jours ouvrables, approx..

Type de fondation

Le type de fondation précisé à cette ligne n'est pas inclus dans l'estimé des matériaux approximatif.

Veuillez noter que plusieurs types de fondation additionnels sont aussi disponibles. Vous pourrez sélectionner le type de fondation désiré, dans le bon de commande en ligne, ou nous joindre pour information.

Explication des types d'espace boni

Espace boni aménageable

L'espace boni aménageable est généralement prévu au-dessus du garage et il est accessible de la maison. Comme il est prévu aménageable, il pourra devenir un bureau, un espace buanderie, une salle de bain, un coin bibliothèque ou même une chambre additionnelle pour laquelle les propriétaires devront s'assurer d'avoir une fenêtre conforme aux normes en vigueur. De plus, la finition de cette espace boni est toujours INCLUSE dans nos estimation du coût de construction, sauf si avis contraire dans les sections « Description et/ou Éléments descriptifs » de la page du plan.

Rangement boni

Souvent localisé au-dessus du garage, le rangement boni est utilisé uniquement comme rangement et il est généralement accessible du garage via un escalier escamotable. De plus, la finition de ce rangement boni est toujours INCLUSE dans nos estimation du coût de construction, sauf si avis contraire dans les sections « Description et/ou Éléments descriptifs » de la page du plan.

Vous aimez ce plan mais souhaitez qu'il soit ajusté à vos besoins?

Pour ajouter un garage, une chambre, finir le sous-sol ou pour tout autre modification, cliquez ici afin de nous faire part de vos changements et obtenez votre soumission gratuite pour l'ajustement de votre plan.

Cliquez ici pour obtenir plus d'information sur notre service de modification de plans à nos 31 bureaux ou en ligne.

Comprendre les prix Dessins Drummond

Estimation des coûts de construction de Dessins Drummond

Maisons, chalets & multi-logements

INCLUS DANS NOS ESTIMATIONS DE COÛTS

– voir détails plus bas

  • Construction avec un entrepreneur
  • Fondation
  • Toiture
  • Revêtement et poutre décorative extérieur
  • Fenêtres
  • Balcon avant et terrasse abritée
  • Garage attaché et pièce ou rangement
  • Sous-sol fini si aménagé sur le site
  • Espace ou pièce boni intérieure
  • Plan écologique : coupe de mur éco
  • Plomberie & salle(s) de bain
  • Électricité et luminaires fixes au plafond
  • Chauffage
  • Plafonds intérieurs
  • Planchers
  • Cuisine
  • Escaliers
  • Foyer
  • Multi-logements : finition des unités

EXCLUS DE NOS ESTIMATIONS DE COÛTS

– voir détails plus bas

  • Économie auto-constructeur
  • Taxes
  • Terrain
  • Excavation
  • Garage détaché
  • Raccords aux services de la ville
  • Aménagement terrain, piscine, fleurs
  • Patio non abrité
  • Toiture de tôle
  • Cuisine extérieure
  • Mobilier et décoration intérieur et extérieur
  • Poutres décoratives intérieures
  • Luminaires non fixés au plafond
  • Système de climatisation
  • Poutres de bois décoratives intérieures
À LIRE AVANT L'ACHAT DE VOTRE PLAN:

Nos estimations de coûts sont des moyennes provinciales, et sont là pour vous donner un "approximatif" de la valeur de nos modèles, construits avec un entrepreneur. Ce faisant, ils peuvent varier de +/- 30% selon votre région, votre entrepreneur et vos choix de matériaux.

Si vous choisissez l'auto-construction, vous pourrez économiser de 10% à 30% de notre estimation selon votre implication et compétence.

Comme nous ne construisons pas, nous nous dégageons de toutes responsabilités à l'égard des estimations indiquées. De plus, prendre note que nos estimations sont modifiées sans préavis, régulièrement. Il est donc de votre responsabilité de valider auprès d'entrepreneurs de votre région en les questionnant sur ses délais de livraison et coûts de construction réels versus nos estimations ce, avant l'achat d'un plan, car ce dernier n'est ni échangeable ni remboursable.

Avec un entrepreneur

Cette mention sur notre site signifie que nos estimations sont basées sur des constructions clé-en-main, donc gérés de A à Z par des entrepreneurs compétents et qualifiés. Elles incluent et excluent les éléments prévus au tableau ci-haut. Ne pouvant prédire les choix que vous ferez avec votre entrepreneur, nous considérons qu'il utilisera des matériaux de qualité courante (pas le plus cher, pas le moins cher).

Auto-Construction

Signifie que vous gérez vous-même votre projet tout en réalisant certains travaux comme la pose de l'isolant, du gypse, du pare-vapeur et l'application de la peinture, pour n'en nommer que quelques-uns. Selon votre degré d'implication, vous pourriez sauver jusqu'à 30% du coût total de construction, mais rarement plus, à moins que vous soyez un professionnel de la construction!

PRÉCISION SUR LES INCLUSIONS ET EXCLUSIONS DE NOS ESTIMATIONS

Extérieur

Ci-bas vous retrouverez les détails de ce qui est inclus et exclus dans nos estimations, en lien avec les images extérieures telles que présentées sur notre site.

  • Fondation et terrain:

    Le type de fondation spécifié dans la section « détails techniques » sur la fiche du plan, est inclus dans notre estimation, soit sous-sol fini, rez-de-jardin, dalle, vide sanitaire, pieux vissés ou sous-sol à aménager. Par exemple, si la fondation principale indiquée sur le site est une dalle, l'estimation inclus le prix approx. d'une dalle. Si le sous-sol est aménagé avec des meubles et noms aux pièces, sa finition est incluse dans notre estimation. Il faut donc considérer que si vous souhaitez avoir un sous-sol sur une maison présentée avec une dalle, le coût sera supérieur. Pour l'option d'une dalle monolithique, certaines villes ou municipalités peuvent exiger un sceau d'ingénieur selon le code du bâtiment. Le coût pour l'obtention du sceau d'ingénieur sera à votre charge. Si vous souhaitez une fondation différente, c'est possible! Voir les détails ici! Votre terrain ainsi que le coût de l'excavation ne sont pas inclus dans nos estimations car le coût des terrains varie énormément, et plusieurs terrains particuliers requièrent, par exemple, du dynamitage, il nous est donc impossible de savoir.

  • Toiture:

    Le type de toiture et ses matériaux illustrés sont inclus : 2 versants, plat, 4 versants ou toiture complexe, ainsi que le bardeau d'asphalte. Nous n'incluons pas les toits de tôle dans nos estimations.

  • Revêtement extérieur & poutre extérieure décorative:

    Les estimations de maison incluent les revêtements tels qu'illustrés sur notre site. Les maisons modestes sont calculées avec un revêtement de clin régulier en vinyle. Pour les maisons régulières et plus complexes, nous ajoutons des montants approximatifs (au pi.ca.) : clin de fibrociment, de cèdre, maçonnerie légère ou régulière (partiel ou total), board & batten, bois, et autres. Les poutres de bois illustrées sur l'extérieure de nos maisons sont aussi incluses dans le coût, mais elles sont «capées » et non en bois massif. Il en est de même pour les portes d'entrée et portes de garage. Elles sont incluses aux estimations, mais de qualité standard. Concernant les revêtements de maçonnerie : on propose, sur plusieurs modèles, une touche de brique-pierre comme on en retrouve chez la plupart des fabricants de brique (faire attention de ne pas confondre avec de la pierre naturelle, rarement sur nos illustrations et beaucoup plus dispendieuse). NOTE : Si vous souhaitez utiliser un revêtement de maçonnerie plutôt qu'un clin comme illustré sur le plan que vous avez choisi, svp nous contacter car vous aurez besoin de faire modifier le plan en conséquence.

  • Fenêtres:

    Les fenêtres incluses aux estimations sont celles illustrées sur le site.

  • Balcon, terrasse et patio:

    Les balcons avant et latéraux, ainsi que les terrasses abritées qui sont illustrés sur nos plans, sont inclus aux coûts. Cependant, les patios non abrités ainsi que les cuisines extérieures ne sont pas inclus aux coûts, sauf si indication contraire sur le site.

  • Garage attaché à la maison:

    Le garage attaché à la maison, au jumelé ou au chalet choisi, et tel qu'illustré sur notre site, est inclus dans l'estimation. Si un garage détaché est présent sur l'image de la maison, voir sur le site pour savoir s'il est inclus au plan que vous recevrez, et si son coût est inclus dans l'estimation ou pas.

  • Pièce ou rangement boni au-dessus du garage attaché:

    Si une pièce bonie ou un rangement boni est prévue à l'étage du garage, il est inclus dans l'estimation, qu'il soit accessible par un escalier standard, escamotable ou une trappe au plafond (voir un petit rectangle sur le plancher du garage).

  • Plans Écologiques

    Pour tous les plans de notre collection écologique, l'estimation est calculée comme pour une maison normale + 10% servant à construire une coupe de mur écologique. De plus si une serre est prévue au plan, un montant de min. 20,000$ est inclus à l'estimation. Pour plus de détails, veuillez nous contacter.

Intérieur

Ci-bas vous retrouverez les détails de ce qui est inclus et exclus dans les estimations, en lien avec les images intérieures telles que présentées sur notre site.

  • Sous-sol aménagé:

    Si un sous-sol est aménagé sur notre site (présence de mobilier et titres aux différentes pièces), sa finition est incluse dans notre estimation. Conséquemment, le plan de construction que vous recevrez inclura le plan du sous-sol aménagé.

    Pareillement pour les multi-logements qui ont un sous-sol aménagé, le coût approximatif de sa finition sera inclus dans nos estimations.

  • Espace boni à l'intérieur de la maison:

    L'estimation pour la finition d'espace ou pièce boni accessible de l'intérieur de la maison est inclus dans notre coût de construction.

  • Plomberie et salle de bain(s):

    Il n'y a pas de plan de plomberie inclus au plan que vous recevrez. Cependant, les estimations reliées à l'installation d'un système de plomberie standard, ainsi que les accessoires tels éviers, douche(s) en acrylique, toilette(s), bain(s) standard(s) sont inclus.

  • Électricité & luminaires:

    Il n'y a pas de plan électrique inclus au plan que vous recevrez. Cependant, les estimations de coûts reliées à l'installation d'un système électrique standard avec plinthes électriques, ainsi que les interrupteurs muraux sont incluses. Tous les luminaires de la maison qui ne sont pas fixés au plafond sont exclus des estimations.

  • Chauffage:

    L'installation d'un système de chauffage électrique ainsi que les plinthes et gradateurs muraux sont inclus dans nos estimations.

  • Plafond et poutres:

    La hauteur de plafonds prévue à chaque étage, et précisée sur la fiche du plan, est incluse dans les estimations. Ainsi si un/des planchers prévoient un plafond cathédral ou à plus de 8' ou en pente, les estimations s'y rattachant sont incluses.

    Cependant, si des poutres ou moulures de bois ou imitation de bois sont installées dans un plafond cathédral (sur nos illustrations ou photos), elles ne sont pas incluses dans les estimations. À noter que les poutres de bois illustrées sur l'extérieure de nos maisons sont incluses dans le coût, mais elles sont «capées » et non en bois massif.

  • Planchers:

    Les revêtements aux différents planchers prévus sont : de la céramique de qualité standard à l'entrée principale, à la cuisine et à la (aux) salle(s) de bain, du bois-franc aux aires communes (salle de séjour, salle à manger) et aux chambres du rez-de-chaussée et à l'étage. Pour les sous-sols aménagés : plancher flottant partout, sauf aux salles de bain et salle de lavage qui sont prévues en céramique.

  • Cuisine:

    Les armoires incluses aux estimations sont de qualité standard. Les dessus de comptoir sont en stratifié standard, sauf pour les maisons plus haut de gamme (à plus de 500,000$ approx.), qui prévoient des comptoirs en surface solide de type quartz. Les dosserets de comptoir sont prévus en céramique moyenne de gamme. La plomberie de la cuisine ainsi que les luminaires fixes sont inclus dans les estimations.

  • Escalier:

    Les escaliers montants à l'étage sont en bois franc et ceux descendants vers le sous-sol sont en particule de bois (ou tapis).

  • Maisons jumelés | Triplex | Multilogements:

    Les estimations pour les plans de maisons jumelées, triplex et multi-logements incluent la finition de toutes les unités telle qu'aménagée sur notre site.

BESOIN D'AIDE?

Consultez l'un de nos 31 bureaux si vous souhaitez plus d'information sur nos estimations ou afin d'obtenir un prix plus précis selon vos besoins et votre région.

Pour de plus ample information vous pouvez nous appeler ou écrire par courriel: 1-800-567-1413 ou [email protected]

Estimation des coûts de construction

Estimation des coûts de construction de Dessins Drummond

Garages détachés

INCLUS DANS NOS ESTIMATIONS DE COÛTS

– voir détails plus bas

  • Construction avec un entrepreneur
  • Fondation
  • Toiture
  • Revêtements extérieurs
  • Fenêtres
  • Balcon avant et terrasse abritée
  • Murs isolés
  • Pièce ou rangement boni
  • Électricité et luminaires fixes au plafond
  • Chauffage
  • Foyer ou poêle à bois si illustré

EXCLUS DE NOS ESTIMATIONS DE COÛTS

– voir détails plus bas

  • Taxes
  • Terrain
  • Excavation au besoin
  • Aménagement terrain, piscine, fleurs
  • Patio non abrité
  • Toiture de tôle
  • Cuisine extérieure
  • Mobilier, décoration intérieur et extérieur
  • Luminaires non fixés au plafond
À LIRE AVANT L'ACHAT DE VOTRE PLAN DE GARAGE:

Nos estimations de coûts sont des moyennes provinciales, et sont là pour vous donner un "approximatif" de la valeur de nos garages, construits avec un entrepreneur. Ce faisant, ils peuvent varier de +/- 30% selon votre région, votre entrepreneur et vos choix de matériaux. Si vous choisissez l'auto-construction, vous pourrez économiser de 10% à 30% de notre estimation selon votre implication et compétence.

Si vous choisissez l'auto-construction, vous pourrez économiser de 10% à 30% de notre estimation selon votre implication et compétence.

Comme nous ne construisons pas, nous nous dégageons de toutes responsabilités à l'égard des estimations indiquées. De plus, prendre note que nos estimations sont modifiées sans préavis, régulièrement. Il est donc de votre responsabilité de valider auprès d'entrepreneurs de votre région en les questionnant sur ses délais de livraison et coûts de construction réels versus nos estimations ce, avant l'achat d'un plan, car ce dernier n'est ni échangeable ni remboursable.

Avec un entrepreneur

Cette mention sur notre site signifie que nos estimations sont basées sur des constructions clé-en-main, donc gérés de A à Z par des entrepreneurs compétents et qualifiés. Elles incluent et excluent les éléments prévus au tableau ci-haut. Ne pouvant prédire les choix que vous ferez avec votre entrepreneur, nous considérons qu'il utilisera des matériaux de qualité courante (pas le plus cher, pas le moins cher).

Auto-Construction

Signifie que vous gérez vous-même votre projet tout en réalisant certains travaux comme la pose de l'isolant, du gypse, du pare-vapeur et l'application de la peinture, pour n'en nommer que quelques-uns. Selon votre degré d'implication, vous pourriez sauver jusqu'à 30% du coût total de construction, mais rarement plus, à moins que vous soyez un professionnel de la construction!

PRÉCISION SUR LES INCLUSIONS ET EXCLUSIONS DE NOS ESTIMATIONS

Extérieur

Ci-bas vous retrouverez les détails de ce qui est inclus et exclus dans les estimations, en lien avec les images extérieures telles que présentées sur notre site.

  • Fondation et terrain:

    Le type de fondation spécifié dans la section « détails techniques » sur la fiche du plan, est inclus dans notre estimation, soit dans la majorité des cas une dalle flottante ou une dalle monolithique. Pour l'option d'une dalle monolithique, certaines villes ou municipalités peuvent exiger un sceau d'ingénieur selon le code du bâtiment. Le coût pour l'obtention du sceau d'ingénieur sera à votre charge. Si vous souhaitez une fondation différente, c'est possible! Voir les détails ici!

  • Toiture:

    Le type de toiture et ses matériaux illustrés sont inclus : 2 versants, plat, 4 versants ou toiture complexe, ainsi que le bardeau d'asphalte. Nous n'incluons pas les toits de tôle dans nos estimations.

  • Revêtement extérieur:

    Les estimations de garage incluent les revêtements tels qu'illustrés sur notre site. Concernant les revêtements de maçonnerie : on propose, sur plusieurs modèles, une touche de brique-pierre comme on en retrouve chez la plupart des fabricants de brique (faire attention de ne pas confondre avec de la pierre naturelle très rarement sur nos illustrations et beaucoup plus dispendieuse). NOTE : Si vous souhaitez utiliser un revêtement de maçonnerie plutôt qu'un clin comme illustré sur le plan que vous avez choisi, svp nous contacter car vous aurez besoin de faire modifier le plan en conséquence.

  • Fenêtres:

    Les fenêtres incluses aux estimations sont celles illustrées sur le site.

  • Balcon, terrasse abritée, appentis et patio:

    Les balcons avant et latéraux, ainsi que les terrasses abritées et les appentis qui sont illustrés sur nos plans de garage, sont inclus aux estimations. Cependant, les patios non abrités ainsi que les cuisines extérieures pouvant être illustrés ne sont pas inclus aux coûts, sauf si indication contraire sur le site.

Intérieur

Ci-bas vous retrouverez les détails de ce qui est inclus et exclus dans les estimations de nos plans de garage, tels que présentés sur notre site.

  • Pièce ou rangement boni au-dessus du garage attaché:

    Si une pièce bonie ou un rangement boni est prévue à l'étage du garage, il est inclus dans l'estimation, qu'il soit accessible par un escalier standard ou escamotable, ou simplement une trappe au plafond (petit rectangle dessiné sur le plan du garage, sur le site).

  • Électricité & luminaires:

    Il n'y a pas de plan électrique inclus au plan que vous recevrez. Cependant, les estimations de coûts reliées à l'installation d'un système électrique standard avec plinthes électriques, ainsi que les interrupteurs muraux sont incluses. Tous les luminaires de la maison qui ne sont pas fixés au plafond sont exclus des estimations.

  • Chauffage:

    L'installation d'un système de chauffage électrique ainsi que les plinthes et gradateurs muraux sont inclus dans nos coûts.

BESOIN D'AIDE?

Consultez l'un de nos 31 bureaux si vous souhaitez plus d'information sur nos estimations ou afin d'obtenir un prix plus précis selon vos besoins et votre région.

ESTIMATION DU COÛT APPROXIMATIF DES MATÉRIAUX

Les coûts approximatifs des matériaux indiqués sur notre site internet sont des moyennes provinciales qui peuvent varier jusqu'à 30% et plus selon la région, la saison de construction et vos choix de matériaux. Ils sont basés sur l'utilisation de matériaux de qualité courante, que la plupart des entrepreneurs utilisent. De plus ils peuvent changer à tout moment, sans préavis, compte tenu de l'important fluctuation des prix des matériaux, depuis 2020.

Nos estimations excluent les taxes, les raccords municipaux, les frais reliés à l'électricité, le chauffage, la main d'œuvre, le terrain, l'excavation et la fondation (précisée dans la fiche détaillée du plan choisi à la ligne « Type de fondation »).

Poser une question sur ce plan

Merci! Votre question nous a été acheminée. Nous vous reviendrons à ce sujet dans les plus brefs délais, normalement dans les prochaines 48 heures ouvrables.
Erreur avec google reCaptcha! Veuillez réessayer.





Ajouter des photos

Désolé, votre navigateur ne supporte pas l'envoi de fichier.

Pour information par téléphone: 1-800-567-1413

Conditions d'impression

Imprimer ne donne pas tous les droits! Lisez bien ce texte avant de procéder à l'impression:
En imprimant un modèle de maison, chalet ou garage ainsi que son (ses) plancher(s), vous reconnaissez avoir été informé que tous les modèles présentés sur ce site sont la propriété exclusive de Dessins Drummond et sont protégés par la loi Canadienne sur les droits d'auteur. Vous avez conscience que ces imprimés ne peuvent servir à construire ni même à obtenir un permis de construction. L'impression gratuite de ces modèles vous est offerte par Dessins Drummond dans le seul et unique but de vous permettre de modifier le plancher pour ensuite présenter le tout à une agence de Dessins Drummond dans le but de modifier le plan.

L'achat d'un plan unifamilial, multifamilial ou de garage chez Dessins Drummond est obligatoire si vous désirez construire n'importe quel de nos modèles. L'achat d'un plan vous permet de construire une seule maison; vous ne pouvez revendre votre plan ni l'offrir à quiconque de votre entourage une fois votre maison, chalet ou garage construit. Si vous désirez construire plusieurs fois la même maison, chalet ou garage, vous devez avoir obtenu une licence à cet effet. Contactez-nous pour plus de détails.

Tous les plans de Dessins Drummond ne peuvent être modifiés que par Dessins Drummond et ses agences reconnues; si vous faites modifier votre plan par une autre entreprise ou personne que Dessins Drummond, assurez-vous que cette entreprise ou personne détient une licence pour la modification de ce plan sinon, vous êtes passible de poursuite judiciaire au même titre que l'entreprise ou la personne avec qui vous avez fait affaires pour la modification ou la reproduction du plan.

Pour plus de détails, n'hésitez pas à nous contacter par courriel ou téléphone au 1-800-567-1413.

Je m'engage, par la présente, à respecter le texte ci-haut et à ne pas reproduire, modifier ou construire un modèle Dessins Drummond sans m'être procuré au préalable, un plan complet à cet effet.

Envoyer ce plan à un ami

Merci! Ce plan à été envoyé à votre ami.
Erreur avec google reCaptcha! Veuillez réessayer


Ces adresses ne seront pas utilisées à des fins promotionelles.

Vous pouvez éditer ce message: 257 caractères disponibles