Connexion
À partir de 1275$
Le modèle North (#6128) est un plan de maison à étage avec garage qui séduit dès le premier regard par son style champêtre revisité et ses matériaux chaleureux et intemporels. Conçu pour offrir un cadre de vie lumineux et apaisant, il propose 1156 pi.ca. au rez-de-chaussée et 666 pi.ca. à l’étage, pour une superficie bien pensée qui maximise chaque espace. Ce plan est particulièrement adapté aux terrains offrant une vue sur l’eau ou en pleine nature, où la lumière naturelle et le paysage deviennent partie intégrante du quotidien. Le garage intégré ajoute à la fois fonctionnalité et confort, en facilitant l’accès à la maison en toute saison.
Dès l’entrée, l’impression d’espace se fait sentir grâce à une ouverture spectaculaire sur deux étages, laissant circuler la lumière avec élégance. Un mobilier intégré y est prévu afin d’offrir un espace de rangement pratique et esthétique pour les manteaux et accessoires. L’aire de vie principale s’organise autour d’une cuisine conviviale avec îlot central et garde-manger fonctionnel, parfaite pour recevoir et partager des moments en famille. La salle à manger, aménagée avec une banquette, profite d’une luminosité exceptionnelle qui met en valeur chaque moment de la journée.
La salle de séjour, ouverte sur deux étages, est sans contredit le cœur de la maison. Sa fenestration abondante crée un lien direct avec l’extérieur, tout en inondant l’espace de lumière naturelle. Le mobilier intégré ajoute à la fois fonctionnalité et cachet, créant un espace aussi pratique qu’élégant.
Un espace de vie signé STÛV
Le plan North (#6128) fait partie de la collection développée en collaboration avec STÛV, une référence en matière de foyers haut de gamme. Au cœur du salon, le foyer à bois STÛV s21 s’impose comme un véritable élément architectural. Plus qu’un simple point de chaleur, il devient une pièce maîtresse du design, apportant une ambiance chaleureuse et contemporaine à l’espace de vie. Son intégration a été soigneusement pensée pour maximiser à la fois le confort et l’esthétique, tout en créant un lieu de rassemblement naturel dans la maison.
Au rez-de-chaussée, la chambre principale offre un espace intime et confortable, avec une salle de bain complète comprenant bain et douche séparés. Un coin laveuse-sécheuse est également aménagé à proximité pour un maximum de fonctionnalité au quotidien.
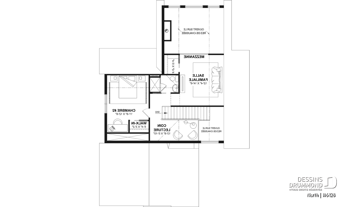
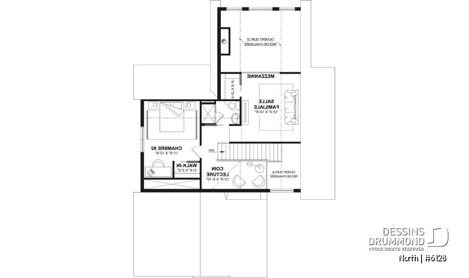
À l’étage, une grande chambre secondaire se trouve à proximité d’une salle de douche, idéale pour accueillir famille ou invités. Une salle familiale avec mezzanine ouverte sur le salon crée un espace polyvalent, pouvant également être transformé en troisième chambre selon vos besoins. Un charmant coin lecture complète cet étage, invitant à la détente dans un cadre paisible.
Enfin, la fondation prévue sur dalle flottante peut être adaptée à d’autres types de fondation selon votre terrain. Le plan North (#6128) propose ainsi une conception équilibrée, lumineuse et résolument accueillante, pensée pour profiter pleinement de son environnement.
++++++++++
Bientôt, il sera également possible de vivre pleinement l’expérience du modèle North (#6128) grâce à un chalet disponible à la location en collaboration avec Location Authentik. Cette opportunité unique vous permettra de découvrir concrètement le confort, la luminosité et l’ambiance chaleureuse de ce plan en immersion, au cœur d’un environnement naturel soigneusement choisi.
Plan de maison à étage avec garage, de style champêtre aux matériaux chaleureux et intemporels.
Garage simple avec accès à la maison, à proximité du meuble intégré pour rangement.
Entrée principale ouverte sur deux étages offrant une belle sensation d’espace et de lumière.
Mobilier intégré à l’entrée pour un rangement pratique et élégant des manteaux.
Cuisine conviviale avec îlot central et garde-manger fonctionnel.
Salle à manger avec banquette, baignée d’une magnifique lumière naturelle.
Salle de séjour ouverte sur deux étages, avec fenestration abondante, agrémentée d’un *foyer et de mobilier intégré.
*Foyer à bois suggéré : STÛV s21.
Chambre principale au rez-de-chaussée avec salle de bain comprenant bain et douche séparés.
Coin laveuse-sécheuse aménagé à proximité de la chambre principale pour plus de confort.
Grande chambre secondaire à l’étage, située près d’une salle de douche.
Salle familiale avec mezzanine ouverte sur le salon du rez-de-chaussée, pouvant aussi être convertie en chambre #3.
Un charmant coin lecture est aménagé à l’étage pour des moments de détente.
Fondation prévue sur dalle flottante, avec possibilité d’adapter à d’autres types de fondation.
Plafond à plus de 8', Entrée ouverte sur 2 étages, Banquette, Suite des maîtres au rdc, Ilôt, Aire ouverte, Bain et douche séparés, Garde-manger, Walk-in ch. maîtres, Boudoir / Vivoir, Foyer, Tablettes, Salle de lavage au rez-de-chaussée, Vue paronamique, Meuble(s) encastré(s), Plafond en pente
Champêtre, En forme de L, Farmhouse moderne, Scandinave, Chalet, Chalet de ski, Moderne rustique, Vacances, bordure de lac, Montagne, Nordique, Nordique Moderne, Transitionnel
Les s21 sont des foyers à bois décoratifs qui possèdent de très grandes chambres de combustion et un système de convection pour réchauffer les espaces rapidement. Hybrides, ils allient ambiance et performance. *Le plan peut nécessiter des modifications
Les s21 sont des foyers à bois décoratifs qui possèdent de très grandes chambres de combustion et un système de convection pour réchauffer les espaces rapidement. Hybrides, ils allient ambiance et performance. *Le plan peut nécessiter des modifications
Bain autoportant symétrique à l'allure élancée possédant deux dossiers surélevés | Fabriqué au Québec
Bain autoportant symétrique à l'allure élancée possédant deux dossiers surélevés | Fabriqué au Québec
Bain autoportant symétrique à l'allure élancée possédant deux dossiers surélevés | Fabriqué au Québec