Vue avant - MODÈLE DE BASE - Modèle de maison style chalet de ski avec plafond cathédrale et vue sur la montagne ou plan d'eau - Naples 2

Vue avant - MODÈLE DE BASE

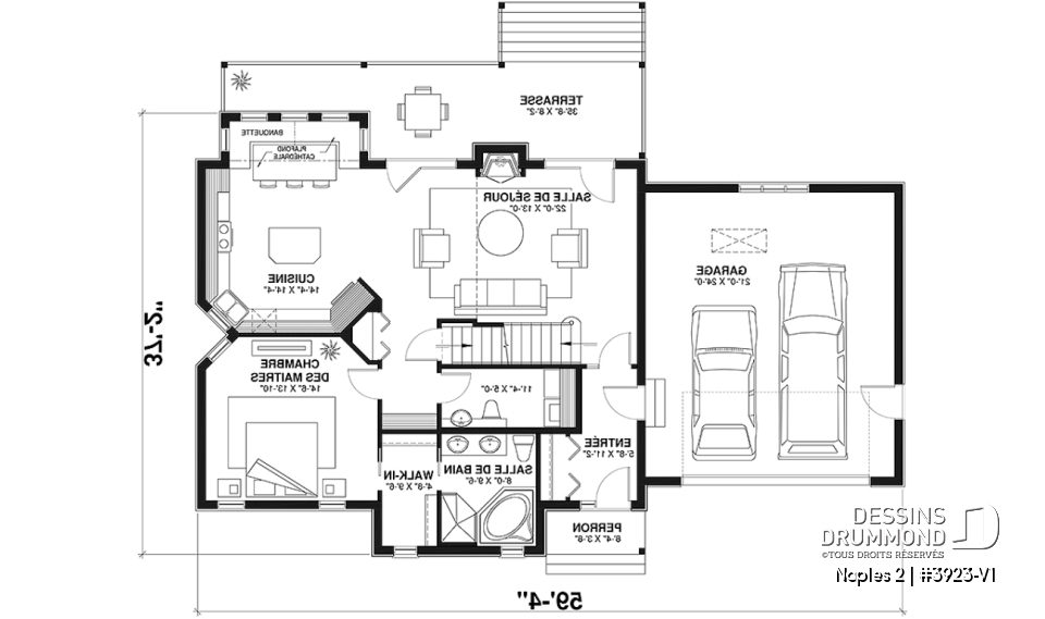
Rez-de-chaussée - Modèle de maison style chalet de ski avec plafond cathédrale et vue sur la montagne ou plan d'eau - Naples 2

Rez-de-chaussée

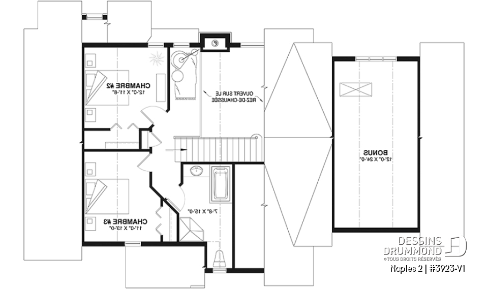
Étage - Modèle de maison style chalet de ski avec plafond cathédrale et vue sur la montagne ou plan d'eau - Naples 2

Étage

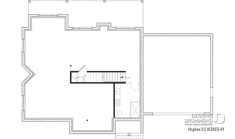
Sous-sol - Modèle de maison style chalet de ski avec plafond cathédrale et vue sur la montagne ou plan d'eau - Naples 2

Sous-sol

Vue arrière - MODÈLE DE BASE - Naples 2

Vue arrière - MODÈLE DE BASE

Vue intérieure - Naples 2

Vue intérieure

Naples 2 Plan de maison 3923-V1

Modèle de maison style chalet de ski avec plafond cathédrale et vue sur la montagne ou plan d'eau

À partir de

1680$

Fiche technique sommaire Plan #3923-V1
Estimation ($) 631,908$
Surface habitable 1770 pi² Chambre 3
Salle de Bain 2 Salle d'eau 1
Fondation incluse Sous-sol aménageable Garage 2 voitures
Largeur 59'4" Profondeur 37'4"

Besoin d’aide ?

Nos experts vous guident dans votre projet grâce à plus de 30 bureaux au Québec.

Joignez-nous

Consultez notre guide utilisateur

Un outil conçu pour vous simplifier la vie.

Ouvrir le guide

Besoin d’une assurance habitation ?

Pour obtenir votre prix, c’est juste ici

Obtenir une soumission Advertisement

Les photos de cette maison peuvent différer du plan d'origine, duquel elles proviennent. Pour toute modification, veuillez contacter l’un de nos 30 bureaux.

Détails supplémentaires

Estimation

Spécifications générales

Surface aménagée totale
1770 pi²
Rez-de-chaussée
1205 pi²
Étage
565 pi²
Sous-sol
1205 pi²
Largeur
59'4"
Profondeur
37'4"
Hauteur dessus fondations au faite
27'7"
Murs extérieurs
2 X 6
Sous-sol aménageable
Autres fondations disponibles (des frais peuvent s'appliquer)
Vide sanitaire, Dalle monolithique
Code Entrepreneur
D

Spécifications sur les pièces

Chambre(s)
3
Salle(s) de bain complète(s)
2
Demi Salle(s) de Bain
1
Type de garage
2 voitures (549 pi²)
321 pi²
Superficie balcon et/ou perron abrité
26 pi²

Rez-de-chaussée

Pièces
Dimensions
Plafond
Perron
8'4" x 3'8"
N/D
Terrasse
35'6" x 8'0"
N/D
Garage
21'0" x 24'0"
~ 10'6"
Cuisine/salle à manger
14'4" x 17'10"
~ 9'0"
Salle de séjour
22'0" x 13'0"
~ 9'0"
Entrée ou vestibule
5'8" x 11'2"
~ 9'0"
Suite des maîtres
14'4" x 13'10"
~ 9'0"
Lingerie
4'8" x 1'4"
N/D
Demie salle de bain ou coin toilette
11'4" x 5'0"
~ 9'0"

Étage

Pièces
Dimensions
Plafond
Salle de bain complète
7'8" x 15'2"
~ 8'0"
Chambre à coucher
12'0" x 11'8"
~ 8'0"
Chambre à coucher
11'0" x 13'0"
~ 8'0"
Coin lecture/ordinateur
4'6" x 13'0"
~ 8'0"
Lingerie
1'4" x 2'8"
~ 8'0"
Rangement boni
12'0" x 24'0"
~ 7'8"

Sous-sol

Plan de maison style chalet de ski – Lumière, confort et vue sur la montagne

Ce magnifique plan de maison de style chalet de ski combine charme rustique et design contemporain. Parfait pour un terrain en pente ou un emplacement avec vue sur la montagne, ce modèle de chalet québécois séduit par sa lumière naturelle abondante et son atmosphère chaleureuse en toutes saisons.

Dès l’entrée, on remarque les plafonds de 9 pieds qui donnent une belle impression d’espace. Le salon à plafond cathédrale attire immédiatement le regard grâce à ses grandes fenêtres qui laissent entrer la lumière du sud et révèlent le paysage environnant. Au centre, un foyer bien positionné réchauffe autant l’ambiance que les soirées d’hiver après une journée de ski ou de randonnée.

La cuisine fonctionnelle et conviviale, avec son espace repas en banquette, invite à partager de bons repas en famille ou entre amis. Le tout s’ouvre sur une salle à manger lumineuse et un espace de vie à aire ouverte, parfait pour admirer la nature tout en profitant du confort intérieur.

La suite des maîtres, située au rez-de-chaussée, offre intimité et confort avec sa salle de bain privée et son walk-in spacieux. Toujours au même niveau, une pièce combinée salle d’eau et buanderie rend le quotidien encore plus pratique.

À l’étage, deux belles chambres profitent d’une salle de bain complète avec bain et douche séparés. Un coin lecture dans la mezzanine offre un refuge paisible, idéal pour profiter de la vue ou d’un bon livre.

Le sous-sol non fini permet une personnalisation complète selon vos besoins — salle familiale, chambre d’amis ou espace d’entraînement. Quant au garage double, il comprend un rangement ingénieux accessible par trappe au plafond, parfait pour skis, valises ou décorations saisonnières.

Ce chalet de montagne moderne séduit par son équilibre parfait entre design, fonctionnalité et beauté naturelle. Que ce soit pour une résidence principale ou un refuge en montagne, il promet un mode de vie chaleureux, lumineux et inspirant au cœur de la nature québécoise.

Éléments distinctifs

Plan style chalet de ski, parfait pour la montagne.
Superbe lumière naturelle à l’arrière de la maison.
Idéal pour un terrain avec vue.
Plafond de 9’ au rez-de-chaussée et plafond cathédrale au salon.
Cuisine conviviale avec coin repas en banquette.
Foyer central visible de la cuisine et du salon.
Suite des maîtres au rez-de-chaussée avec salle de bain privée et walk-in.
Salle d’eau et salle de lavage combinées au rez-de-chaussée.
Deux chambres à l’étage se partagent une salle de bain complète avec bain et douche séparés.
Espace lecture dans la mezzanine.
Sous-sol non fini à aménager selon vos besoins.
Garage double avec rangement accessible par trappe au plafond.

Particularité(s) du plan

Mezzanine, Foyer, Suite des maîtres au rdc, Walk-in ch. maîtres, Salle de lavage au rez-de-chaussée, Dinette / Coin déjeuner, Plafond cathédrale, Plafond en pente, Aire ouverte, Banquette, Bain et douche séparés, Lavabo double, Coin bureau

Style(s) architectural du plan

Montagne, Vacances, bordure de lac, Nordique, Chalet de ski, Rustique, Américain, A-Frame, Champêtre, Moderne, Moderne rustique, Transitionnel, Chalet

Maibec
Maibec
Moderne
À partir de 7,00$/pi².

Lambris de bois véritable (Ambre Algonquin)

Maibec
Maibec
Moderne
À partir de 6,25$/pi².

Bardeau de cèdre blanc (Cari doré)

Armoires Cuisines Action
Armoires Cuisines Action
Cuisines et salles de bain sur mesure, pensées et fabriquées au Québec depuis 1989.

Prenez rendez-vous dès aujourd’hui avec l’un de nos designers-cuisinistes et donnez vie à votre projet !

Armoires Cuisines Action
Armoires Cuisines Action
Cuisines et salles de bain sur mesure, pensées et fabriquées au Québec depuis 1989.

Prenez rendez-vous dès aujourd’hui avec l’un de nos designers-cuisinistes et donnez vie à votre projet !

Plans similaires
Logo Dessins Drummond image Dessins Drummond
Le modèle Naples 2 est protégé par la loi sur les droits d'auteur.

Les illustrations présentées peuvent différer du plan détaillé que vous recevrez, car ces derniers sont régulièrement ajustés afin de respecter les normes de construction en vigueur.

En savoir plus

Une question ou un commentaire sur ce plan ?

Information de contact

Votre demande

Ajouter vos images ou photos

Pour ajouter une ou des photos, veuillez cliquer ou glisser vos fichiers dans la zone ci-bas. Vous pouvez ajouter jusqu'à huit photos JPG ou JPEG. Cette opération n'est pas obligatoire.

Désolé, votre navigateur ne supporte pas l'envoi de fichier.