Connexion
À partir de 1515$
Les photos de cette maison peuvent différer du plan d'origine, duquel elles proviennent. Pour toute modification, veuillez contacter l’un de nos 30 bureaux.
Le plan de maison Kelowna 2 (2724-V1) séduit par son cachet rustique champêtre, où se marient avec élégance chaleur, caractère et confort contemporain. Conçu pour répondre aux besoins des familles modernes, ce modèle propose une architecture accueillante et un aménagement intérieur réfléchi, favorisant à la fois la convivialité et la fonctionnalité.
Dès l’entrée, on remarque les plafonds de 9 pieds sur l’ensemble du rez-de-chaussée, qui accentuent la sensation d’espace et de luminosité. Le garage simple, judicieusement relié au vestiaire et au garde-manger, facilite l’organisation du quotidien, particulièrement lors des retours à la maison avec les emplettes.
Le rez-de-chaussée comprend également un bureau compact et fonctionnel, aménagé pour accueillir deux postes de travail, un atout indéniable pour le télétravail ou les devoirs des enfants. La salle de séjour, chaleureuse et conviviale, est mise en valeur par un foyer central, créant une ambiance parfaite pour les soirées en famille ou entre amis.
La cuisine généreuse et ouverte est le cœur de la maison. Dotée d’un grand îlot, d’un garde-manger pratique et d’un accès fluide à la salle à manger, elle favorise les échanges et les moments partagés. À proximité, une salle d’eau pour les invités, discrètement située près de l’entrée avant, ajoute au confort du rez-de-chaussée.
La suite des parents, spacieuse et intime, se distingue par ses deux walk-ins et sa salle de bain privée complète, offrant un véritable espace de détente. La salle de lavage du rez-de-chaussée, intelligemment conçue, bénéficie d’une chute à linge provenant de l’un des walk-ins, un détail pratique très apprécié au quotidien.
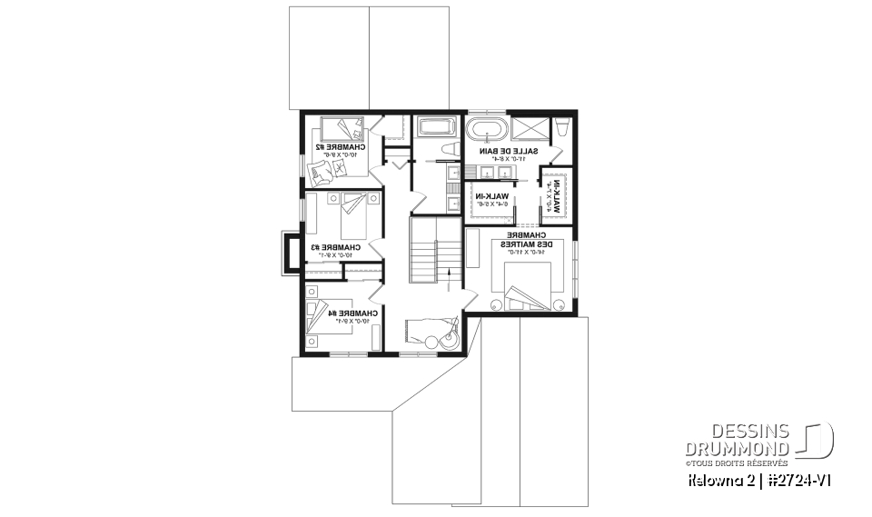
À l’étage, trois chambres supplémentaires se partagent une salle de bain complète, tandis qu’un coin lecture ou boudoir propose un espace calme, idéal pour la détente, la lecture ou le travail.
À l’extérieur, la terrasse arrière abritée avec plafond cathédrale prolonge les espaces de vie et permet de profiter pleinement de l’extérieur, peu importe la saison.
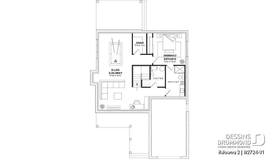
Le sous-sol non fini, inclus au plan de base, offre un excellent potentiel d’aménagement futur. *En option, il est possible d’y ajouter une cinquième chambre avec accès direct à une salle de douche, ainsi qu’une grande salle familiale, parfaite pour les loisirs ou recevoir des invités.
Polyvalent, chaleureux et évolutif, le Kelowna 2 (2724-V1) est un plan de maison qui s’adapte avec élégance aux besoins d’aujourd’hui… et de demain.
---
*Si vous souhaitez acheter le plan du sous-sol aménagé, tel que présenté sur la page de ce plan, veuillez sélectionner cette option dans le panier d'achat, dans la section "Sélectionner votre fondation". Si vous ne sélectionnez pas cette option, vous recevrez le sous-sol non fini, sans frais additionnel.
Maison au cachet rustique champêtre, alliant chaleur, caractère et confort contemporain.
Plafonds de 9 pi sur l’ensemble du rez-de-chaussée, accentuant la sensation d’espace.
Garage simple offrant un accès direct au vestiaire et au garde-manger, pour un quotidien bien organisé.
Bureau compact et fonctionnel, aménagé pour deux postes de travail, idéal pour le télétravail.
Salle de séjour conviviale avec foyer central, parfaite pour les soirées en famille.
Cuisine généreuse et ouverte, dotée d’un grand îlot, d’un garde-manger pratique et ouverte sur la salle à manger.
Salle de lavage bien pensée, avec chute à linge provenant de l’un des walk-ins de la suite des parents.
Salle d’eau pour invités, discrètement située près de l’entrée avant.
Suite des parents spacieuse, comprenant deux walk-ins et une salle de bain privée complète.
Trois chambres supplémentaires à l’étage, se partageant une salle de bain complète.
Coin lecture ou boudoir à l’étage, parfait pour un espace détente ou travail calme.
Terrasse arrière abritée avec plafond cathédrale, idéale pour profiter de l’extérieur en toute saison.
Sous-sol non fini inclus au plan de base, offrant un excellent potentiel d’aménagement futur.
---
*Option sous-sol aménagé :
Ajout d’une cinquième chambre avec accès direct à la salle de douche.
Grande salle familiale, idéale pour les loisirs et les invités.
---
*Si vous souhaitez acheter le plan du sous-sol aménagé, tel que présenté sur la page de ce plan, veuillez sélectionner cette option dans le panier d'achat, dans la section "Sélectionner votre fondation". Si vous ne sélectionnez pas cette option, vous recevrez le sous-sol non fini, sans frais additionnel.
Bureau / Salle étude, Coin bureau, Chute à linge, Galerie 2-3 côtés, Garde-manger, Suite d'invités, Walk-in double ch. maîtres, Suite des maîtres à l'étage, Salle de lavage au rez-de-chaussée, Vestiaire, Foyer, Ilôt, Terrasse abritée, Plafond à plus de 8', Bain et douche séparés, Boudoir / Vivoir, Lavabo double, Meuble(s) encastré(s), Banquette, Tablettes, Aire ouverte, Auto-Construction
Porte Masonite 151, 2 panneaux peinturée
Porte Masonite 151, 2 panneaux peinturée
Porte Masonite 151, 2 panneaux peinturée