Connexion
À partir de 1450$
Les photos de cette maison peuvent différer du plan d'origine, duquel elles proviennent. Pour toute modification, veuillez contacter l’un de nos 30 bureaux.
Conçu dans la même pensée que les modèles 2837, 2837A et 3804 que vous êtes en mesure de voir sur http://www.dessinsdrummond.com/,
ce modèle-ci est encore plus confortable avec tout près de 3000 pi2 de surface habitable et un garage triple au lieu d’un garage double. Par contre, à la décharge de ses modèles similaires, ce 3832 ne propose pas d’espace boni au-dessus du garage comme ceux-ci le font quasiment tous.
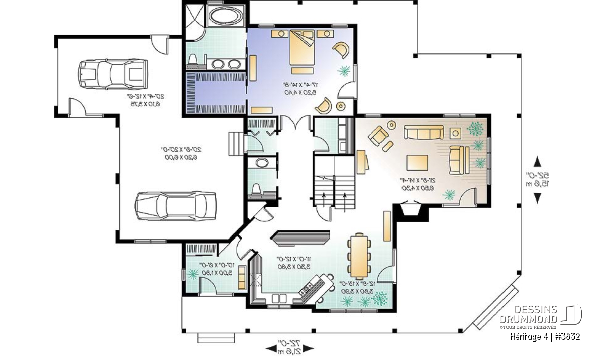
À l’intérieur, ce confort se traduit par la présence d’une suite des maîtres au rez-de-chaussée avec grande garde-robe de type « walk-in » et salle de bain fort bien organisée. Il en va aussi, et comme mentionné précédemment, de la présence d’une troisième porte de garage et avec toute la souplesse que cela procure quant à l’usage de l’espace à des fins autres que celles uniquement réservées au garage.
À l’étage, on retrouve, à quelques détails près, le même aménagement que pour le modèle 2837, dont celui-ci origine, alors que la suite des maîtres devient ici la suite d’invités et avec tout le confort que cela comporte comme une salle de bain privée par exemple. On remarque aussi deux belles chambres secondaires avec accès à une salle de bain commune et bien organisée avec une séparation de l’espace vanité du regroupement de la douche, de la toilette et du bain. Sans oublier, cette magnifique salle de séjour avec foyer et accès à la terrasse de l’étage pour encore plus de confort et pour la possibilité d’aménager une 5è chambre.
Plan de maison champêtre, idéale pour terrain avec vue.
Plafonds de 9 pieds au rez-de-chaussée pour une ambiance spacieuse et raffinée.
Vestibule accueillant qui mène vers une cuisine lumineuse avec comptoir-lunch convivial.
Salle à manger parfaitement intégrée pour recevoir famille et amis en toute simplicité.
Vaste salle familiale dotée d’un foyer chaleureux et d’un accès direct à la terrasse couverte.
Suite des maîtres au rez-de-chaussée, avec walk-in généreux et salle de bain privée élégante.
Buanderie pratique et salle d’eau bien situées pour une vie quotidienne plus harmonieuse.
À l’étage, une suite d’invités avec walk-in et salle de bain assure confort et intimité.
Deux chambres secondaires et une salle de bain complète complètent parfaitement l’étage.
Une superbe salle de séjour avec foyer offre un accès direct à une terrasse en hauteur.
Garage triple offrant toute la place nécessaire pour véhicules, rangement et loisirs.
Sous-sol non fini à aménager selon vos besoins, avec autres types de fondations disponibles.
Foyer, Suite des maîtres à l'étage, Suite d'invités, Garage latéral, Salle de lavage au rez-de-chaussée, Vue paronamique, Comptoir-lunch, Plafond à plus de 8', Terrasse abritée, Galerie 2-3 côtés, Balcon à l'étage, Walk-in ch. maîtres, Vestiaire, Boudoir / Vivoir, Bain et douche séparés, Lavabo double, Garage spacieux, Suite des maîtres au rdc, Salle de bain communicante
Champêtre, Farmhouse, Traditionnelle, Vacances, bordure de lac, Nordique, Américain, Cape Cod, Chalet, Farmhouse moderne