Vue avant - MODÈLE DE BASE - Maison nordique moderne avec plafond cathédrale, grande mezzanine et lumière naturelle abondante - Hanout

Vue avant - MODÈLE DE BASE

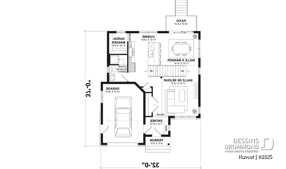
Rez-de-chaussée - Maison nordique moderne avec plafond cathédrale, grande mezzanine et lumière naturelle abondante - Hanout

Rez-de-chaussée

Étage - Maison nordique moderne avec plafond cathédrale, grande mezzanine et lumière naturelle abondante - Hanout

Étage

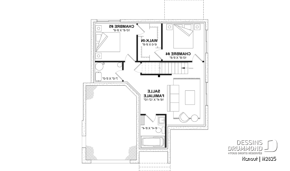
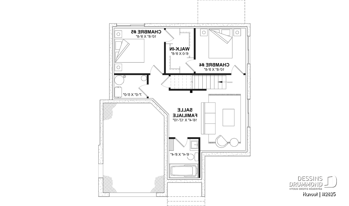
Sous-sol - Maison nordique moderne avec plafond cathédrale, grande mezzanine et lumière naturelle abondante - Hanout

Sous-sol

Élévation arrière - Hanout

Élévation arrière

Version couleur no. 1 - Vue avant - Hanout

Version couleur no. 1 - Vue avant

Hanout Plan de maison 2825

Maison nordique moderne avec plafond cathédrale, grande mezzanine et lumière naturelle abondante

À partir de

1855$

Fiche technique sommaire Plan #2825
Estimation ($) 433,719$
Surface habitable 2288 pi² Chambre 3, 4, 5
Salle de Bain 2 Salle d'eau 1
Fondation incluse Sous-sol aménagé Garage 1 voiture
Largeur 32'0" Profondeur 37'0"

Besoin d’aide ?

Nos experts vous guident dans votre projet grâce à plus de 30 bureaux au Québec.

Joignez-nous

Consultez notre guide utilisateur

Un outil conçu pour vous simplifier la vie.

Ouvrir le guide

Besoin d’une assurance habitation ?

Pour obtenir votre prix, c’est juste ici

Obtenir une soumission

Les photos de cette maison peuvent différer du plan d'origine, duquel elles proviennent. Pour toute modification, veuillez contacter l’un de nos 30 bureaux.

Détails supplémentaires

Estimation

Spécifications générales

Surface aménagée totale
2288 pi²
Rez-de-chaussée
771 pi²
Étage
746 pi²
Sous-sol
771 pi²
Largeur
32'0"
Profondeur
37'0"
Hauteur dessus fondations au faite
30'2"
Murs extérieurs
2 X 6
Murs extérieurs
2 X 6
Autres fondations disponibles (des frais peuvent s'appliquer)
Sous-sol aménageable, Dalle flottante, Vide sanitaire, Dalle monolithique
Code Entrepreneur
F

Spécifications sur les pièces

Chambre(s)
3, 4, 5
Salle(s) de bain complète(s)
2
Demi Salle(s) de Bain
1
Type de garage
1 voiture (295 pi²)
Superficie balcon et/ou perron abrité
24 pi²

Rez-de-chaussée

Pièces
Dimensions
Plafond
Cuisine
11'0" x 12'6"
~ 8'0"
Garde-manger
5'10" x 6'8"
~ 8'0"
Salle à manger
11'6" x 10'4"
~ 8'0"
Salle de séjour
11'8" x 12'8"
~ 17'2"
Entrée ou vestibule
7'4" x 6'0"
~ 8'0"
Garage
13'0" x 19'0"
~ 9'8"
Perron abrité
8'0" x 3'0"
~ 7'10"
Patio
10'0" x 5'0"
N/D
Coin toilette/lavabo
5'10" x 5'4"
~ 8'0"
Coin laveuse/sécheuse
3'0" x 5'6"
~ 8'0"
Lingerie
2'0" x 1'5"
~ 8'0"

Étage

Pièces
Dimensions
Plafond
Salle de bain complète
10'0" x 8'4"
~ 8'0"
Douche
5'0" x 3'0"
N/D
Lingerie
1'8" x 1'4"
N/D
Chambre à coucher
13'0" x 13'0"
~ 8'0"
Chambre à coucher
11'0" x 10'0"
~ 8'0"
Walk-in
4'8" x 10'0"
~ 8'0"
Chambre à coucher
10'0" x 10'0"
~ 8'0"

Sous-sol

Pièces
Dimensions
Plafond
Chambre à coucher
10'8" x 9'8"
~ 8'0"
Walk-in
6'0" x 9'8"
~ 8'0"
Chambre à coucher
10'8" x 9'8"
~ 8'0"
Walk-in
6'0" x 9'8"
~ 8'0"
Pièce de mécanique
7'0" x 5'0"
~ 8'0"
Salle familiale
16'4" x 12'10"
~ 8'0"
Salle de bain
6'4" x 8'4"
~ 8'0"
Lingerie
2'6" x 1'0"
N/D

Maison nordique moderne à plafond cathédrale et mezzanine lumineuse

Cette maison nordique moderne à deux étages séduit au premier regard par son allure épurée et son architecture intemporelle. Sa silhouette élégante, ponctuée d’un garage intégré et d’un perron avant couvert, combine à merveille esthétique et fonctionnalité. Chaque détail de son design a été pensé pour offrir un espace de vie aussi accueillant que pratique, parfait pour les familles d’aujourd’hui.

Dès l’entrée, le ton est donné : un vestibule bien organisé, accessible par la porte principale ou le garage, offre un banc pratique et une grande garde-robe. La circulation fluide mène vers un salon impressionnant, dominé par un plafond cathédrale de plus de 17 pieds. Cette hauteur crée une atmosphère ouverte et lumineuse, amplifiée par une jolie arche séparant l’entrée du salon.

Le secteur cuisine et salle à manger baigne dans la lumière naturelle. La cuisine, conviviale et fonctionnelle, dispose d’un grand garde-manger de 5’10’’ x 6’8’’ et d’un comptoir-lunch parfait pour cuisiner tout en échangeant avec la famille ou les invités. En retrait, une salle d’eau avec coin laveuse-sécheuse superposées ajoute au confort du quotidien.

À l’étage, la mezzanine surplombe le rez-de-chaussée, apportant une belle impression d’ouverture et de volume. Trois chambres spacieuses et une salle de bain complète — avec double lavabo, bain et douche séparés — composent l’espace nuit, alliant intimité et style.

Le sous-sol entièrement aménagé ajoute un potentiel immense : deux chambres reliées par un walk-in commun, une salle familiale idéale pour les enfants, une salle de bain supplémentaire et une salle mécanique bien pensée.

Mariage parfait entre design nordique, lumière naturelle et espaces fonctionnels, cette maison offre un cadre de vie à la fois moderne, chaleureux et durable — fidèle à la signature Dessins Drummond.

Éléments distinctifs

Maison nordique moderne à deux étages avec garage intégré.
Perron avant couvert, idéal pour les jours de pluie ou de neige.
Entrée principale et accès par le garage, avec banc pratique et grande garde-robe pour les manteaux.
Jolie arche au plafond entre le vestibule et le salon.
Plafond cathédral de plus de 17 pieds au salon, offrant une ambiance spacieuse et lumineuse.
Cuisine fonctionnelle avec grand garde-manger de 5'10" x 6'8" et comptoir-lunch convivial pour cuisiner et recevoir.
Espace cuisine et salle à manger baigné de lumière naturelle.
Salle d’eau discrète, équipée d’un coin laveuse-sécheuse superposé.
Mezzanine à l’étage apportant volume et ouverture sur le rez-de-chaussée.
Trois chambres de bons formats à l’étage, idéales pour la vie familiale.
Salle de bain complète avec deux lavabos, bain et douche séparés.

Sous-sol entièrement aménagé.
Deux chambres reliées par un grand walk-in.
Salle familiale ou espace jeux parfait pour les enfants.
Salle de bain supplémentaire et salle mécanique.
Garage relié directement à l’entrée principale, à proximité de la garde-robe.







Particularité(s) du plan

Mezzanine, Salle de lavage au rez-de-chaussée, Comptoir-lunch, Walk-in ch. maîtres, Garde-manger, Vue paronamique, Bain dans la douche, Lavabo double, Plafond cathédrale, Banquette, Arche

Style(s) architectural du plan

Nordique Moderne, Nordique, Traditionnelle, Champêtre, Moderne rustique

Plans similaires
Logo Dessins Drummond image Dessins Drummond
Le modèle Hanout est protégé par la loi sur les droits d'auteur.

Les illustrations présentées peuvent différer du plan détaillé que vous recevrez, car ces derniers sont régulièrement ajustés afin de respecter les normes de construction en vigueur.

En savoir plus

Une question ou un commentaire sur ce plan ?

Information de contact

Votre demande

Ajouter vos images ou photos

Pour ajouter une ou des photos, veuillez cliquer ou glisser vos fichiers dans la zone ci-bas. Vous pouvez ajouter jusqu'à huit photos JPG ou JPEG. Cette opération n'est pas obligatoire.

Désolé, votre navigateur ne supporte pas l'envoi de fichier.