Connexion
À partir de 1515$
.
Maison d'inspiration mid-century, proposant 3 aménagements de plancher bien différents!
Une abri d'auto pouvant accueillir 2+ voitures est présente sur dans toutes les options.
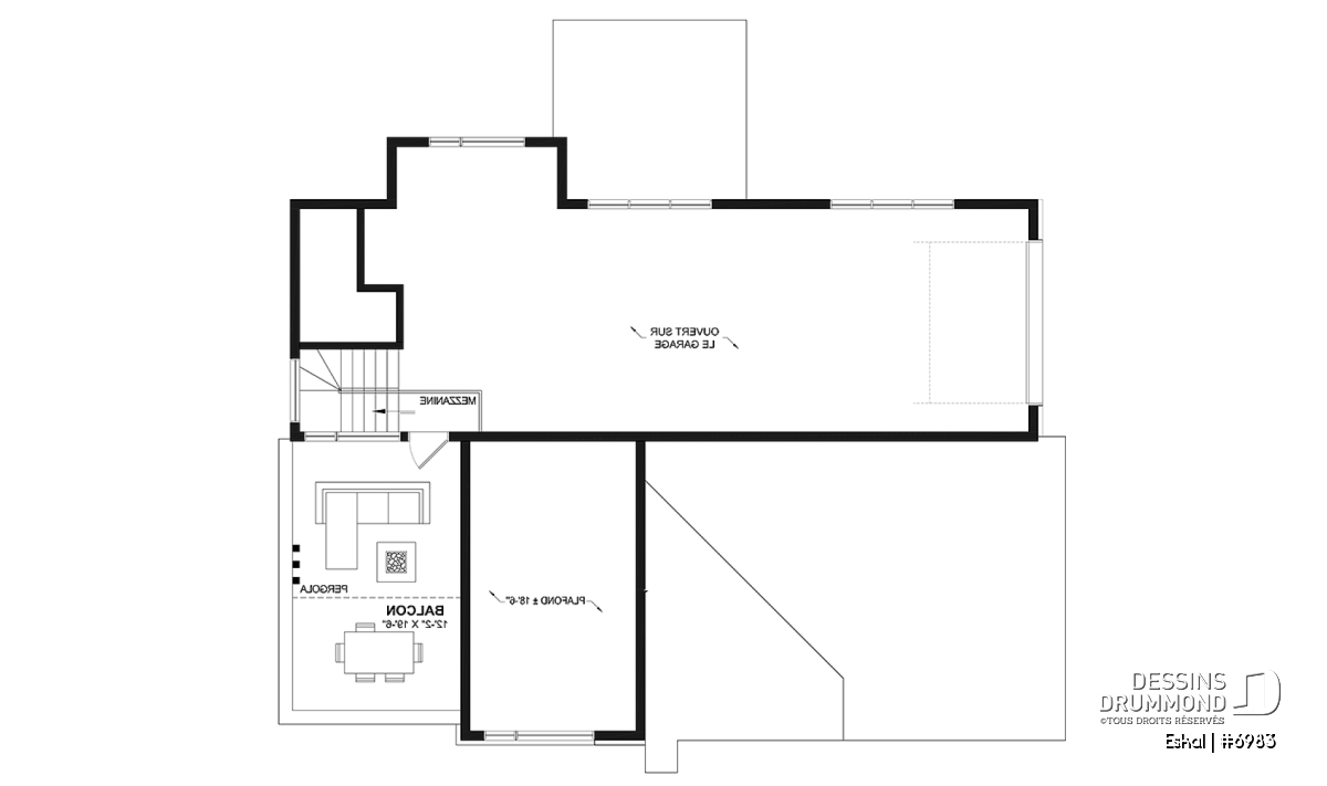
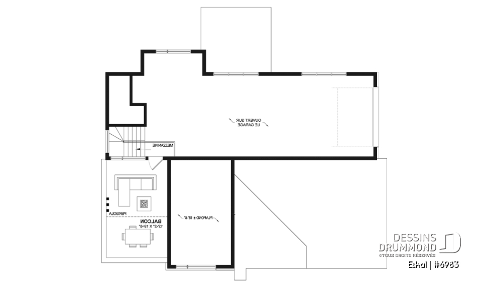
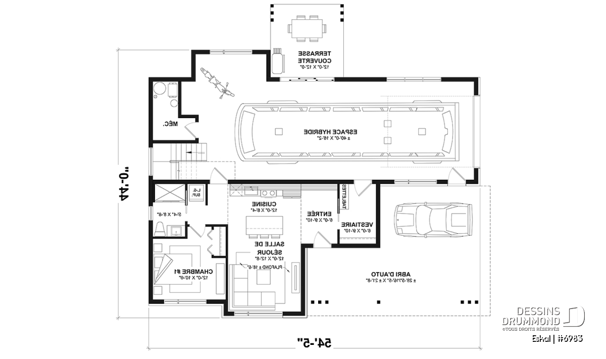
Le plancher de base, proposant une seule chambre, sera idéal pour personne(s) possédant un motorisé, ou VR, de Classe A, B ou C. Cette version propose un garage pour VR de 40' x 16'2'', avec coin pour motocyclette ou vélo(s) et salle mécanique.
De plus vous y retrouverez une escalier menant vers un belle terrasse à l'étage, avec pergola.
Une autre terrasse, abritée, se retrouve au rez-de-chaussée et est accessible du garage, pour un total de 2 terrasses dans cette option.
Le coin cuisine et salle de séjour sont à aire ouverte et propose un plafond de 18'6'' donnant un effet de grandeur à cette pièce tout de même compacte.
Une grande entrée avec vestiaire, une cuisine avec îlot, une salle de douche, une chambre de format 12' x 10' ainsi qu'un coin laveuse/sécheuse superposées complète ce plancher de base. Tout y est pour un confort assuré durant les mois de l'année où vous ne serez pas en vacances avec votre VR!
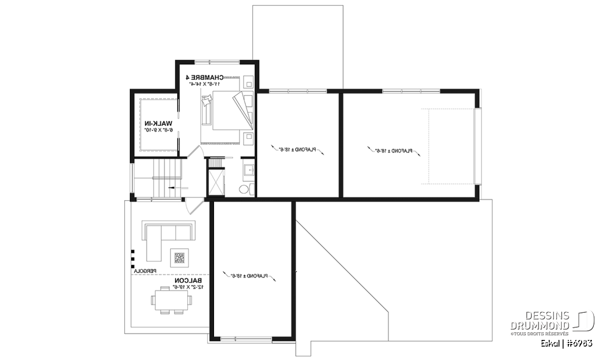
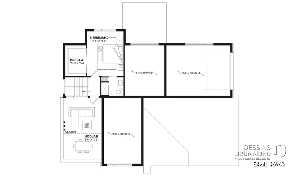
L'option #1 quand à elle propose une maison davantage de type familiale avec un total de 4 chambres, dont une belle suite parentale aménagée à l'étage.
Le garage pour VR est aménagé en grand garage pour une seule voiture.
L'abri d'auto est présenté et toujours pour 2+ voiture.
Les 2 terrasses y sont également, l'une accessible de la chambre #2 et l'autre est à l'étage.
Le coin cuisine et salle de séjour sont à aire ouverte et propose un plafond de 18'6'' donnant un effet de grandeur à ce secteur.
Une grande entrée avec vestiaire, une cuisine avec îlot, une salle de douche, une chambre de format 12' x 10' ainsi qu'un coin laveuse/sécheuse superposées complète cette option #1.
L'option #2 change complètement de vocation en offrant 2 logements.
À noter que les 2 logements peuvent se partager l'abri d'auto qui est prévue pour 2+ voitures. Cependant le garage simple sera privé au logement avant.
Il serait donc possible soit de louer le logement arrière, ou avant, ou simplement d'y effectuer une habitation de type bi-génération (ou intergénérationnelle).
Le logement arrière, aménagé sur 2 étages, propose 2 chambres, 2 salles de douche, coin cuisine, salle à dîner et salon, en plus de l'accès aux deux terrasses: l'une à l'arrière, et l'autre à l'étage.
Le logement principal à l'avant regroupe le coin cuisine et salle de séjour (à aire ouverte) et propose un plafond de 18'6'' donnant un effet de grandeur à ce secteur.
Une grande entrée avec vestiaire, une cuisine avec îlot, une salle de douche, une chambre de format 12' x 10' ainsi qu'un coin laveuse/sécheuse superposées.
*Le plancher de base ainsi que les OPTIONS 1 et 2 sont inclus dans le plan que vous recevrez. Vous pourrez bâtir le plancher qui vous convient. Si vous y aller initialement avec le plancher de base (avec garage pour VR), éventuellement et selon vos besoins futurs vous pourrez convertir votre garage en espace habitable comme proposé en option(s).
**L'estimation du coût de construction est pour le plancher de base uniquement. Pour ce plan #6983, elle inclut le balcon arrière couvert ainsi que le balcon à l'étage. Ces deux éléments sont d'ailleurs prévus sur les 3 versions de ce plan, bien que l'estimation soit uniquement pour le plan de base.
Plafond en pente, Vestibule, Vestiaire, Salle de lavage au rez-de-chaussée, Tablettes, Ilôt, Garage spacieux, Aire ouverte
Base de douche en acrylique de grande qualité, fabriquée au Québec et porte de douche coulissante