Vue avant - MODÈLE DE BASE - Plan de maison plain-pied lumineux avec garage double, plafond cathédrale et jusqu’à 6 chambres - Dambroise 2

Vue avant - MODÈLE DE BASE

Rez-de-chaussée - Plan de maison plain-pied lumineux avec garage double, plafond cathédrale et jusqu’à 6 chambres - Dambroise 2

Rez-de-chaussée

Sous-sol aménageable - Plan de maison plain-pied lumineux avec garage double, plafond cathédrale et jusqu’à 6 chambres - Dambroise 2

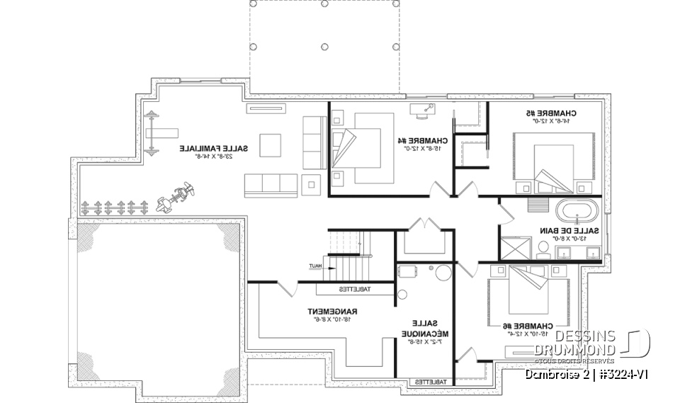
Sous-sol aménageable

Rez-de-chaussée (Optionel $) - Plan de maison plain-pied lumineux avec garage double, plafond cathédrale et jusqu’à 6 chambres - Dambroise 2

Rez-de-chaussée (Optionel $)

Sous-sol aménagé (Optionel $) - Plan de maison plain-pied lumineux avec garage double, plafond cathédrale et jusqu’à 6 chambres - Dambroise 2

Sous-sol aménagé (Optionel $)

Élévation arrière - Dambroise 2

Élévation arrière

Dambroise 2 Plan de maison 3224-V1

Plan de maison plain-pied lumineux avec garage double, plafond cathédrale et jusqu’à 6 chambres

À partir de

1740$

Fiche technique sommaire Plan #3224-V1
Estimation ($) 711,277$ (Sous-sol non-fini) | 772,750$ (Sous-sol fini)
Surface habitable 2016 pi² Chambre 3, 4, 5, 6
Salle de Bain 2 Salle d'eau -
Fondation incluse Sous-sol aménageable Garage 2 voitures
Largeur 69'8" Profondeur 41'8"

Besoin d’aide ?

Nos experts vous guident dans votre projet grâce à plus de 30 bureaux au Québec.

Joignez-nous

Consultez notre guide utilisateur

Un outil conçu pour vous simplifier la vie.

Ouvrir le guide

Besoin d’une assurance habitation ?

Pour obtenir votre prix, c’est juste ici

Obtenir une soumission Advertisement

Détails supplémentaires

Estimation

Spécifications générales

Surface aménagée totale
2016 pi²
Rez-de-chaussée
2016 pi²
Sous-sol aménageable
2016 pi²
Rez-de-chaussée (Optionel $)
2016 pi²
Sous-sol aménagé (Optionel $)
2016 pi²
Largeur
69'8"
Profondeur
41'8"
Hauteur dessus fondations au faite
23'4"
Murs extérieurs
2 X 6
Sous-sol aménageable
Autres fondations disponibles (des frais peuvent s'appliquer)
Sous-sol aménagé, Dalle flottante, Vide sanitaire, Dalle monolithique
Code Entrepreneur
E

Spécifications sur les pièces

Chambre(s)
3, 4, 5, 6
Salle(s) de bain complète(s)
2
Demi Salle(s) de Bain
-
Type de garage
2 voitures (494 pi²)
Superficie balcon et/ou perron abrité
30 pi²

Rez-de-chaussée

Pièces
Dimensions
Plafond
Bureau à domicile
9'4" x 10'0"
~ 9'0"
Garde-robe
4'2" x 2'0"
~ 9'0"
Cuisine
13'4" x 17'4"
~ 9'0"
Garde-manger
10'0" x 7'2"
~ 9'0"
Îlot
8'0" x 4'6"
N/D
Chambre à coucher
11'0" x 11'0"
~ 10'6"
Garde-robe
4'6" x 2'0"
~ 9'0"
Chambre à coucher
10'8" x 9'8"
~ 9'0"
Garde-robe
4'4" x 2'0"
~ 9'0"
Salle de lavage
6'2" x 7'0"
~ 9'0"
Garage
21'0" x 22'0"
~ 10'8"
Vestiaire
6'8" x 5'0"
~ 9'0"
Entrée ou vestibule
11'0" x 5'0"
~ 9'0"
Perron
10'0" x 3'4"
~ 9'4"
Salle à manger
11'0" x 14'4"
~ 9'0"
Terrasse abritée
19'2" x 12'0"
~ 9'4"
Suite des maîtres
12'8" x 13'0"
~ 9'0"
Salle de bain complète
9'0" x 8'0"
~ 9'0"
Douche
4'0" x 3'0"
N/D
Lingerie
1'6" x 1'4"
N/D
Walk-in
4'8" x 6'4"
~ 9'0"
Walk-in
4'8" x 6'4"
~ 9'0"
Garde-robe
4'0" x 1'4"
~ 9'0"
Salle de douche
8'4" x 6'0"
~ 9'0"
Toilette en cabine
3'6" x 5'4"
~ 9'0"
Douche
2'8" x 4'0"
N/D
Lingerie
2'0" x 1'0"
N/D
Salle de séjour
17'0" x 17'0"
~ 13'5"

Sous-sol aménageable

Sous-sol aménagé (Optionel $)

Rez-de-chaussée (Optionel $)

Dambroise 2 (#3224-V1) : Plan de maison plain-pied moderne rustique avec 6 chambres, garage double et sous-sol aménageable

Le modèle Dambroise 2 (#3224-V1) est un magnifique plan de maison plain-pied de style moderne rustique, conçu pour offrir confort, luminosité et grande polyvalence, avec 2 016 pi² habitables au rez-de-chaussée ainsi qu’un sous-sol de même superficie prêt à être aménagé selon vos besoins.

Dès le premier regard, cette maison séduit par son architecture chaleureuse qui marie textures naturelles et lignes contemporaines. Son garage double latéral ajoute du caractère à la façade tout en offrant une grande flexibilité, puisqu’il peut être converti en garage en façade selon vos préférences.

À l’intérieur, le rez-de-chaussée propose des plafonds de 9 pieds sur toute la surface, avec un plafond cathédral spectaculaire au salon, créant une impression d’espace et de grandeur. La fenestration abondante à l’arrière, combinée à une grande porte-patio, inonde la cuisine, la salle à manger et le salon de lumière naturelle, tout en favorisant une connexion fluide avec l’extérieur.

Au cœur de la maison, la cuisine a été pensée pour la vie quotidienne autant que pour recevoir. Son grand îlot pouvant accueillir jusqu’à 6 personnes devient un point de rassemblement central, tandis que le garde-manger de type arrière-cuisine, muni d’un lavabo et de nombreux rangements, assure une organisation optimale et discrète.

L’aire de vie ouverte reliant la cuisine, la salle à manger et le salon crée une atmosphère conviviale, idéale pour les moments en famille ou entre amis. Le salon se distingue par son foyer central visible de toutes les zones de vie, ainsi que par ses meubles intégrés qui ajoutent style et rangement.

Un bureau fermé, situé près de l’entrée, offre un espace parfait pour le télétravail ou les activités quotidiennes, avec une garde-robe intégrée pour plus de praticité. L’entrée principale et celle du garage donnent accès à un vaste vestiaire, facilitant l’organisation au quotidien, tandis que la salle de lavage au rez-de-chaussée, située près de la cuisine, ajoute un confort supplémentaire. Des arches décoratives au plafond viennent compléter l’ensemble avec élégance et caractère.

La suite principale, située au rez-de-chaussée, propose un espace intime et confortable avec deux walk-in distincts. Sa salle de bain privée, lumineuse et raffinée, comprend un bain autoportant, une douche séparée et un meuble-lavabo double. Deux chambres secondaires complètent ce niveau et se partagent une salle de bain avec douche et penderie.

Le sous-sol, inclus non aménagé dans le plan de base, offre un potentiel exceptionnel avec ses 2 016 pi² supplémentaires à personnaliser selon votre mode de vie. En version aménagée optionnelle, il est possible d’y ajouter jusqu’à trois chambres supplémentaires, pour un total de 6 chambres dans la maison, idéal pour les grandes familles ou les projets intergénérationnels. Cette configuration propose également une grande salle familiale, un espace gym, une salle de bain complète ainsi qu’un vaste espace de rangement avec salle mécanique.

À l’arrière, une grande terrasse de 19' x 12' prolonge les espaces de vie vers l’extérieur, parfaite pour les repas et les moments de détente. Le Dambroise 2 (#3224-V1) se distingue par son équilibre parfait entre design, fonctionnalité et évolutivité, offrant une maison adaptée à vos besoins d’aujourd’hui comme à ceux de demain.

Éléments distinctifs

Grand plain-pied avec garage double de style moderne rustique, offrant une allure chaleureuse et actuelle.
Plafond de 9' sur tout le rez-de-chaussée, avec plafond cathédral impressionnant au salon.
Luminosité exceptionnelle à l’arrière grâce aux grandes fenêtres et à la porte-patio dans la cuisine, la salle à manger et le salon.
Entrée avant et entrée du garage aménagées avec accès à un vaste vestiaire pratique au quotidien.
Bureau fermé situé près de l’entrée, avec garde-robe intégrée pour un espace fonctionnel et polyvalent.
Élégantes arches décoratives au plafond entre le bureau et l’aire de vie, ajoutant du cachet.
Salle de lavage au rez-de-chaussée, bien située près de la cuisine, avec cuve de lavage.
Grande cuisine conviviale avec espace cellier et îlot spacieux pouvant accueillir jusqu’à 6 personnes.
Garde-manger de type arrière-cuisine avec lavabo et abondant rangement, idéal pour une organisation optimale.
Cuisine à aire ouverte sur la salle à manger et le salon, parfaite pour recevoir.
Salon chaleureux avec foyer central, visible de tout l’espace de vie, et meubles intégrés de chaque côté.
Suite principale au rez-de-chaussée avec salle de bain privée et deux walk-in distincts.
Salle de bain principale lumineuse avec bain et douche séparés, ainsi que double lavabo.
Deux chambres supplémentaires partageant une salle de douche avec penderie.
Sous-sol non fini offrant un grand potentiel d’aménagement selon vos besoins.
Grande terrasse arrière de 19' x 12', idéale pour un espace détente et repas extérieur.
Garage double latéral modulable pouvant être converti en façade selon vos préférences.
---
Sous-sol aménagé optionnel :
Trois chambres additionnelles de bonnes dimensions, chacune avec walk-in.
Grande salle de bain avec bain et douche séparés, ainsi que double lavabo.
Salle familiale spacieuse avec espace dédié pour un gym à domicile.
Grand espace de rangement incluant la salle mécanique.
---
*Si vous souhaitez acheter le plan du sous-sol aménagé, tel que présenté sur la page de ce plan, veuillez sélectionner cette option dans le panier d'achat, dans la section "Sélectionner votre fondation". Si vous ne sélectionnez pas cette option, vous recevrez le sous-sol non fini, sans frais additionnel.


Particularité(s) du plan

Accès au garage par le côté, Aire ouverte, Arche, Arrière cuisine, Bar à café, Bain et douche séparés, Plafond cathédrale, Foyer, Ilôt, Salle de lavage au rez-de-chaussée, Suite des maîtres au rdc, Terrasse abritée, Walk-in double ch. maîtres, Vue paronamique, Plafond à plus de 8', Garde-manger, Meuble(s) encastré(s), Lavabo double, Bureau / Salle étude, Garage latéral, Cuve de lavage, Vestiaire, Arrière cuisine, Cellier

Style(s) architectural du plan

Nordique, Ranch, Farmhouse, Rustique, Montagne, Américain, Champêtre, Moderne rustique

Plans similaires
Logo Dessins Drummond image Dessins Drummond
Le modèle Dambroise 2 est protégé par la loi sur les droits d'auteur.

Les illustrations présentées peuvent différer du plan détaillé que vous recevrez, car ces derniers sont régulièrement ajustés afin de respecter les normes de construction en vigueur.

En savoir plus

Une question ou un commentaire sur ce plan ?

Information de contact

Votre demande

Ajouter vos images ou photos

Pour ajouter une ou des photos, veuillez cliquer ou glisser vos fichiers dans la zone ci-bas. Vous pouvez ajouter jusqu'à huit photos JPG ou JPEG. Cette opération n'est pas obligatoire.

Désolé, votre navigateur ne supporte pas l'envoi de fichier.