
Plan de maison Chai 3 (6104-V2)
Acheter ce planÀ partir de 1380$ Voir prix et options
Plan de maison Chai 3 (6104-V2)
Maison économique et chaleureuse au Québec : de 2 à 4 chambres, aire ouverte, terrasse abritée et sous-sol opt
Venez nous voir
Estimation
Coûts ($) Est. entrepreneur - S-sol non-fini | À partir de 272,921$ |
Coûts ($) Est. entrepreneur - S-sol fini | À partir de 309,543$ |
Spécifications générales
Surface aménagée totale | 1102 pi2 |
Rez-de-chaussée | 1102 pi2 |
Sous-sol aménageable | 1102 pi2 |
Sous-sol aménagé (Optionel $) | 1102 pi2 |
Largeur | 35'0" |
Profondeur | 34'0" |
Hauteur dessus fondations au faite | 19'3" |
Murs extérieurs | 2 X 6 |
Type de fondation incluse au plan | Sous-sol aménageable |
Autres fondations disponibles (des frais peuvent s'appliquer) | Sous-sol aménagé, Dalle flottante, Vide sanitaire, Dalle monolithique |
Conception pour l'entrepreneur | https://www.constructionsgrantham.ca/ |
Code Entrepreneur | B |
Spécifications sur les pièces
Chambre(s) | 2, 3, 4 |
Salle(s) de bain complète(s) | 2 |
Demi Salle(s) de Bain | - |
Type de garage | - |
Espace boni aménageable | - |
Rangement boni | - |
Superficie balcon et/ou perron abrité | 36 pi2 |
Estimation
Coûts ($) Est. entrepreneur - S.sol non-fini | À partir de 272,921$ i |
Coûts ($) Est. entrepreneur - S.sol fini | À partir de 309,543$ i |
Spécifications générales
Surface aménagée totale | 1102 pi2 |
Sous-sol aménagé (Optionel $) | 1102 pi2 |
Rez-de-chaussée | 1102 pi2 |
Sous-sol aménageable | 1102 pi2 |
Largeur | 35'0" |
Profondeur | 34'0" |
Hauteur dessus fondations au faite | 19'3" |
Murs extérieurs | 2 X 6 |
Type de fondation incluse au plan | Sous-sol aménageable i |
Autres fondations disponibles (des frais peuvent s'appliquer) | Sous-sol aménagé, Dalle flottante, Vide sanitaire, Dalle monolithique |
Conception pour l'entrepreneur | https://www.constructionsgrantham.ca/ |
Code Entrepreneur | B |
Spécifications sur les pièces
Secteur activité
Construction Granthamhttps://www.constructionsgrantham.ca/
Vue avant
Note: Les photos de cette maison peuvent différer du plan d'origine, duquel elles proviennent.
Vue avant
Construction Granthamhttps://www.constructionsgrantham.ca/
Cuisine
Construction Granthamhttps://www.constructionsgrantham.ca/
Cuisine
Construction Granthamhttps://www.constructionsgrantham.ca/
Cuisine
Construction Granthamhttps://www.constructionsgrantham.ca/
Cuisine
Construction Grantham https://www.constructionsgrantham.ca/
Entrée ou vestibule
Construction Granthamhttps://www.constructionsgrantham.ca/
















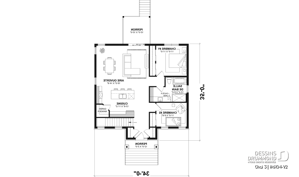
Rez-de-chaussée
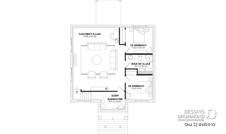
Sous-sol aménageable
Sous-sol aménagé (Optionel $)



Voir la grandeur des pièces et hauteur des plafonds
Sous-sol aménagé (Optionel $) | ||
---|---|---|
Pièces | Dimensions | Plafond |
Salle de bain/buanderie | 10'10" x 7'10" | ~ 8'0" |
Douche | 3'0" x 3'0" | N/D |
Chambre à coucher | 10'10" x 10'6" | ~ 8'0" |
Garde-robe | 6'8" x 2'0" | ~ 8'0" |
Chambre à coucher | 10'10" x 9'7" | ~ 8'0" |
Garde-robe | 4'6" x 2'0" | ~ 8'0" |
Salle familiale | 20'10" x 25'6" | ~ 8'0" |
Pièce de mécanique | 9'8" x 7'0" | ~ 8'0" |
Rez-de-chaussée | ||
---|---|---|
Pièces | Dimensions | Plafond |
Chambre à coucher | 11'2" x 11'0" | ~ 9'0" |
Garde-robe | 11'0" x 2'0" | ~ 9'0" |
Cuisine | 13'9" x 11'2" | ~ 9'0" |
Garde-manger | 4'6" x 4'6" | ~ 9'0" |
Chambre à coucher | 11'0" x 9'0" | ~ 9'0" |
Douche | 5'0" x 2'0" | ~ 9'0" |
Garde-robe | 5'0" x 2'0" | ~ 9'0" |
Entrée ou vestibule | 5'3" x 7'7" | ~ 9'0" |
Garde-robe | 4'0" x 2'0" | ~ 9'0" |
Garde-robe | 4'0" x 2'0" | ~ 9'0" |
Salle de bain | 13'5" x 9'0" | ~ 9'0" |
Douche | 5'0" x 3'0" | ~ 9'0" |
Lingerie | 5'4" x 1'2" | ~ 9'0" |
Salle de séjour/salle à manger | 19'0" x 14'0" | ~ 9'0" |
Terrasse abritée | 10'0" x 10'0" | ~ 9'0" |
Perron | 12'0" x 3'0" | ~ 9'0" |
Sous-sol aménageable |
---|
Autres informations utiles sur ce plan
Maison économique et chaleureuse – un espace évolutif pour toute la famille
Cette superbe maison économique et chaleureuse a été pensée pour offrir confort, fonctionnalité et flexibilité aux familles d’aujourd’hui. Avec son aménagement intelligent et son style invitant, elle propose de 2 à 4 chambres, permettant d’évoluer au rythme de votre vie familiale tout en respectant votre budget.
Dès l’entrée, vous êtes accueilli par un vestibule pratique avec deux garde-robes, idéal pour organiser manteaux et accessoires. Au rez-de-chaussée, deux chambres confortables se partagent une salle de bain complète, conçue pour faciliter la routine quotidienne. Cette grande salle de bain se distingue par son bain et sa douche séparés, ainsi qu’une chute à linge pratique menant directement vers la salle de lavage au sous-sol, un détail qui change la vie au quotidien.
Le cœur de la maison est composé d’une cuisine moderne avec grand îlot et garde-manger de type walk-in, offrant un vaste espace de rangement et de préparation. Le secteur à aire ouverte regroupant cuisine, salle à manger et salon crée une atmosphère conviviale, parfaite pour partager des repas en famille ou recevoir des amis. À l’arrière, une terrasse abritée prolonge l’espace de vie et permet de profiter du plein air en toute saison, à l’abri des intempéries.
Pour répondre aux besoins des familles grandissantes, un sous-sol aménagé en option ($) est proposé. Grâce à son implantation sortie de terre, il permet d’ajouter ultérieurement deux chambres supplémentaires, une salle familiale et même une deuxième salle de bain, offrant ainsi un potentiel d’aménagement exceptionnel pour créer un espace adapté à votre style de vie.
Cette maison allie intelligemment confort, économie d’énergie et flexibilité, tout en misant sur des espaces bien pensés et des détails pratiques. Son design convivial et évolutif en fait un choix parfait pour les jeunes familles, les couples ou toute personne souhaitant profiter d’un foyer chaleureux, durable et facile à personnaliser.
Éléments distinctifs
Superbe maison économique et chaleureuse proposant de 2 à 4 chambres.
Entrée avec 2 garde-robes.
2 chambres au rez-de-chaussée se partageant une salle de bain complète.
Grande salle de bain avec bain et douche séparée, et chute à linge à la salle de bain, menant vers la salle de lavage au sous-sol..
Cuisine avec grand îlot et garde manger de type walk-in.
Secteur cuisine, salle à manger et salon à aire ouverte.
Terrasse abritée à l'arrière.
---
*Sous-sol aménagé (optionnel $):
Sous-sol sorti de terre permettant l'aménagement éventuelle de 2 chambres, salle de familiale, 2ème salle de bain.
---
*Si vous souhaitez acheter le plan du sous-sol aménagé, tel que présenté sur la page de ce plan, veuillez sélectionner cette option dans le panier d'achat, dans la section "Sélectionner votre fondation". Si vous ne sélectionnez pas cette option, vous recevrez le sous-sol non fini, sans frais additionnel.
Particularité(s) du plan
Aire ouverte, Terrasse abritée, Vue paronamique, Ilôt, Plafond à plus de 8', Bain et douche séparés, Garde-manger, Entrepreneur, Auto-Construction, Chute à linge, Coin bureau
Style(s) architectural du plan
Moderne rustique, Contemporain / Zen, Nordique, Transitionnel, Champêtre, En montagne, Ranch, Farmhouse, Farmhouse moderne, Nordique Moderne
Notes légales
Ce modèle est protégé par la Loi sur les Droits d'Auteur.
De plus, les illustrations présentées peuvent différer du plan détaillé que vous recevrez, car ces derniers sont régulièrement ajustés afin de respecter les normes de construction en vigueur.
Plans similaires
Consultés précédemment
Merci pour votre commentaire! Celui-ci doit être approuvé avant d'être mis en ligne, veuillez allouer une période de 24 heures.
Erreur avec google reCaptcha! Veuillez réessayer.
Vous souhaitez apporter des modifications à ce plan?
Estimation gratuite en ligneVenez nous voir
Nos 31 bureauxVous apprécierez aussi
Pour vous assurer de bien préparer votre projet, nous vous proposons ce guide accompagnateur.
Voir le guidePlans similaires
Description
Rez-de-chaussée:
Entrée, cuisine, salle à manger, salon, 2 chambres, salle de bain.
Sous-sol non fini, à aménager.
---
*Sous-sol aménagé (optionnel $):
2 chambres, salle familiale, salle de douche incluant salle de lavage et rangement.
Terrasse abritée à l'arrière.
---
*Si vous souhaitez acheter le plan du sous-sol aménagé, tel que présenté sur la page de ce plan, veuillez sélectionner cette option dans le panier d'achat, dans la section "Sélectionner votre fondation". Si vous ne sélectionnez pas cette option, vous recevrez le sous-sol non fini, sans frais additionnel.
Prix et
reconnaissance









