Vue avant - MODÈLE DE BASE - Maison farmhouse compacte à aire ouverte, plafond cathédral et sous-sol aménagé optionnel - Cedar Grove 2

Vue avant - MODÈLE DE BASE

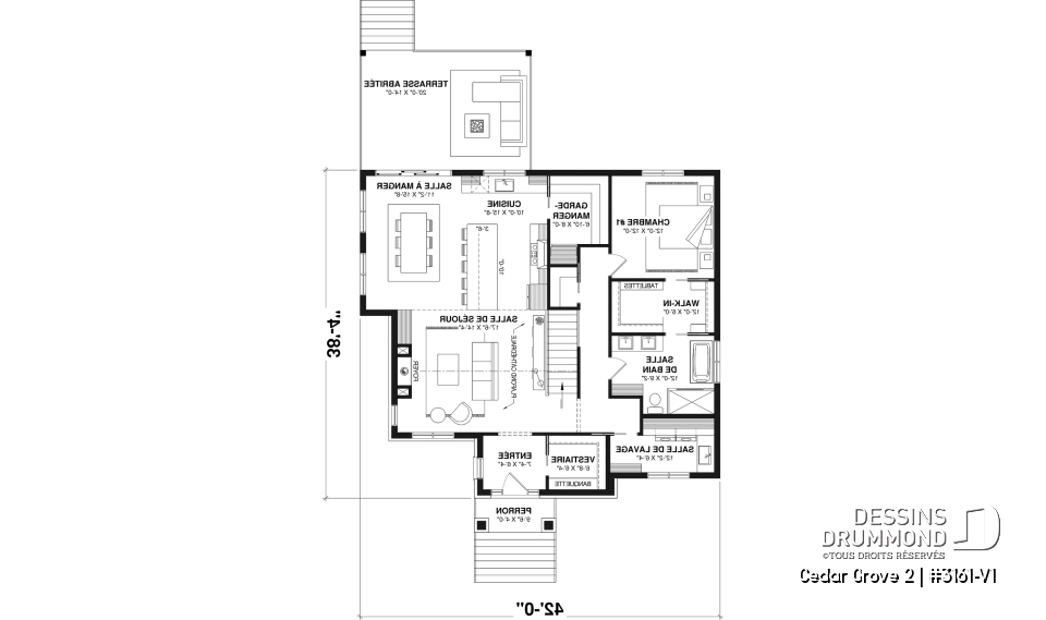
Rez-de-chaussée - Maison farmhouse compacte à aire ouverte, plafond cathédral et sous-sol aménagé optionnel - Cedar Grove 2

Rez-de-chaussée

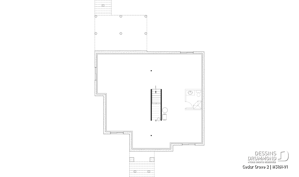
Sous-sol aménageable - Maison farmhouse compacte à aire ouverte, plafond cathédral et sous-sol aménagé optionnel - Cedar Grove 2

Sous-sol aménageable

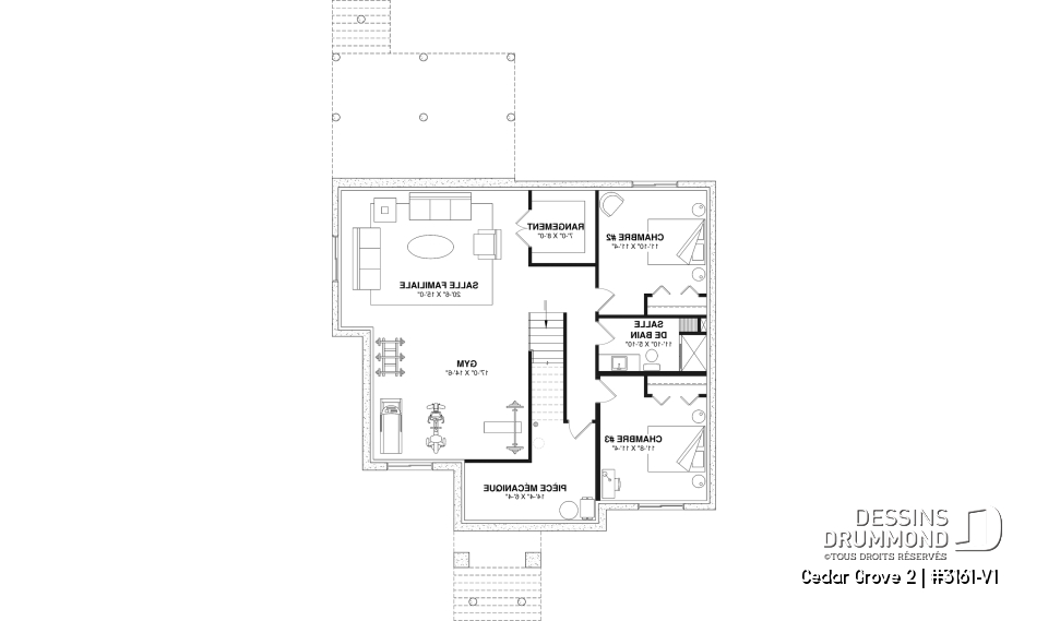
Sous-sol aménagé (Optionel $) - Maison farmhouse compacte à aire ouverte, plafond cathédral et sous-sol aménagé optionnel - Cedar Grove 2

Sous-sol aménagé (Optionel $)

Cedar Grove 2 Plan de maison 3161-V1

Maison farmhouse compacte à aire ouverte, plafond cathédral et sous-sol aménagé optionnel

À partir de

1515$

Fiche technique sommaire Plan #3161-V1
Estimation ($) 410,855$ (Sous-sol non-fini) | 454,480$ (Sous-sol fini)
Surface habitable 1444 pi² Chambre 1, 2, 3
Salle de Bain 2 Salle d'eau -
Fondation incluse Sous-sol aménageable Garage -
Largeur 42'0" Profondeur 38'4"

Besoin d’aide ?

Nos experts vous guident dans votre projet grâce à plus de 30 bureaux au Québec.

Joignez-nous

Consultez notre guide utilisateur

Un outil conçu pour vous simplifier la vie.

Ouvrir le guide

Besoin d’une assurance habitation ?

Pour obtenir votre prix, c’est juste ici

Obtenir une soumission

Les photos de cette maison peuvent différer du plan d'origine, duquel elles proviennent. Pour toute modification, veuillez contacter l’un de nos 30 bureaux.

Détails supplémentaires

Estimation

Spécifications générales

Surface aménagée totale
1444 pi²
Rez-de-chaussée
1444 pi²
Sous-sol aménageable
1444 pi²
Sous-sol aménagé (Optionel $)
1444 pi²
Largeur
42'0"
Profondeur
38'4"
Hauteur dessus fondations au faite
22'3"
Murs extérieurs
2 X 6
Murs extérieurs
2 X 6
Sous-sol aménageable
Autres fondations disponibles (des frais peuvent s'appliquer)
Sous-sol aménagé, Dalle flottante, Vide sanitaire, Dalle monolithique
Code Entrepreneur
C

Spécifications sur les pièces

Chambre(s)
1, 2, 3
Salle(s) de bain complète(s)
2
Demi Salle(s) de Bain
-
Type de garage
-
Superficie balcon et/ou perron abrité
38 pi²

Rez-de-chaussée

Pièces
Dimensions
Plafond
Perron abrité
9'6" x 4'0"
~ 9'4"
Entrée ou vestibule
7'4" x 6'4"
~ 9'0"
Vestiaire
6'8" x 6'4"
~ 9'0"
Salle de lavage
12'2" x 6'4"
~ 9'0"
Salle de séjour
17'6" x 14'4"
~ 12'9"
Salle à manger
11'2" x 15'8"
~ 9'0"
Cuisine
10'0" x 15'8"
~ 9'0"
Garde-manger
6'10" x 8'0"
~ 9'0"
Îlot
10'0" x 3'6"
N/D
Terrasse abritée
20'0" x 14'0"
~ 9'4"
Salle de bain complète
12'0" x 9'2"
~ 9'0"
Douche
5'6" x 3'0"
N/D
Lingerie
3'8" x 1'4"
N/D
Chambre à coucher
12'0" x 12'0"
~ 9'0"
Walk-in
12'0" x 6'0"
~ 9'0"
Rangement
4'8" x 3'2"
~ 9'0"

Sous-sol aménageable

Sous-sol aménagé (Optionel $)

Pièces
Dimensions
Plafond
Pièce de mécanique
14'4" x 6'4"
~ 8'0"
Gym
17'0" x 14'6"
~ 8'0"
Salle familiale
20'6" x 15'0"
~ 8'0"
Rangement
7'0" x 8'0"
~ 8'0"
Chambre à coucher
11'10" x 11'4"
~ 8'0"
Garde-robe
6'6" x 2'0"
~ 8'0"
Salle de bain
11'10" x 5'10"
~ 8'0"
Douche
4'0" x 3'0"
N/D
Lingerie
1'6" x 2'0"
N/D
Chambre à coucher
11'8" x 11'4"
~ 8'0"
Garde-robe
6'6" x 2'0"
~ 8'0"

Modèle de maison CEDAR GROVE 2 (#3161-V1) – Farmhouse moderne avec aire ouverte, plafond cathédral et sous-sol aménageable

Le plan de maison CEDAR GROVE 2 (#3161-V1) incarne parfaitement l’esprit du farmhouse moderne, alliant confort, fonctionnalité et ambiance chaleureuse. Conçu pour répondre aux besoins des familles d’aujourd’hui, ce modèle se distingue par ses espaces bien pensés, lumineux et évolutifs, tout en conservant un charme intemporel inspiré de l’architecture champêtre contemporaine.

Dès l’arrivée, le perron avant abrité crée une première impression accueillante et pratique, protégeant des intempéries tout en mettant en valeur la façade. À l’intérieur, le rez-de-chaussée propose des plafonds de 9 pieds, renforçant la sensation d’espace et de clarté. La salle de séjour, véritable cœur de la maison, se démarque par son plafond cathédral, son foyer et son mobilier intégré, offrant un lieu de rassemblement à la fois convivial et élégant.

L’entrée fonctionnelle, équipée d’un grand vestiaire et d’une banquette intégrée, facilite l’organisation du quotidien. L’aire de vie principale se poursuit avec une salle à manger lumineuse, ouverte sur une cuisine fonctionnelle avec îlot central et garde-manger, idéale pour la vie familiale comme pour recevoir. La fluidité entre les espaces favorise une circulation naturelle et une atmosphère chaleureuse.

La chambre principale, située au rez-de-chaussée, constitue un espace intime et confortable. Elle bénéficie d’une garde-robe walk-in ainsi que d’un accès direct à la salle de bain complète, combinant praticité et bien-être. Une salle de lavage avec cuve, également au rez-de-chaussée, ainsi qu’une grande garde-robe de rangement dans le corridor, viennent compléter intelligemment l’aménagement du plan CEDAR GROVE 2 (#3161-V1).

À l’arrière, une grande terrasse couverte, accessible directement de la salle à manger, prolonge les espaces de vie vers l’extérieur et permet de profiter pleinement de la belle saison. Le sous-sol non fini, inclus dans le plan de base, offre un excellent potentiel d’aménagement futur. *En option, il peut accueillir deux chambres supplémentaires, une salle familiale, une salle de bain, ainsi qu’un coin gym et du rangement, rendant la maison parfaitement évolutive selon les besoins de votre famille.

Éléments distinctifs

Maison de style farmhouse moderne offrant un confort remarquable et une ambiance chaleureuse.
Perron avant abrité, à la fois invitant et pratique pour se protéger des intempéries.
Plafond de 9 pi sur tout le rez-de-chaussée, à l’exception du plafond cathédral à la salle de séjour.
Entrée fonctionnelle avec grand vestiaire et banquette intégrée pour un accueil confortable.
Salle de séjour conviviale avec foyer et mobilier intégré.
Salle à manger lumineuse, ouverte sur la cuisine pour une aire de vie fluide et conviviale.
Cuisine fonctionnelle avec îlot central et garde-manger.
Chambre principale située au rez-de-chaussée avec garde-robe walk-in et accès direct à la salle de bain complète.
Salle de lavage pratique avec cuve, au rez-de-chaussée.
Grande garde-robe de rangement aménagée dans le corridor.
Sous-sol non fini, prêt à être aménagé selon vos besoins.
Grande terrasse arrière abritée, accessible directement de la salle à manger.
Le plan de base inclut un sous-sol non fini offrant un excellent potentiel d’aménagement futur.
---
*Sous-sol aménagé (optionnel) comprenant deux chambres supplémentaires idéales pour une grande famille ou des invités.
Salle de bain avec douche et penderie.
Salle familiale avec espace de rangement intégré.
Coin gym et rangement pour un aménagement polyvalent et fonctionnel.
---
*Si vous souhaitez acheter le plan du sous-sol aménagé, tel que présenté sur la page de ce plan, veuillez sélectionner cette option dans le panier d'achat, dans la section "Sélectionner votre fondation". Si vous ne sélectionnez pas cette option, vous recevrez le sous-sol non fini, sans frais additionnel.

Particularité(s) du plan

Aire ouverte, Foyer, Plafond à plus de 8', Ilôt, Terrasse abritée, Vestiaire, Salle de lavage au rez-de-chaussée, Suite des maîtres au rdc, Walk-in ch. maîtres, Banquette, Garde-manger, Bain et douche séparés, Lavabo double, Meuble(s) encastré(s), Vue paronamique, Auto-Construction, Entrepreneur

Style(s) architectural du plan

Farmhouse, Américain, Farmhouse moderne, Transitionnel, Champêtre, Moderne rustique, Nordique Moderne

Plans similaires
Logo Dessins Drummond image Dessins Drummond
Le modèle Cedar Grove 2 est protégé par la loi sur les droits d'auteur.

Les illustrations présentées peuvent différer du plan détaillé que vous recevrez, car ces derniers sont régulièrement ajustés afin de respecter les normes de construction en vigueur.

En savoir plus

Une question ou un commentaire sur ce plan ?

Information de contact

Votre demande

Ajouter vos images ou photos

Pour ajouter une ou des photos, veuillez cliquer ou glisser vos fichiers dans la zone ci-bas. Vous pouvez ajouter jusqu'à huit photos JPG ou JPEG. Cette opération n'est pas obligatoire.

Désolé, votre navigateur ne supporte pas l'envoi de fichier.