Plan de maison Calypso (3991)
Acheter ce planÀ partir de 1380$ Voir prix et options
Plan de maison Calypso (3991)
Plan de chalet moderne, possibilité de 4 chambres, terrasse abritée, poêle à bois, vestiaire, rez-de-jardin
Venez nous voir
Estimation
Coûts ($) Est. entrepreneur - S-sol non-fini | - |
Coûts ($) Est. entrepreneur - S-sol fini | À partir de 304,104$ |
Spécifications générales
Surface aménagée totale | 1064 pi2 |
Rez-de-chaussée | 1064 pi2 |
Sous-sol | 1064 pi2 |
Largeur | 38'0" |
Profondeur | 28'0" |
Hauteur dessus fondations au faite | 19'5" |
Murs extérieurs | 2 X 6 |
Type de fondation incluse au plan | Sous-sol aménageable + sortie extérieure (Rez-de-jardin) |
Code Entrepreneur | B |
Spécifications sur les pièces
Chambre(s) | 2, 3, 4 |
Salle(s) de bain complète(s) | 1 |
Demi Salle(s) de Bain | - |
Type de garage | - |
Espace boni aménageable | - |
Rangement boni | - |
Superficie balcon et/ou perron abrité | 32 pi2 |
Estimation
Coûts ($) Est. entrepreneur - S.sol non-fini | - i |
Coûts ($) Est. entrepreneur - S.sol fini | À partir de 304,104$ i |
Spécifications générales
Surface aménagée totale | 1064 pi2 |
Sous-sol | 1064 pi2 |
Rez-de-chaussée | 1064 pi2 |
Largeur | 38'0" |
Profondeur | 28'0" |
Hauteur dessus fondations au faite | 19'5" |
Murs extérieurs | 2 X 6 |
Type de fondation incluse au plan | Sous-sol aménageable + sortie extérieure (Rez-de-jardin) i |
Code Entrepreneur | B |
Spécifications sur les pièces
Vue avant
Note: Les photos de cette maison peuvent différer du plan d'origine, duquel elles proviennent.
Vue avant
Vue avant
Note: Les photos de cette maison peuvent différer du plan d'origine, duquel elles proviennent.
Vue arrière
Note: Les photos de cette maison peuvent différer du plan d'origine, duquel elles proviennent.
Vue arrière
Note: Les photos de cette maison peuvent différer du plan d'origine, duquel elles proviennent.














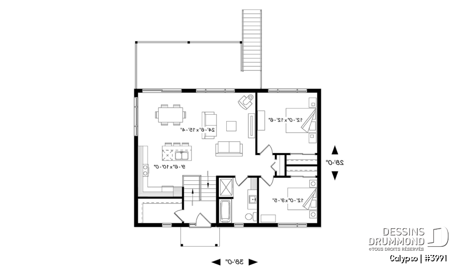
Voir la grandeur des pièces et hauteur des plafonds
Sous-sol | ||
---|---|---|
Pièces | Dimensions | Plafond |
Buanderie | 8'3" x 5'10" | ~ 8'6" |
Rangement | 15'4" x 15'3" | ~ 8'6" |
Rez-de-chaussée | ||
---|---|---|
Pièces | Dimensions | Plafond |
Chambre à coucher | 12'0" x 12'6" | ~ 13'0" |
Garde-robe | 6'4" x 2'0" | ~ 8'0" |
Chambre à coucher | 12'0" x 9'5" | ~ 8'0" |
Garde-robe | 6'4" x 2'0" | ~ 8'0" |
Entrée ou vestibule | 6'8" x 4'6" | ~ 13'0" |
Walk-in | 9'1" x 5'1" | ~ 13'0" |
Salle de bain complète | 7'11" x 9'5" | ~ 8'0" |
Lingerie | 1'8" x 4'4" | ~ 8'0" |
Cuisine | 9'6" x 10'0" | ~ 13'0" |
Salle de séjour/salle à manger | 24'6" x 15'4" | ~ 13'0" |
Terrasse abritée | 22'0" x 10'0" | N/D |
Perron abrité | 8'0" x 4'0" | N/D |
Autres informations utiles sur ce plan
Plan de chalet contemporain 2 chambres au rez-de-chaussée (possibilité de 4 au total) et superbe fenestration
Le plan de chalet style moderne contemporain suivant, Calypso (3991) sera combler tout les amoureux de la nature.
Avec ses deux paliers, soit le rez-de-chaussée ainsi que le sous-sol en rez-de-jardin, ce chalet vous permettra d’avoir une vue panoramique sur le paysage.
À l’entrée, se trouve un grand walk in permettant de ranger efficacement tous les articles de sport et de plein air de toute la famille. Au rez-de-chaussée, nous retrouvons deux chambres, dont celle des maîtres avec une superbe fenestration, une salle de bain complète avec douche séparée ainsi qu’une aire commune comprenant une cuisine fonctionnelle avec un îlot central accueillant un évier et un lave-vaisselle. Celle-ci donne sur la salle à manger et la salle de séjour munie d’un poêle au bois. Cette espace à air ouverte avec son plafond de 13pi de haut, se poursuit jusqu’à l’entrée et son walk in. Ce qui donne un effet de grandeur incroyable!
Au Rez-de-jardin, une porte de garage donne sur une grande pièce de 15’4 X 15’3. Idéal pour ranger, par exemple, un vtt, une motoneige, le tracteur à pelouse et bien plus! Une grande porte patio se retrouve également dans l’autre partie du Rez de jardin. Offrant, encore une fois, une vue surprenante.
L’espace de ce chalet continue inévitablement à l’extérieur, avec deux grandes terrasses abritées. Que ce soit durant les froides journées d’hiver ou les chaudes soirées d’été, Calypso vous donnera la chance d’en profiter pleinement!
Éléments distinctifs
Maison de style chalet 4-saison moderne, ou chalet de ski.
Plafond à 13' sur pratiquement tout le rez-de-chaussée.
Possibilité d'ajouter 2 chambres au sous-sol en rez-de-jardin.
Rangement accessible par porte de garage située à l'arrière de la maison.
Grand walk-in à l'entrée pour manteau ou équipement de sport (skis, planches à neige, etc.).
Espace à aire ouverte à la cuisine, salle à dîner et séjour.
Grand îlot à la cuisine.
Poêle à bois prévu dans la salle de séjour.
Accès à une grande terrasse couverte à l'arrière.
Salle de bain avec bain et douche séparés.
Particularité(s) du plan
Ilôt, Aire ouverte, Plafond en pente, Poêle à bois, Terrasse abritée, Vestiaire, Vue paronamique
Style(s) architectural du plan
Chalet, Moderne, Moderne rustique, Contemporain / Zen, Chalet de ski, Vacances, bordure de lac, Scandinave
Notes légales
Ce modèle est protégé par la Loi sur les Droits d'Auteur.
De plus, les illustrations présentées peuvent différer du plan détaillé que vous recevrez, car ces derniers sont régulièrement ajustés afin de respecter les normes de construction en vigueur.
Plans similaires
Consultés précédemment
Merci pour votre commentaire! Celui-ci doit être approuvé avant d'être mis en ligne, veuillez allouer une période de 24 heures.
Erreur avec google reCaptcha! Veuillez réessayer.
Vous souhaitez apporter des modifications à ce plan?
Estimation gratuite en ligneVenez nous voir
Nos 31 bureauxVous apprécierez aussi
Pour vous assurer de bien préparer votre projet, nous vous proposons ce guide accompagnateur.
Voir le guidePlans similaires
Description
Sous-sol aménageable contient une buanderie.
Possibilité d'une chambre (#3) et salle familiale (ou chambre #4), et d'une salle de bain complète.
Grand rangement avec accès via porte de garage (de l'arrière).
Rez-de-chaussée:
Entrée avec garde-robe de type walk-in, cuisine, salle à manger, salle de séjour, chambre des maîtres, chambre secondaire, salle de bain complète.
Prix et
reconnaissance









