
Plan de maison Joshua 2 (1703-V1)
Acheter ce planÀ partir de 1380$ Voir prix et options
Plan de maison Joshua 2 (1703-V1)
Petite maison moderne 2 chambres, vestiaire, garde manger, salle de lavage, 2 terrasses dont une à l'étage
Venez nous voir
Estimation
Coûts ($) Est. entrepreneur | À partir de 390,723$ |
Spécifications générales
Surface aménagée totale | 1188 pi2 |
Rez-de-chaussée | 843 pi2 |
Étage | 345 pi2 |
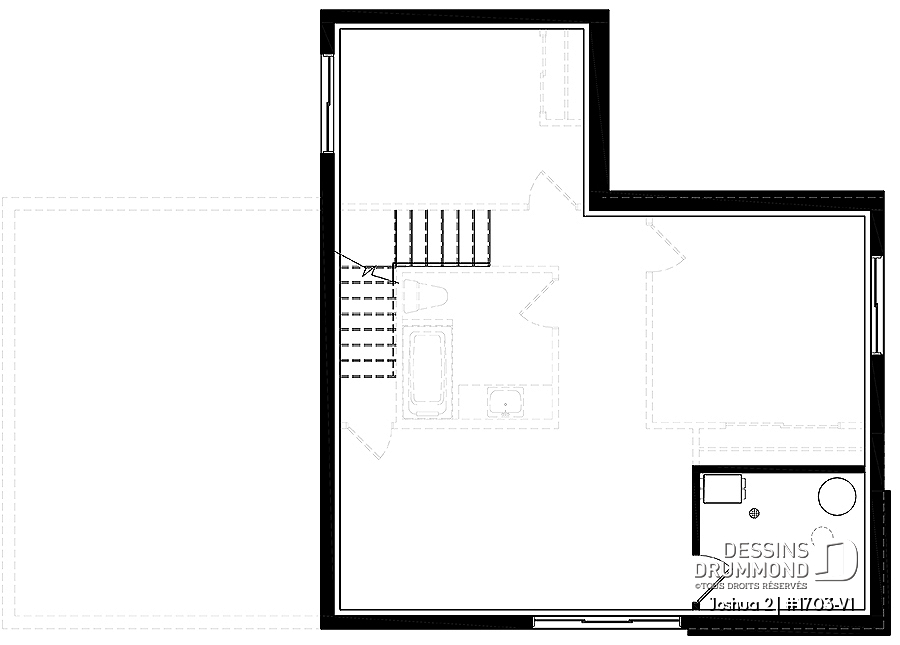
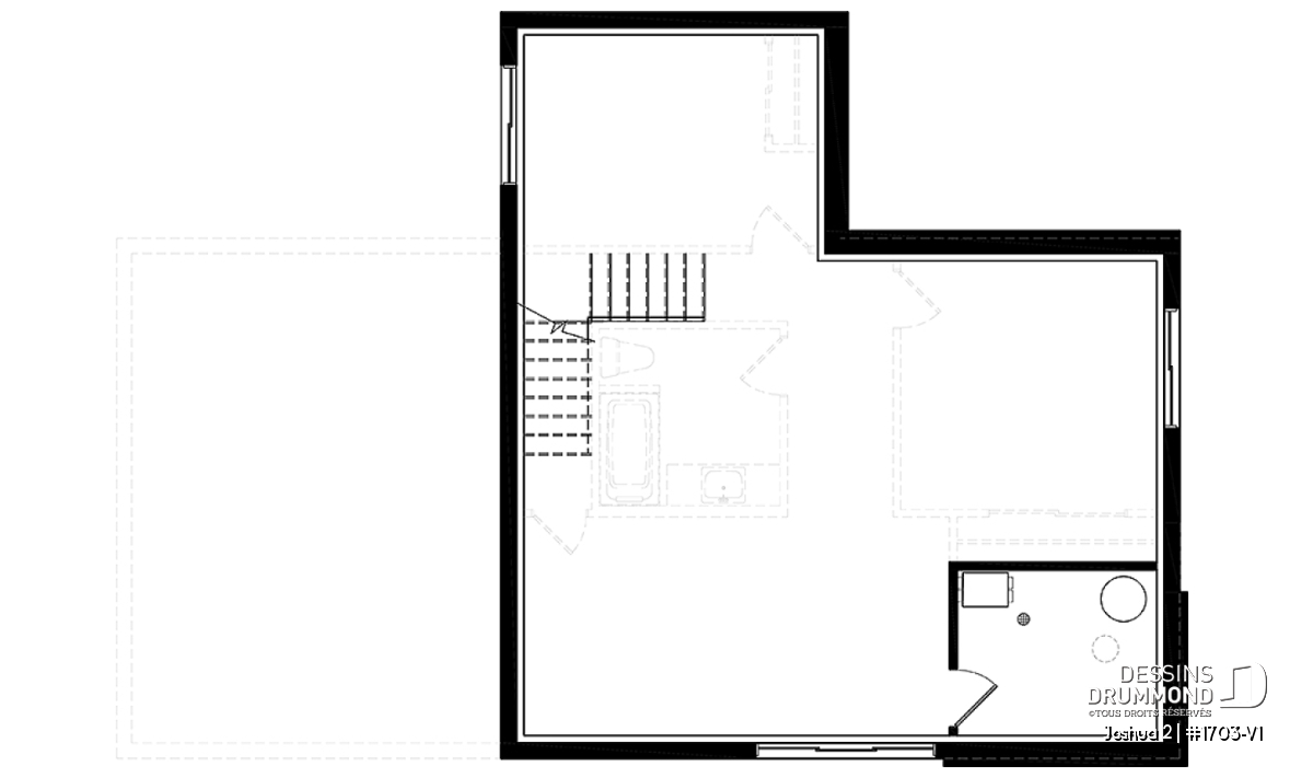
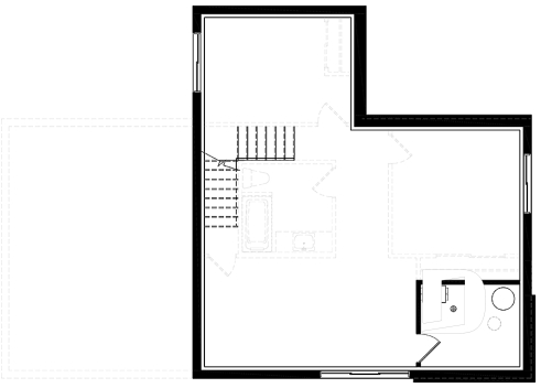
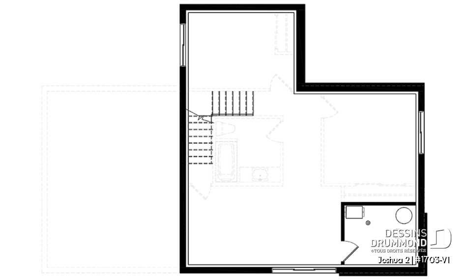
Sous-sol aménageable | 843 pi2 |
Largeur | 47'0" |
Profondeur | 33'8" |
Hauteur dessus fondations au faite | 29'5" |
Murs extérieurs | 2 X 6 |
Type de fondation incluse au plan | Sous-sol aménageable |
Autres fondations disponibles (des frais peuvent s'appliquer) | Sous-sol aménageable + sortie extérieure (Rez-de-jardin), Dalle flottante, Vide sanitaire, Dalle monolithique |
Code Entrepreneur | B |
Spécifications sur les pièces
Chambre(s) | 2 |
Salle(s) de bain complète(s) | 2 |
Demi Salle(s) de Bain | - |
Type de garage | 1 voiture (348 pi2) |
Espace boni aménageable | - |
Rangement boni | - |
Superficie balcon et/ou perron abrité | 51 pi2 |
Estimation
Spécifications générales
Surface aménagée totale | 1188 pi2 |
Sous-sol aménageable | 843 pi2 |
Rez-de-chaussée | 843 pi2 |
Étage | 345 pi2 |
Largeur | 47'0" |
Profondeur | 33'8" |
Hauteur dessus fondations au faite | 29'5" |
Murs extérieurs | 2 X 6 |
Type de fondation incluse au plan | Sous-sol aménageable i |
Autres fondations disponibles (des frais peuvent s'appliquer) | Sous-sol aménageable + sortie extérieure (Rez-de-jardin), Dalle flottante, Vide sanitaire, Dalle monolithique |
Code Entrepreneur | B |
Spécifications sur les pièces












Voir la grandeur des pièces et hauteur des plafonds
Sous-sol aménageable |
---|
Rez-de-chaussée | ||
---|---|---|
Pièces | Dimensions | Plafond |
Chambre à coucher | 11'4" x 10'0" | ~ 8'0" |
Garde-robe | 2'0" x 7'4" | ~ 8'0" |
Cuisine | 8'0" x 12'10" | ~ 8'0" |
Garde-manger | 7'8" x 2'8" | ~ 8'0" |
Entrée ou vestibule | 5'4" x 5'5" | ~ 8'0" |
Garde-robe | 2'0" x 5'5" | ~ 8'0" |
Garage | 16'4" x 21'4" | ~ 12'5" |
Galerie | 12'9" x 4'0" | ~ 8'4" |
Salle à manger | 8'8" x 8'10" | ~ 8'0" |
Lingerie | 2'0" x 2'0" | ~ 8'0" |
Terrasse | 15'0" x 10'4" | N/D |
Vestiaire | 7'4" x 8'8" | ~ 8'0" |
Salle de séjour | 12'10" x 12'10" | ~ 8'0" |
Salle de bain complète | 8'0" x 5'0" | ~ 8'0" |
Étage | ||
---|---|---|
Pièces | Dimensions | Plafond |
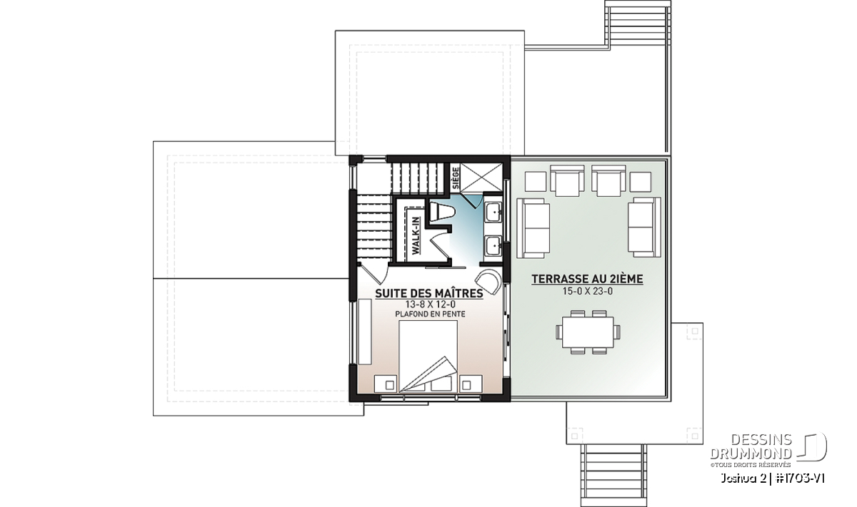
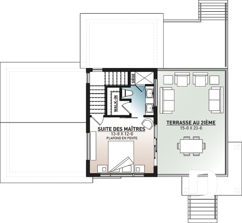
Chambre à coucher | 13'8" x 12'0" | ~ 11'10" |
Salle de douche | 4'10" x 9'8" | ~ 11'10" |
Walk-in | 5'0" x 8'0" | N/D |
Terrasse | 15'0" x 23'0" | N/D |
Autres informations utiles sur ce plan
Plan de maison moderne originale offrant 2 terrasses, et une superbe chambre des parents à l'étage!
Le plan de maison Joshua 2 (1703-V1) propose une surface habitable de 1188pi2. La hauteur des plafonds du rdc sont d’une hauteur standard de 8pi. En entrant dans cette maison moderne, un vestibule nous sépare de la salle de séjour, de la cuisine et la salle à manger qui sont à aires ouvertes.
La cuisine, possède un grand îlot ainsi qu’un garde manger de style walk-in. Elle donne sur la salle à manger à air ouverte et cette dernière est illuminée par la porte patio qui donne sur la première terrasse, d’une grandeur intéressante pour recevoir plusieurs convives et profiter de l’extérieur.
En terme de commodité, un vestiaire comprenant l’espace pour une laveuse et sécheuse se trouve au rdc, près de l’accès pour le garage. Ce dernier, d’une grandeur simple, reste d’une dimension intéressante pour y installer un atelier et du rangement supplémentaire.
La chambre du rdc se trouve à l’arrière de la maison. Les dimensions permettent plusieurs utilités, comme une chambre standard ou bien un bureau pour le télétravail.
A l’étage, se trouve la suite des parents. Avec les plafonds de 10pi. Comprenant une salle de bain complète, d’une chambre de 13-8 x 12, donnant sur la deuxième (et non la moindre!) terrasse d’une grandeur spectaculaire de 15 x 23.
Éléments distinctifs
Maison moderne originale offrant un plancher différent efficace et avec grande terrasse à l'étage.
Superbe chambre des parents avec salle de bain privée et garde-robe de type walk-in.
Rez-de-chaussée à aire ouverte.
Grand garde-manger de type walk-in à la cuisine.
Espace versatile de la chambre #2 qui peut être utilisée en bureau ou salle de jeux.
Belle terrasse au premier, près de la cuisine.
Grande buanderie au premier avec coin vestiaire.
Garage une voiture.
Particularité(s) du plan
Aire ouverte, Vestiaire, Salle de lavage au rez-de-chaussée, Garde-manger, Ilôt, Balcon à l'étage, Suite des maîtres à l'étage, Plafond en pente, Walk-in ch. maîtres, Vestibule, Lavabo double
Style(s) architectural du plan
Moderne, Contemporain / Zen, Moderne rustique, Chalet, Chalet de ski, Mid-century
Notes légales
Ce modèle est protégé par la Loi sur les Droits d'Auteur.
De plus, les illustrations présentées peuvent différer du plan détaillé que vous recevrez, car ces derniers sont régulièrement ajustés afin de respecter les normes de construction en vigueur.
Plans similaires
Consultés précédemment
Merci pour votre commentaire! Celui-ci doit être approuvé avant d'être mis en ligne, veuillez allouer une période de 24 heures.
Erreur avec google reCaptcha! Veuillez réessayer.
Vous souhaitez apporter des modifications à ce plan?
Estimation gratuite en ligneVenez nous voir
Nos 31 bureauxVous apprécierez aussi
Pour vous assurer de bien préparer votre projet, nous vous proposons ce guide accompagnateur.
Voir le guidePlans similaires
Description
Rez-de-chaussée:
Vestibule, cuisine, garde-manger, salle à dîner, salon, salle de lavage / vestiaire, salle de bain, chambre # 2 (ou bureau ou salle de jeux), terrasse.
Étage:
Suite des parents avec salle de bain privée et walk-in.
Grande terrasse à l'étage, incluse dans notre estimation du coût de construction.
Garage une voiture avec accès à la maison.
Sous-sol aménageable. Autres types de fondation disponibles.
Prix et
reconnaissance









