Entrer votre code postal pour filtrer les produits disponibles dans votre région.
Plan de maison Mallory 3 (3056-V2)
Acheter ce planÀ partir de 2415$ Voir prix et options
Plan de maison Mallory 3 (3056-V2)
Plan de maison jumelée contemporaine, sous-sol aménagé optionnel ($), 3 à 4+ chambres + bureau à chaque unité
Venez nous voir
Estimation
| Coûts ($) Est. entrepreneur - S-sol non-fini | À partir de 976,303$ |
| Coûts ($) Est. entrepreneur - S-sol fini | À partir de 1,026,106$ |
Spécifications générales
| Surface aménagée totale | 3226 pi2 |
| Rez-de-chaussée | 1613 pi2 |
| Étage | 1613 pi2 |
| Sous-sol aménageable | 1613 pi2 |
| Sous-sol aménagé (Optionel $) | 1613 pi2 |
| Largeur | 40'0" |
| Profondeur | 40'4" |
| Hauteur dessus fondations au faite | 29'6" |
| Murs extérieurs | 2 X 6 |
| Type de fondation incluse au plan | Sous-sol aménageable |
| Autres fondations disponibles (des frais peuvent s'appliquer) | Sous-sol aménagé, Dalle flottante, Vide sanitaire, Dalle monolithique |
| Code Entrepreneur | MD |
Spécifications sur les pièces
| Chambre(s) | 3, 4, 5 |
| Salle(s) de bain complète(s) | 2 |
| Demi Salle(s) de Bain | 1 |
| Type de garage | - |
| Espace boni aménageable | - |
| Rangement boni | - |
| Superficie balcon et/ou perron abrité | 64 pi2 |
| Unité Droite | Unité Gauche | |
| Surface aménagée totale | 1614 pi2 | 1614 pi2 |
| Rez-de-chaussée | 807 pi2 | 807 pi2 |
| Étage | 807 pi2 | 807 pi2 |
| Sous-sol aménagé (Optionel $) | 807 pi2 | 807 pi2 |
| Largeur | 20' 0" | 20' 0" |
| Profondeur | 40' 4" | 40' 4" |
| Hauteur dessus fondations au faite | 29' 6" | 29' 6" |
| Murs extérieurs | 2 X 6 | 2 X 6 |
| Type de fondation | Sous-sol aménageable | Sous-sol aménageable |
| Chambre(s) | 4 | 4 |
| Salle(s) de bain | 2 | 2 |
| Demi Salle(s) de Bain | 1 | 1 |
| Type de garage | - | - |
| Espace boni aménageable | - | - |
| Rangement boni | - | - |
Estimation
| Coûts ($) Est. entrepreneur - S.sol non-fini | À partir de 976,303$ i |
| Coûts ($) Est. entrepreneur - S.sol fini | À partir de 1,026,106$ i |
Spécifications générales
| Surface aménagée totale | 3226 pi2 |
| Sous-sol aménagé (Optionel $) | 1613 pi2 |
| Rez-de-chaussée | 1613 pi2 |
| Étage | 1613 pi2 |
| Sous-sol aménageable | 1613 pi2 |
| Largeur | 40'0" |
| Profondeur | 40'4" |
| Hauteur dessus fondations au faite | 29'6" |
| Murs extérieurs | 2 X 6 |
| Type de fondation incluse au plan | Sous-sol aménageable i |
| Autres fondations disponibles (des frais peuvent s'appliquer) | Sous-sol aménagé, Dalle flottante, Vide sanitaire, Dalle monolithique |
| Code Entrepreneur | MD |
Spécifications sur les pièces
| Chambre(s) | 5, 3, 4 |
| Salle(s) de bain complète(s) | 2 |
| Demi Salle(s) de Bain | 1 |
| Type de garage | - |
| Espace boni aménageable | - i |
| Rangement boni | - i |
| Superficie balcon et/ou perron abrité | 64 pi2 |
Spécifications des unités
| Unité Droite | Unité Gauche | |
| Surface aménagée totale | 1614 pi2 | 1614 pi2 |
| Rez-de-chaussée | 807 pi2 | 807 pi2 |
| Étage | 807 pi2 | 807 pi2 |
| Sous-sol aménagé (Optionel $) | 807 pi2 | 807 pi2 |
| Largeur | 20' 0" | 20' 0" |
| Profondeur | 40' 4" | 40' 4" |
| Hauteur dessus fondations au faite | 29' 6" | 29' 6" |
| Murs extérieurs | 2 X 6 | 2 X 6 |
| Type de fondation | Sous-sol aménageable | Sous-sol aménageable |
| Chambre(s) | 4 | 4 |
| Salle(s) de bain | 2 | 2 |
| Demi Salle(s) de Bain | 1 | 1 |
| Type de garage | - | - |
| Espace boni aménageable | - | - |
| Rangement boni | - | - |
Entrer votre code postal pour filtrer les produits disponibles dans votre région.
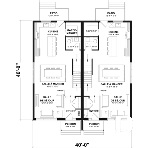
Salle à manger
Cuisine
Salle à manger
Salle de séjour
Entrer votre code postal pour filtrer les produits disponibles dans votre région.
Rez-de-chaussée
Étage
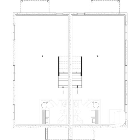
Sous-sol aménageable
Sous-sol aménagé (Optionel $)
Voir la grandeur des pièces et hauteur des plafonds
| Sous-sol aménagé (Optionel $) | ||
|---|---|---|
| Pièces | Dimensions | Plafond |
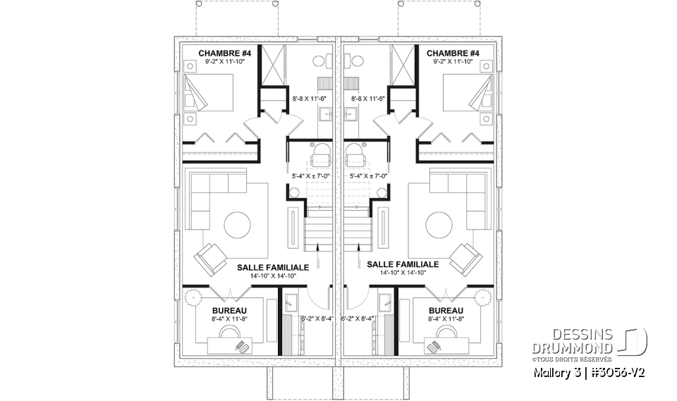
| Bureau à domicile | 8'4" x 11'8" | ~ 8'0" |
| Bureau à domicile | 8'4" x 11'8" | ~ 8'0" |
| Salle de lavage | 6'2" x 8'4" | ~ 8'0" |
| Salle de lavage | 6'2" x 8'4" | ~ 8'0" |
| Salle familiale | 14'10" x 14'10" | ~ 8'0" |
| Salle familiale | 14'10" x 14'10" | ~ 8'0" |
| Chambre à coucher | 9'2" x 11'10" | ~ 8'0" |
| Garde-robe | 9'2" x 2'0" | ~ 8'0" |
| Chambre à coucher | 9'2" x 11'10" | ~ 8'0" |
| Garde-robe | 9'2" x 2'0" | ~ 8'0" |
| Rangement | 3'2" x 2'7" | ~ 8'0" |
| Rangement | 3'2" x 2'7" | ~ 8'0" |
| Salle de bain | 8'8" x 11'6" | ~ 8'0" |
| Douche | 5'0" x 3'0" | N/D |
| Lingerie | 1'6" x 1'10" | N/D |
| Salle de bain | 8'8" x 11'6" | ~ 8'0" |
| Douche | 5'0" x 3'0" | N/D |
| Lingerie | 1'6" x 1'10" | N/D |
| Pièce de mécanique | 5'4" x 7'0" | ~ 8'0" |
| Pièce de mécanique | 5'4" x 7'0" | ~ 8'0" |
| Rez-de-chaussée | ||
|---|---|---|
| Pièces | Dimensions | Plafond |
| Perron | 8'0" x 4'0" | N/D |
| Perron | 8'0" x 4'0" | N/D |
| Entrée ou vestibule | 6'5" x 8'0" | ~ 9'6" |
| Garde-robe | 4'10" x 2'0" | ~ 9'6" |
| Entrée ou vestibule | 6'5" x 8'0" | ~ 9'6" |
| Garde-robe | 4'10" x 2'0" | ~ 9'6" |
| Salle de séjour | 12'0" x 10'0" | ~ 8'0" |
| Salle de séjour | 12'0" x 10'0" | ~ 8'0" |
| Salle à manger | 15'2" x 13'0" | ~ 8'0" |
| Salle à manger | 15'2" x 13'0" | ~ 8'0" |
| Coin toilette/lavabo | 5'11" x 5'0" | ~ 8'0" |
| Coin toilette/lavabo | 5'11" x 5'0" | ~ 8'0" |
| Cuisine | 12'6" x 13'8" | N/D |
| Cuisine | 12'6" x 13'8" | ~ 8'0" |
| Garde-manger | 5'11" x 5'8" | ~ 8'0" |
| Garde-manger | 5'11" x 5'8" | ~ 8'0" |
| Patio | 12'0" x 5'0" | N/D |
| Patio | 12'0" x 5'0" | N/D |
| Étage | ||
|---|---|---|
| Pièces | Dimensions | Plafond |
| Chambre à coucher | 14'0" x 12'0" | ~ 8'0" |
| Walk-in | 4'5" x 12'0" | ~ 8'0" |
| Chambre à coucher | 14'0" x 12'0" | ~ 8'0" |
| Walk-in | 4'5" x 12'0" | ~ 8'0" |
| Chambre à coucher | 11'4" x 10'8" | ~ 8'0" |
| Garde-robe | 4'2" x 2'0" | ~ 8'0" |
| Chambre à coucher | 11'4" x 10'8" | ~ 8'0" |
| Garde-robe | 4'2" x 2'0" | ~ 8'0" |
| Garde-robe | 4'4" x 1'6" | ~ 8'0" |
| Garde-robe | 4'4" x 1'6" | ~ 8'0" |
| Chambre à coucher | 9'8" x 10'8" | ~ 8'0" |
| Garde-robe | 4'2" x 2'0" | ~ 8'0" |
| Chambre à coucher | 9'8" x 10'8" | ~ 8'0" |
| Garde-robe | 4'2" x 2'0" | ~ 8'0" |
| Salle de bain complète | 8'9" x 10'8" | ~ 8'0" |
| Douche | 4'0" x 3'0" | N/D |
| Lingerie | 1'6" x 1'10" | N/D |
| Salle de bain complète | 8'9" x 10'8" | ~ 8'0" |
| Lingerie | 1'6" x 1'10" | N/D |
| Douche | 4'0" x 3'0" | N/D |
| Sous-sol aménageable |
|---|
Autres informations utiles sur ce plan
Superbe maison jumelée proposant 4+ chambres + bureau, ainsi que 2.5 salles de bain, par unité!
Cette nouvelle et magnifique maison jumeléex, de style contemporain et classique à la fois, fera le bonheur des familles avec 2+ enfants.
Elle propose un espace habitable d'approx. 2420 pi.ca. *aménagé sur 3 planchers et ce, pour chacune des unités. De plus, les 2 unités sont des répliques "mirroir", donc offre les mêmes espaces, mais inversés.
Vous aimez ce plan mais souhaiteriez y apporter quelques modifications, consultez l'un de nos bureaux régionaux et vous obtiendrez exactement ce que vous recherchez!
Deux autres versions de ce plan sont également disponibles. Consultez les plans 3056 et 3056-V1 pour les détails.
*Si vous souhaitez acheter le plan du sous-sol aménagé, veuillez sélectionner cette option dans le panier d'achat, dans la section "Sélectionner votre fondation". Si vous ne sélectionnez pas cette option, vous recevrez le sous-sol non fini, sans frais additionnel.
Éléments distinctifs
Magnifique style contemporain et chaleureux pour ce jumelé à étage, avec sous-sol aménagé optionel ($)
POUR CHACUNE DES DEUX UNITÉS:
Perron avant abrité.
Entrée avec plafond à 9'6'' alors que tous les autres plafonds sont à 8'.
Rez-de-chaussée à aire ouverte.
Grand îlot et garde-manger à la cuisine.
Belle fenestration au salon et à la salle à manger.
Pratique salle d'eau, en retrait de la cuisine.
Chambre des parents prévue avec garde-robe de type walk-in.
3 chambres à l'étage, se partagent une salle de bain complète. Cette dernière propose un bain et une douche séparée ainsi que deux lavabos.
*Sous sol aménagé (optionnel $):
Sous-sol aménagé avec chambre additionnelle, bureau, salle familiale, salle de douche et salle de lavage.
Possibilité de convertir le bureau en petite chambre (pour un total de 5 chambres au besoin).
*Si vous souhaitez acheter le plan du sous-sol aménagé, veuillez sélectionner cette option dans le panier d'achat, dans la section "Sélectionner votre fondation". Si vous ne sélectionnez pas cette option, vous recevrez le sous-sol non fini, sans frais additionnel.
Particularité(s) du plan
Ilôt, Garde-manger, Walk-in ch. maîtres, Bain et douche séparés, Tablettes, Banquette, Lavabo double
Style(s) architectural du plan
Notes légales
Ce modèle est protégé par la Loi sur les Droits d'Auteur.
De plus, les illustrations présentées peuvent différer du plan détaillé que vous recevrez, car ces derniers sont régulièrement ajustés afin de respecter les normes de construction en vigueur.
Plans similaires
Consultés précédemment
Merci pour votre commentaire! Celui-ci doit être approuvé avant d'être mis en ligne, veuillez allouer une période de 24 heures.
Erreur avec google reCaptcha! Veuillez réessayer.
Vous souhaitez apporter des modifications à ce plan?
Estimation gratuite en ligneVenez nous voir
Nos 31 bureauxVous apprécierez aussi
Pour vous assurer de bien préparer votre projet, nous vous proposons ce guide accompagnateur.
Voir le guidePlans similaires
Description
POUR CHACUNE DES DEUX UNITÉS:
Rez-de-chaussée:
Entrée, cuisine, salle à manger, salle de séjour, salle d'eau.
Étage:
3 chambres, salle de bain, lingerie.
*Sous sol aménagé (optionnel $):
Chambre, bureau (ou chambre #5), salle familiale, salle de bain, rangement, salle de lavage.
*Si vous souhaitez acheter le plan du sous-sol aménagé, veuillez sélectionner cette option dans le panier d'achat, dans la section "Sélectionner votre fondation". Si vous ne sélectionnez pas cette option, vous recevrez le sous-sol non fini, sans frais additionnel.
Prix et
reconnaissance
Voici une brève description de nos différents forfaits. Veuillez sélectionner le forfait qui vous convient. Vous pouvez modifier le forfait à l'étape subséquente, au besoin.
Plan version PDF:
Plan complet envoyé par courriel (format original du plan 18''x24'' ou 24''x36'')
5 copies de plan + PDF:
Inclut: 5 copies de plan, plan en format PDF (version réduite).
Type de fondation
La fondation précisée à cette ligne est incluse dans le plan que vous recevrez, dans le prix du plan ainsi que dans l'estimation du coût de construction SAUF dans le cas d'un sous-sol aménagé. La finition d'un sous-sol aménagé n'est JAMAIS incluse dans notre estimation sauf si avis contraire précisé dans la description du plan et/ou dans la section élément distinctif, sur la page du plan. Un sous-sol aménageable est un sous-sol non-fini, à finir plus tard, selon vos besoins.
Veuillez noter que plusieurs types de fondation additionnels sont disponibles, certains moyennant un frais. Vous pourrez sélectionner le type de fondation désiré, dans le bon de commande en ligne.
Si le type de fondation que vous souhaitez ne se trouve pas dans la liste des autres fondations disponibles, veuillez contacter notre service à la clientèle afin d'obtenir un estimé de notre département de modification de plan, ou simplement compléter le formulaire de demande de modification suivant : https://dessinsdrummond.com/formulaire-modification-de-plan-en-ligne et vous recevrez votre estimation gratuite dans les 2 à 4 jours ouvrables, approx..
Type de fondation
Le type de fondation précisé à cette ligne n'est pas inclus dans l'estimé des matériaux approximatif.
Veuillez noter que plusieurs types de fondation additionnels sont aussi disponibles. Vous pourrez sélectionner le type de fondation désiré, dans le bon de commande en ligne, ou nous joindre pour information.
Explication des types d'espace boni
Espace boni aménageable
L'espace boni aménageable est généralement prévu au-dessus du garage et il est accessible de la maison. Comme il est prévu aménageable, il pourra devenir un bureau, un espace buanderie, une salle de bain, un coin bibliothèque ou même une chambre additionnelle pour laquelle les propriétaires devront s'assurer d'avoir une fenêtre conforme aux normes en vigueur. De plus, la finition de cette espace boni est toujours INCLUSE dans nos estimation du coût de construction, sauf si avis contraire dans les sections « Description et/ou Éléments descriptifs » de la page du plan.
Rangement boni
Souvent localisé au-dessus du garage, le rangement boni est utilisé uniquement comme rangement et il est généralement accessible du garage via un escalier escamotable. De plus, la finition de ce rangement boni est toujours INCLUSE dans nos estimation du coût de construction, sauf si avis contraire dans les sections « Description et/ou Éléments descriptifs » de la page du plan.
Vous aimez ce plan mais souhaitez qu'il soit ajusté à vos besoins?
Pour ajouter un garage, une chambre, finir le sous-sol ou pour tout autre modification, cliquez ici afin de nous faire part de vos changements et obtenez votre soumission gratuite pour l'ajustement de votre plan.
Comprendre les prix Dessins Drummond
Estimation des coûts de construction de Dessins Drummond
Maisons, chalets & multi-logements
INCLUS DANS NOS ESTIMATIONS DE COÛTS
– voir détails plus bas
- Construction avec un entrepreneur
- Fondation
- Toiture
- Revêtement et poutre décorative extérieur
- Fenêtres
- Balcon avant et terrasse abritée
- Garage attaché et pièce ou rangement
- Sous-sol fini si aménagé sur le site
- Espace ou pièce boni intérieure
- Plan écologique : coupe de mur éco
- Plomberie & salle(s) de bain
- Électricité et luminaires fixes au plafond
- Chauffage
- Plafonds intérieurs
- Planchers
- Cuisine
- Escaliers
- Foyer
- Multi-logements : finition des unités
EXCLUS DE NOS ESTIMATIONS DE COÛTS
– voir détails plus bas
- Économie auto-constructeur
- Taxes
- Terrain
- Excavation
- Garage détaché
- Raccords aux services de la ville
- Aménagement terrain, piscine, fleurs
- Patio non abrité
- Toiture de tôle
- Cuisine extérieure
- Mobilier et décoration intérieur et extérieur
- Poutres décoratives intérieures
- Luminaires non fixés au plafond
- Système de climatisation
- Poutres de bois décoratives intérieures
Nos estimations de coûts sont des moyennes provinciales, et sont là pour vous donner un "approximatif" de la valeur de nos modèles, construits avec un entrepreneur. Ce faisant, ils peuvent varier de +/- 30% selon votre région, votre entrepreneur et vos choix de matériaux.
Si vous choisissez l'auto-construction, vous pourrez économiser de 10% à 30% de notre estimation selon votre implication et compétence.
Comme nous ne construisons pas, nous nous dégageons de toutes responsabilités à l'égard des estimations indiquées. De plus, prendre note que nos estimations sont modifiées sans préavis, régulièrement. Il est donc de votre responsabilité de valider auprès d'entrepreneurs de votre région en les questionnant sur ses délais de livraison et coûts de construction réels versus nos estimations ce, avant l'achat d'un plan, car ce dernier n'est ni échangeable ni remboursable.
Avec un entrepreneur
Cette mention sur notre site signifie que nos estimations sont basées sur des constructions clé-en-main, donc gérés de A à Z par des entrepreneurs compétents et qualifiés. Elles incluent et excluent les éléments prévus au tableau ci-haut. Ne pouvant prédire les choix que vous ferez avec votre entrepreneur, nous considérons qu'il utilisera des matériaux de qualité courante (pas le plus cher, pas le moins cher).
Auto-Construction
Signifie que vous gérez vous-même votre projet tout en réalisant certains travaux comme la pose de l'isolant, du gypse, du pare-vapeur et l'application de la peinture, pour n'en nommer que quelques-uns. Selon votre degré d'implication, vous pourriez sauver jusqu'à 30% du coût total de construction, mais rarement plus, à moins que vous soyez un professionnel de la construction!
Extérieur
Ci-bas vous retrouverez les détails de ce qui est inclus et exclus dans nos estimations, en lien avec les images extérieures telles que présentées sur notre site.
-
Fondation et terrain:
Le type de fondation spécifié dans la section « détails techniques » sur la fiche du plan, est inclus dans notre estimation, soit sous-sol fini, rez-de-jardin, dalle, vide sanitaire, pieux vissés ou sous-sol à aménager. Par exemple, si la fondation principale indiquée sur le site est une dalle, l'estimation inclus le prix approx. d'une dalle. Si le sous-sol est aménagé avec des meubles et noms aux pièces, sa finition est incluse dans notre estimation. Il faut donc considérer que si vous souhaitez avoir un sous-sol sur une maison présentée avec une dalle, le coût sera supérieur. Pour l'option d'une dalle monolithique, certaines villes ou municipalités peuvent exiger un sceau d'ingénieur selon le code du bâtiment. Le coût pour l'obtention du sceau d'ingénieur sera à votre charge. Si vous souhaitez une fondation différente, c'est possible! Voir les détails ici! Votre terrain ainsi que le coût de l'excavation ne sont pas inclus dans nos estimations car le coût des terrains varie énormément, et plusieurs terrains particuliers requièrent, par exemple, du dynamitage, il nous est donc impossible de savoir.
-
Toiture:
Le type de toiture et ses matériaux illustrés sont inclus : 2 versants, plat, 4 versants ou toiture complexe, ainsi que le bardeau d'asphalte. Nous n'incluons pas les toits de tôle dans nos estimations.
-
Revêtement extérieur & poutre extérieure décorative:
Les estimations de maison incluent les revêtements tels qu'illustrés sur notre site. Les maisons modestes sont calculées avec un revêtement de clin régulier en vinyle. Pour les maisons régulières et plus complexes, nous ajoutons des montants approximatifs (au pi.ca.) : clin de fibrociment, de cèdre, maçonnerie légère ou régulière (partiel ou total), board & batten, bois, et autres. Les poutres de bois illustrées sur l'extérieure de nos maisons sont aussi incluses dans le coût, mais elles sont «capées » et non en bois massif. Il en est de même pour les portes d'entrée et portes de garage. Elles sont incluses aux estimations, mais de qualité standard. Concernant les revêtements de maçonnerie : on propose, sur plusieurs modèles, une touche de brique-pierre comme on en retrouve chez la plupart des fabricants de brique (faire attention de ne pas confondre avec de la pierre naturelle, rarement sur nos illustrations et beaucoup plus dispendieuse). NOTE : Si vous souhaitez utiliser un revêtement de maçonnerie plutôt qu'un clin comme illustré sur le plan que vous avez choisi, svp nous contacter car vous aurez besoin de faire modifier le plan en conséquence.
-
Fenêtres:
Les fenêtres incluses aux estimations sont celles illustrées sur le site.
-
Balcon, terrasse et patio:
Les balcons avant et latéraux, ainsi que les terrasses abritées qui sont illustrés sur nos plans, sont inclus aux coûts. Cependant, les patios non abrités ainsi que les cuisines extérieures ne sont pas inclus aux coûts, sauf si indication contraire sur le site.
-
Garage attaché à la maison:
Le garage attaché à la maison, au jumelé ou au chalet choisi, et tel qu'illustré sur notre site, est inclus dans l'estimation. Si un garage détaché est présent sur l'image de la maison, voir sur le site pour savoir s'il est inclus au plan que vous recevrez, et si son coût est inclus dans l'estimation ou pas.
-
Pièce ou rangement boni au-dessus du garage attaché:
Si une pièce bonie ou un rangement boni est prévue à l'étage du garage, il est inclus dans l'estimation, qu'il soit accessible par un escalier standard, escamotable ou une trappe au plafond (voir un petit rectangle sur le plancher du garage).
-
Plans Écologiques
Pour tous les plans de notre collection écologique, l'estimation est calculée comme pour une maison normale + 10% servant à construire une coupe de mur écologique. De plus si une serre est prévue au plan, un montant de min. 20,000$ est inclus à l'estimation. Pour plus de détails, veuillez nous contacter.
Intérieur
Ci-bas vous retrouverez les détails de ce qui est inclus et exclus dans les estimations, en lien avec les images intérieures telles que présentées sur notre site.
-
Sous-sol aménagé:
Si un sous-sol est aménagé sur notre site (présence de mobilier et titres aux différentes pièces), sa finition est incluse dans notre estimation. Conséquemment, le plan de construction que vous recevrez inclura le plan du sous-sol aménagé.
Pareillement pour les multi-logements qui ont un sous-sol aménagé, le coût approximatif de sa finition sera inclus dans nos estimations.
-
Espace boni à l'intérieur de la maison:
L'estimation pour la finition d'espace ou pièce boni accessible de l'intérieur de la maison est inclus dans notre coût de construction.
-
Plomberie et salle de bain(s):
Il n'y a pas de plan de plomberie inclus au plan que vous recevrez. Cependant, les estimations reliées à l'installation d'un système de plomberie standard, ainsi que les accessoires tels éviers, douche(s) en acrylique, toilette(s), bain(s) standard(s) sont inclus.
-
Électricité & luminaires:
Il n'y a pas de plan électrique inclus au plan que vous recevrez. Cependant, les estimations de coûts reliées à l'installation d'un système électrique standard avec plinthes électriques, ainsi que les interrupteurs muraux sont incluses. Tous les luminaires de la maison qui ne sont pas fixés au plafond sont exclus des estimations.
-
Chauffage:
L'installation d'un système de chauffage électrique ainsi que les plinthes et gradateurs muraux sont inclus dans nos estimations.
-
Plafond et poutres:
La hauteur de plafonds prévue à chaque étage, et précisée sur la fiche du plan, est incluse dans les estimations. Ainsi si un/des planchers prévoient un plafond cathédral ou à plus de 8' ou en pente, les estimations s'y rattachant sont incluses.
Cependant, si des poutres ou moulures de bois ou imitation de bois sont installées dans un plafond cathédral (sur nos illustrations ou photos), elles ne sont pas incluses dans les estimations. À noter que les poutres de bois illustrées sur l'extérieure de nos maisons sont incluses dans le coût, mais elles sont «capées » et non en bois massif.
-
Planchers:
Les revêtements aux différents planchers prévus sont : de la céramique de qualité standard à l'entrée principale, à la cuisine et à la (aux) salle(s) de bain, du bois-franc aux aires communes (salle de séjour, salle à manger) et aux chambres du rez-de-chaussée et à l'étage. Pour les sous-sols aménagés : plancher flottant partout, sauf aux salles de bain et salle de lavage qui sont prévues en céramique.
-
Cuisine:
Les armoires incluses aux estimations sont de qualité standard. Les dessus de comptoir sont en stratifié standard, sauf pour les maisons plus haut de gamme (à plus de 500,000$ approx.), qui prévoient des comptoirs en surface solide de type quartz. Les dosserets de comptoir sont prévus en céramique moyenne de gamme. La plomberie de la cuisine ainsi que les luminaires fixes sont inclus dans les estimations.
-
Escalier:
Les escaliers montants à l'étage sont en bois franc et ceux descendants vers le sous-sol sont en particule de bois (ou tapis).
-
Maisons jumelés | Triplex | Multilogements:
Les estimations pour les plans de maisons jumelées, triplex et multi-logements incluent la finition de toutes les unités telle qu'aménagée sur notre site.
BESOIN D'AIDE?
Consultez l'un de nos 31 bureaux si vous souhaitez plus d'information sur nos estimations ou afin d'obtenir un prix plus précis selon vos besoins et votre région.
Pour de plus ample information vous pouvez nous appeler ou écrire par courriel: 1-800-567-1413 ou [email protected]
Estimation des coûts de construction
Estimation des coûts de construction de Dessins Drummond
Garages détachés
INCLUS DANS NOS ESTIMATIONS DE COÛTS
– voir détails plus bas
- Construction avec un entrepreneur
- Fondation
- Toiture
- Revêtements extérieurs
- Fenêtres
- Balcon avant et terrasse abritée
- Murs isolés
- Pièce ou rangement boni
- Électricité et luminaires fixes au plafond
- Chauffage
- Foyer ou poêle à bois si illustré
EXCLUS DE NOS ESTIMATIONS DE COÛTS
– voir détails plus bas
- Taxes
- Terrain
- Excavation au besoin
- Aménagement terrain, piscine, fleurs
- Patio non abrité
- Toiture de tôle
- Cuisine extérieure
- Mobilier, décoration intérieur et extérieur
- Luminaires non fixés au plafond
Nos estimations de coûts sont des moyennes provinciales, et sont là pour vous donner un "approximatif" de la valeur de nos garages, construits avec un entrepreneur. Ce faisant, ils peuvent varier de +/- 30% selon votre région, votre entrepreneur et vos choix de matériaux. Si vous choisissez l'auto-construction, vous pourrez économiser de 10% à 30% de notre estimation selon votre implication et compétence.
Si vous choisissez l'auto-construction, vous pourrez économiser de 10% à 30% de notre estimation selon votre implication et compétence.
Comme nous ne construisons pas, nous nous dégageons de toutes responsabilités à l'égard des estimations indiquées. De plus, prendre note que nos estimations sont modifiées sans préavis, régulièrement. Il est donc de votre responsabilité de valider auprès d'entrepreneurs de votre région en les questionnant sur ses délais de livraison et coûts de construction réels versus nos estimations ce, avant l'achat d'un plan, car ce dernier n'est ni échangeable ni remboursable.
Avec un entrepreneur
Cette mention sur notre site signifie que nos estimations sont basées sur des constructions clé-en-main, donc gérés de A à Z par des entrepreneurs compétents et qualifiés. Elles incluent et excluent les éléments prévus au tableau ci-haut. Ne pouvant prédire les choix que vous ferez avec votre entrepreneur, nous considérons qu'il utilisera des matériaux de qualité courante (pas le plus cher, pas le moins cher).
Auto-Construction
Signifie que vous gérez vous-même votre projet tout en réalisant certains travaux comme la pose de l'isolant, du gypse, du pare-vapeur et l'application de la peinture, pour n'en nommer que quelques-uns. Selon votre degré d'implication, vous pourriez sauver jusqu'à 30% du coût total de construction, mais rarement plus, à moins que vous soyez un professionnel de la construction!
Extérieur
Ci-bas vous retrouverez les détails de ce qui est inclus et exclus dans les estimations, en lien avec les images extérieures telles que présentées sur notre site.
-
Fondation et terrain:
Le type de fondation spécifié dans la section « détails techniques » sur la fiche du plan, est inclus dans notre estimation, soit dans la majorité des cas une dalle flottante ou une dalle monolithique. Pour l'option d'une dalle monolithique, certaines villes ou municipalités peuvent exiger un sceau d'ingénieur selon le code du bâtiment. Le coût pour l'obtention du sceau d'ingénieur sera à votre charge. Si vous souhaitez une fondation différente, c'est possible! Voir les détails ici!
-
Toiture:
Le type de toiture et ses matériaux illustrés sont inclus : 2 versants, plat, 4 versants ou toiture complexe, ainsi que le bardeau d'asphalte. Nous n'incluons pas les toits de tôle dans nos estimations.
-
Revêtement extérieur:
Les estimations de garage incluent les revêtements tels qu'illustrés sur notre site. Concernant les revêtements de maçonnerie : on propose, sur plusieurs modèles, une touche de brique-pierre comme on en retrouve chez la plupart des fabricants de brique (faire attention de ne pas confondre avec de la pierre naturelle très rarement sur nos illustrations et beaucoup plus dispendieuse). NOTE : Si vous souhaitez utiliser un revêtement de maçonnerie plutôt qu'un clin comme illustré sur le plan que vous avez choisi, svp nous contacter car vous aurez besoin de faire modifier le plan en conséquence.
-
Fenêtres:
Les fenêtres incluses aux estimations sont celles illustrées sur le site.
-
Balcon, terrasse abritée, appentis et patio:
Les balcons avant et latéraux, ainsi que les terrasses abritées et les appentis qui sont illustrés sur nos plans de garage, sont inclus aux estimations. Cependant, les patios non abrités ainsi que les cuisines extérieures pouvant être illustrés ne sont pas inclus aux coûts, sauf si indication contraire sur le site.
Intérieur
Ci-bas vous retrouverez les détails de ce qui est inclus et exclus dans les estimations de nos plans de garage, tels que présentés sur notre site.
-
Pièce ou rangement boni au-dessus du garage attaché:
Si une pièce bonie ou un rangement boni est prévue à l'étage du garage, il est inclus dans l'estimation, qu'il soit accessible par un escalier standard ou escamotable, ou simplement une trappe au plafond (petit rectangle dessiné sur le plan du garage, sur le site).
-
Électricité & luminaires:
Il n'y a pas de plan électrique inclus au plan que vous recevrez. Cependant, les estimations de coûts reliées à l'installation d'un système électrique standard avec plinthes électriques, ainsi que les interrupteurs muraux sont incluses. Tous les luminaires de la maison qui ne sont pas fixés au plafond sont exclus des estimations.
-
Chauffage:
L'installation d'un système de chauffage électrique ainsi que les plinthes et gradateurs muraux sont inclus dans nos coûts.
BESOIN D'AIDE?
Consultez l'un de nos 31 bureaux si vous souhaitez plus d'information sur nos estimations ou afin d'obtenir un prix plus précis selon vos besoins et votre région.
ESTIMATION DU COÛT APPROXIMATIF DES MATÉRIAUX
Les coûts approximatifs des matériaux indiqués sur notre site internet sont des moyennes provinciales qui peuvent varier jusqu'à 30% et plus selon la région, la saison de construction et vos choix de matériaux. Ils sont basés sur l'utilisation de matériaux de qualité courante, que la plupart des entrepreneurs utilisent. De plus ils peuvent changer à tout moment, sans préavis, compte tenu de l'important fluctuation des prix des matériaux, depuis 2020.
Nos estimations excluent les taxes, les raccords municipaux, les frais reliés à l'électricité, le chauffage, la main d'œuvre, le terrain, l'excavation et la fondation (précisée dans la fiche détaillée du plan choisi à la ligne « Type de fondation »).
Conditions d'impression
Imprimer ne donne pas tous les droits! Lisez bien ce texte avant de procéder à l'impression:
En imprimant un modèle de maison, chalet ou garage ainsi que son (ses) plancher(s), vous reconnaissez avoir été informé que tous les modèles présentés sur ce site sont la
propriété exclusive de Dessins Drummond et sont protégés par la loi Canadienne sur les droits d'auteur. Vous avez conscience que ces imprimés ne peuvent servir à construire
ni même à obtenir un permis de construction. L'impression gratuite de ces modèles vous est offerte par Dessins Drummond dans le seul et unique but de vous permettre de modifier le
plancher pour ensuite présenter le tout à une agence de Dessins Drummond dans le but de modifier le plan.
L'achat d'un plan unifamilial, multifamilial ou de garage chez Dessins Drummond est obligatoire si vous désirez construire n'importe quel de nos modèles. L'achat d'un plan vous permet de construire une seule maison; vous ne pouvez revendre votre plan ni l'offrir à quiconque de votre entourage une fois votre maison, chalet ou garage construit. Si vous désirez construire plusieurs fois la même maison, chalet ou garage, vous devez avoir obtenu une licence à cet effet. Contactez-nous pour plus de détails.
Tous les plans de Dessins Drummond ne peuvent être modifiés que par Dessins Drummond et ses agences reconnues; si vous faites modifier votre plan par une autre entreprise ou personne que Dessins Drummond, assurez-vous que cette entreprise ou personne détient une licence pour la modification de ce plan sinon, vous êtes passible de poursuite judiciaire au même titre que l'entreprise ou la personne avec qui vous avez fait affaires pour la modification ou la reproduction du plan.
Pour plus de détails, n'hésitez pas à nous contacter par courriel ou téléphone au 1-800-567-1413.
Je m'engage, par la présente, à respecter le texte ci-haut et à ne pas reproduire, modifier ou construire un modèle Dessins Drummond sans m'être procuré au préalable, un plan complet à cet effet.













