Plan de maison – recherche avancée

Trouvez le plan de maison idéale parmi nos milliers de plans et modèles de maison, plans de chalet, plans de garage, plans de maison bi-génération, plans de jumelée! Utilisez les filtres pour préciser vos besoins ou recherchez parmi nos centaines de collections tels nouveautés ou par coûts de construction ou styles de maisons! Obtenez votre estimation en ligne gratuite pour la modification, au besoin, via l'un de nos 30 bureaux en personne ou en visioconférence!

Besoin d'aide pour trouver le plan parfait? Faites nous parvenir vos critères et nous effectuerons une recherche personnalisée pour vous!

Par défaut
1335 plan(s) trouvé(s)
1335 plan(s) trouvé(s)

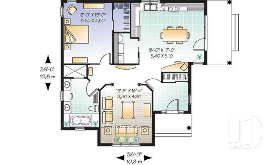
Adam 2 4588

Champêtre

Chambres 2
Salles de bain 1.5
Pied carré 1246 PI²
Avec un entrepreneur
323,962$
Plan à partir de
1515$

Gaillon 1 4597

Champêtre

Chambres 2, 3
Salles de bain 2
Pied carré 1168 PI²
Avec un entrepreneur
320,759$
Plan à partir de
1450$

Hamann 2 4613

Champêtre

Chambres 2
Salles de bain 1.5
Pied carré 1315 PI²
Avec un entrepreneur
415,512$
Plan à partir de
1515$

Acrivie 4743

Traditionnelle

Chambres 3
Salles de bain 1.5
Pied carré 1485 PI²
Avec un entrepreneur
405,731$
Plan à partir de
1515$

Penelope 2 4772

Victorien

Chambres 3
Salles de bain 1.5
Pied carré 1584 PI²
Avec un entrepreneur
446,609$
Plan à partir de
1680$

Nauli 2 4786

Américain

Chambres 3
Salles de bain 1.5
Pied carré 1296 PI²
Avec un entrepreneur
350,476$
Plan à partir de
1515$

La Jolla 2 4819

Méditerranéen

Chambres 4
Salles de bain 2.5
Pied carré 2119 PI²
Avec un entrepreneur
647,563$
Plan à partir de
1740$

Joice 2 4919

Transitionnel

Chambres 2, 3
Salles de bain 2
Pied carré 1295 PI²
Avec un entrepreneur
331,472$
Plan à partir de
1515$

Whiskey Jack 4925

Chalet

Chambres 2
Salles de bain 1
Pied carré 1304 PI²
Avec un entrepreneur
337,481$
Plan à partir de
1515$

Madelaine 2 4940

Champêtre

Chambres 2
Salles de bain 1.5
Pied carré 1482 PI²
Avec un entrepreneur
429,129$
Plan à partir de
1515$

William 2 4941

Ranch

Chambres 2
Salles de bain 1
Pied carré 1114 PI²
Avec un entrepreneur
362,655$
Plan à partir de
1450$

Palmyre 4947

Champêtre

Chambres 3
Salles de bain 1
Pied carré 1077 PI²
Avec un entrepreneur
314,975$
Plan à partir de
1450$