
Plan de maison Sylvestre 3 (3260-V2)
Acheter ce planÀ partir de 1440$ Voir prix et options
Plan de maison Sylvestre 3 (3260-V2)
Plan de maison de plain-pied, 2 chambres, garage double avec espace boni, belle fenestration
Venez nous voir
Estimation
Coûts ($) Est. entrepreneur | À partir de 448,262$ |
Spécifications générales
Surface aménagée totale | 1401 pi2 |
Rez-de-chaussée | 1401 pi2 |
Rangement boni | 0 pi2 |
Largeur | 50'4" |
Profondeur | 48'4" |
Hauteur dessus fondations au faite | 23'10" |
Murs extérieurs | 2 X 6 |
Type de fondation incluse au plan | Sous-sol aménageable |
Autres fondations disponibles (des frais peuvent s'appliquer) | Dalle flottante, Vide sanitaire |
Code Entrepreneur | C |
Spécifications sur les pièces
Chambre(s) | 2 |
Salle(s) de bain complète(s) | 1 |
Demi Salle(s) de Bain | - |
Type de garage | 2 voitures (495 pi2) |
Espace boni aménageable | - |
Rangement boni | 322 pi2 |
Superficie balcon et/ou perron abrité | 28 pi2 |
Estimation
Spécifications générales
Surface aménagée totale | 1401 pi2 |
Rez-de-chaussée | 1401 pi2 |
Rangement boni | 0 pi2 |
Largeur | 50'4" |
Profondeur | 48'4" |
Hauteur dessus fondations au faite | 23'10" |
Murs extérieurs | 2 X 6 |
Type de fondation incluse au plan | Sous-sol aménageable i |
Autres fondations disponibles (des frais peuvent s'appliquer) | Dalle flottante, Vide sanitaire |
Code Entrepreneur | C |
Spécifications sur les pièces


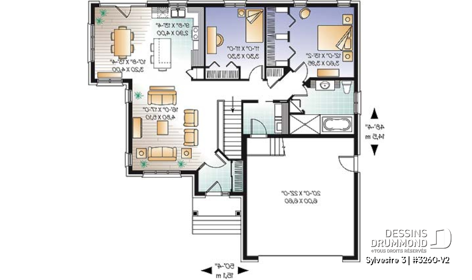
Voir la grandeur des pièces et hauteur des plafonds
Rez-de-chaussée | ||
---|---|---|
Pièces | Dimensions | Plafond |
Cuisine | 9'8" x 13'4" | ~ 8'0" |
Garde-manger | 2'0" x 2'0" | N/D |
Salle à manger | 10'8" x 13'4" | ~ 8'0" |
Salle de séjour | 16'0" x 17'0" | ~ 8'0" |
Entrée ou vestibule | 6'0" x 5'10" | ~ 8'0" |
Garde-robe | 2'0" x 5'9" | ~ 8'0" |
Salle de bain complète | 12'0" x 10'0" | ~ 8'0" |
Chambre à coucher | 12'0" x 13'2" | ~ 8'0" |
Walk-in | 4'0" x 11'0" | ~ 8'0" |
Chambre à coucher | 11'0" x 11'0" | ~ 8'0" |
Garde-robe | 6'2" x 2'0" | ~ 8'0" |
Garage | 20'0" x 22'0" | ~ 10'0" |
Salle de lavage | 8'3" x 5'10" | ~ 8'0" |
Lingerie | 3'2" x 2'0" | ~ 8'0" |
Perron abrité | 9'0" x 3'6" | N/D |
Terrasse | 12'0" x 5'0" | N/D |
Rangement boni | ||
---|---|---|
Pièces | Dimensions | Plafond |
Rangement boni | 14'0" x 22'0" | ~ 8'0" |
Autres informations utiles sur ce plan
Plan de plain pied de style ranch, garage double et plancher intérieur bien confortable
.
Éléments distinctifs
Vestibule original à l'entrée principale. Salle de séjour de grand format. Salle à manger abondamment fenêtrée et dotée d'une porte-jardin triple à l'arrière. Cuisine avec îlot-lunch central. Chambre des maîtres avec garde-robe walk-in. Salle de bain avec grande douche de 68" x 44". Espace buanderie prévu au rez-de-chaussée. Rangement boni de 322 pi2 au-dessus du garage et accessible avec un escalier escamotable.
Particularité(s) du plan
Aire ouverte, Salle de lavage au rez-de-chaussée, Vue paronamique, Bain et douche séparés, Walk-in double ch. maîtres, Vestibule, Ilôt
Style(s) architectural du plan
Notes légales
Ce modèle est protégé par la Loi sur les Droits d'Auteur.
De plus, les illustrations présentées peuvent différer du plan détaillé que vous recevrez, car ces derniers sont régulièrement ajustés afin de respecter les normes de construction en vigueur.
Plans similaires
Consultés précédemment
Questions et commentaires sur ce plan
16 Janvier
charlène landry
bonjour j'aimerais savoir si en apportant quelques modification à ce plan...entre-autre surface habitable au-dessus du garage....la salle de lavage en moin et en oubliant la pierre tout le tour de la maison....s-sol non-fini....projet auto-constructeur est-ce réaliste de penser que nous pourrions nous en sortir dans les 200000$?
16 Janvier
Service à la clientele
Bonjour Mme. Landry et merci pour votre intérêt au niveau de nos plans.
Étant-donné que nous ne faisons aucune construction, vous me voyez dans l'impossibilité de vous répondre au niveau du montant que ces changements vous permettra d'économiser.
Je vous transmets le lien pour notre demande de modifications en ligne avec lequel vous pourriez obtenir un estimée gratuit pour les changements que vous désirez faire au niveau d ce plan.
http://www.dessinsdrummond.com/modification-de-votre-plan/formulaire-de-modification-en-ligne/plan/1002975.html
N'hésitez pas de me relancer si je peux vous assister davantage.
Bien à vous
Deborah
Questions et commentaires
08 Avril
Yanick
Bonjour,
Nous voyons bien l'espace boni au-dessus du garage, mais quelle serait la configurations des escaliers si nous voulons y accéder par l'intérieur de la maison. Le but est de savoir si nous pourrions envisager ce plan dans les dimensions actuelles, mais avec une troisième chambre.
Merci!
Merci!
16 Janvier
charlène landry
bonjour j'aimerais savoir si en apportant quelques modification à ce plan...entre-autre surface habitable au-dessus du garage....la salle de lavage en moin et en oubliant la pierre tout le tour de la maison....s-sol non-fini....projet auto-constructeur est-ce réaliste de penser que nous pourrions nous en sortir dans les 200000$?
16 Janvier
Service à la clientele
Bonjour Mme. Landry et merci pour votre intérêt au niveau de nos plans.
Étant-donné que nous ne faisons aucune construction, vous me voyez dans l'impossibilité de vous répondre au niveau du montant que ces changements vous permettra d'économiser.
Je vous transmets le lien pour notre demande de modifications en ligne avec lequel vous pourriez obtenir un estimée gratuit pour les changements que vous désirez faire au niveau d ce plan.
http://www.dessinsdrummond.com/modification-de-votre-plan/formulaire-de-modification-en-ligne/plan/1002975.html
N'hésitez pas de me relancer si je peux vous assister davantage.
Bien à vous
Deborah
Merci pour votre commentaire! Celui-ci doit être approuvé avant d'être mis en ligne, veuillez allouer une période de 24 heures.
Erreur avec google reCaptcha! Veuillez réessayer.
Vous souhaitez apporter des modifications à ce plan?
Estimation gratuite en ligneVenez nous voir
Nos 31 bureauxVous apprécierez aussi
Pour vous assurer de bien préparer votre projet, nous vous proposons ce guide accompagnateur.
Voir le guidePlans similaires
Description
Rez-de-chaussée: Vestibule, salle de séjour, salle à manger, cuisine-dînette, deux chambres, salle de bain et espace buanderie.
Prix et
reconnaissance










08 Avril
Yanick
Bonjour,
Nous voyons bien l'espace boni au-dessus du garage, mais quelle serait la configurations des escaliers si nous voulons y accéder par l'intérieur de la maison. Le but est de savoir si nous pourrions envisager ce plan dans les dimensions actuelles, mais avec une troisième chambre.
Merci!
Merci!