Estimation gratuite en ligne
Estimation gratuite en ligne
FR
  • EN
Connexion / Inscription
0
Voir mon panier Aucun plan dans votre panier
Estimation gratuite en ligne
  • Plans de maison
  • Collections
  • Photos
  • Design int.
  • Sur mesure
  • Réno
  • Entrepreneurs
  • PLANS
  • COLLECTIONS
  • PHOTOS
  • DESIGN D'INT.
  • SUR MESURE
  • RÉNO
  • ENTREPRENEURS
Dessins Drummond
  • Recherche avancée
  • Collaborations
  • Collections de plans
  • Nouveautés
  • Récemment vendus
  • 100 Plans + populaires
  • Galerie photos
  • Par coût de construction
  • Par nombre de chambre(s)
  • Par type de fondation
  • Farmhouse
  • Contemporain
  • Scandinave
  • Plain-pied
  • Maison à étage
  • Chalet
  • Mini-maison
  • Garage
  • Remise / Pavillon piscine
  • Bi-génération / Jumelé / Multi
  • Plans sur mesure
  • Joindre un des 31 bureaux
  • 0
    Voir toute la liste Aucun plan dans vos favoris
  • 0
    Afficher le comparateur Aucun plan dans votre comparateur
Recherche Rapide
Dessins Drummond
  • Recherchez votre plan
    Recherchez votre plan
    JE CHERCHE...
    • Plain-pied
    • Maison à étages
    • Chalet
    • Bi-Génération
    • Jumelé
    • Garage
    • Bachelor
    • Multi-logement
    • mini-maison
    • Pavillon
    Voir tous les plans
  • Collaborations
    Collaborations
    Collaborations Maibec
    Collaborations Stûv
    Collaborations Konergie
    Collaborations Rinox
    Collaborations Rona
    Collection Jenn X Dessins Drummond
  • Collections populaires
    Collections populaires
    JE CHERCHE...
    • Nouveautés
    • Farmhouse
    • Contemporaine
    • Scandinave
    • Par type de fondation
    • Moins de 250 000$
    • Maison avec bureau
    • 3 chambres + 2 sdb.
    • Bi-Génération
    • Plans éco-responsables et durables
    • Récemment vendus
    Voir toutes les collections
  • Modifier un plan
    Modifier un plan
    Modifier un plan
    • Comment ça marche
    • Formulaire en ligne
    • Galerie photos
    • Combien ça coûte
    Demander une soumission Nos 31 points de vente

    Besoin d'un entrepreneur?
  • Plan sur mesure
    Plan sur mesure
    Obtenir un sur mesure
    • Comment ça marche
    • Formulaire en ligne
    • Galerie photos
    • Combien ça coûte
    Prendre RDV Nos 31 points de vente

    Besoin d'un entrepreneur?
  • Plan de rénovation
    Plan de rénovation
    Améliorer votre maison (rénovation)
    • Comment ça marche
    • Formulaire en ligne
    • Rencontre à nos bureaux
    • Plan de rénovation en ligne
    • Combien ça coûte
    Galerie photos de rénovation
    • Voir toutes les photos
    • Agrandissement
    • Ajout d'étage
    • Ajout de garage ou d'abri d'auto
    • Ajout de solarium
    • Ajout de terrasse ou de galerie
    • Embellissement extérieur
    • Réorganisation intérieure
    Prendre RDV Nos 31 points de vente

    Besoin d'un entrepreneur?
  • Maison référence
  • photos & vidéos
    Plans et projets
    PLANS DESSINS DRUMMOND Voir la galerie
    PLANS SUR MESURE Voir la galerie
    PLANS MODIFIÉS Voir la galerie
    PLANS RÉNOVATIONS AVANT/APRÈS Voir la galerie
    VIDÉOS Voir les vidéos
  • Information sur nos plans
    Information sur nos plans
    Forfaits plans & options
    • Estimation des coûts de construction
    • Différent forfaits
    • Options de fondations disponibles
    Engagement du meilleur plan
    • Voir plus de détails
    Information technique
    • Tout ce qu'il faut savoir
  • Services complémentaires
    Services complémentaires
    Services complémentaires au plan
    • Liste des matériaux
    • Document d'aide à la construction
    • Licence pour construction multiple

    Besoin d'un entrepreneur?
  • Section entrepreneurs
    Section entrepreneurs
    Programme
    • Entrepreneur
    Autres services
    • Services reliés aux plans
    • Licence pour dessinateurs
    • Publicisez votre entreprise sur notre site
    Plans pour entrepreneur Contacter notre représentant

    Besoin d'un entrepreneur?
  • Blogue
  • FAQ
    Foire aux questions
    Questions fréquentes
    • Estimation des coûts de construction
    • Questions techniques sur nos plans
    • Questions sur la modification de nos plans
    • Questions sur nos services additionnels
    • Questions sur les droits d'auteur
  • Nos 31 bureaux
  • PLANS
  • COLLECTIONS
  • DESIGN INT.
  • SUR MESURE
  • RÉNO
  • ENTREPRENEURS
Dessins Drummond

Recherche

?

  • 0
  • 1
  • 2
  • 3
  • 4
  • 5
  • 6+
Recherche avancée
Vacances de Noël 2025
Vue avant - MODÈLE DE BASE - Maison Farmhouse à étage avec garage double, 3 chambres et magnifique vue panoramique à l'arrière de la maison - Sophia
Vue avant - MODÈLE DE BASE - Sophia
Vue avant - MODÈLE DE BASE - Sophia
Vue arrière - MODÈLE DE BASE - Sophia
Élévation arrière - Sophia
Vue intérieure - Sophia

Entrer votre code postal pour filtrer les produits disponibles dans votre région.

Fermer
${ currentTag.enterprise_name }
${ currentTag.modele }
${ currentTag.price }
${ currentTag.description }
${ currentTag.enterprise_description }
${ currentTag.label }
Fermer Éditer
Vignette Vue avant - MODÈLE DE BASE - 3640
Vignette Vue avant - MODÈLE DE BASE - 3640
Vignette Vue avant - MODÈLE DE BASE - 3640
Vignette Vue arrière - MODÈLE DE BASE - 3640
Vignette Élévation arrière - 3640
Vignette Vue intérieure - 3640
Accueil
Recherchez votre plan
Fiche du plan - Sophia 3640

Plan de maison Sophia  (3640)

Acheter ce plan
À partir de 1740$
Voir prix et options
Superficie p2 2174
Chambre 3
S. bains 2
S. eau 1
Estimation ($)
Avec un entrepreneur À partir de 715,005$?
Fondation
Dalle flottante (Inclus dans l'estimation)?
Garage 2 voitures
Largeur 61'10"
Profondeur 39'10"
Accueil
Recherchez votre plan
Fiche du plan - Sophia 3640

Plan de maison Sophia  (3640)

Maison Farmhouse à étage avec garage double, 3 chambres et magnifique vue panoramique à l'arrière de la maison

Favoris
Comparer
Inverser
Imprimer
Questions
Partager

Acheter ce plan

À partir de 1740$
Spécial: Livraison gratuite!
Voir prix et options
?

Besoin d'aide?

Contactez-nous
?

Venez nous voir

Nos 31 bureaux
Modifier ce plan : Estimation gratuite
Outils
Partager
Favoris
Comparer
Inverser
Imprimer
Questions

  • Planchers
  • Détails
    techniques

  • photos
  • produits
    & matériaux
  • Assurance
    Habitation
    Commandité par Beneva

Estimation

Coûts ($) Est. entrepreneur À partir de 715,005$
i

Spécifications générales

Surface aménagée totale 2174 pi2
Rez-de-chaussée 1224 pi2
Étage 950 pi2
Largeur 61'10"
Profondeur 39'10"
Hauteur dessus fondations au faite 29'7"
Murs extérieurs 2 X 6
Type de fondation incluse au plan Dalle flottante
i
Autres fondations disponibles (des frais peuvent s'appliquer) Sous-sol aménageable, Vide sanitaire, Dalle monolithique
Code Entrepreneur E

Spécifications sur les pièces

Chambre(s) 3
Salle(s) de bain complète(s) 2
Demi Salle(s) de Bain 1
Type de garage 2 voitures (665 pi2)
Espace boni aménageable -
i
Rangement boni 422 pi2
i
Superficie balcon et/ou perron abrité 95 pi2
Nos points de vente Nos estimations ($)

Estimation

Coûts ($) Est. entrepreneur À partir de 715,005$ i

Spécifications générales

Surface aménagée totale 2174 pi2
Rez-de-chaussée 1224 pi2
Étage 950 pi2
Largeur 61'10"
Profondeur 39'10"
Hauteur dessus fondations au faite 29'7"
Murs extérieurs 2 X 6
Type de fondation incluse au plan Dalle flottante i
Autres fondations disponibles (des frais peuvent s'appliquer) Sous-sol aménageable, Vide sanitaire, Dalle monolithique
Conception par le bureau de Maibec
Code Entrepreneur E

Spécifications sur les pièces

Chambre(s) 3
Salle(s) de bain complète(s) 2
Demi Salle(s) de Bain 1
Type de garage 2 voitures (665 pi2)
Espace boni aménageable - i
Rangement boni 422 pi2 i
Superficie balcon et/ou perron abrité 95 pi2
  • Photo Salle de séjour - Sophia
  • Photo Demi salle de bain - Sophia
  • Photo Salle de bain - Sophia
  • Photo Salle de bain - Sophia
  • Photo Salle de bain - Sophia
  • Photo Cuisine - Sophia
  • Photo Bureau - Sophia
  • Photo Chambre - Sophia
  • Photo Salle à manger - Sophia
  • Photo Entrée ou vestibule - Sophia
  • Photo Salle utilitaire / lavage - Sophia
  • Photo Garde-manger - Sophia
  • Photo Salle de séjour - Sophia
  • Photo Salle de jeux - Sophia
  • Photo Escalier - Sophia
  • Photo Mezzanine - Sophia

Entrer votre code postal pour filtrer les produits disponibles dans votre région.

Fermer
${ currentTag.enterprise_name }
${ currentTag.modele }
${ currentTag.enterprise_description }
${ currentTag.description }
${ currentTag.price }
${ currentTag.label }
Fermer Éditer

Salle de séjour

Demi salle de bain

Salle de bain

Salle de bain

Salle de bain

Cuisine

Bureau

Chambre

Salle à manger

Entrée ou vestibule

Salle utilitaire / lavage

Garde-manger

Salle de séjour

Salle de jeux

Escalier

Mezzanine

Vignette photo Salle de séjour - Plan 3640
Vignette photo Demi salle de bain - Plan 3640
Vignette photo Salle de bain - Plan 3640
Vignette photo Salle de bain - Plan 3640
Vignette photo Salle de bain - Plan 3640
Vignette photo Cuisine - Plan 3640
Vignette photo Bureau - Plan 3640
Vignette photo Chambre - Plan 3640
Vignette photo Salle à manger - Plan 3640
Vignette photo Entrée ou vestibule - Plan 3640
Vignette photo Salle utilitaire / lavage - Plan 3640
Vignette photo Garde-manger - Plan 3640
Vignette photo Salle de séjour - Plan 3640
Vignette photo Salle de jeux - Plan 3640
Vignette photo Escalier - Plan 3640
Vignette photo Mezzanine - Plan 3640
Maibec
Anna Couleur Stonehenge
Spécialiste des systèmes de revêtement
En savoir plus
Oceania
Bain Loft
Bain en alcôve de grande qualité | Fabriqué au Québec
En savoir plus
Boiseries Raymond
Porte 151
Porte Masonite 151, 2 panneaux peinturée
En savoir plus
Maibec
CanExel Planche & couvre-joint noir
Spécialiste des systèmes de revêtement
Visitez notre site
Maibec
Anna Couleur Stonehenge
En savoir plus
Oceania
Bain Loft
En savoir plus
Boiseries Raymond
Porte 151
En savoir plus
Maibec
CanExel Planche & couvre-joint noir
Visitez notre site
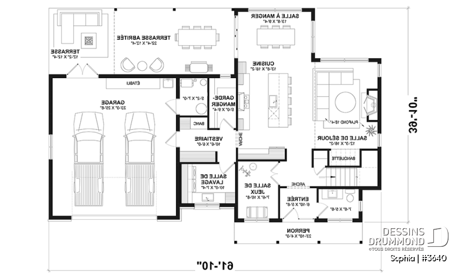
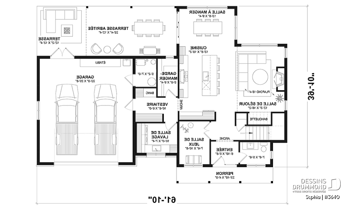
Rez-de-chaussée - Maison Farmhouse à étage avec garage double, 3 chambres et magnifique vue panoramique à l'arrière de la maison - Sophia
Étage - Maison Farmhouse à étage avec garage double, 3 chambres et magnifique vue panoramique à l'arrière de la maison - Sophia

Entrer votre code postal pour filtrer les produits disponibles dans votre région.

Fermer
${ currentTag.enterprise_name }
${ currentTag.modele }
${ currentTag.enterprise_description }
${ currentTag.description }
${ currentTag.price }
${ currentTag.label }
Fermer Éditer

Conception : Dessins Drummond / Maibec

Rez-de-chaussée

Étage

Vignette Rez-de-chaussée - 3640
Vignette Étage - 3640
Voir les autres versions de ce plan
Modifier ce plan : Estimation gratuite

Voir la grandeur des pièces et hauteur des plafonds

Rez-de-chaussée
Pièces Dimensions Plafond
Perron abrité 23'10" x 4'0" ~ 9'4"
Entrée ou vestibule 6'10" x 5'8" ~ 9'0"
Salle de jeux 7'6" x 10'8" ~ 9'0"
Rangement 2'7" x 2'10" ~ 9'0"
Coin toilette/lavabo 7'6" x 5'6" ~ 9'0"
Salle de lavage 10'4" x 7'4" ~ 9'0"
Lingerie 1'10" x 2'0" N/D
Garage 23'0" x 25'8" ~ 9'6"
Pièce de mécanique 5'2" x 7'0" ~ 9'6"
Vestiaire 6'8" x 8'4" ~ 9'0"
Garde-manger 3'1" x 5'10" ~ 9'0"
Cuisine 13'9" x 16'2" ~ 9'0"
Îlot 10'0" x 3'8" N/D
Salle à manger 13'8" x 9'4" ~ 9'0"
Salle de séjour 12'4" x 16'2" ~ 18'4"
Terrasse abritée 22'4" x 12'4" ~ 9'4"
Terrasse 12'2" x 12'4" N/D
Étage
Pièces Dimensions Plafond
Chambre à coucher 13'4" x 9'4" ~ 8'0"
Garde-robe 4'10" x 2'0" ~ 8'0"
Salle de bain 5'0" x 9'6" ~ 8'0"
Lingerie 1'6" x 1'6" N/D
Bureau à domicile 8'10" x 6'0" ~ 8'0"
Chambre à coucher 10'4" x 10'0" ~ 8'0"
Garde-robe 5'4" x 2'0" ~ 8'0"
Suite des maîtres 13'8" x 15'6" ~ 8'0"
Salle de bain complète 8'8" x 13'0" ~ 8'0"
Walk-in 6'6" x 9'6" ~ 8'0"
Douche 6'0" x 3'0" N/D
Lingerie 1'6" x 1'10" N/D

Autres informations utiles sur ce plan

Maison lumineuse 3 chambres + bureau avec une superbe terrasse abritée et une grande suite parentale!

La maison SOPHIA (plan #3640) propose 2174 pi.ca de surface habitable, aménagés sur deux étages. Le garage double de 23' x 25'8'' est assez grand pour y ajouter un établi ou coin jardinage. La terrasse arrière propose une secteur couvert de 22'4 x 12'4'' et une portion "non-couverte" de 12'2'' x 12'4''. Plusieurs possibilités d'aménagement y sont donc possibles. La fondation de base que vous recevrez (incluse au plan) est une dalle flottante. Si vous souhaitez un autre type de fondation, simplement la sélectionner dans le panier d'achat ou nous contacter.

Le rez-de-chaussée est à aire ouverte et plusieurs jolis éléments architecturaux y sont aménagés tels qu'une banquette sous l'escalier menant à l'étage, des arches aux deux secteurs entrées et un plafond ouvert sur deux étages au salon. De plus, une pratique salle de jeux, non loin de la cuisine, fera l'envie de plusieurs. Aussi, l'entrée du garage est près du garde-manger, du vestiaire et de la salle de lavage, ce qui est pratique pour les arrivés de l'épicerie et/ou de la garderie!

À l'étage, du corridor, vous avez une vue plombante sur la salle de séjour, amenant ainsi une belle amplitude à ce secteur. Le bureau propose un mur de panneaux vitrés, vous permettant de garder un oeil sur les allées et venues de chacun. La chambre des parents reçoit de la belle lumière naturelle de la fenêtre arrière. De plus, le walk-in et la superbe (et bien aménagée) salle de bain privée vous permettra de relaxer, la soirée venue.

Cette maison a tout pour plaire car aucun détail n'a été oublié! Tout a été pensé, chaque coin de plancher a été maximisé afin que chacun de ses occupants en retire beaucoup de satisfaction! Les photos intérieures incluses à cette fiche en sont la preuve, bonne découverte!

Éléments distinctifs

Superbe modèle de style classique recevant beaucoup de lumière naturelle à l'arrière de la maison, autant au rez-de-chaussée qu'à l'étage.
Le plafond du rez-de-chaussée est à 9' de hauteur, à l'exception de celui de la salle de séjour qui est à 18'4''.
Trois jolies arches architecturale sont aménagées, l'une à l'entrée avant et l'autre à l'entrée par le vestiaire et la dernière au secteur toilette de la salle de bain privée des parents.
Le garde-manger, le vestiaire et la salle de lavage sont à proximité de l'entrée du garage.
La cuisine est ouverte autant sur la salle de séjour que sur la salle à manger et propose un grand îlot et un garde-manger. Ce dernier a un format de 5' x 9'4''.
La salle de séjour est ouverte sur 2 étages et propose un foyer et un joli coin banquette aménagé sous l'escalier qui monte vers l'étage (voir photo).
La chambre des parents, la salle de séjour et la salle à manger reçoivent beaucoup de lumière naturelle.
La terrasse abritée est accessible de la salle à dîner et est assez grande pour y recevoir un secteur lounge et un coin table et chaises.
Une portion de la terrasse est non-abritée, au secteur salon (voir petit plancher, portion avec foyer décoratif et sectionnel).
La chambre des parents est à l'étage et propose un walk-in et une grande salle de bain privée avec 2 lavabos, ainsi qu'une douche et un bain séparés.
Les 2 chambres additionnelles de l'étage se partage une salle de bain.
Le petit bureau en haut des escaliers propose un panneau vitré tenant lieu de mur permettant ainsi une belle vue vers la salle de séjour.
Le garage double est assez grand pour recevoir un coin établi. Un rangement peut être aménagé à l'étage du garage.
La fondation principale de cette maison est sur dalle flottante, mais n'oubliez pas que tous nos plans sont disponibles avec plusieurs options de fondation, et ils sont tous modifiables dans nos bureau régionaux.


Particularité(s) du plan

Arche, Foyer, Garage spacieux, Garde-manger, Ilôt, Plafond à plus de 8', Salle de jeux, Salle de lavage au rez-de-chaussée, Suite des maîtres à l'étage, Vestiaire, Vue paronamique, Walk-in ch. maîtres, Aire ouverte, Banquette, Terrasse abritée, Mezzanine, Lavabo double, Bain et douche séparés

Style(s) architectural du plan

Farmhouse, Américain, Farmhouse moderne, Traditionnelle, Transitionnel, Champêtre, Vacances, bordure de lac, Tendance

Notes légales

Ce modèle est protégé par la Loi sur les Droits d'Auteur.

De plus, les illustrations présentées peuvent différer du plan détaillé que vous recevrez, car ces derniers sont régulièrement ajustés afin de respecter les normes de construction en vigueur.

Comparer
Questions

Plans similaires

  • Vue avant - MODÈLE DE BASE -  - Sunny Creek
    Sunny Creek
    (3742)
  • Vue avant - MODÈLE DE BASE -  - Simone
    Simone
    (3641)
  • Vue avant - MODÈLE DE BASE -  - Alicia
    Alicia
    (3630)
  • Vue avant - MODÈLE DE BASE -  - Nikolas 3
    Nikolas 3
    (3855-V2)
  • Vue avant - MODÈLE DE BASE -  - Bosquet 2
    Bosquet 2
    (3716-V1)
  • Vue avant - MODÈLE DE BASE -  - Bosquet
    Bosquet
    (3716)

Consultés précédemment

Vue avant - MODÈLE DE BASE - Maison Farmhouse à étage avec garage double, 3 chambres et magnifique vue panoramique à l'arrière de la maison - Sophia

Sophia (3640)

Merci pour votre commentaire! Celui-ci doit être approuvé avant d'être mis en ligne, veuillez allouer une période de 24 heures.

Erreur avec google reCaptcha! Veuillez réessayer.

Poser une question ou laissez un commentaire sur ce plan

Répondre à ce commentaire :

Veuillez cocher la case ci-haute.

Acheter ce plan

?
À partir de 1740$

Vous souhaitez apporter des modifications à ce plan?

Estimation gratuite en ligne

Besoin d'aide?

?
Contactez-nous

Venez nous voir

Nos 31 bureaux

Vous apprécierez aussi

  • Alternative - Modèle de grande Farmhouse à étage, avec garage double et 4 à 6 chambres, rez-de-jardin aménagé - Carolina
    Carolina
    (3731)
  • Alternative - Maison Farmhouse avec plancher versatile de 3 à 6 chambres, s-sol aménagé optionnel ($), terrasse abritée - Strom 2
    Strom 2
    (3896-V1)
  • Vue avant - MODÈLE DE BASE - Farmhouse moderne à étage avec garage double, 3 chambres, superbe lumière naturelle à la salle de séjour - Hiden Hill
    Hiden Hill
    (3623)
  • Vue avant - MODÈLE DE BASE - Spacieuse Farmhouse 4 à 6 chambres, sous-sol aménagé optionnel ($), garage double, salle de jeux, bureau - Duvernay 4
    Duvernay 4
    (2641-V1)
  • Vue avant - MODÈLE DE BASE - Superbe maison d'inspiration campagne française, fabuleuse suite parentale au RDC - Birchview
    Birchview
    (3639)
  • Vue avant - MODÈLE DE BASE - Plan de maison farmhouse moderne – 4 chambres, garage double et foyer spectaculaire - St-Arnaud 3
    St-Arnaud 3
    (2673-V2)

Pour vous assurer de bien préparer votre projet, nous vous proposons ce guide accompagnateur.

Voir le guide

Plans similaires

  • Vue avant - MODÈLE DE BASE -  - Sunny Creek
    Sunny Creek
    (3742)
  • Vue avant - MODÈLE DE BASE -  - Simone
    Simone
    (3641)
  • Vue avant - MODÈLE DE BASE -  - Alicia
    Alicia
    (3630)
  • Vue avant - MODÈLE DE BASE -  - Nikolas 3
    Nikolas 3
    (3855-V2)
  • Vue avant - MODÈLE DE BASE -  - Bosquet 2
    Bosquet 2
    (3716-V1)
  • Vue avant - MODÈLE DE BASE -  - Bosquet
    Bosquet
    (3716)

Description

Rez-de-chaussée:
Entrée, salle d'eau, salle de jeux, vestiaire, salle de lavage, cuisine, garde-manger, salle de séjour, banquette sous l'escalier, salle à manger,
Étage:
Suite des parent avec salle de bain privée et walk-ins, 2 chambres additionnelles, bureau, salle de bain.
Grande terrasse abritée avec portion non abritée.
Garage double spacieux avec coin établi et pièce mécanique.
Fondation: Dalle flottante. Autres types de fondation disponibles.

Voir aussi

Recherchez votre plan Comment modifier un plan Galerie photos
Advertisement

Prix et
reconnaissance

best of houzz service 2024
best of houzz service 2023
best of houzz service 2022
best of houzz service 2021
best of houzz 2020
best of houzz 2019
best of houzz 2018
best of houzz 2016
best of houzz 2016 Design
best of houzz 2015

Nos Plans

  • Recherche avancée
  • Collections
  • Collaborations
  • Nouveautés
  • Récemment vendus
  • Les 100 + populaires
  • Photos & vidéos

Collaborations

Collections

Modifier un plan

Conception exclusive sur mesure

Rénover ou agrandir ma maison

Formulaires

Formulaires

  • Modifier un plan de la collection
  • Faire concevoir un plan sur mesure
  • Obtenir un plan pour rénover ou agrandir
  • Inscription au programme entrepreneur
  • Demander des informations générales
  • Parlez au président
  • Postuler pour un travail chez Dessins Drummond
  • Envoyer des photos de ma maison
  • Demandes relatives à la protection des renseignements personnels

SERVICE À LA CLIENTÈLE

Nos services

  • Estimation ($) construction
  • Forfaits de plans
  • Modification de plan
  • Plan de maison sur mesure
  • Plan de rénovation
  • Services complémentaires
  • Information sur nos plans
  • Trouver un entrepreneur
  • Programme pour entrepreneur
  • License pour dessinateurs
  • Conseils de nos experts
  • Publicisez votre entreprise sur notre site
  • Répertoire de nos annonceurs

SERVICE À LA CLIENTÈLE

  • Paiement, expédition, suivi
  • Politique de retour
  • Support technique

À propos

  • Notre histoire
  • 31 points de vente
  • Territoires disponibles
  • Engagement du meilleur plan
  • Kit média
  • Emploi
  • Blogue
  • Droits d'auteur & légal
  • Plan de site
  • Contact

Plan du site

Dessins Drummond | Votre meilleur plan

31 bureaux au Québec
1 800 567-1413

infolettre

Restez à l'affût des dernières tendances & recevez nos offres et promotions, en primeur!

Merci de votre inscription à notre cyberlettre!

Erreur google reCaptcha! Veuillez réessayer.

Copyright 2025 Dessins Drummond INC. Tous droits réservés. | Politique de vie privée

Connexion


Vous avez oublié votre mot de passe? Cliquez ici.

Créer mon compte

Voici une brève description de nos différents forfaits. Veuillez sélectionner le forfait qui vous convient. Vous pouvez modifier le forfait à l'étape subséquente, au besoin.

Plan version PDF:

Plan complet envoyé par courriel (format original du plan 18''x24'' ou 24''x36'')

5 copies de plan + PDF:

Inclut: 5 copies de plan, plan en format PDF (version réduite).

Foundation

Plusieurs options de fondation sont disponibles pour chacun de nos plans, cliquez sur « Voir prix et options » ci-bas pour les détails et coûts associés.

Type de fondation

La fondation précisée à cette ligne est incluse dans le plan que vous recevrez, dans le prix du plan ainsi que dans l'estimation du coût de construction SAUF dans le cas d'un sous-sol aménagé. La finition d'un sous-sol aménagé n'est JAMAIS incluse dans notre estimation sauf si avis contraire précisé dans la description du plan et/ou dans la section élément distinctif, sur la page du plan. Un sous-sol aménageable est un sous-sol non-fini, à finir plus tard, selon vos besoins.

Veuillez noter que plusieurs types de fondation additionnels sont disponibles, certains moyennant un frais. Vous pourrez sélectionner le type de fondation désiré, dans le bon de commande en ligne.

Si le type de fondation que vous souhaitez ne se trouve pas dans la liste des autres fondations disponibles, veuillez contacter notre service à la clientèle afin d'obtenir un estimé de notre département de modification de plan, ou simplement compléter le formulaire de demande de modification suivant : https://dessinsdrummond.com/formulaire-modification-de-plan-en-ligne et vous recevrez votre estimation gratuite dans les 2 à 4 jours ouvrables, approx..

Type de fondation

Le type de fondation précisé à cette ligne n'est pas inclus dans l'estimé des matériaux approximatif.

Veuillez noter que plusieurs types de fondation additionnels sont aussi disponibles. Vous pourrez sélectionner le type de fondation désiré, dans le bon de commande en ligne, ou nous joindre pour information.

Explication des types d'espace boni

Espace boni aménageable

L'espace boni aménageable est généralement prévu au-dessus du garage et il est accessible de la maison. Comme il est prévu aménageable, il pourra devenir un bureau, un espace buanderie, une salle de bain, un coin bibliothèque ou même une chambre additionnelle pour laquelle les propriétaires devront s'assurer d'avoir une fenêtre conforme aux normes en vigueur. De plus, la finition de cette espace boni est toujours INCLUSE dans nos estimation du coût de construction, sauf si avis contraire dans les sections « Description et/ou Éléments descriptifs » de la page du plan.

Rangement boni

Souvent localisé au-dessus du garage, le rangement boni est utilisé uniquement comme rangement et il est généralement accessible du garage via un escalier escamotable. De plus, la finition de ce rangement boni est toujours INCLUSE dans nos estimation du coût de construction, sauf si avis contraire dans les sections « Description et/ou Éléments descriptifs » de la page du plan.

Vous aimez ce plan mais souhaitez qu'il soit ajusté à vos besoins?

Pour ajouter un garage, une chambre, finir le sous-sol ou pour tout autre modification, cliquez ici afin de nous faire part de vos changements et obtenez votre soumission gratuite pour l'ajustement de votre plan.

Cliquez ici pour obtenir plus d'information sur notre service de modification de plans à nos 31 bureaux ou en ligne.

Comprendre les prix Dessins Drummond

Estimation des coûts de construction de Dessins Drummond

Maisons, chalets & multi-logements

INCLUS DANS NOS ESTIMATIONS DE COÛTS

– voir détails plus bas

  • Construction avec un entrepreneur
  • Fondation
  • Toiture
  • Revêtement et poutre décorative extérieur
  • Fenêtres
  • Balcon avant et terrasse abritée
  • Garage attaché et pièce ou rangement
  • Sous-sol fini si aménagé sur le site
  • Espace ou pièce boni intérieure
  • Plan écologique : coupe de mur éco
  • Plomberie & salle(s) de bain
  • Électricité et luminaires fixes au plafond
  • Chauffage
  • Plafonds intérieurs
  • Planchers
  • Cuisine
  • Escaliers
  • Foyer
  • Multi-logements : finition des unités

EXCLUS DE NOS ESTIMATIONS DE COÛTS

– voir détails plus bas

  • Économie auto-constructeur
  • Taxes
  • Terrain
  • Excavation
  • Garage détaché
  • Raccords aux services de la ville
  • Aménagement terrain, piscine, fleurs
  • Patio non abrité
  • Toiture de tôle
  • Cuisine extérieure
  • Mobilier et décoration intérieur et extérieur
  • Poutres décoratives intérieures
  • Luminaires non fixés au plafond
  • Système de climatisation
  • Poutres de bois décoratives intérieures
À LIRE AVANT L'ACHAT DE VOTRE PLAN:

Nos estimations de coûts sont des moyennes provinciales, et sont là pour vous donner un "approximatif" de la valeur de nos modèles, construits avec un entrepreneur. Ce faisant, ils peuvent varier de +/- 30% selon votre région, votre entrepreneur et vos choix de matériaux.

Si vous choisissez l'auto-construction, vous pourrez économiser de 10% à 30% de notre estimation selon votre implication et compétence.

Comme nous ne construisons pas, nous nous dégageons de toutes responsabilités à l'égard des estimations indiquées. De plus, prendre note que nos estimations sont modifiées sans préavis, régulièrement. Il est donc de votre responsabilité de valider auprès d'entrepreneurs de votre région en les questionnant sur ses délais de livraison et coûts de construction réels versus nos estimations ce, avant l'achat d'un plan, car ce dernier n'est ni échangeable ni remboursable.

Avec un entrepreneur

Cette mention sur notre site signifie que nos estimations sont basées sur des constructions clé-en-main, donc gérés de A à Z par des entrepreneurs compétents et qualifiés. Elles incluent et excluent les éléments prévus au tableau ci-haut. Ne pouvant prédire les choix que vous ferez avec votre entrepreneur, nous considérons qu'il utilisera des matériaux de qualité courante (pas le plus cher, pas le moins cher).

Auto-Construction

Signifie que vous gérez vous-même votre projet tout en réalisant certains travaux comme la pose de l'isolant, du gypse, du pare-vapeur et l'application de la peinture, pour n'en nommer que quelques-uns. Selon votre degré d'implication, vous pourriez sauver jusqu'à 30% du coût total de construction, mais rarement plus, à moins que vous soyez un professionnel de la construction!

PRÉCISION SUR LES INCLUSIONS ET EXCLUSIONS DE NOS ESTIMATIONS

Extérieur

Ci-bas vous retrouverez les détails de ce qui est inclus et exclus dans nos estimations, en lien avec les images extérieures telles que présentées sur notre site.

  • Fondation et terrain:

    Le type de fondation spécifié dans la section « détails techniques » sur la fiche du plan, est inclus dans notre estimation, soit sous-sol fini, rez-de-jardin, dalle, vide sanitaire, pieux vissés ou sous-sol à aménager. Par exemple, si la fondation principale indiquée sur le site est une dalle, l'estimation inclus le prix approx. d'une dalle. Si le sous-sol est aménagé avec des meubles et noms aux pièces, sa finition est incluse dans notre estimation. Il faut donc considérer que si vous souhaitez avoir un sous-sol sur une maison présentée avec une dalle, le coût sera supérieur. Pour l'option d'une dalle monolithique, certaines villes ou municipalités peuvent exiger un sceau d'ingénieur selon le code du bâtiment. Le coût pour l'obtention du sceau d'ingénieur sera à votre charge. Si vous souhaitez une fondation différente, c'est possible! Voir les détails ici! Votre terrain ainsi que le coût de l'excavation ne sont pas inclus dans nos estimations car le coût des terrains varie énormément, et plusieurs terrains particuliers requièrent, par exemple, du dynamitage, il nous est donc impossible de savoir.

  • Toiture:

    Le type de toiture et ses matériaux illustrés sont inclus : 2 versants, plat, 4 versants ou toiture complexe, ainsi que le bardeau d'asphalte. Nous n'incluons pas les toits de tôle dans nos estimations.

  • Revêtement extérieur & poutre extérieure décorative:

    Les estimations de maison incluent les revêtements tels qu'illustrés sur notre site. Les maisons modestes sont calculées avec un revêtement de clin régulier en vinyle. Pour les maisons régulières et plus complexes, nous ajoutons des montants approximatifs (au pi.ca.) : clin de fibrociment, de cèdre, maçonnerie légère ou régulière (partiel ou total), board & batten, bois, et autres. Les poutres de bois illustrées sur l'extérieure de nos maisons sont aussi incluses dans le coût, mais elles sont «capées » et non en bois massif. Il en est de même pour les portes d'entrée et portes de garage. Elles sont incluses aux estimations, mais de qualité standard. Concernant les revêtements de maçonnerie : on propose, sur plusieurs modèles, une touche de brique-pierre comme on en retrouve chez la plupart des fabricants de brique (faire attention de ne pas confondre avec de la pierre naturelle, rarement sur nos illustrations et beaucoup plus dispendieuse). NOTE : Si vous souhaitez utiliser un revêtement de maçonnerie plutôt qu'un clin comme illustré sur le plan que vous avez choisi, svp nous contacter car vous aurez besoin de faire modifier le plan en conséquence.

  • Fenêtres:

    Les fenêtres incluses aux estimations sont celles illustrées sur le site.

  • Balcon, terrasse et patio:

    Les balcons avant et latéraux, ainsi que les terrasses abritées qui sont illustrés sur nos plans, sont inclus aux coûts. Cependant, les patios non abrités ainsi que les cuisines extérieures ne sont pas inclus aux coûts, sauf si indication contraire sur le site.

  • Garage attaché à la maison:

    Le garage attaché à la maison, au jumelé ou au chalet choisi, et tel qu'illustré sur notre site, est inclus dans l'estimation. Si un garage détaché est présent sur l'image de la maison, voir sur le site pour savoir s'il est inclus au plan que vous recevrez, et si son coût est inclus dans l'estimation ou pas.

  • Pièce ou rangement boni au-dessus du garage attaché:

    Si une pièce bonie ou un rangement boni est prévue à l'étage du garage, il est inclus dans l'estimation, qu'il soit accessible par un escalier standard, escamotable ou une trappe au plafond (voir un petit rectangle sur le plancher du garage).

  • Plans Écologiques

    Pour tous les plans de notre collection écologique, l'estimation est calculée comme pour une maison normale + 10% servant à construire une coupe de mur écologique. De plus si une serre est prévue au plan, un montant de min. 20,000$ est inclus à l'estimation. Pour plus de détails, veuillez nous contacter.

Intérieur

Ci-bas vous retrouverez les détails de ce qui est inclus et exclus dans les estimations, en lien avec les images intérieures telles que présentées sur notre site.

  • Sous-sol aménagé:

    Si un sous-sol est aménagé sur notre site (présence de mobilier et titres aux différentes pièces), sa finition est incluse dans notre estimation. Conséquemment, le plan de construction que vous recevrez inclura le plan du sous-sol aménagé.

    Pareillement pour les multi-logements qui ont un sous-sol aménagé, le coût approximatif de sa finition sera inclus dans nos estimations.

  • Espace boni à l'intérieur de la maison:

    L'estimation pour la finition d'espace ou pièce boni accessible de l'intérieur de la maison est inclus dans notre coût de construction.

  • Plomberie et salle de bain(s):

    Il n'y a pas de plan de plomberie inclus au plan que vous recevrez. Cependant, les estimations reliées à l'installation d'un système de plomberie standard, ainsi que les accessoires tels éviers, douche(s) en acrylique, toilette(s), bain(s) standard(s) sont inclus.

  • Électricité & luminaires:

    Il n'y a pas de plan électrique inclus au plan que vous recevrez. Cependant, les estimations de coûts reliées à l'installation d'un système électrique standard avec plinthes électriques, ainsi que les interrupteurs muraux sont incluses. Tous les luminaires de la maison qui ne sont pas fixés au plafond sont exclus des estimations.

  • Chauffage:

    L'installation d'un système de chauffage électrique ainsi que les plinthes et gradateurs muraux sont inclus dans nos estimations.

  • Plafond et poutres:

    La hauteur de plafonds prévue à chaque étage, et précisée sur la fiche du plan, est incluse dans les estimations. Ainsi si un/des planchers prévoient un plafond cathédral ou à plus de 8' ou en pente, les estimations s'y rattachant sont incluses.

    Cependant, si des poutres ou moulures de bois ou imitation de bois sont installées dans un plafond cathédral (sur nos illustrations ou photos), elles ne sont pas incluses dans les estimations. À noter que les poutres de bois illustrées sur l'extérieure de nos maisons sont incluses dans le coût, mais elles sont «capées » et non en bois massif.

  • Planchers:

    Les revêtements aux différents planchers prévus sont : de la céramique de qualité standard à l'entrée principale, à la cuisine et à la (aux) salle(s) de bain, du bois-franc aux aires communes (salle de séjour, salle à manger) et aux chambres du rez-de-chaussée et à l'étage. Pour les sous-sols aménagés : plancher flottant partout, sauf aux salles de bain et salle de lavage qui sont prévues en céramique.

  • Cuisine:

    Les armoires incluses aux estimations sont de qualité standard. Les dessus de comptoir sont en stratifié standard, sauf pour les maisons plus haut de gamme (à plus de 500,000$ approx.), qui prévoient des comptoirs en surface solide de type quartz. Les dosserets de comptoir sont prévus en céramique moyenne de gamme. La plomberie de la cuisine ainsi que les luminaires fixes sont inclus dans les estimations.

  • Escalier:

    Les escaliers montants à l'étage sont en bois franc et ceux descendants vers le sous-sol sont en particule de bois (ou tapis).

  • Maisons jumelés | Triplex | Multilogements:

    Les estimations pour les plans de maisons jumelées, triplex et multi-logements incluent la finition de toutes les unités telle qu'aménagée sur notre site.

BESOIN D'AIDE?

Consultez l'un de nos 31 bureaux si vous souhaitez plus d'information sur nos estimations ou afin d'obtenir un prix plus précis selon vos besoins et votre région.

Pour de plus ample information vous pouvez nous appeler ou écrire par courriel: 1-800-567-1413 ou [email protected]

Estimation des coûts de construction

Estimation des coûts de construction de Dessins Drummond

Garages détachés

INCLUS DANS NOS ESTIMATIONS DE COÛTS

– voir détails plus bas

  • Construction avec un entrepreneur
  • Fondation
  • Toiture
  • Revêtements extérieurs
  • Fenêtres
  • Balcon avant et terrasse abritée
  • Murs isolés
  • Pièce ou rangement boni
  • Électricité et luminaires fixes au plafond
  • Chauffage
  • Foyer ou poêle à bois si illustré

EXCLUS DE NOS ESTIMATIONS DE COÛTS

– voir détails plus bas

  • Taxes
  • Terrain
  • Excavation au besoin
  • Aménagement terrain, piscine, fleurs
  • Patio non abrité
  • Toiture de tôle
  • Cuisine extérieure
  • Mobilier, décoration intérieur et extérieur
  • Luminaires non fixés au plafond
À LIRE AVANT L'ACHAT DE VOTRE PLAN DE GARAGE:

Nos estimations de coûts sont des moyennes provinciales, et sont là pour vous donner un "approximatif" de la valeur de nos garages, construits avec un entrepreneur. Ce faisant, ils peuvent varier de +/- 30% selon votre région, votre entrepreneur et vos choix de matériaux. Si vous choisissez l'auto-construction, vous pourrez économiser de 10% à 30% de notre estimation selon votre implication et compétence.

Si vous choisissez l'auto-construction, vous pourrez économiser de 10% à 30% de notre estimation selon votre implication et compétence.

Comme nous ne construisons pas, nous nous dégageons de toutes responsabilités à l'égard des estimations indiquées. De plus, prendre note que nos estimations sont modifiées sans préavis, régulièrement. Il est donc de votre responsabilité de valider auprès d'entrepreneurs de votre région en les questionnant sur ses délais de livraison et coûts de construction réels versus nos estimations ce, avant l'achat d'un plan, car ce dernier n'est ni échangeable ni remboursable.

Avec un entrepreneur

Cette mention sur notre site signifie que nos estimations sont basées sur des constructions clé-en-main, donc gérés de A à Z par des entrepreneurs compétents et qualifiés. Elles incluent et excluent les éléments prévus au tableau ci-haut. Ne pouvant prédire les choix que vous ferez avec votre entrepreneur, nous considérons qu'il utilisera des matériaux de qualité courante (pas le plus cher, pas le moins cher).

Auto-Construction

Signifie que vous gérez vous-même votre projet tout en réalisant certains travaux comme la pose de l'isolant, du gypse, du pare-vapeur et l'application de la peinture, pour n'en nommer que quelques-uns. Selon votre degré d'implication, vous pourriez sauver jusqu'à 30% du coût total de construction, mais rarement plus, à moins que vous soyez un professionnel de la construction!

PRÉCISION SUR LES INCLUSIONS ET EXCLUSIONS DE NOS ESTIMATIONS

Extérieur

Ci-bas vous retrouverez les détails de ce qui est inclus et exclus dans les estimations, en lien avec les images extérieures telles que présentées sur notre site.

  • Fondation et terrain:

    Le type de fondation spécifié dans la section « détails techniques » sur la fiche du plan, est inclus dans notre estimation, soit dans la majorité des cas une dalle flottante ou une dalle monolithique. Pour l'option d'une dalle monolithique, certaines villes ou municipalités peuvent exiger un sceau d'ingénieur selon le code du bâtiment. Le coût pour l'obtention du sceau d'ingénieur sera à votre charge. Si vous souhaitez une fondation différente, c'est possible! Voir les détails ici!

  • Toiture:

    Le type de toiture et ses matériaux illustrés sont inclus : 2 versants, plat, 4 versants ou toiture complexe, ainsi que le bardeau d'asphalte. Nous n'incluons pas les toits de tôle dans nos estimations.

  • Revêtement extérieur:

    Les estimations de garage incluent les revêtements tels qu'illustrés sur notre site. Concernant les revêtements de maçonnerie : on propose, sur plusieurs modèles, une touche de brique-pierre comme on en retrouve chez la plupart des fabricants de brique (faire attention de ne pas confondre avec de la pierre naturelle très rarement sur nos illustrations et beaucoup plus dispendieuse). NOTE : Si vous souhaitez utiliser un revêtement de maçonnerie plutôt qu'un clin comme illustré sur le plan que vous avez choisi, svp nous contacter car vous aurez besoin de faire modifier le plan en conséquence.

  • Fenêtres:

    Les fenêtres incluses aux estimations sont celles illustrées sur le site.

  • Balcon, terrasse abritée, appentis et patio:

    Les balcons avant et latéraux, ainsi que les terrasses abritées et les appentis qui sont illustrés sur nos plans de garage, sont inclus aux estimations. Cependant, les patios non abrités ainsi que les cuisines extérieures pouvant être illustrés ne sont pas inclus aux coûts, sauf si indication contraire sur le site.

Intérieur

Ci-bas vous retrouverez les détails de ce qui est inclus et exclus dans les estimations de nos plans de garage, tels que présentés sur notre site.

  • Pièce ou rangement boni au-dessus du garage attaché:

    Si une pièce bonie ou un rangement boni est prévue à l'étage du garage, il est inclus dans l'estimation, qu'il soit accessible par un escalier standard ou escamotable, ou simplement une trappe au plafond (petit rectangle dessiné sur le plan du garage, sur le site).

  • Électricité & luminaires:

    Il n'y a pas de plan électrique inclus au plan que vous recevrez. Cependant, les estimations de coûts reliées à l'installation d'un système électrique standard avec plinthes électriques, ainsi que les interrupteurs muraux sont incluses. Tous les luminaires de la maison qui ne sont pas fixés au plafond sont exclus des estimations.

  • Chauffage:

    L'installation d'un système de chauffage électrique ainsi que les plinthes et gradateurs muraux sont inclus dans nos coûts.

BESOIN D'AIDE?

Consultez l'un de nos 31 bureaux si vous souhaitez plus d'information sur nos estimations ou afin d'obtenir un prix plus précis selon vos besoins et votre région.

ESTIMATION DU COÛT APPROXIMATIF DES MATÉRIAUX

Les coûts approximatifs des matériaux indiqués sur notre site internet sont des moyennes provinciales qui peuvent varier jusqu'à 30% et plus selon la région, la saison de construction et vos choix de matériaux. Ils sont basés sur l'utilisation de matériaux de qualité courante, que la plupart des entrepreneurs utilisent. De plus ils peuvent changer à tout moment, sans préavis, compte tenu de l'important fluctuation des prix des matériaux, depuis 2020.

Nos estimations excluent les taxes, les raccords municipaux, les frais reliés à l'électricité, le chauffage, la main d'œuvre, le terrain, l'excavation et la fondation (précisée dans la fiche détaillée du plan choisi à la ligne « Type de fondation »).

Poser une question sur ce plan

Merci! Votre question nous a été acheminée. Nous vous reviendrons à ce sujet dans les plus brefs délais, normalement dans les prochaines 48 heures ouvrables.
Erreur avec google reCaptcha! Veuillez réessayer.





Ajouter des photos

Désolé, votre navigateur ne supporte pas l'envoi de fichier.

Pour information par téléphone: 1-800-567-1413

Conditions d'impression

Imprimer ne donne pas tous les droits! Lisez bien ce texte avant de procéder à l'impression:
En imprimant un modèle de maison, chalet ou garage ainsi que son (ses) plancher(s), vous reconnaissez avoir été informé que tous les modèles présentés sur ce site sont la propriété exclusive de Dessins Drummond et sont protégés par la loi Canadienne sur les droits d'auteur. Vous avez conscience que ces imprimés ne peuvent servir à construire ni même à obtenir un permis de construction. L'impression gratuite de ces modèles vous est offerte par Dessins Drummond dans le seul et unique but de vous permettre de modifier le plancher pour ensuite présenter le tout à une agence de Dessins Drummond dans le but de modifier le plan.

L'achat d'un plan unifamilial, multifamilial ou de garage chez Dessins Drummond est obligatoire si vous désirez construire n'importe quel de nos modèles. L'achat d'un plan vous permet de construire une seule maison; vous ne pouvez revendre votre plan ni l'offrir à quiconque de votre entourage une fois votre maison, chalet ou garage construit. Si vous désirez construire plusieurs fois la même maison, chalet ou garage, vous devez avoir obtenu une licence à cet effet. Contactez-nous pour plus de détails.

Tous les plans de Dessins Drummond ne peuvent être modifiés que par Dessins Drummond et ses agences reconnues; si vous faites modifier votre plan par une autre entreprise ou personne que Dessins Drummond, assurez-vous que cette entreprise ou personne détient une licence pour la modification de ce plan sinon, vous êtes passible de poursuite judiciaire au même titre que l'entreprise ou la personne avec qui vous avez fait affaires pour la modification ou la reproduction du plan.

Pour plus de détails, n'hésitez pas à nous contacter par courriel ou téléphone au 1-800-567-1413.

Je m'engage, par la présente, à respecter le texte ci-haut et à ne pas reproduire, modifier ou construire un modèle Dessins Drummond sans m'être procuré au préalable, un plan complet à cet effet.

Envoyer ce plan à un ami

Merci! Ce plan à été envoyé à votre ami.
Erreur avec google reCaptcha! Veuillez réessayer


Ces adresses ne seront pas utilisées à des fins promotionelles.

Vous pouvez éditer ce message: 257 caractères disponibles