Plan de maison Richardson (2951)
Plan de maison genre grange rustique à bon prix, à aire ouverte avec foyer, 3 chambres à l'étage
Autres informations utiles sur ce plan
Plan de maison genre grange rustique avec garage!
Dans la foulée de ces maisons genre chalet quatre saisons proposant l’insertion d’un garage, ce modèle est l’un des rares à si bien intégrer le garage à sa façade principale sans toutefois lui donner trop d’importance. Entrons sans plus tarder voir ce qu’il en retourne !
À l’intérieur, on est déjà dans l’ambiance chalet à la vue de la mezzanine de l’étage et de ce plafond cathédrale qu’épouse très bien l’escalier conduisant à l’étage. On constate d’ailleurs que c’est le seul escalier de la maison en l’absence d’un sous-sol tout de même possible à aménager selon les besoins des gens. Toujours au rez-de-chaussée, on est en mesure d’apprécier un secteur activités entièrement ouvert et regroupant une cuisine en « L » tout à fait appropriée avec la table en son centre et une salle de séjour, de bien beau format, partageant un foyer centré dans cet espace.
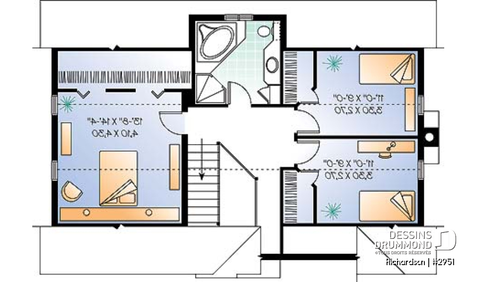
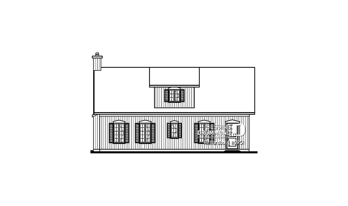
À l’étage, l’effet chalet se poursuit avec la présence de plafonds en pente significatifs mais tout à fait convenables dans ce cas-ci.
On apprécie une belle chambre des maîtres avec une large garde-robe et deux chambres secondaires composant plutôt bien avec les plafonds en présence. La salle de bain, quant à elle, bénéficie d’un plafond à 8 pieds partout, d’un bain et d’une douche en coin pour le plus grand bonheur des propriétaires.
Éléments distinctifs
Foyer bien centré au secteur activités.
Mezzanine à l'entrée principale. Cuisine tout en lumière. Garage fort bien intégré à l'ensemble.
Particularité(s) du plan
Foyer, Plafond en pente, Salle de lavage au rez-de-chaussée, Mezzanine
Style(s) architectural du plan
Rustique, Champêtre, Chalet récréatif, Chalet, Chalet de ski, Farmhouse, Cape Cod
Notes légales
Ce modèle est protégé par la Loi sur les Droits d'Auteur.
De plus, les illustrations présentées peuvent différer du plan détaillé que vous recevrez, car ces derniers sont régulièrement ajustés afin de respecter les normes de construction en vigueur.
Plans similaires
Consultés précédemment
Questions et commentaires
15 Septembre
lucie gagnon
J'aimerais savoir si j'opte pour une dalle monolithique plan w2951 si le plancher de bois arrive avec les modules en choisissant maison Laprise?
Merci
15 Septembre
Service à la clientèle
Bonjour et merci d'avoir pris le temps de nous écrire.
Étant-donné que nous ne vendons pas de modules, nous vendons que les plans et autres documents, vous pouvez commander votre plan avec l'option de la dalle monolitique mais vous me voyez désolé d'être dans l'impossibilité de répondre à la deuxième partie de votre question.
N'hésitez pas de me relancer si je peux vous assister davantage.
Bien à vous
Deb
09 Septembre
Gaétan
Si nous optons pour une fondation sur dalle de béton ( monolithique) est-elle approuver par un ingénieur.
Merci
09 Septembre
Service à la clientele
Bonjour M. Perreault et merci pour votre intérêt au niveau de ce plan.
Si vous avez besoin d'une signature d'ingénieur pour ce plan avec fondation sur dalle monolithique, vous devriez faire appel à un professionnel locale.
N'hésitez pas de me relancer si vous avez d'autres questions ou commentaires.
Bien à vous
Deborah
28 Septembre
Bruno Simard
Si je comprends bien les pointillés sur le plan du second étage indiques la pente du toit... J'aimerais savoir quel est la hauteurs à partir du plancher des chambres jusqu'à cet endroit pour connaître le dégagement de la tête.
merci
28 Septembre
Service à la clientele
Bonjour M. Simard et merci d'avoir pris le temps de nous écrire.
Le plus haut point du plafond, au centre entre les deux lignes pointillées, est 8' et le plafond en pente finie sur des murs nains de 3'2" en avant et en arrière.
N'hésitez pas de me relancer si je peux vous assister davantage.
Bien à vous
Deborah
24 Novembre
julie
Bonjour,
J'aimerais ajouter un sous-sol au plan w2951 quel en serais le prix. pourriez-vous me fournir 2 prix: 1er sans le sous-sol du garage et le 2er avec le sous-sol du garage. Prix clé en main. Merci
24 Novembre
Service à la clientele
Bonjour Mme. Grondin et merci d'avoir prit le temps de nous écrire.
Étant-donné que ce plan n'est pas disponible avec un sous sol aménageable, ce que vous voulez est une modification au plan W2951.
Afin de vous accompagner dans votre projet, nous avons un réseau d'agences régionales à travers le Québec pour vous aider. C'est l'agence de votre region qui sera en mesure de travailler avec vous pour faire les changements au plan.
Je vous fais parvenir le lien qui vous aidera à trouver l'agence qui se fera un plaisir de vous aider dans cette réalisation.
http://www.dessinsdrummond.com/agences.html
N'hésitez pas à me revenir avec toutes autres questions ou commentaires avec lesquelles je peux vous aider davantage
Bien à vous
Deborah
22 Février
Stephane DesRochers
Modification au plan w2951. Le tout sera sur fondation, changement au RDC et etage reste la meme. Voir PDF ci-joint.
22 Février
Service à la clientele
Cher monsieur DesRochers,
Merci de votre intérêt pour Dessins Drummond.
Comme nous n'avons pas reçu le fichier PDF des changements à apporter au plan, nous ne pouvons établir un coût des modifications pour votre projet.
Pour obtenir une estimation, vous pouvez fonctionner de deux façons. Soit de faire une demande en ligne, en visitant la section "Service de modification de plan" de notre site internet. Vous y trouverez la marche à suivre pour obtenir l'estimation.
Vous pouvez également vous adresser à l'Agence Dessins Drummond de votre région pour rencontrer un technologue pour discuter de votre projet. Le technologue sera en mesure de vous fournir toute l'information concernant votre projet.
Pour toute question, vous pouvez me recontacter ou contacter l'Agence Dessins Drummond de votre région, nous nous ferons un plaisir de vous répondre.
Bien à vous,
Doreen, Service à la clientèle
Merci pour votre commentaire! Celui-ci doit être approuvé avant d'être mis en ligne, veuillez allouer une période de 24 heures.
Erreur avec google reCaptcha! Veuillez réessayer.















15 Septembre
lucie gagnon
J'aimerais savoir si j'opte pour une dalle monolithique plan w2951 si le plancher de bois arrive avec les modules en choisissant maison Laprise?
Merci