Connexion
À partir de 1740$
Les photos de cette maison peuvent différer du plan d'origine, duquel elles proviennent. Pour toute modification, veuillez contacter l’un de nos 30 bureaux.
Le plan HUBERT 3 (#3142-V2) incarne une vision raffinée et chaleureuse de la maison de plain-pied moderne. Pensé pour répondre aux besoins actuels des familles, ce modèle se distingue par son équilibre entre fonctionnalité, esthétique et qualité de vie. Faisant partie de la Collection de plans de maison avec foyer STÛV, reconnue pour ses foyers au design remarquable, HUBERT 3 offre un cadre de vie aussi accueillant que durable.
Dès l’arrivée, le perron avant abrité crée une première impression conviviale et pratique. À l’arrière, une vaste terrasse couverte prolonge naturellement les espaces de vie vers l’extérieur. Cet aménagement permet d’y installer un coin repas et un salon extérieur, parfaits pour profiter des belles saisons et prolonger les soirées en bonne compagnie.
Une architecture lumineuse et bien pensée
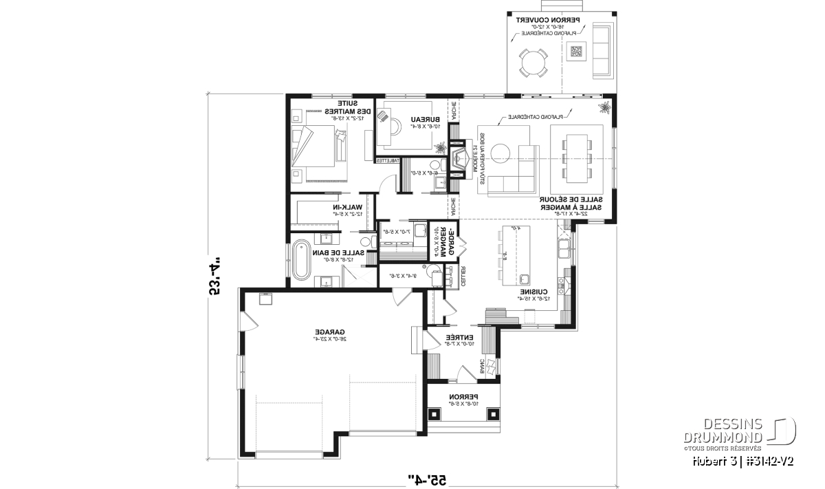
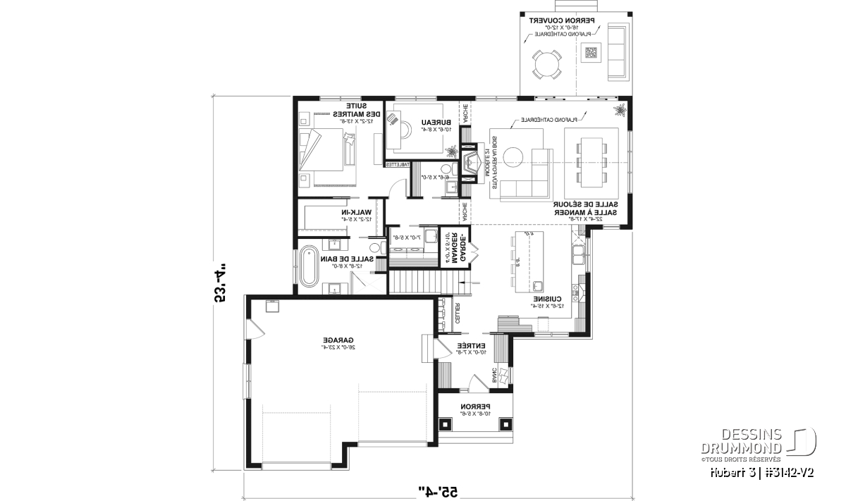
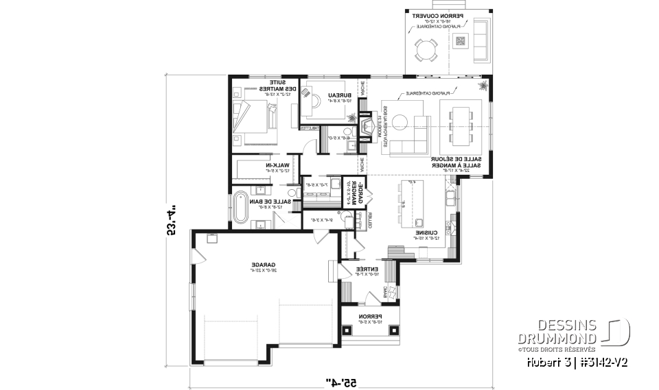
À l’intérieur, le rez-de-chaussée propose une organisation fluide et élégante. Les plafonds de 9 pieds sur l’ensemble du niveau principal accentuent la sensation d’espace, tandis que le plafond cathédrale du salon et de la salle à manger, culminant à 16 pi 10 po, crée un effet spectaculaire. La généreuse fenestration arrière inonde les pièces de lumière naturelle, mettant en valeur chaque détail architectural.
Le vestibule, muni d’un banc et de rangements intégrés, facilite le quotidien. La cuisine, véritable cœur de la maison, séduit par son grand îlot central, son garde-manger et son cellier. Ouverte sur la salle à manger et le séjour, elle favorise les échanges et la convivialité.
STÛV : un foyer au bois au cœur de l’espace de vie
Au salon, le foyer au bois STÛV 21.1-85 devient un point focal incontournable. Alliant performance, esthétisme et ambiance chaleureuse, il s’intègre parfaitement à l’architecture du plan. Ce foyer emblématique de la collection STÛV apporte caractère et confort, tout en renforçant l’atmosphère accueillante de la maison, particulièrement appréciée en saison froide.
Confort et intimité au quotidien
La suite des parents, située au rez-de-chaussée, offre un véritable espace de détente. Elle comprend une salle de bain privée avec deux lavabos, un bain autoportant et une grande douche vitrée. De belles arches au plafond guident le regard vers la chambre principale et le bureau, situé à l’arrière avec vue sur la cour, idéal pour le télétravail. Une salle d’eau discrète et une salle de lavage avec cuve complètent ce niveau.
Un sous-sol évolutif selon vos besoins
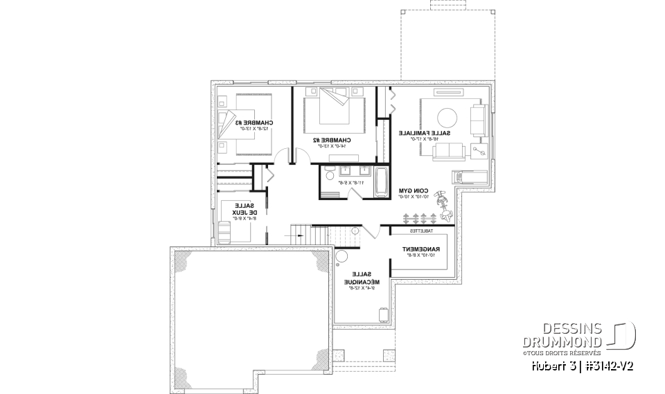
Le sous-sol non fini est inclus au plan de base, offrant une grande liberté d’aménagement. En option, il peut accueillir deux chambres secondaires de bonnes dimensions, une salle de bain complète avec deux lavabos, une vaste salle familiale lumineuse, un espace gym, une salle de jeux avec porte encastrée, ainsi qu’un grand espace de rangement et une salle mécanique fonctionnelle.
Avec son garage double menant directement au vestiaire, le plan HUBERT 3 (#3142-V2) propose une maison équilibrée, chaleureuse et évolutive, parfaitement adaptée à un mode de vie contemporain.
Plan de maison de plain-pied spacieux avec garage double, pensé pour le confort au quotidien.
Style moderne et rustique mariant chaleur, élégance et intemporalité.
Grande terrasse arrière abritée, idéale pour aménager un coin repas et un salon extérieur convivial.
Perron avant abrité, à la fois pratique et accueillant.
Plafond de 9 pieds sur l’ensemble du rez-de-chaussée, et cathédral à la salle à dîner et au salon avec hauteur de 16'10''.
Généreuse fenestration arrière offrant une superbe luminosité naturelle.
Vestibule fonctionnel avec banc et rangement intégré.
Cuisine conviviale avec grand îlot central, garde-manger et cellier.
Cuisine ouverte sur la salle à manger et le séjour, avec plafond cathédrale dans cet espace.
Foyer au bois **STÛV intégré au salon pour une ambiance chaleureuse.
**Modèle de foyer au bois STÛV 21.1-85.
Élégantes arches au plafond menant vers la chambre principale et le bureau.
Suite des parents au rez-de-chaussée avec salle de bain privée, deux lavabos, bain autoportant et grande douche vitrée.
Bureau situé à l’arrière avec vue sur la cour.
Salle d’eau discrètement en retrait.
Salle de lavage pratique avec cuve.
Sous-sol non fini inclus au plan de base.
Garage double spacieux menant vers le secteur vestiaire.
---
*Sous-sol aménagé en option comprenant deux chambres secondaires de bonnes dimensions.
Salle de bain complète avec bain-douche et deux lavabos.
Grande salle familiale lumineuse grâce à une vaste fenêtre.
Espace gym à domicile.
Salle de jeux avec porte encastrée, parfaite pour dissimuler le désordre.
Grand espace de rangement et salle mécanique fonctionnelle.
---
*Si vous souhaitez acheter le plan du sous-sol aménagé, tel que présenté sur la page de ce plan, veuillez sélectionner cette option dans le panier d'achat, dans la section "Sélectionner votre fondation". Si vous ne sélectionnez pas cette option, vous recevrez le sous-sol non fini, sans frais additionnel.
Banquette, Cellier, Vestibule, Meuble(s) encastré(s), Ilôt, Aire ouverte, Garde-manger, Salle de lavage au rez-de-chaussée, Cuve de lavage, Suite des maîtres au rdc, Bain et douche séparés, Lavabo double, Arche, Vue paronamique, Tablettes, Foyer, Plafond cathédrale, Plafond à plus de 8', Salle de jeux, Entrepreneur
Transitionnel, Tendance, Moderne rustique, Contemporain / Zen, Nordique Moderne, Ranch, Farmhouse moderne
Les s21 sont des foyers à bois décoratifs qui possèdent de très grandes chambres de combustion et un système de convection pour réchauffer les espaces rapidement. Hybrides, ils allient ambiance et performance. *Le plan peut nécessiter des modifications
Les s21 sont des foyers à bois décoratifs qui possèdent de très grandes chambres de combustion et un système de convection pour réchauffer les espaces rapidement. Hybrides, ils allient ambiance et performance. *Le plan peut nécessiter des modifications
Les s21 sont des foyers à bois décoratifs qui possèdent de très grandes chambres de combustion et un système de convection pour réchauffer les espaces rapidement. Hybrides, ils allient ambiance et performance. *Le plan peut nécessiter des modifications
Les s21 sont des foyers à bois décoratifs qui possèdent de très grandes chambres de combustion et un système de convection pour réchauffer les espaces rapidement. Hybrides, ils allient ambiance et performance. *Le plan peut nécessiter des modifications
Les s21 sont des foyers à bois décoratifs qui possèdent de très grandes chambres de combustion et un système de convection pour réchauffer les espaces rapidement. Hybrides, ils allient ambiance et performance. *Le plan peut nécessiter des modifications
Les s21 sont des foyers à bois décoratifs qui possèdent de très grandes chambres de combustion et un système de convection pour réchauffer les espaces rapidement. Hybrides, ils allient ambiance et performance. *Le plan peut nécessiter des modifications
Depuis notre fondation en 1995, Bains Oceania est engagé à offrir à ses clients une expérience unique et raffinée dans leur environnement spa résidentiel. Grâce à notre savoir-faire et à notre passion pour l’innovation, nous fabriquons ici, des produits de grande qualité, pour vous.