Vue avant - MODÈLE DE BASE - Modèle de maison plain-pied, sous-sol aménagé optionnel ($), 2 à 4 chambres, bureau, garde-manger, vestiaire - Cedar grove

Vue avant - MODÈLE DE BASE

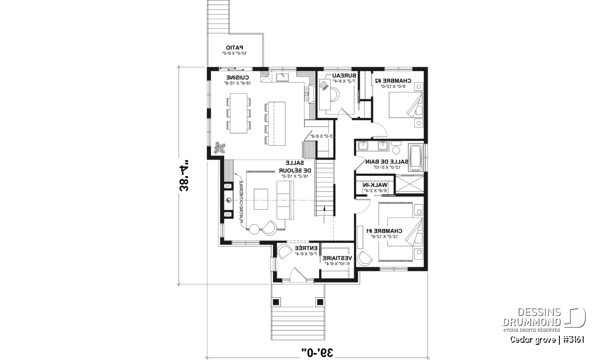
Rez-de-chaussée - Modèle de maison plain-pied, sous-sol aménagé optionnel ($), 2 à 4 chambres, bureau, garde-manger, vestiaire - Cedar grove

Rez-de-chaussée

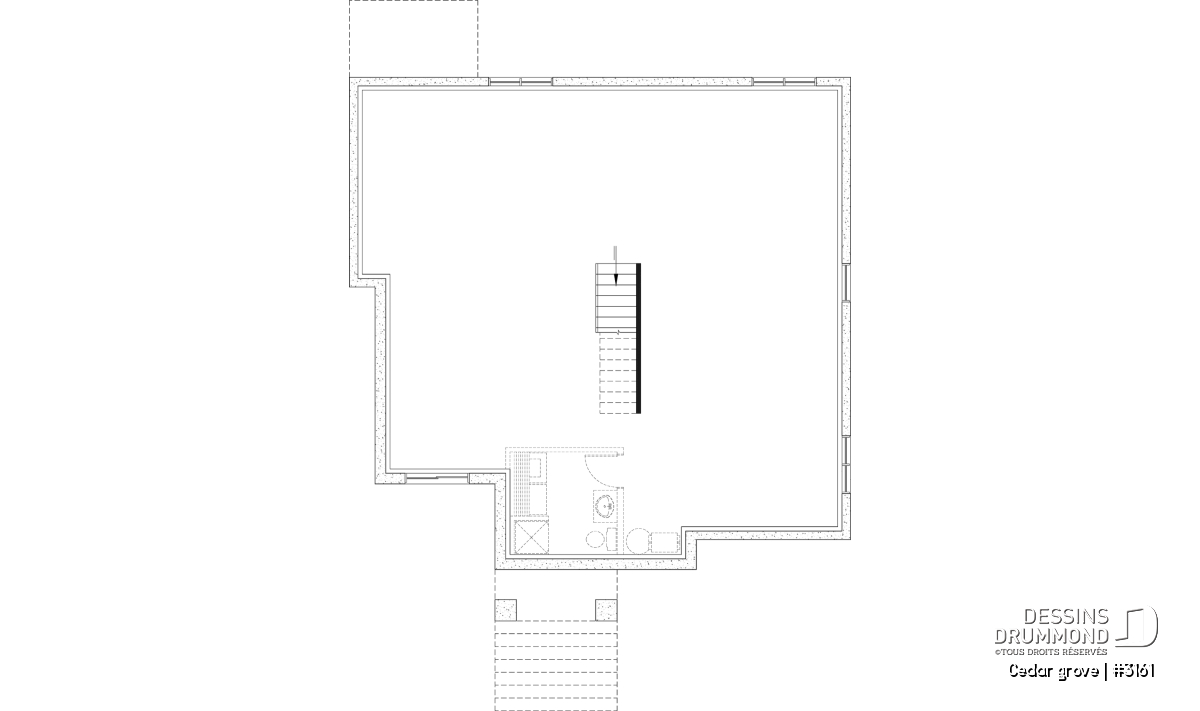
Sous-sol aménageable - Modèle de maison plain-pied, sous-sol aménagé optionnel ($), 2 à 4 chambres, bureau, garde-manger, vestiaire - Cedar grove

Sous-sol aménageable

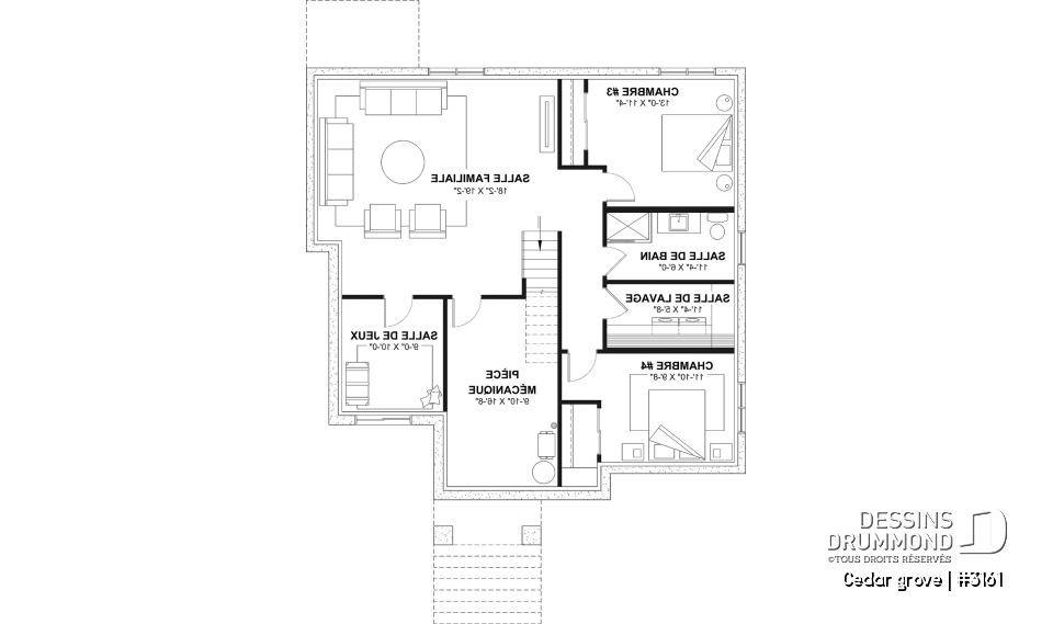
Sous-sol aménagé (Optionel $) - Modèle de maison plain-pied, sous-sol aménagé optionnel ($), 2 à 4 chambres, bureau, garde-manger, vestiaire - Cedar grove

Sous-sol aménagé (Optionel $)

Élévation arrière - Cedar grove

Élévation arrière

Vue intérieure - Cedar grove

Vue intérieure

Cedar grove Plan de maison 3161

Modèle de maison plain-pied, sous-sol aménagé optionnel ($), 2 à 4 chambres, bureau, garde-manger, vestiaire

À partir de

1515$

Fiche technique sommaire Plan #3161
Estimation ($) 391,136$ (Sous-sol non-fini) | 432,975$ (Sous-sol fini)
Surface habitable 1360 pi² Chambre 2, 3, 4
Salle de Bain 1 Salle d'eau -
Fondation incluse Sous-sol aménageable Garage -
Largeur 39'0" Profondeur 38'4"

Besoin d’aide ?

Nos experts vous guident dans votre projet grâce à plus de 30 bureaux au Québec.

Joignez-nous

Consultez notre guide utilisateur

Un outil conçu pour vous simplifier la vie.

Ouvrir le guide

Besoin d’une assurance habitation ?

Pour obtenir votre prix, c’est juste ici

Obtenir une soumission Advertisement

Les photos de cette maison peuvent différer du plan d'origine, duquel elles proviennent. Pour toute modification, veuillez contacter l’un de nos 30 bureaux.

Détails supplémentaires

Estimation

Spécifications générales

Surface aménagée totale
1360 pi²
Rez-de-chaussée
1360 pi²
Sous-sol aménageable
1360 pi²
Sous-sol aménagé (Optionel $)
1360 pi²
Largeur
39'0"
Profondeur
38'4"
Hauteur dessus fondations au faite
25'5"
Murs extérieurs
2 X 6
Sous-sol aménageable
Autres fondations disponibles (des frais peuvent s'appliquer)
Sous-sol aménagé, Dalle flottante, Vide sanitaire, Dalle monolithique
Code Entrepreneur
C

Spécifications sur les pièces

Chambre(s)
2, 3, 4
Salle(s) de bain complète(s)
1
Demi Salle(s) de Bain
-
Type de garage
-
Superficie balcon et/ou perron abrité
38 pi²

Rez-de-chaussée

Pièces
Dimensions
Plafond
Perron abrité
9'6" x 4'0"
~ 9'0"
Entrée ou vestibule
7'6" x 6'4"
~ 9'0"
Vestiaire
5'10" x 6'4"
~ 9'0"
Salle de séjour
16'2" x 15'0"
~ 12'5"
Cuisine/salle à manger
18'6" x 15'8"
~ 9'0"
Îlot
7'8" x 3'0"
N/D
Garde-manger
6'8" x 5'0"
~ 9'0"
Patio
10'0" x 6'0"
N/D
Bureau à domicile
7'2" x 8'4"
~ 9'0"
Garde-robe
3'0" x 2'0"
~ 9'0"
Chambre à coucher
9'0" x 12'0"
~ 9'0"
Garde-robe
5'0" x 2'0"
~ 9'0"
Salle de bain complète
12'0" x 5'10"
~ 9'0"
Douche
5'0" x 3'4"
N/D
Chambre à coucher
12'0" x 12'6"
~ 9'0"
Walk-in
6'8" x 3'4"
~ 9'0"

Sous-sol aménagé (Optionel $)

Pièces
Dimensions
Plafond
Salle familiale
18'2" x 19'2"
~ 8'0"
Salle de jeux
9'0" x 10'0"
~ 8'0"
Pièce de mécanique
9'10" x 16'8"
~ 8'0"
Chambre à coucher
13'0" x 11'4"
~ 8'0"
Garde-robe
7'8" x 2'0"
~ 8'0"
Chambre à coucher
11'10" x 9'8"
~ 8'0"
Walk-in
7'4" x 3'2"
~ 8'0"
Salle de lavage
11'4" x 5'8"
~ 8'0"
Salle de bain
11'4" x 6'0"
~ 8'0"
Douche
4'0" x 2'8"
N/D

Sous-sol aménageable

Plan de maison de plain-pied au style transitionnel – Élégance, douceur et bien-être au quotidien

Laissez-vous séduire par cette maison de plain-pied au design transitionnel, où l’élégance intemporelle rencontre la simplicité moderne. Offrant une ambiance zen et apaisante, elle a été conçue pour ceux qui recherchent un cadre de vie harmonieux, confortable et lumineux.

Sa structure sobre et gracieuse dégage une véritable douceur, idéale pour favoriser le bien-être au quotidien. Parfaite pour ceux qui souhaitent allier fonctionnalité et sérénité dans un environnement chaleureux.

Les plafonds de 9 pieds sur presque tout le premier étage créent une belle sensation d’espace et de liberté. Le plafond cathédrale au salon accentue encore davantage cette impression d’amplitude, laissant entrer une lumière abondante. Un véritable coup de cœur pour les amateurs de clarté et de hauteur.

Au sous-sol, le plafond de 8 pieds assure également un confort optimal. Et si vous optez pour le *sous-sol aménagé (option disponible moyennant un coût supplémentaire), vous pourrez ajouter deux chambres supplémentaires, portant le total à quatre chambres. Idéal pour une famille en croissance, ou pour recevoir vos invités dans un espace dédié.

Le cœur de la maison propose une aire de vie décloisonnée, où la cuisine, la salle à manger et le salon se côtoient dans une belle fluidité. Un espace convivial, parfait pour les soupers animés ou les moments calmes en famille.

La cuisine bien pensée inclut un îlot central pratique et un garde-manger généreux. Tout a été réfléchi pour rendre la vie quotidienne plus simple… et plus belle.

La chambre principale dispose d’un walk-in spacieux, idéal pour maximiser le rangement tout en gardant une esthétique épurée.

Un petit bureau lumineux est aussi prévu au rez-de-chaussée. Il peut se transformer selon vos besoins : coin télétravail, pouponnière ou espace lecture.

Ce plan de maison a été soigneusement imaginé pour répondre à vos besoins aujourd’hui… et demain. Un investissement dans votre qualité de vie, à long terme.
---
*Si vous souhaitez acheter le plan du sous-sol aménagé, tel que présenté sur la page de ce plan, veuillez sélectionner cette option dans le panier d'achat, dans la section "Sélectionner votre fondation". Si vous ne sélectionnez pas cette option, vous recevrez le sous-sol non fini, sans frais additionnel.

Éléments distinctifs

Maison de plain-pied au style transitionnel offrant une ambiance zen apaisante.
Une structure modeste et gracieuse empreinte de douceur.
Idéal pour ceux qui cherchent le bien-être au quotidien en alliant confort et praticité dans une ambiance paisible.
Plafonds à une hauteur de 9 pied sur l'ensemble du premier étage et un plafond cathédral à la salle de séjour qui apportent une agréable sensation d'amplitude et de luminosité.
Au sous-sol se trouve un plafond de 8 pied pour assurer un confort optimal même dans les parties inférieures de la maison.
Le *sous-sol aménagé est disponible moyennant un coût supplémentaire.
Il offre la possibilité d'ajouter deux chambres supplémentaires pour un total de quatre chambres - parfait pour les familles qui s'agrandissent ou pour recevoir des invités.
Bel espace décloisonné rassemblant la cuisine et le salon avec la salle à manger attenante. Avec un beau foyer prévu au salon, cet espace commun est idéal pour instaurer une atmosphère chaleureuse et harmonieuse.
La cuisine est réfléchie avec un îlot central pratique et un garde-manger pour le stockage.
La chambre principale offre un walk-in idéal pour maximiser l'espace tout en conservant une esthétique épurée.
Un petit bureau lumineux est également prévu au rez-de chaussée. Parfait pour le travail à distance, une petite pouponnière ou un espace de lecture confortable adapté à vos besoins personnels.
Un projet élaboré pour convenir à votre quotidien actuel et futur à long terme.
---
*Si vous souhaitez acheter le plan du sous-sol aménagé, tel que présenté sur la page de ce plan, veuillez sélectionner cette option dans le panier d'achat, dans la section "Sélectionner votre fondation". Si vous ne sélectionnez pas cette option, vous recevrez le sous-sol non fini, sans frais additionnel.

Particularité(s) du plan

Aire ouverte, Plafond cathédrale, Plafond à plus de 8', Walk-in ch. maîtres, Ilôt, Foyer, Lavabo double, Bain et douche séparés, Vestiaire, Garde-manger, Entrepreneur, Auto-Construction

Style(s) architectural du plan

Champêtre, Farmhouse, Farmhouse moderne, Tendance, Moderne rustique, Nordique Moderne, Transitionnel

Willki
Willki
*Peut nécessiter une modification au plan

Les panneaux de pierre vissés Willki transforment vos projets en un clin d'œil. Faciles à installer, durables et écoresponsables, ils offrent le look naturel de la pierre pour une fraction du coût. *Nécessite une modification au plan

Oceania
Oceania
Rupert

Bain autoportant collé au mur parfait lorsque l'espace est limité |Fabriqué au Québec

Oceania
Oceania
Bain Rupert

Bain autoportant collé au mur parfait lorsque l'espace est limité |Fabriqué au Québec

Oceania
Oceania
Bain Rupert

Bain autoportant en coin parfait pour maximiser l'espace avec style | Fabriqué au Québec

Designers
Designers

Que vous cherchiez à construire un chalet, une première maison, une résidence pour la vie ou un immeuble locatif, nos experts designers sont là pour vous simplifier la vie et vous concevoir des espaces exceptionnels tout en respectant votre budget, vos besoins et vos demandes, selon vos délais. Cuisines, salles de bain, salon, bureau, chambre... Trouvez le Designer parfait pour votre projet immobilier dès maintenant!

Designers
Designers

Que vous cherchiez à construire un chalet, une première maison, une résidence pour la vie ou un immeuble locatif, nos experts designers sont là pour vous simplifier la vie et vous concevoir des espaces exceptionnels tout en respectant votre budget, vos besoins et vos demandes, selon vos délais. Cuisines, salles de bain, salon, bureau, chambre... Trouvez le Designer parfait pour votre projet immobilier dès maintenant!

Plans similaires
Logo Dessins Drummond image Dessins Drummond
Le modèle Cedar grove est protégé par la loi sur les droits d'auteur.

Les illustrations présentées peuvent différer du plan détaillé que vous recevrez, car ces derniers sont régulièrement ajustés afin de respecter les normes de construction en vigueur.

En savoir plus

Une question ou un commentaire sur ce plan ?

Information de contact

Votre demande

Ajouter vos images ou photos

Pour ajouter une ou des photos, veuillez cliquer ou glisser vos fichiers dans la zone ci-bas. Vous pouvez ajouter jusqu'à huit photos JPG ou JPEG. Cette opération n'est pas obligatoire.

Désolé, votre navigateur ne supporte pas l'envoi de fichier.