Vue avant - MODÈLE DE BASE - Plan de maison offrant garage, 3 chambres, coin lecture - Arbosse

Vue avant - MODÈLE DE BASE

Rez-de-chaussée - Plan de maison offrant garage, 3 chambres, coin lecture - Arbosse

Rez-de-chaussée

Étage - Plan de maison offrant garage, 3 chambres, coin lecture - Arbosse

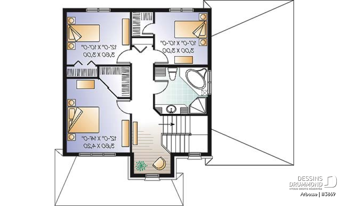
Étage

Élévation arrière - Arbosse

Élévation arrière

Arbosse Plan de maison 3869

Plan de maison offrant garage, 3 chambres, coin lecture

À partir de

1680$

Fiche technique sommaire Plan #3869
Estimation ($) 529,089$
Surface habitable 1654 pi² Chambre 3
Salle de Bain 1 Salle d'eau 1
Fondation incluse Sous-sol aménageable Garage 1 voiture
Largeur 42'0" Profondeur 32'4"

Besoin d’aide ?

Nos experts vous guident dans votre projet grâce à plus de 30 bureaux au Québec.

Joignez-nous

Consultez notre guide utilisateur

Un outil conçu pour vous simplifier la vie.

Ouvrir le guide

Un accompagnement sur mesure

De la modification de plans au design d’intérieur, nous vous guidons à chaque étape.

Découvrir nos services

Détails supplémentaires

Estimation

Spécifications générales

Surface aménagée totale
1654 pi²
Rez-de-chaussée
829 pi²
Étage
825 pi²
Largeur
42'0"
Profondeur
32'4"
Hauteur dessus fondations au faite
33'4"
Murs extérieurs
2 X 6
Sous-sol aménageable
Autres fondations disponibles (des frais peuvent s'appliquer)
Dalle flottante, Vide sanitaire
Code Entrepreneur
D

Spécifications sur les pièces

Chambre(s)
3
Salle(s) de bain complète(s)
1
Demi Salle(s) de Bain
1
Type de garage
1 voiture (397 pi²)
Superficie balcon et/ou perron abrité
210 pi²

Rez-de-chaussée

Pièces
Dimensions
Plafond
Cuisine
14'4" x 12'0"
~ 8'0"
Salle à manger
12'0" x 12'0"
~ 8'0"
Salle de séjour
12'0" x 14'4"
~ 8'0"
Entrée ou vestibule
7'0" x 11'0"
~ 8'0"
Garde-robe
2'2" x 7'0"
~ 8'0"
Demie salle de bain ou coin toilette
5'2" x 7'0"
~ 8'0"
Garage
13'4" x 26'8"
~ 8'0"
Perron
21'4" x 7'8"
N/D
Perron
12'0" x 5'0"
N/D

Étage

Pièces
Dimensions
Plafond
Salle de bain complète
10'0" x 8'10"
~ 8'0"
Chambre à coucher
12'0" x 14'0"
~ 8'0"
Chambre à coucher
12'0" x 10'0"
~ 8'0"
Chambre à coucher
10'0" x 10'0"
~ 8'0"
Lingerie
4'0" x 1'4"
~ 8'0"

Cottage avec plusieurs atouts…

Conçu tout à fait dans la pensée de ces maisons de banlieue dont le rez-de-chaussée se doit d’être passablement ressorti du sol, ce cottage aux allures champêtres se veut une solution idéale à cette problématique tout en répondant à bien d’autres attentes dont on vous fait part sans plus tarder.

Ainsi retrouve-t-on une entrée principale bien abritée et un « hall » intérieur fort bien dégagé avec garde-robe de grand format, sans oublier un accès rapproché au garage doté pour sa part d’un escalier vers le sous-sol comme tant apprécié des propriétaires.

C’est aussi, au rez-de-chaussée, une vaste cuisine avec garde-manger de type « walk-in » et îlot-lunch central en plus d’une salle à manger et d’une salle de séjour de bonnes dimensions et d’un espace buanderie intégré au coin toilette.

À l’étage, on est en mesure d’apprécier les atouts suivants soit, un espace lecture ou coin ordinateur juste en haut de l’escalier, une salle de bain avec bain et douche en coin, des chambres secondaires fort enviables et une chambre des maîtres dotée d’une garde-robe de type « walk-in » une fois de plus pour le plus grand bonheur des propriétaires.

Éléments distinctifs

Belle galerie couverte à l'avant. Entrée principale bien dégagée avec escalier attenant et garde-robe fort logeable. Superbe cuisine avec garde-manger de type "walk-in", beaucoup de comptoir et îlot-lunch central. Salle à manger ouverte avec la salle de séjour et toutes deux de bien beau format. Trois belles chambres à l'étage avec excellents rangements et coin lecture ou coin ordinateur au haut de l'escalier. Garage plutôt profond avec descente au sous-sol.

Particularité(s) du plan

Vestibule, Salle de lavage au rez-de-chaussée, Accès au sous-sol du garage, Ilôt, Walk-in ch. maîtres, Bain et douche séparés

Style(s) architectural du plan

Champêtre, Traditionnelle

Plans similaires
Logo Dessins Drummond image Dessins Drummond
Le modèle Arbosse est protégé par la loi sur les droits d'auteur.

Les illustrations présentées peuvent différer du plan détaillé que vous recevrez, car ces derniers sont régulièrement ajustés afin de respecter les normes de construction en vigueur.

En savoir plus

Une question ou un commentaire sur ce plan ?

Information de contact

Votre demande

Ajouter vos images ou photos

Pour ajouter une ou des photos, veuillez cliquer ou glisser vos fichiers dans la zone ci-bas. Vous pouvez ajouter jusqu'à huit photos JPG ou JPEG. Cette opération n'est pas obligatoire.

Désolé, votre navigateur ne supporte pas l'envoi de fichier.