Plan de maison – recherche avancée

Trouvez le plan de maison idéale parmi nos milliers de plans et modèles de maison, plans de chalet, plans de garage, plans de maison bi-génération, plans de jumelée! Utilisez les filtres pour préciser vos besoins ou recherchez parmi nos centaines de collections tels nouveautés ou par coûts de construction ou styles de maisons! Obtenez votre estimation en ligne gratuite pour la modification, au besoin, via l'un de nos 30 bureaux en personne ou en visioconférence!

Besoin d'aide pour trouver le plan parfait? Faites nous parvenir vos critères et nous effectuerons une recherche personnalisée pour vous!

Par défaut
1335 plan(s) trouvé(s)
1335 plan(s) trouvé(s)

Ambroix 2783

Champêtre

Chambres 3
Salles de bain 1.5
Pied carré 1533 PI²
Avec un entrepreneur
428,757$
Plan à partir de
1680$

Clayton 2789

Champêtre

Chambres 3
Salles de bain 1.5
Pied carré 1616 PI²
Avec un entrepreneur
462,534$
Plan à partir de
1680$

Bentley 2991

Contemporain / Zen

Chambres -
Salles de bain -
Pied carré 480 PI²
Avec un entrepreneur
67,431$
Plan à partir de
555$

Lawson 2992-24

Traditionnelle

Chambres -
Salles de bain -
Pied carré 576 PI²
Avec un entrepreneur
74,179$
Plan à partir de
585$

Larson 2993

Américain

Chambres -
Salles de bain -
Pied carré 616 PI²
Avec un entrepreneur
79,296$
Plan à partir de
620$

Nordet 2994

Champêtre

Chambres -
Salles de bain -
Pied carré 576 PI²
Avec un entrepreneur
74,179$
Plan à partir de
620$

Elmore 3034

Champêtre

Chambres 3
Salles de bain 1.5
Pied carré 2716 PI²
Avec un entrepreneur
444,414$
Plan à partir de
2285$

Cullman 3035

Traditionnelle

Chambres 3
Salles de bain 1.5
Pied carré 2812 PI²
Avec un entrepreneur
873,123$
Plan à partir de
2285$

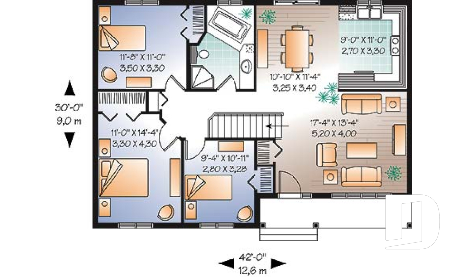
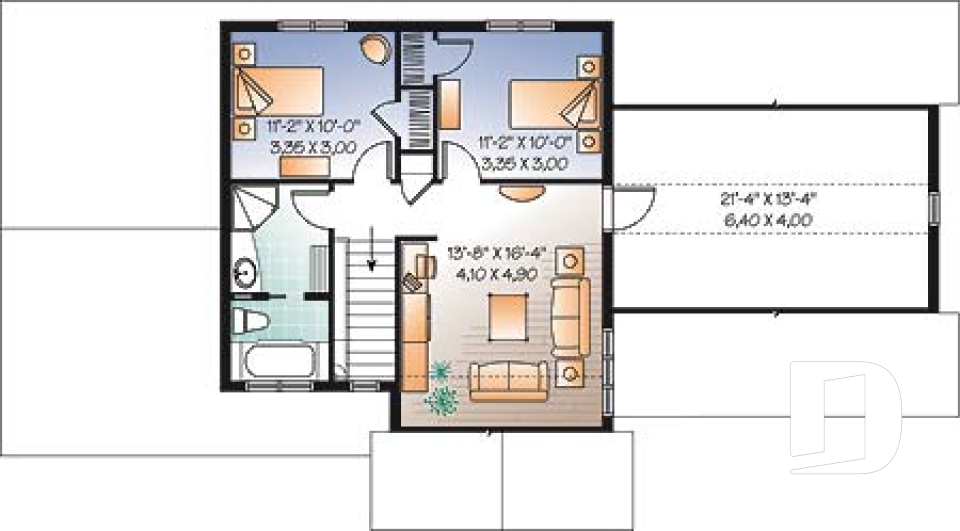
La Vallée 3108

Champêtre

Chambres 2
Salles de bain 1
Pied carré 1184 PI²
Avec un entrepreneur
325,838$
Plan à partir de
1450$

Hale 3110

Champêtre

Chambres 2
Salles de bain 1
Pied carré 1207 PI²
Avec un entrepreneur
337,163$
Plan à partir de
1515$

Jackson 3111

Champêtre

Chambres 3
Salles de bain 1
Pied carré 1384 PI²
Avec un entrepreneur
383,353$
Plan à partir de
1515$

La Romaine 3235

Champêtre

Chambres 3
Salles de bain 1
Pied carré 1456 PI²
Avec un entrepreneur
429,203$
Plan à partir de
1515$