Plan de maison Pinot (6121)
Acheter ce planÀ partir de 1600$ Voir prix et options
Plan de maison Pinot (6121)
Plan de maison scandinave à aire ouverte avec garage, 1 to 4 chambres et sous-sol optionnel !
Venez nous voir
Planchers- Détails
techniques
photos- versions
modifiées - produits
& matériaux - Assurance
HabitationCommandité par Beneva
Estimation
| Coûts ($) Est. entrepreneur - S-sol non-fini | À partir de 491,283$ |
| Coûts ($) Est. entrepreneur - S-sol fini | À partir de 537,396$ |
Spécifications générales
| Surface aménagée totale | 1561 pi2 |
| Rez-de-chaussée | 1561 pi2 |
| Sous-sol aménageable | 1561 pi2 |
| Sous-sol aménagé (Optionel $) | 1561 pi2 |
| Largeur | 64'8" |
| Profondeur | 41'4" |
| Hauteur dessus fondations au faite | 20'11" |
| Murs extérieurs | 2 X 6 |
| Type de fondation incluse au plan | Sous-sol aménageable |
| Autres fondations disponibles (des frais peuvent s'appliquer) | Sous-sol aménagé, Dalle flottante, Vide sanitaire, Dalle monolithique |
| Code Entrepreneur | D |
Spécifications sur les pièces
| Chambre(s) | 1, 2, 3, 4 |
| Salle(s) de bain complète(s) | 2 |
| Demi Salle(s) de Bain | 1 |
| Type de garage | 1 voiture (438 pi2) |
| Espace boni aménageable | - |
| Rangement boni | - |
| Superficie balcon et/ou perron abrité | 24 pi2 |
Estimation
| Coûts ($) Est. entrepreneur - S.sol non-fini | À partir de 491,283$ i |
| Coûts ($) Est. entrepreneur - S.sol fini | À partir de 537,396$ i |
Spécifications générales
| Surface aménagée totale | 1561 pi2 |
| Rez-de-chaussée | 1561 pi2 |
| Sous-sol aménagé (Optionel $) | 1561 pi2 |
| Sous-sol aménageable | 1561 pi2 |
| Largeur | 64'8" |
| Profondeur | 41'4" |
| Hauteur dessus fondations au faite | 20'11" |
| Murs extérieurs | 2 X 6 |
| Type de fondation incluse au plan | Sous-sol aménageable i |
| Autres fondations disponibles (des frais peuvent s'appliquer) | Sous-sol aménagé, Dalle flottante, Vide sanitaire, Dalle monolithique |
| Conception par le bureau de | Jenn x Dessins Drummond |
| Code Entrepreneur | D |
Spécifications sur les pièces


Conception : Jenn x Dessins Drummond
Rez-de-chaussée
Sous-sol aménageable
Sous-sol aménagé (Optionel $)
Voir la grandeur des pièces et hauteur des plafonds
| Rez-de-chaussée | ||
|---|---|---|
| Pièces | Dimensions | Plafond |
| Perron abrité | 8'0" x 3'0" | ~ 8'8" |
| Entrée ou vestibule | 11'6" x 7'2" | ~ 9'0" |
| Vestiaire | 12'4" x 7'8" | ~ 9'0" |
| Garage | 15'6" x 21'0" | ~ 11'8" |
| Garde-manger | 5'8" x 8'10" | ~ 9'0" |
| Cuisine | 15'0" x 22'4" | ~ 13'10" |
| Îlot | 11'8" x 3'10" | N/D |
| Coin toilette/lavabo | 5'8" x 5'0" | ~ 9'0" |
| Salle de séjour | 13'6" x 17'2" | ~ 14'5" |
| Salle à manger | 13'6" x 9'0" | ~ 14'5" |
| Suite des maîtres | 10'0" x 13'8" | ~ 9'0" |
| Salle de bain complète | 9'0" x 17'6" | ~ 9'0" |
| Toilette en cabine | 2'8" x 4'6" | ~ 9'0" |
| Douche | 5'0" x 6'0" | N/D |
| Walk-in | 9'0" x 6'10" | ~ 9'0" |
| Lingerie | 1'8" x 1'4" | N/D |
| Coin bureau | 3'10" x 2'6" | ~ 9'0" |
| Terrasse abritée | 13'0" x 16'0" | ~ 9'4" |
| Terrasse | 13'10" x 16'2" | N/D |
| Coin laveuse/sécheuse | 3'0" x 8'6" | ~ 9'0" |
| Sous-sol aménagé (Optionel $) | ||
|---|---|---|
| Pièces | Dimensions | Plafond |
| Pièce de mécanique | 6'4" x 7'6" | ~ 8'0" |
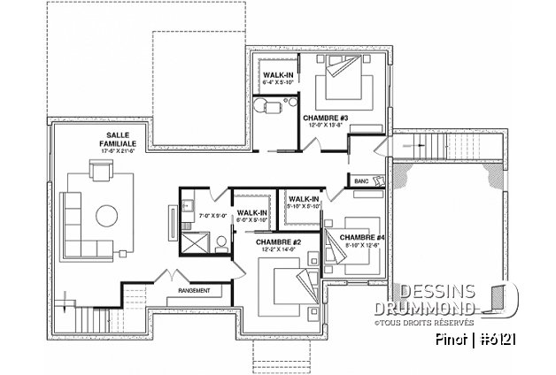
| Chambre à coucher | 12'0" x 13'8" | ~ 8'0" |
| Walk-in | 6'4" x 5'10" | ~ 8'0" |
| Vestiaire | 5'0" x 7'2" | ~ 8'0" |
| Chambre à coucher | 8'10" x 12'6" | ~ 8'0" |
| Walk-in | 5'10" x 5'10" | ~ 8'0" |
| Chambre à coucher | 12'2" x 14'0" | ~ 8'0" |
| Walk-in | 6'0" x 5'10" | ~ 8'0" |
| Rangement | 15'2" x 3'2" | ~ 8'0" |
| Salle de bain | 7'0" x 9'0" | ~ 8'0" |
| Douche | 4'0" x 3'0" | N/D |
| Lingerie | 1'0" x 1'4" | N/D |
| Salle familiale | 17'6" x 21'6" | ~ 8'0" |
| Sous-sol aménageable |
|---|
Autres informations utiles sur ce plan
Plan de maison scandinave à aire ouverte avec garage, 1 à 4 chambres et sous-sol optionnel !
Ce plan de maison d’inspiration scandinave séduit par son style épuré, sa fonctionnalité bien pensée et son élégance moderne. Avec son garage intégré et son aménagement intérieur favorisant la lumière naturelle, ce modèle s’adresse à ceux qui recherchent à la fois esthétisme, confort et praticité au quotidien.
Dès l’entrée, le vestiaire accessible autant du garage que de la porte principale simplifie la vie familiale et permet de garder les espaces bien organisés. La cuisine, située au cœur de la maison, impressionne par son vaste îlot central, son cellier vitré élégant et son garde-manger facilement accessible depuis le garage. De quoi faciliter les arrivées d’épicerie et optimiser le rangement. Un petit coin bureau a également été prévu à proximité, idéal pour le télétravail ou les devoirs.
La salle de séjour se distingue par son plafond cathédral et son foyer chaleureux, ouverte directement sur la salle à manger baignée de lumière grâce à ses grandes fenêtres donnant sur la cour arrière. Cet espace de vie à aire ouverte respire la convivialité et met en valeur l’architecture nordique, axée sur la luminosité et le bien-être.
La suite des maîtres est un véritable refuge privé, avec salle de bain attenante et un walk-in pratique intégrant un coin laveuse-sécheuse superposées. Une salle d’eau supplémentaire, judicieusement placée en retrait des aires communes, ajoute encore plus de confort.
À l’extérieur, une terrasse arrière couverte, accessible à la fois de la chambre principale et de la cuisine, invite à profiter de la belle saison, beau temps comme mauvais temps.
Le sous-sol de base est non fini offrant ainsi une flexibilité totale pour adapter la maison selon vos besoins futurs.
*Sous-sol aménagé (optionnel $):
Pour ceux qui recherchent plus d’espace, une version optionnelle propose un sous-sol entièrement aménagé comprenant trois chambres additionnelles avec walk-in, une salle de douche moderne, un grand rangement et une salle familiale spacieuse, idéale pour les soirées cinéma ou la salle de jeux des enfants.
Alliant style scandinave, design lumineux et aménagement polyvalent, ce plan de maison avec garage est une valeur sûre pour les familles modernes en quête de confort, de fonctionnalité et d’élégance intemporelle.
---
*Si vous souhaitez acheter le plan du sous-sol aménagé, tel que présenté sur la page de ce plan, veuillez sélectionner cette option dans le panier d'achat, dans la section "Sélectionner votre fondation". Si vous ne sélectionnez pas cette option, vous recevrez le sous-sol non fini, sans frais additionnel.
Éléments distinctifs
Maison d'inspiration scandinave avec garage.
Plancher à aire ouverte permettant de profiter de la lumière naturelle et abondante.
Vestiaire avec accès de l'entrée avant principale ainsi que du garage.
Garde-manger facile d'accès du garage.
Cuisine avec grand garde-manger à proximité, un imposant îlot central ainsi qu'un cellier vitré.
Petit coin bureau prévu à proximité de la cuisine.
Salle de séjour avec plafond cathédral, foyer et ouvert sur la salle à manger.
Salle à manger bien fenêtrée permettant de profiter de la vue de la cour arrière.
Suite des parents avec salle de bain privée, et garde-robe de type walk-in incluant un coin laveuse-sécheuse superposées.
Une petite salle d'eau est également prévue en retrait des airs communs.
Accès au sous-sol du garage.
Terrasse arrière abritée accessible de la chambre des maîtres et du coin cuisine.
Sous-sol de base est non fini, à aménager selon vos besoins.
---
*Sous-sol aménagé (optionnel $):
Sous-sol proposant 3 chambres, chacune avec garde-robe walk-in.
Salle de douche.
Grand rangement.
Salle familiale additionnelle au sous-sol.
---
*Si vous souhaitez acheter le plan du sous-sol aménagé, tel que présenté sur la page de ce plan, veuillez sélectionner cette option dans le panier d'achat, dans la section "Sélectionner votre fondation". Si vous ne sélectionnez pas cette option, vous recevrez le sous-sol non fini, sans frais additionnel.
Particularité(s) du plan
Vue paronamique, Vestiaire, Accès au sous-sol du garage, Aire ouverte, Chambres séparées, Garde-manger, Ilôt, Foyer, Plafond cathédrale, Suite des maîtres au rdc, Terrasse abritée, Banquette, Salle de lavage au rez-de-chaussée, Cellier, Plafond à plus de 8', Coin bureau, Tablettes, Bain et douche séparés, Arche
Style(s) architectural du plan
Scandinave, Contemporain / Zen, Moderne, Tendance, Transitionnel, Ranch, Moderne rustique
Notes légales
Ce modèle est protégé par la Loi sur les Droits d'Auteur.
De plus, les illustrations présentées peuvent différer du plan détaillé que vous recevrez, car ces derniers sont régulièrement ajustés afin de respecter les normes de construction en vigueur.
Plans similaires
Consultés précédemment
Merci pour votre commentaire! Celui-ci doit être approuvé avant d'être mis en ligne, veuillez allouer une période de 24 heures.
Erreur avec google reCaptcha! Veuillez réessayer.
Vous souhaitez apporter des modifications à ce plan?
Estimation gratuite en ligneVenez nous voir
Nos 31 bureauxVous apprécierez aussi
Pour vous assurer de bien préparer votre projet, nous vous proposons ce guide accompagnateur.
Voir le guidePlans similaires
Description
Rez-de-chaussée:
Entrée, vestiaire, cuisine avec cellier, garde-manger, coin bureau, salle de séjour, salle à manger, suite des parents avec walk-in et salle de bain privée.
Garage simple.
Terrasse abritée.
Sous-sol non fini, à aménager.
---
*Sous-sol aménagé (optionnel $):
3 chambres, salle familiale, salle de douche et rangement.
---
*Si vous souhaitez acheter le plan du sous-sol aménagé, tel que présenté sur la page de ce plan, veuillez sélectionner cette option dans le panier d'achat, dans la section "Sélectionner votre fondation". Si vous ne sélectionnez pas cette option, vous recevrez le sous-sol non fini, sans frais additionnel.
Prix et
reconnaissance



























