Plan de maison Napoléon 2 (2594-V1)
Plan champêtre, 2 chambres, garage, salon chaleureux avec foyer
Autres informations utiles sur ce plan
Ajout de garage, élégance et envergure
Conçu à partir du plan d’origine 2594, ce modèle de maison change radicalement de poil avec une sortie de sol significative, un traitement extérieur davantage urbain et l’addition d’un garage comme tant convoité par bien des propriétaires.
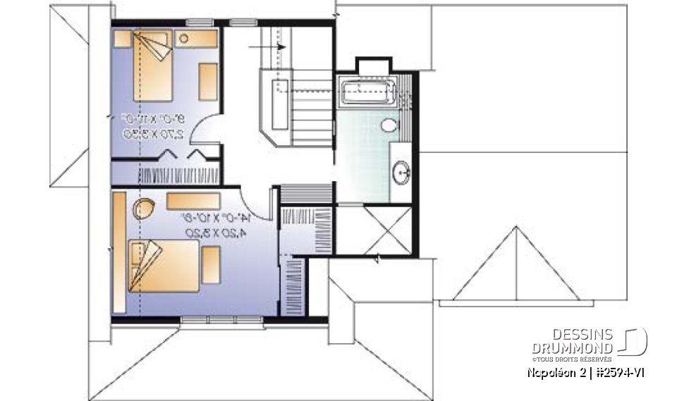
Avec tout près de 150pi2 additionnels, ce modèle version suggère un intérieur plus confortable comme pour cet espace buanderie au rez-de-chaussée ou bien pour l’ajout d’une douche indépendante de 76po x 48po à la salle de bain de l’étage.
Il en va aussi de l’addition d’un foyer en coin à la salle de séjour, de l’élimination des marches d’angle facilitant ainsi le passage du mobilier dans l’escalier vers l’étage ou vers le sous-sol et d’une entrée principale passablement plus confortable.
À l’extérieur, le jumelage colonne et base de brique, l’aménagement de brique sur toute la façade principale et un sortie significative du sol procurent à la fois de l’envergure et une élégance indiscutable à cette maison.
Éléments distinctifs
Rez-de-chaussée entièrement ouvert avec foyer à la salle de séjour. Salle de bain de l'étage avec puits de lumière au-dessus du bain et grande douche de 76" x 48".
Particularité(s) du plan
Vue paronamique, Foyer, Vestibule, Salle de lavage au rez-de-chaussée, Comptoir-lunch, Plafond en pente, Bain et douche séparés, Aire ouverte
Style(s) architectural du plan
Notes légales
Ce modèle est protégé par la Loi sur les Droits d'Auteur.
De plus, les illustrations présentées peuvent différer du plan détaillé que vous recevrez, car ces derniers sont régulièrement ajustés afin de respecter les normes de construction en vigueur.
Plans similaires
Consultés précédemment
Questions et commentaires
27 Février
frederic poulin
Bonjours, est-ce que la brique est calculée sur ce prix et si je voulais du Maibec à la place, combien coûterais ce modèle, merci à l'avance et j'aime beaucoup votre site ?
27 Février
Service à la clientèle
Bonjour M. Poulin et merci pour votre intérêt au niveau de ce plan.
Étant donné que nous faisons aucune construction et que les montants sont pour les matériaux tel que vous les voyez dans l'image, nous n'avons pas de ventilation qui me permetterait de bien répondre à votre question mais vous pouvez vous référer au modèle 2594 pour avoir un idée car il a du revêtement au lieu de la brique mais il n'y a pas de garage.
Ceci étant dit, vos meilleures ressources pour l'information que vous cherchez seraient les professionnels et fournisseurs de matériaux de votre région.
N'hésitez pas de me relancer si je peux vous assister davantage.
Bien à vous
Deb
04 Septembre
Jacques Salvas
Quelle est la hauteur entre la fondation et le mi pignon?
Notre municipalité (Drummondville) nous limite à 6.86 mètres
04 Septembre
Service à la clientèle
Bonjour M. Salvas et merci d'avoir pris le temps de nous écrire.
La hauteur entre la fondation et le mi pignon est 23'10" ou 7,15m mais la modification du plan serait possible et je vous laisse le soin de communiquer directement avec notre équipe en agence la plus près de vous.
N'hésitez pas de me relancer si vous avez d'autres questions ou commentaires.
Bien à vous
Deb
25 Juillet
STEPHANE MATTE
QUEL SERAIT LES COUT DE CONSTRUCTION SANS LE GARAGE ET AVECT UNE FINITION EN VENIL ET LES POTAUX DE GUALERIE EN BOIS SANS LA BRIQUE
STEPHANE MATTE
10 Août
Service à la clientele
Bonjour monsieur Matte,
Merci de votre intérêt envers Dessins Drummond.
Étant donné que les coûts de construction varient grandement d'une région à une autre, nous vous suggérons de vous informer auprès d'un entrepreneur de votre région pour obtenir une estimation plus précise. En lui présentant l'information disponible sur notre site web concernant ce plan et en lui faisant part des changements souhaités, votre entrepreneur pourra vous fournir un coût de construction reflétant les modifications souhaitées.
Si vous avez d'autres questions, n'hésitez pas à me contacter à nouveau.
Sincèrement,
France, Service à la clientèle
Merci pour votre commentaire! Celui-ci doit être approuvé avant d'être mis en ligne, veuillez allouer une période de 24 heures.
Erreur avec google reCaptcha! Veuillez réessayer.







27 Février
frederic poulin
Bonjours, est-ce que la brique est calculée sur ce prix et si je voulais du Maibec à la place, combien coûterais ce modèle, merci à l'avance et j'aime beaucoup votre site ?