Maison à étage d'inspiration English Cottage, 4 chambres, espace aménageable au-dessus du garage
Vue avant - MODÈLE DE BASE
Vue avant - MODÈLE DE BASE
Vue avant - MODÈLE DE BASE
Vue avant - MODÈLE DE BASE
Vue arrière - MODÈLE DE BASE
Élévation arrière
Vue intérieure
Vue intérieure
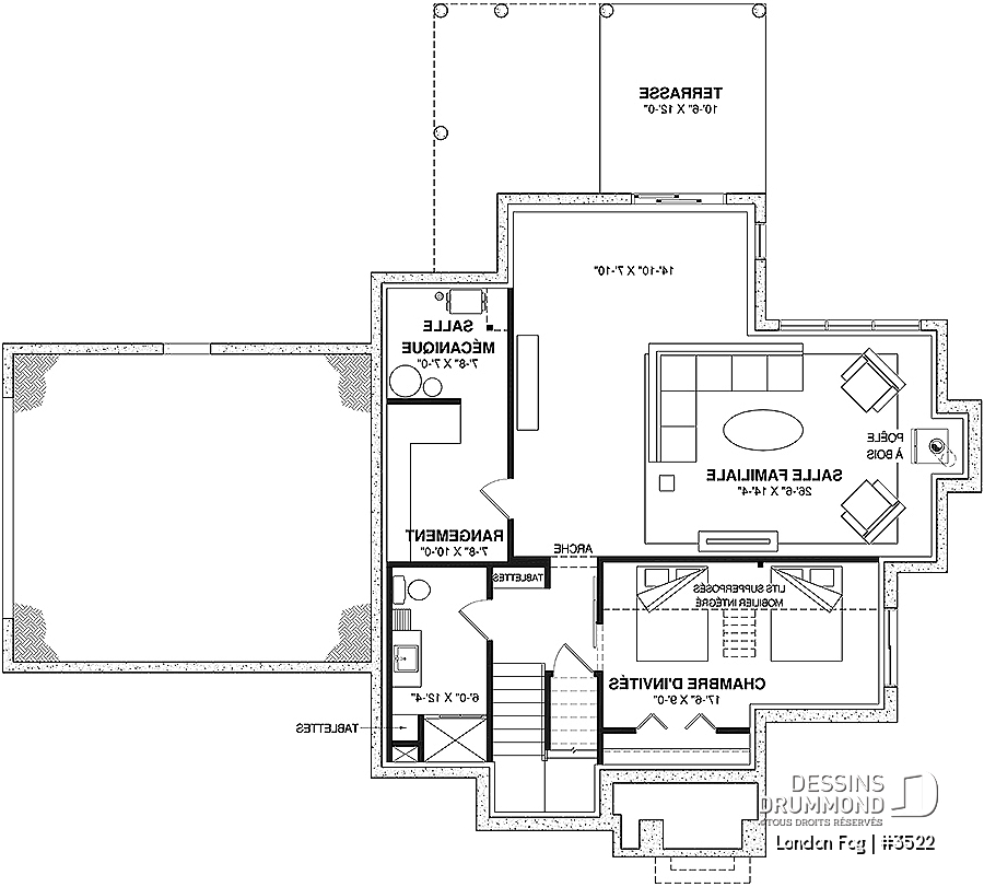
| Sous-sol aménagé | ||||
| Pièces | Dimensions | Plafond | ||
| Salle de bain | 6'0" x 12'4" | ~ 9'0" | ||
| Douche | 4'0" x 3'0" | ~ 0'0" | ||
| Lingerie | 1'4" x 1'2" | ~ 0'0" | ||
| Rangement | 7'8" x 10'0" | ~ 9'0" | ||
| Pièce de mécanique | 7'8" x 7'0" | ~ 9'0" | ||
| Salle familiale | 26'6" x 14'4" | ~ 9'0" | ||
| Chambre à coucher | 17'6" x 9'0" | ~ 9'0" | ||
| Garde-robe | 9'4" x 2'0" | ~ 9'0" | ||
| Terrasse abritée | 10'6" x 12'0" | ~ 9'3" | ||
| Secteur activités | 14'10" x 7'10" | ~ 9'0" | ||
| Rez-de-chaussée | ||||
| Pièces | Dimensions | Plafond | ||
| Perron abrité | 9'8" x 5'0" | ~ 9'4" | ||
| Entrée ou vestibule | 7'0" x 6'10" | ~ 9'0" | ||
| Garde-robe | 6'10" x 2'4" | ~ 9'0" | ||
| Bureau à domicile | 7'8" x 8'10" | ~ 9'0" | ||
| Coin toilette/lavabo | 6'4" x 6'10" | ~ 9'0" | ||
| Garage | 22'8" x 19'6" | ~ 9'10" | ||
| Vestiaire | 6'8" x 13'10" | ~ 9'0" | ||
| Garde-manger | 6'8" x 9'4" | ~ 9'0" | ||
| Salle à manger | 15'8" x 11'0" | ~ 9'0" | ||
| Abri moustiquaire | 16'0" x 11'6" | ~ 9'4" | ||
| Patio | 4'0" x 13'2" | ~ 0'0" | ||
| Cuisine | 16'8" x 13'8" | ~ 9'0" | ||
| Îlot | 8'0" x 4'6" | ~ 0'0" | ||
| Salle de séjour | 11'6" x 14'8" | ~ 12'10" | ||
| Rangement extérieur | 4'0" x 3'6" | ~ 5'4" | ||
| Étage | ||||
| Pièces | Dimensions | Plafond | ||
| Chambre à coucher | 10'0" x 12'4" | ~ 8'0" | ||
| Garde-robe | 7'6" x 2'2" | ~ 8'0" | ||
| Chambre à coucher | 9'8" x 11'0" | ~ 8'0" | ||
| Garde-robe | 9'8" x 2'2" | ~ 8'0" | ||
| Lingerie | 2'2" x 1'6" | ~ 8'0" | ||
| Salle de bain | 9'4" x 6'0" | ~ 8'0" | ||
| Lingerie | 1'0" x 1'8" | ~ 0'0" | ||
| Suite des maîtres | 13'4" x 13'6" | ~ 8'0" | ||
| Walk-in | 6'4" x 8'0" | ~ 8'0" | ||
| Salle de bain complète | 10'0" x 9'0" | ~ 8'0" | ||
| Douche | 3'0" x 5'0" | ~ 0'0" | ||
| Lingerie | 1'6" x 1'4" | ~ 0'0" | ||
| Coin laveuse/sécheuse | 3'0" x 7'10" | ~ 8'0" | ||
| Espace boni aménageable | 18'8" x 13'1" | ~ 8'0" | ||
| Abri d'auto | 0'0" x 0'0" | ~ 0'0" | ||
Estimation
| Estimation des coûts approx. de construction |
Spécifications générales
| Surface aménagée totale | 3294 pi2 |
| Rez-de-chaussée | 1190 pi2 |
| Étage | 914 pi2 |
| Sous-sol aménagé | 1190 pi2 |
| Largeur | 62'0" |
| Profondeur | 40'4" |
| Hauteur dessus fondations au faite | 30'10" |
| Murs extérieurs | 2 X 6 |
| Type de fondation | Sous-sol aménagé + sortie extérieure (Rez-de-jardin) |
| Code Entrepreneur | I |
Spécifications sur les pièces
| Chambre(s) | 5, 3, 4 |
| Salle(s) de bain complète(s) | 3 |
| Demi Salle(s) de Bain | 1 |
| Type de garage | 1 voiture (500 pi2) |
| Espace boni aménageable | 275 pi2 |
| Rangement boni | - |
| Estimation des coûts approx. de construction | i |
| Surface aménagée totale | 3294 pi2 |
| Sous-sol aménagé | 1190 pi2 |
| Rez-de-chaussée | 1190 pi2 |
| Étage | 914 pi2 |
| Largeur | 62'0" |
| Profondeur | 40'4" |
| Hauteur dessus fondations au faite | 30'10" |
| Murs extérieurs | 2 X 6 |
| Type de fondation | Sous-sol aménagé + sortie extérieure (Rez-de-jardin) i |
Vue avant
Note: Ces photos représentent une version modifiée, non-disponible à la vente, du plan d'origine duquel elles proviennent. Veuillez consulter l'un de nos 31 bureaux si vous souhaitez obtenir des modifications au plan d'origine de ce modèle.
Demi salle de bain
Note: Ces photos représentent une version modifiée, non-disponible à la vente, du plan d'origine duquel elles proviennent. Veuillez consulter l'un de nos 31 bureaux si vous souhaitez obtenir des modifications au plan d'origine de ce modèle.
Salle de bain
Note: Ces photos représentent une version modifiée, non-disponible à la vente, du plan d'origine duquel elles proviennent. Veuillez consulter l'un de nos 31 bureaux si vous souhaitez obtenir des modifications au plan d'origine de ce modèle.
Salle de bain
Note: Ces photos représentent une version modifiée, non-disponible à la vente, du plan d'origine duquel elles proviennent. Veuillez consulter l'un de nos 31 bureaux si vous souhaitez obtenir des modifications au plan d'origine de ce modèle.
Cuisine
Note: Ces photos représentent une version modifiée, non-disponible à la vente, du plan d'origine duquel elles proviennent. Veuillez consulter l'un de nos 31 bureaux si vous souhaitez obtenir des modifications au plan d'origine de ce modèle.
Cuisine
Note: Ces photos représentent une version modifiée, non-disponible à la vente, du plan d'origine duquel elles proviennent. Veuillez consulter l'un de nos 31 bureaux si vous souhaitez obtenir des modifications au plan d'origine de ce modèle.
Bureau
Note: Ces photos représentent une version modifiée, non-disponible à la vente, du plan d'origine duquel elles proviennent. Veuillez consulter l'un de nos 31 bureaux si vous souhaitez obtenir des modifications au plan d'origine de ce modèle.
Chambre
Note: Ces photos représentent une version modifiée, non-disponible à la vente, du plan d'origine duquel elles proviennent. Veuillez consulter l'un de nos 31 bureaux si vous souhaitez obtenir des modifications au plan d'origine de ce modèle.
Chambre
Note: Ces photos représentent une version modifiée, non-disponible à la vente, du plan d'origine duquel elles proviennent. Veuillez consulter l'un de nos 31 bureaux si vous souhaitez obtenir des modifications au plan d'origine de ce modèle.
Salon
Note: Ces photos représentent une version modifiée, non-disponible à la vente, du plan d'origine duquel elles proviennent. Veuillez consulter l'un de nos 31 bureaux si vous souhaitez obtenir des modifications au plan d'origine de ce modèle.
Salon
Note: Ces photos représentent une version modifiée, non-disponible à la vente, du plan d'origine duquel elles proviennent. Veuillez consulter l'un de nos 31 bureaux si vous souhaitez obtenir des modifications au plan d'origine de ce modèle.
Salle à manger
Note: Ces photos représentent une version modifiée, non-disponible à la vente, du plan d'origine duquel elles proviennent. Veuillez consulter l'un de nos 31 bureaux si vous souhaitez obtenir des modifications au plan d'origine de ce modèle.
Salle à manger
Note: Ces photos représentent une version modifiée, non-disponible à la vente, du plan d'origine duquel elles proviennent. Veuillez consulter l'un de nos 31 bureaux si vous souhaitez obtenir des modifications au plan d'origine de ce modèle.
Entrée ou vestibule
Note: Ces photos représentent une version modifiée, non-disponible à la vente, du plan d'origine duquel elles proviennent. Veuillez consulter l'un de nos 31 bureaux si vous souhaitez obtenir des modifications au plan d'origine de ce modèle.
Vestiaire
Note: Ces photos représentent une version modifiée, non-disponible à la vente, du plan d'origine duquel elles proviennent. Veuillez consulter l'un de nos 31 bureaux si vous souhaitez obtenir des modifications au plan d'origine de ce modèle.
Vestiaire
Note: Ces photos représentent une version modifiée, non-disponible à la vente, du plan d'origine duquel elles proviennent. Veuillez consulter l'un de nos 31 bureaux si vous souhaitez obtenir des modifications au plan d'origine de ce modèle.
Escalier
Note: Ces photos représentent une version modifiée, non-disponible à la vente, du plan d'origine duquel elles proviennent. Veuillez consulter l'un de nos 31 bureaux si vous souhaitez obtenir des modifications au plan d'origine de ce modèle.
Secteur activité
Note: Ces photos représentent une version modifiée, non-disponible à la vente, du plan d'origine duquel elles proviennent. Veuillez consulter l'un de nos 31 bureaux si vous souhaitez obtenir des modifications au plan d'origine de ce modèle.
Description
Sous-sol aménagé (rez-de-jardin): Chambres invités, salle familiale, salle de douche, salle mécanique et rangement. Terrasse abritée. Rez-de-chaussée: Entrée, bureau, vestiaire, salle d'eau, cuisine, garde-manger, salle à dîner et salon. Abri moustiquaire. Étage: Suites des parents avec salle de bain privée et walk-in, coin laveuse/sécheuse, 2 chambres additionnelles, salle de bain. Garage spacieux pour une voiture, avec espace boni à l'étage, pouvant devenir la chambre #5 ou autres selon vos besoins. Fondation incluse: rez-de-jardin. Plusieurs types de fondation disponibles pour tous nos plans.
Autres informations utiles sur ce plan
Doux confort pour cette magnifique maison d'inspiration English cottage!
Le plan de maison LONDON FOG (plan #3522) a été conçu par notre directrice artistique, Jenn, pour une jeune famille qui souhaitait avoir une maison de style « English cottage » avec pentes de toit prononcées, lucarnes et un foyer en briques. Ils souhaitaient un style différent et classique qui traverserait le temps. Avec ses 3294 pieds carrés, aménagés sur 3 étages et son garage avec espace boni à aménager à l’étage (éventuellement), chaque membre de votre famille y trouvera son coin de bonheur!
Le rez-de-chaussée propose un plancher ergonomique avec circulation très fluide entre le garage, le vestiaire, le garde-manger et la cuisine. Au détour, une petite et pratique salle d’eau est aménagée en retrait des airs communs. À noter l’ajout d’arches architecturales donnant du style et amenant une séparation entre les différents espaces du rez-de-chaussée. Un bureau de bon format est aménagé près de l’entrée avant, et pourrait facilement se convertir en salle de jeux si le besoin s’en fait sentir. La cuisine est ouverte sur le salon avec foyer et télévision, pratique pour s’entretenir avec la famille et les amis tout en préparant le souper! Le salon offre un plafond cathédrale alors que la balance du rez-de-chaussée jouit d’un plafond à 9’ de hauteur.
Une salle familiale est aménagée au sous-sol. Ce dernier est de type rez-de-jardin et offre donc un accès direct vers l’extérieur à une terrasse abritée et ainsi donc par le fait même, une belle lumière naturelle à ce niveau. Une chambre d’invités de bon format (chambre #4), une salle de bain et du rangement complète ce plancher.
À l’étage se retrouve la suite des parents qui dispose d’un coin banquette pour lecture, d’une salle de bain privée ainsi que d’une garde-robe walk-in. De plus, ce secteur inclus un coin laveuse-sécheuse superposées. Deux chambres additionnelles à l’étage se partage une salle de bain.
Un abri moustiquaire à l’arrière est accessible par deux portes patios doubles situées dans la salle à manger. De plus, un petit coin rangement à bûches est prévu dehors non loin des portes, afin d’alimenter votre foyer au bois dans le salon!
La maison London Fog porte bien son nom car elle rappelle le thé londonien du même nom qu'on boit pour se réchauffer, donc la chaleur, le bien-être et l'esprit cozy que l’on peut ressentir lorsqu'on boit ce thé!
Éléments distinctifs
Plan de maison d’inspiration anglaise (english cottage) avec plusieurs pentes de toit et lucarnes, et une cheminée en pierre.
Bureau localisé près de l’entrée avant.
Vestiaire judicieusement installé entre l’entrée du garage et la cuisine.
Cuisine avec îlot et garde-manger, ouverte sur la salle à manger et le salon.
Plafond à 9’ partout au rez-de-chaussée sauf au salon où il y a un plafond cathédrale (et un foyer!).
Terrasse arrière avec abri moustiquaire et un coin rangement pour les bûches servant au foyer à l’intérieur.
Sous-sol avec salle familiale et poêle à bois, ainsi qu’un accès à une terrasse abritée au niveau du sol.
Suite parentale à l’étage avec garde-robe de type walk-in et salle de bain privée.
Coin laveuse/sécheuse prévu à l’étage.
Espace boni au-dessus du garage, à aménager selon vos besoins.
Notes légales
Ce modèle est protégé par la Loi sur les Droits d'Auteur.
De plus, les illustrations présentées peuvent différer du plan détaillé que vous recevrez, car ces derniers sont régulièrement ajustés afin de respecter les normes de construction en vigueur.
Autres informations utiles sur ce plan
Description complète
Doux confort pour cette magnifique maison d'inspiration English cottage!
Le plan de maison LONDON FOG (plan #3522) a été conçu par notre directrice artistique, Jenn, pour une jeune famille qui souhaitait avoir une maison de style « English cottage » avec pentes de toit prononcées, lucarnes et un foyer en briques. Ils souhaitaient un style différent et classique qui traverserait le temps. Avec ses 3294 pieds carrés, aménagés sur 3 étages et son garage avec espace boni à aménager à l’étage (éventuellement), chaque membre de votre famille y trouvera son coin de bonheur!
Le rez-de-chaussée propose un plancher ergonomique avec circulation très fluide entre le garage, le vestiaire, le garde-manger et la cuisine. Au détour, une petite et pratique salle d’eau est aménagée en retrait des airs communs. À noter l’ajout d’arches architecturales donnant du style et amenant une séparation entre les différents espaces du rez-de-chaussée. Un bureau de bon format est aménagé près de l’entrée avant, et pourrait facilement se convertir en salle de jeux si le besoin s’en fait sentir. La cuisine est ouverte sur le salon avec foyer et télévision, pratique pour s’entretenir avec la famille et les amis tout en préparant le souper! Le salon offre un plafond cathédrale alors que la balance du rez-de-chaussée jouit d’un plafond à 9’ de hauteur.
Une salle familiale est aménagée au sous-sol. Ce dernier est de type rez-de-jardin et offre donc un accès direct vers l’extérieur à une terrasse abritée et ainsi donc par le fait même, une belle lumière naturelle à ce niveau. Une chambre d’invités de bon format (chambre #4), une salle de bain et du rangement complète ce plancher.
À l’étage se retrouve la suite des parents qui dispose d’un coin banquette pour lecture, d’une salle de bain privée ainsi que d’une garde-robe walk-in. De plus, ce secteur inclus un coin laveuse-sécheuse superposées. Deux chambres additionnelles à l’étage se partage une salle de bain.
Un abri moustiquaire à l’arrière est accessible par deux portes patios doubles situées dans la salle à manger. De plus, un petit coin rangement à bûches est prévu dehors non loin des portes, afin d’alimenter votre foyer au bois dans le salon!
La maison London Fog porte bien son nom car elle rappelle le thé londonien du même nom qu'on boit pour se réchauffer, donc la chaleur, le bien-être et l'esprit cozy que l’on peut ressentir lorsqu'on boit ce thé!
Éléments distinctifs
Plan de maison d’inspiration anglaise (english cottage) avec plusieurs pentes de toit et lucarnes, et une cheminée en pierre.
Bureau localisé près de l’entrée avant.
Vestiaire judicieusement installé entre l’entrée du garage et la cuisine.
Cuisine avec îlot et garde-manger, ouverte sur la salle à manger et le salon.
Plafond à 9’ partout au rez-de-chaussée sauf au salon où il y a un plafond cathédrale (et un foyer!).
Terrasse arrière avec abri moustiquaire et un coin rangement pour les bûches servant au foyer à l’intérieur.
Sous-sol avec salle familiale et poêle à bois, ainsi qu’un accès à une terrasse abritée au niveau du sol.
Suite parentale à l’étage avec garde-robe de type walk-in et salle de bain privée.
Coin laveuse/sécheuse prévu à l’étage.
Espace boni au-dessus du garage, à aménager selon vos besoins.



























