Plan de maison plain-pied, 2 à 4 chambres, aire ouverte, vestiaire et sous-sol aménagé (optionnel $)
Vue avant - MODÈLE DE BASE
Vue avant - MODÈLE DE BASE
Vue avant - MODÈLE DE BASE
Vue arrière - MODÈLE DE BASE
Élévation arrière
Vue intérieure












Vue par plancher
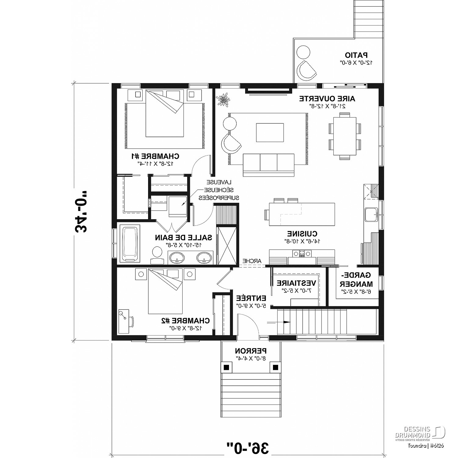
Rez-de-chaussée | ||||
Pièces | Dimensions | Plafond | ||
Perron abrité | 8'0" x 4'4" | ~ 12'6" | ||
Entrée ou vestibule | 5'0" x 9'0" | ~ 9'0" | ||
Chambre à coucher | 12'8" x 9'0" | ~ 9'0" | ||
Garde-robe | 5'4" x 2'0" | ~ 9'0" | ||
Vestiaire | 7'0" x 5'2" | ~ 9'0" | ||
Salle de bain/buanderie | 15'10" x 5'8" | ~ 9'0" | ||
Douche | 5'0" x 2'8" | ~ 0'0" | ||
Lingerie | 2'6" x 2'8" | ~ 0'0" | ||
Garde-robe | 4'10" x 3'2" | ~ 9'0" | ||
Cuisine | 14'6" x 10'8" | ~ 9'0" | ||
Îlot | 8'8" x 3'0" | ~ 0'0" | ||
Garde-manger | 6'8" x 5'2" | ~ 9'0" | ||
Chambre à coucher | 12'8" x 11'4" | ~ 9'0" | ||
Walk-in | 4'2" x 5'8" | ~ 9'0" | ||
Garde-robe | 4'10" x 2'0" | ~ 9'0" | ||
Salle de séjour/salle à manger | 21'8" x 12'8" | ~ 9'0" | ||
Patio | 12'0" x 6'0" | ~ 0'0" |
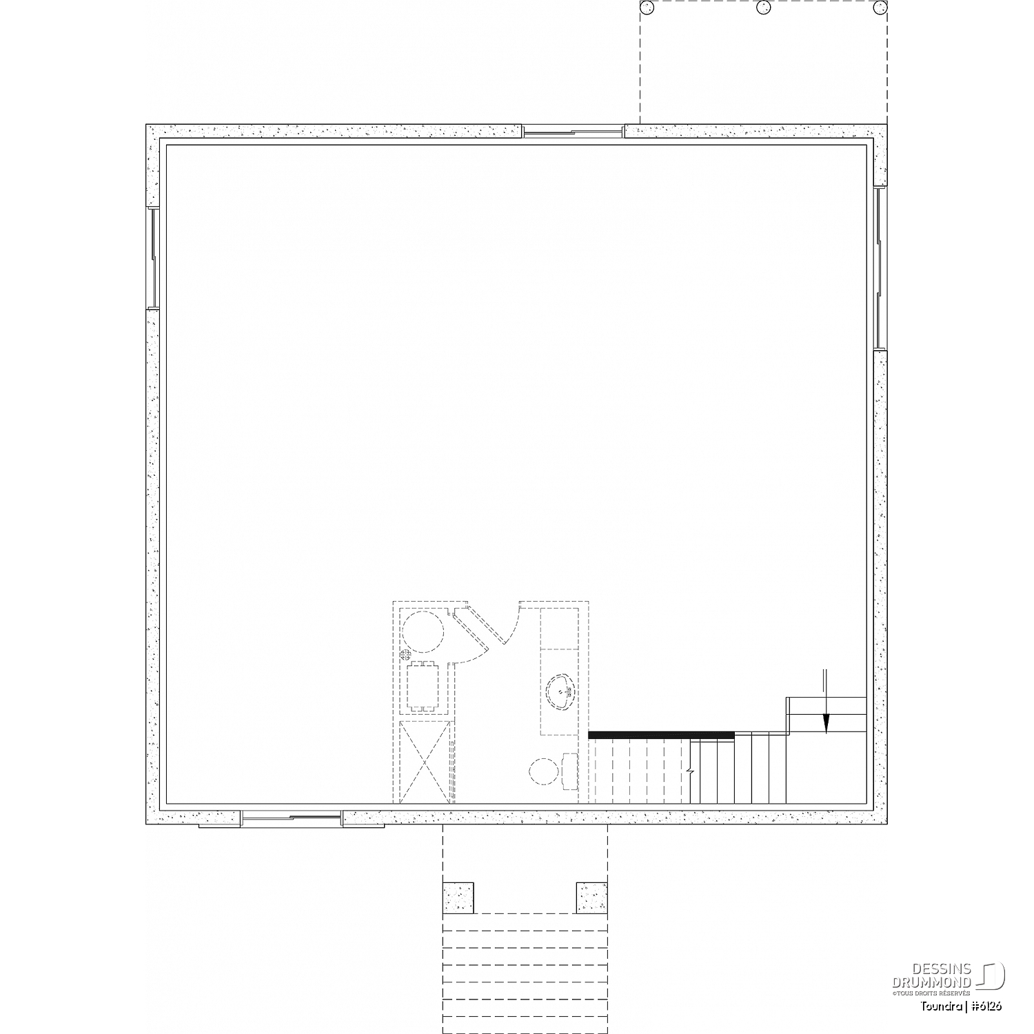
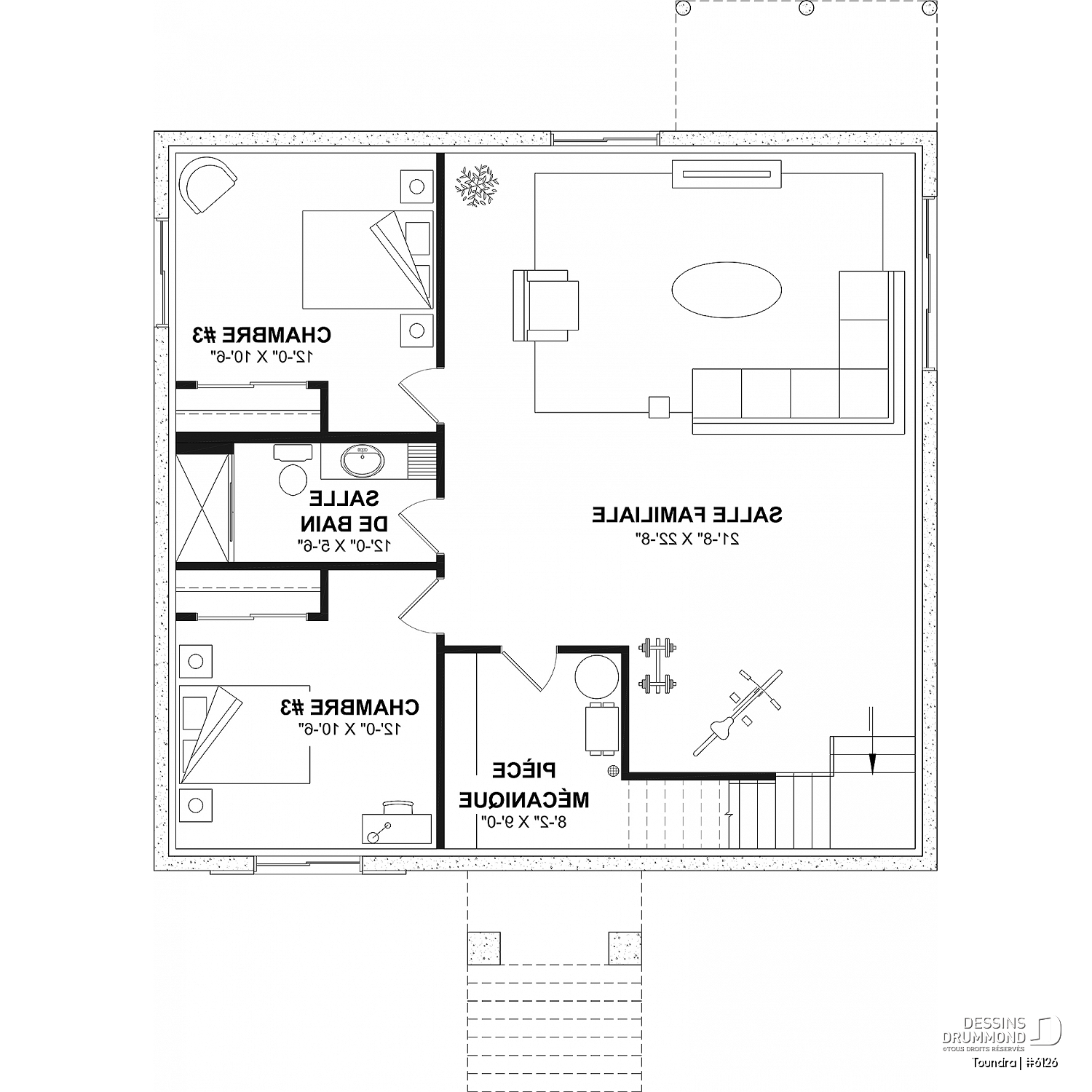
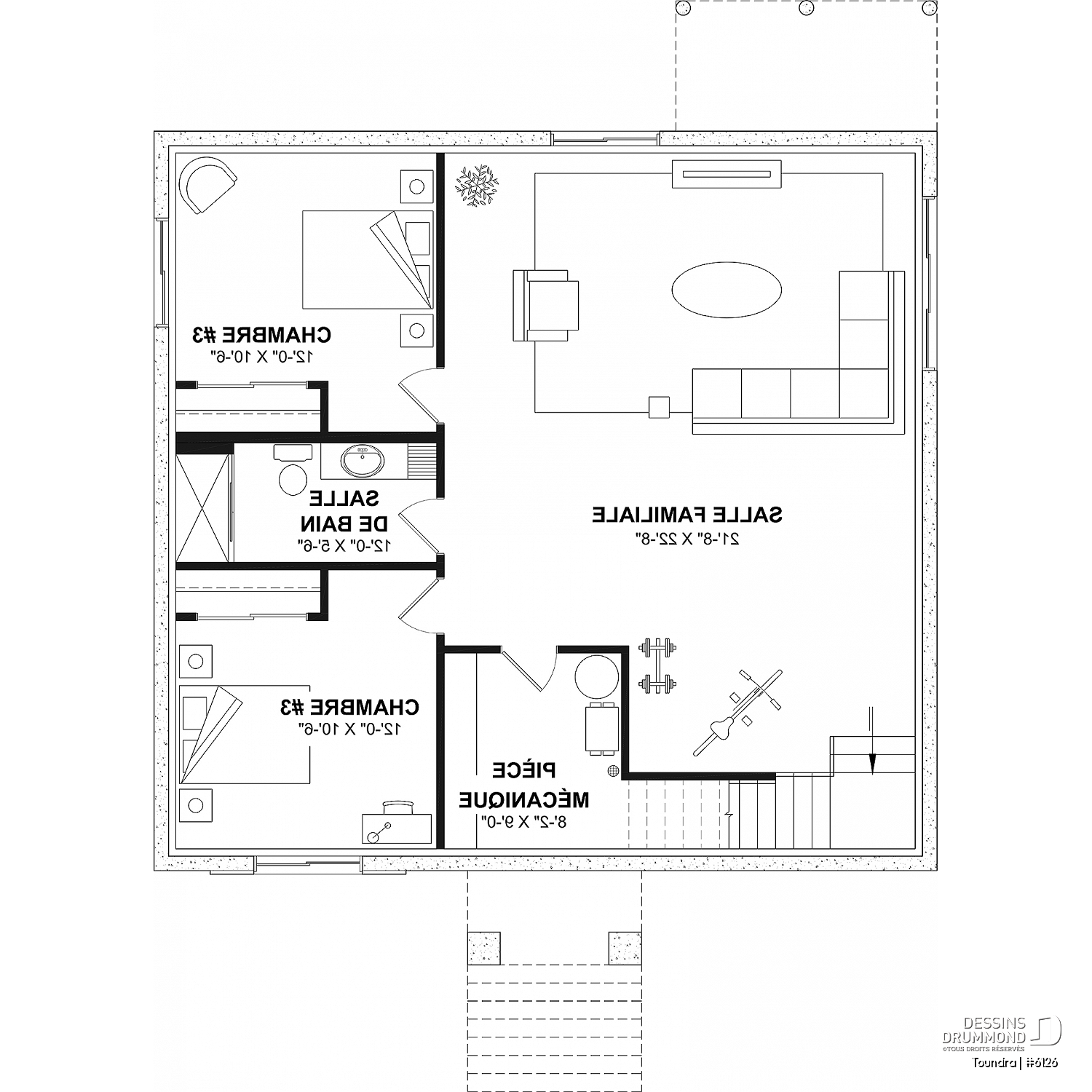
Sous-sol aménagé (Optionel $) | ||||
Pièces | Dimensions | Plafond | ||
Salle familiale | 21'8" x 22'8" | ~ 8'0" | ||
Chambre à coucher | 12'0" x 10'6" | ~ 8'0" | ||
Garde-robe | 6'8" x 2'0" | ~ 8'0" | ||
Salle de bain | 12'0" x 5'6" | ~ 8'0" | ||
Douche | 5'0" x 2'8" | ~ 0'0" | ||
Lingerie | 1'4" x 1'8" | ~ 0'0" | ||
Chambre à coucher | 12'0" x 10'6" | ~ 8'0" | ||
Garde-robe | 6'8" x 2'0" | ~ 8'0" | ||
Pièce de mécanique | 8'2" x 9'0" | ~ 8'0" |
Sous-sol aménageable |
Estimation
Estimation des coûts approx. de construction | 216,826$ à 309,751$ |
Spécifications générales
Surface aménagée totale | 1224 pi2 |
Rez-de-chaussée | 1224 pi2 |
Sous-sol aménageable | 1224 pi2 |
Sous-sol aménagé (Optionel $) | 1224 pi2 |
Largeur | 36'0" |
Profondeur | 34'0" |
Hauteur dessus fondations au faite | 26'4" |
Murs extérieurs | 2 X 6 |
Type de fondation | Sous-sol aménageable |
Code Entrepreneur | C |
Spécifications sur les pièces
Chambre(s) | 2, 3, 4 |
Salle(s) de bain complète(s) | 2 |
Demi Salle(s) de Bain | - |
Type de garage | - |
Espace boni aménageable | - |
Rangement boni | - |
Estimation des coûts approx. de construction | 216,826$ à 309,751$ i |
Surface aménagée totale | 1224 pi2 |
Rez-de-chaussée | 1224 pi2 |
Sous-sol aménagé (Optionel $) | 1224 pi2 |
Sous-sol aménageable | 1224 pi2 |
Largeur | 36'0" |
Profondeur | 34'0" |
Hauteur dessus fondations au faite | 26'4" |
Murs extérieurs | 2 X 6 |
Type de fondation | Sous-sol aménageable i |
Salle de bain
Note: Ces photos représentent une version modifiée, non-disponible à la vente, du plan d'origine duquel elles proviennent. Veuillez consulter l'un de nos 31 bureaux si vous souhaitez obtenir des modifications au plan d'origine de ce modèle.
Salle de bain
Note: Ces photos représentent une version modifiée, non-disponible à la vente, du plan d'origine duquel elles proviennent. Veuillez consulter l'un de nos 31 bureaux si vous souhaitez obtenir des modifications au plan d'origine de ce modèle.
Cuisine
Note: Ces photos représentent une version modifiée, non-disponible à la vente, du plan d'origine duquel elles proviennent. Veuillez consulter l'un de nos 31 bureaux si vous souhaitez obtenir des modifications au plan d'origine de ce modèle.
Cuisine
Note: Ces photos représentent une version modifiée, non-disponible à la vente, du plan d'origine duquel elles proviennent. Veuillez consulter l'un de nos 31 bureaux si vous souhaitez obtenir des modifications au plan d'origine de ce modèle.
Chambre
Note: Ces photos représentent une version modifiée, non-disponible à la vente, du plan d'origine duquel elles proviennent. Veuillez consulter l'un de nos 31 bureaux si vous souhaitez obtenir des modifications au plan d'origine de ce modèle.
Salon
Note: Ces photos représentent une version modifiée, non-disponible à la vente, du plan d'origine duquel elles proviennent. Veuillez consulter l'un de nos 31 bureaux si vous souhaitez obtenir des modifications au plan d'origine de ce modèle.
Entrée ou vestibule
Note: Ces photos représentent une version modifiée, non-disponible à la vente, du plan d'origine duquel elles proviennent. Veuillez consulter l'un de nos 31 bureaux si vous souhaitez obtenir des modifications au plan d'origine de ce modèle.
Entrée ou vestibule
Note: Ces photos représentent une version modifiée, non-disponible à la vente, du plan d'origine duquel elles proviennent. Veuillez consulter l'un de nos 31 bureaux si vous souhaitez obtenir des modifications au plan d'origine de ce modèle.
Salle utilitaire / lavage
Note: Ces photos représentent une version modifiée, non-disponible à la vente, du plan d'origine duquel elles proviennent. Veuillez consulter l'un de nos 31 bureaux si vous souhaitez obtenir des modifications au plan d'origine de ce modèle.















Description
Rez-de-chaussée: Entrée, vestiaire, cuisine, garde-manger, salle à manger, salon, 2 chambres, salle de bain incluant salle de lavage. Sous-sol non-fini, à aménager, inclus au plans sans frais. --- *Sous-sol aménagé optionnel ($): 2 chambres, salle de douche, salle mécanique et grande salle familiale. --- *Si vous souhaitez acheter le plan du sous-sol aménagé, veuillez sélectionner cette option dans le panier d'achat, dans la section "Sélectionner votre fondation". Si vous ne sélectionnez pas cette option, vous recevrez le sous-sol non fini, sans frais additionnel.
Autres informations utiles sur ce plan
Plan de maison d’inspiration champêtre – Élégance, confort et convivialité sous un même toit!
Laissez-vous séduire par cette magnifique maison au style champêtre, pensée pour allier charme rustique et fonctionnalités modernes. Dès votre arrivée, vous serez accueilli par un hall d’entrée chaleureux, doté d’un vestiaire pratique qui facilite l’organisation au quotidien, tout en donnant le ton d’un intérieur soigné et bien pensé.
Le rez-de-chaussée offre une ambiance aérée et lumineuse grâce à des plafonds de 9 pieds, créant une agréable sensation d’amplitude dans chaque pièce. La chambre principale propose un espace intime et reposant, complété par une garde-robe walk-in généreuse qui répond aux besoins de rangement les plus exigeants.
La salle de bain spacieuse a tout pour plaire : bain autoportant pour les moments de détente, douche indépendante vitrée, double lavabo et un coin laveuse/sécheuse superposées, ingénieusement intégré pour un maximum d’efficacité.
La cuisine, véritable cœur de la maison, se veut conviviale et inspirante. Son garde-manger fonctionnel et son grand îlot central invitent à la préparation de bons repas tout en favorisant les échanges. Ouverte sur la salle à manger et le salon, elle fait partie d’un vaste espace de vie idéal pour recevoir famille et amis dans une atmosphère accueillante et chaleureuse.
Et ce n’est pas tout : les plans incluent également un sous-sol non fini, prêt à être aménagé selon vos besoins, sans frais additionnel. Pour ceux qui souhaitent maximiser l’espace habitable, une option d’aménagement du sous-sol est offerte ($). Cette version comprend deux chambres supplémentaires, une salle de douche pratique, une salle mécanique et une vaste salle familiale, parfaite pour les soirées cinéma ou les moments de détente en famille.
Ce plan de maison champêtre vous offre une base solide pour créer un chez-soi à votre image — spacieux, confortable et invitant, tout en étant parfaitement adapté à la vie d’aujourd’hui.
---
*Si vous souhaitez acheter le plan du sous-sol aménagé, veuillez sélectionner cette option dans le panier d'achat, dans la section "Sélectionner votre fondation". Si vous ne sélectionnez pas cette option, vous recevrez le sous-sol non fini, sans frais additionnel.
Éléments distinctifs
Plan de maison d'inspiration champêtre!
Plafonds de 9' au rez-de-chaussée offrant une belle sensation d’espace.
Hall d’entrée accueillant avec vestiaire pratique.
Chambre principale dotée d’une garde-robe walk-in.
Salle de bain spacieuse avec bain et douche séparés, deux lavabos et coin laveuse/sécheuse superposées.
Cuisine conviviale avec garde-manger et grand îlot central parfait pour se rassembler.
Aire ouverte combinant cuisine, salle à manger et salon : un espace chaleureux pour recevoir famille et amis!
---
*Sous-sol aménagé optionnel ($):
2 chambres, salle de douche, salle mécanique et salle familiale.
---
*Si vous souhaitez acheter le plan du sous-sol aménagé, veuillez sélectionner cette option dans le panier d'achat, dans la section "Sélectionner votre fondation". Si vous ne sélectionnez pas cette option, vous recevrez le sous-sol non fini, sans frais additionnel.
Notes légales
Ce modèle est protégé par la Loi sur les Droits d'Auteur.
De plus, les illustrations présentées peuvent différer du plan détaillé que vous recevrez, car ces derniers sont régulièrement ajustés afin de respecter les normes de construction en vigueur.
Autres informations utiles sur ce plan
Description complète
Plan de maison d’inspiration champêtre – Élégance, confort et convivialité sous un même toit!
Laissez-vous séduire par cette magnifique maison au style champêtre, pensée pour allier charme rustique et fonctionnalités modernes. Dès votre arrivée, vous serez accueilli par un hall d’entrée chaleureux, doté d’un vestiaire pratique qui facilite l’organisation au quotidien, tout en donnant le ton d’un intérieur soigné et bien pensé.
Le rez-de-chaussée offre une ambiance aérée et lumineuse grâce à des plafonds de 9 pieds, créant une agréable sensation d’amplitude dans chaque pièce. La chambre principale propose un espace intime et reposant, complété par une garde-robe walk-in généreuse qui répond aux besoins de rangement les plus exigeants.
La salle de bain spacieuse a tout pour plaire : bain autoportant pour les moments de détente, douche indépendante vitrée, double lavabo et un coin laveuse/sécheuse superposées, ingénieusement intégré pour un maximum d’efficacité.
La cuisine, véritable cœur de la maison, se veut conviviale et inspirante. Son garde-manger fonctionnel et son grand îlot central invitent à la préparation de bons repas tout en favorisant les échanges. Ouverte sur la salle à manger et le salon, elle fait partie d’un vaste espace de vie idéal pour recevoir famille et amis dans une atmosphère accueillante et chaleureuse.
Et ce n’est pas tout : les plans incluent également un sous-sol non fini, prêt à être aménagé selon vos besoins, sans frais additionnel. Pour ceux qui souhaitent maximiser l’espace habitable, une option d’aménagement du sous-sol est offerte ($). Cette version comprend deux chambres supplémentaires, une salle de douche pratique, une salle mécanique et une vaste salle familiale, parfaite pour les soirées cinéma ou les moments de détente en famille.
Ce plan de maison champêtre vous offre une base solide pour créer un chez-soi à votre image — spacieux, confortable et invitant, tout en étant parfaitement adapté à la vie d’aujourd’hui.
---
*Si vous souhaitez acheter le plan du sous-sol aménagé, veuillez sélectionner cette option dans le panier d'achat, dans la section "Sélectionner votre fondation". Si vous ne sélectionnez pas cette option, vous recevrez le sous-sol non fini, sans frais additionnel.
Éléments distinctifs
Plan de maison d'inspiration champêtre!
Plafonds de 9' au rez-de-chaussée offrant une belle sensation d’espace.
Hall d’entrée accueillant avec vestiaire pratique.
Chambre principale dotée d’une garde-robe walk-in.
Salle de bain spacieuse avec bain et douche séparés, deux lavabos et coin laveuse/sécheuse superposées.
Cuisine conviviale avec garde-manger et grand îlot central parfait pour se rassembler.
Aire ouverte combinant cuisine, salle à manger et salon : un espace chaleureux pour recevoir famille et amis!
---
*Sous-sol aménagé optionnel ($):
2 chambres, salle de douche, salle mécanique et salle familiale.
---
*Si vous souhaitez acheter le plan du sous-sol aménagé, veuillez sélectionner cette option dans le panier d'achat, dans la section "Sélectionner votre fondation". Si vous ne sélectionnez pas cette option, vous recevrez le sous-sol non fini, sans frais additionnel.