Superbe fenestration, maison familiale de 5 chambres, garage double spacieux, abri moustiquaire
Vue par plancher
| Rez-de-chaussée | ||||
| Pièces | Dimensions | Plafond | ||
| Garage | 40'0" x 33'4" | ~ 9'6" | ||
| Perron | 17'8" x 5'0" | ~ 0'0" | ||
| Entrée ou vestibule | 10'0" x 10'0" | ~ 9'0" | ||
| Vestiaire | 8'6" x 12'4" | ~ 9'0" | ||
| Coin toilette/lavabo | 6'2" x 5'1" | ~ 9'0" | ||
| Rangement | 2'4" x 2'2" | ~ 9'0" | ||
| Salle de séjour | 16'0" x 15'0" | ~ 18'6" | ||
| Cuisine | 15'8" x 12'8" | ~ 9'0" | ||
| Îlot | 10'0" x 4'0" | ~ 0'0" | ||
| Garde-manger | 8'9" x 6'9" | ~ 9'0" | ||
| Salle à manger | 10'0" x 15'8" | ~ 9'0" | ||
| Abri moustiquaire | 14'0" x 21'0" | ~ 9'0" | ||
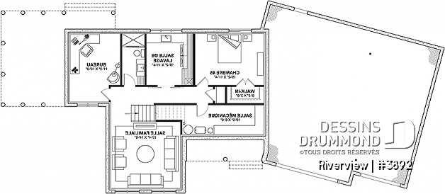
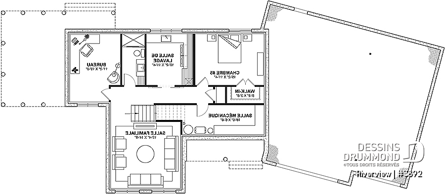
| Sous-sol aménagé (Optionel $) | ||||
| Pièces | Dimensions | Plafond | ||
| Salle familiale | 15'4" x 14'8" | ~ 8'0" | ||
| Pièce de mécanique | 18'0" x 6'6" | ~ 8'0" | ||
| Rangement | 2'4" x 3'8" | ~ 8'0" | ||
| Chambre froide | 15'2" x 11'4" | ~ 8'0" | ||
| Salle de lavage | 10'2" x 11'4" | ~ 8'0" | ||
| Salle de bain | 5'0" x 11'4" | ~ 8'0" | ||
| Douche | 5'0" x 3'0" | ~ 0'0" | ||
| Lingerie | 1'6" x 2'0" | ~ 0'0" | ||
| Bureau à domicile | 11'2" x 15'0" | ~ 8'0" | ||
| Chambre à coucher | 15'2" x 11'4" | ~ 8'0" | ||
| Walk-in | 8'2" x 3'8" | ~ 8'0" | ||
| Étage | ||||
| Pièces | Dimensions | Plafond | ||
| Suite des maîtres | 15'0" x 11'6" | ~ 8'0" | ||
| Walk-in | 7'0" x 10'10" | ~ 8'0" | ||
| Salle de bain complète | 9'8" x 10'10" | ~ 8'0" | ||
| Chambre à coucher | 9'0" x 15'8" | ~ 8'0" | ||
| Garde-robe | 2'0" x 5'0" | ~ 8'0" | ||
| Chambre à coucher | 10'0" x 13'4" | ~ 8'0" | ||
| Garde-robe | 5'2" x 2'0" | ~ 8'0" | ||
| Chambre à coucher | 9'6" x 13'4" | ~ 8'0" | ||
| Garde-robe | 5'8" x 2'0" | ~ 8'0" | ||
| Rangement | 7'0" x 1'8" | ~ 8'0" | ||
| Salle de bain | 8'2" x 12'2" | ~ 8'0" | ||
| Sous-sol aménageable | ||||
Estimation
| Estimation des coûts approx. de construction | 622,954$ à 889,934$ |
Spécifications générales
| Surface aménagée totale | 2432 pi2 |
| Rez-de-chaussée | 1217 pi2 |
| Étage | 1215 pi2 |
| Sous-sol aménagé (Optionel $) | 1217 pi2 |
| Largeur | 83'2" |
| Profondeur | 42'3" |
| Hauteur dessus fondations au faite | 33'2" |
| Murs extérieurs | 2 X 6 |
| Type de fondation | Sous-sol aménageable |
| Code Entrepreneur | F |
Spécifications sur les pièces
| Chambre(s) | 5, 4 |
| Salle(s) de bain complète(s) | 3 |
| Demi Salle(s) de Bain | 1 |
| Type de garage | 2 voitures (1200 pi2) |
| Espace boni aménageable | - |
| Rangement boni | - |
| Estimation des coûts approx. de construction | 622,954$ à 889,934$ i |
| Surface aménagée totale | 2432 pi2 |
| Rez-de-chaussée | 1217 pi2 |
| Sous-sol aménagé (Optionel $) | 1217 pi2 |
| Étage | 1215 pi2 |
| Sous-sol aménageable | 1217 pi2 |
| Largeur | 83'2" |
| Profondeur | 42'3" |
| Hauteur dessus fondations au faite | 33'2" |
| Murs extérieurs | 2 X 6 |
| Type de fondation | Sous-sol aménageable i |
Vue avant
Note: Ces photos représentent une version modifiée, non-disponible à la vente, du plan d'origine duquel elles proviennent. Veuillez consulter l'un de nos 31 bureaux si vous souhaitez obtenir des modifications au plan d'origine de ce modèle.
Vue avant
Note: Ces photos représentent une version modifiée, non-disponible à la vente, du plan d'origine duquel elles proviennent. Veuillez consulter l'un de nos 31 bureaux si vous souhaitez obtenir des modifications au plan d'origine de ce modèle.
Salle de bain
Note: Ces photos représentent une version modifiée, non-disponible à la vente, du plan d'origine duquel elles proviennent. Veuillez consulter l'un de nos 31 bureaux si vous souhaitez obtenir des modifications au plan d'origine de ce modèle.
Salle de bain
Note: Ces photos représentent une version modifiée, non-disponible à la vente, du plan d'origine duquel elles proviennent. Veuillez consulter l'un de nos 31 bureaux si vous souhaitez obtenir des modifications au plan d'origine de ce modèle.
Salle de bain
Note: Ces photos représentent une version modifiée, non-disponible à la vente, du plan d'origine duquel elles proviennent. Veuillez consulter l'un de nos 31 bureaux si vous souhaitez obtenir des modifications au plan d'origine de ce modèle.
Cuisine
Note: Ces photos représentent une version modifiée, non-disponible à la vente, du plan d'origine duquel elles proviennent. Veuillez consulter l'un de nos 31 bureaux si vous souhaitez obtenir des modifications au plan d'origine de ce modèle.
Cuisine
Note: Ces photos représentent une version modifiée, non-disponible à la vente, du plan d'origine duquel elles proviennent. Veuillez consulter l'un de nos 31 bureaux si vous souhaitez obtenir des modifications au plan d'origine de ce modèle.
Chambre
Note: Ces photos représentent une version modifiée, non-disponible à la vente, du plan d'origine duquel elles proviennent. Veuillez consulter l'un de nos 31 bureaux si vous souhaitez obtenir des modifications au plan d'origine de ce modèle.
Chambre
Note: Ces photos représentent une version modifiée, non-disponible à la vente, du plan d'origine duquel elles proviennent. Veuillez consulter l'un de nos 31 bureaux si vous souhaitez obtenir des modifications au plan d'origine de ce modèle.
Salon
Note: Ces photos représentent une version modifiée, non-disponible à la vente, du plan d'origine duquel elles proviennent. Veuillez consulter l'un de nos 31 bureaux si vous souhaitez obtenir des modifications au plan d'origine de ce modèle.
Salon
Note: Ces photos représentent une version modifiée, non-disponible à la vente, du plan d'origine duquel elles proviennent. Veuillez consulter l'un de nos 31 bureaux si vous souhaitez obtenir des modifications au plan d'origine de ce modèle.
Salon
Note: Ces photos représentent une version modifiée, non-disponible à la vente, du plan d'origine duquel elles proviennent. Veuillez consulter l'un de nos 31 bureaux si vous souhaitez obtenir des modifications au plan d'origine de ce modèle.
Salon
Note: Ces photos représentent une version modifiée, non-disponible à la vente, du plan d'origine duquel elles proviennent. Veuillez consulter l'un de nos 31 bureaux si vous souhaitez obtenir des modifications au plan d'origine de ce modèle.
Salle à manger
Note: Ces photos représentent une version modifiée, non-disponible à la vente, du plan d'origine duquel elles proviennent. Veuillez consulter l'un de nos 31 bureaux si vous souhaitez obtenir des modifications au plan d'origine de ce modèle.
Escalier
Note: Ces photos représentent une version modifiée, non-disponible à la vente, du plan d'origine duquel elles proviennent. Veuillez consulter l'un de nos 31 bureaux si vous souhaitez obtenir des modifications au plan d'origine de ce modèle.
Description
Sous-sol aménagé: Salle familiale, chambre d'invités avec walk-in, bureau, salle de lavage, salle de douche et salle mécanique. Rez-de-chaussée: Entrées avant et garage, vestiaire, salle d'eau, cuisine avec garde-manger, salle à manger, salle de séjour. Terrasse abritée de grand format, avec abri moustiquaire. Étage: Suite parentale avec salle de bain privée, 3 chambres additionnelles, salle de bain, coin lecture sur banquette. Garage très spacieux avec coin atelier. Plusieurs options de fondation sont disponibles pour ce plan, veuillez nous contacter à cet effet.
Autres informations utiles sur ce plan
Maison de 5 chambres, avec spacieux garage double et abri moustiquaire!
.
Éléments distinctifs
Plan de maison confortable de style farmhouse.
Plafond à 9' sur tout le rez-de-chaussée, sauf à a salle de séjour où il est à 18'6''.
4 chambres à l'étage + une chambre au sous-sol pour un total de 5 chambres.
Balcon avant abrité.
Entrée du garage directement adjacente au vestiaire.
Entrée principale avant de bon format avec espace pour banc et carpette décorative.
Salle d'eau en retrait des airs communs.
Cuisine avec garde-manger et grand îlot, et ouverte sur la salle à manger.
Superbe luminosité à la salle de séjour, qui a un plafond de 18'6'', ainsi qu'un foyer.
La suite des parents proposent un grand walk-in de 7' x 10'10'' ainsi qu'une salle de bain privée.
Les 3 chambres secondaires de l'étage se partagent une salle de bain avec bain et toilette séparés du coin lavabos (doubles).
Le garage est suffisamment spacieux pour y inclure un coin atelier.
Le sous-sol est entièrement aménagé et propose une salle familiale et un bureau, en plus d'une grande salle de lavage.
Un spacieux abri moustiquaire, de près de 300 pi.ca., est accessible de la salle à manger, près de la cuisine.
Notes légales
Ce modèle est protégé par la Loi sur les Droits d'Auteur.
De plus, les illustrations présentées peuvent différer du plan détaillé que vous recevrez, car ces derniers sont régulièrement ajustés afin de respecter les normes de construction en vigueur.
Autres informations utiles sur ce plan
Éléments distinctifs
Plan de maison confortable de style farmhouse.
Plafond à 9' sur tout le rez-de-chaussée, sauf à a salle de séjour où il est à 18'6''.
4 chambres à l'étage + une chambre au sous-sol pour un total de 5 chambres.
Balcon avant abrité.
Entrée du garage directement adjacente au vestiaire.
Entrée principale avant de bon format avec espace pour banc et carpette décorative.
Salle d'eau en retrait des airs communs.
Cuisine avec garde-manger et grand îlot, et ouverte sur la salle à manger.
Superbe luminosité à la salle de séjour, qui a un plafond de 18'6'', ainsi qu'un foyer.
La suite des parents proposent un grand walk-in de 7' x 10'10'' ainsi qu'une salle de bain privée.
Les 3 chambres secondaires de l'étage se partagent une salle de bain avec bain et toilette séparés du coin lavabos (doubles).
Le garage est suffisamment spacieux pour y inclure un coin atelier.
Le sous-sol est entièrement aménagé et propose une salle familiale et un bureau, en plus d'une grande salle de lavage.
Un spacieux abri moustiquaire, de près de 300 pi.ca., est accessible de la salle à manger, près de la cuisine.





















