Plan de chalet de type A-frame ( à toit en A ), superbe luminosité, plancher convivial, mezzanine à l'étage
Vue arrière - MODÈLE DE BASE
Vue avant - MODÈLE DE BASE
Vue intérieure
Version couleur no. 1 - Vue avant
Version couleur no. 1 - Vue arrière
Version couleur no. 2 - Vue arrière
| Étage | ||||
| Pièces | Dimensions | Plafond | ||
| Salle de bain complète | 6'6" x 6'6" | ~ 8'0" | ||
| Chambre à coucher | 10'2" x 12'4" | ~ 8'0" | ||
| Chambre à coucher | 9'10" x 9'0" | ~ 8'0" | ||
| Rez-de-chaussée | ||||
| Pièces | Dimensions | Plafond | ||
| Salle de bain complète | 5'0" x 10'4" | ~ 8'0" | ||
| Cuisine | 13'4" x 16'4" | ~ 25'7" | ||
| Salle de séjour | 13'4" x 14'4" | ~ 25'7" | ||
| Chambre à coucher | 12'2" x 12'4" | ~ 8'0" | ||
| Lingerie | 2'0" x 1'2" | ~ 8'0" | ||
| Entrée ou vestibule | 4'2" x 5'4" | ~ 8'0" | ||
| Salle utilitaire (buanderie +) | 2'8" x 5'2" | ~ 8'0" | ||
| Perron | 6'10" x 3'0" | ~ 0'0" | ||
| Perron | 36'0" x 10'0" | ~ 0'0" | ||
Estimation
| Estimation des coûts approx. de construction | 277,894$ à 396,992$ |
Spécifications générales
| Surface aménagée totale | 1301 pi2 |
| Rez-de-chaussée | 893 pi2 |
| Étage | 408 pi2 |
| Largeur | 28'0" |
| Profondeur | 34'0" |
| Hauteur dessus fondations au faite | 31'0" |
| Murs extérieurs | 2 X 6 |
| Type de fondation | Sous-sol aménageable |
| Code Entrepreneur | C |
Spécifications sur les pièces
| Chambre(s) | 1, 2, 3 |
| Salle(s) de bain complète(s) | 2 |
| Demi Salle(s) de Bain | - |
| Type de garage | - |
| Espace boni aménageable | - |
| Rangement boni | - |
Cuisine
Note: Ces photos représentent une version modifiée, non-disponible à la vente, du plan d'origine duquel elles proviennent. Veuillez consulter l'un de nos 31 bureaux si vous souhaitez obtenir des modifications au plan d'origine de ce modèle.
Salle à manger
Note: Ces photos représentent une version modifiée, non-disponible à la vente, du plan d'origine duquel elles proviennent. Veuillez consulter l'un de nos 31 bureaux si vous souhaitez obtenir des modifications au plan d'origine de ce modèle.
Salle de séjour
Note: Ces photos représentent une version modifiée, non-disponible à la vente, du plan d'origine duquel elles proviennent. Veuillez consulter l'un de nos 31 bureaux si vous souhaitez obtenir des modifications au plan d'origine de ce modèle.
Description
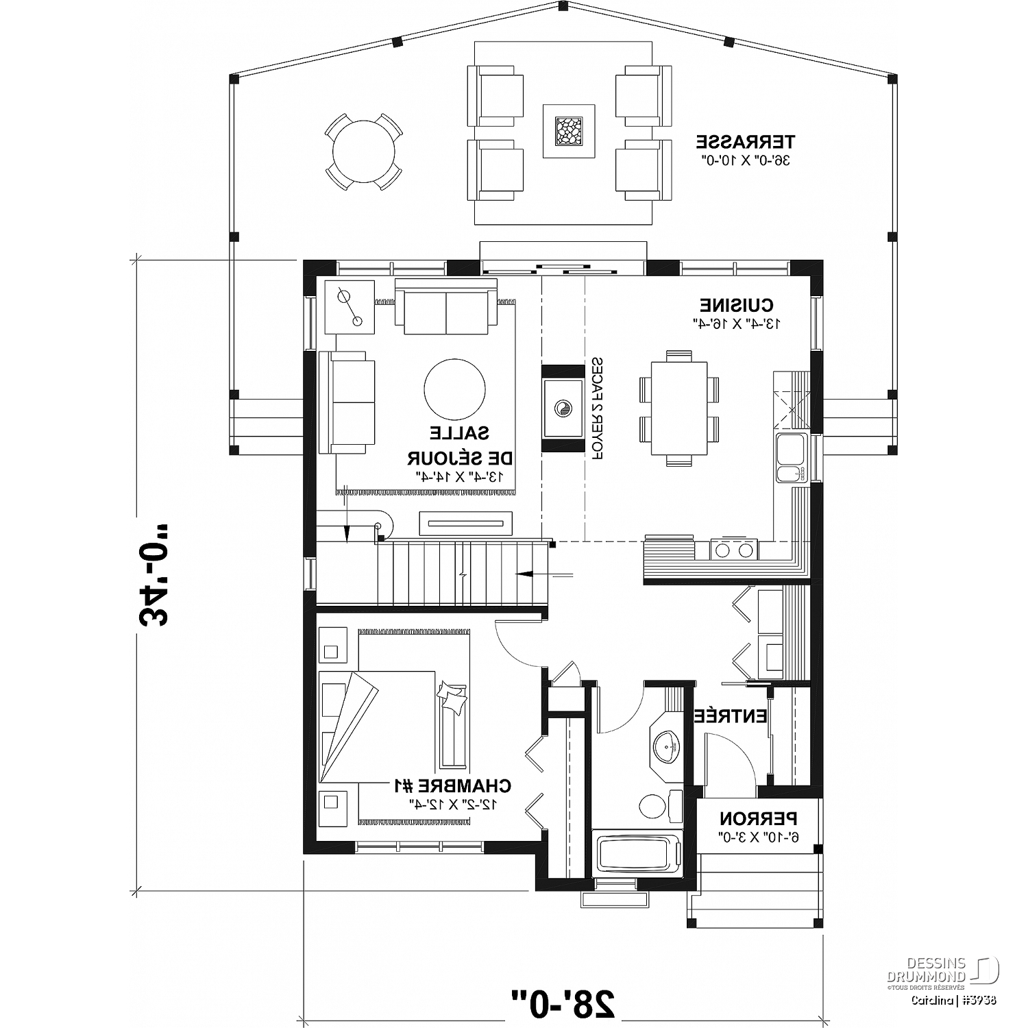
Rez-de-chaussée: Vestibule, salle de bain, chambre, salle de séjour, cuisine avec espace table intégré. Étage: Deux chambres et salle de douche. Sous-sol non fini, à aménager. Autres types de fondation disponibles.
Autres informations utiles sur ce plan
Plan de chalet 4 saisons rustique avec plafond cathédrale et mezzanine lumineuse
Ce plan de chalet 4 saisons de style rustique a été pensé pour les amoureux de la nature qui souhaitent profiter pleinement de leur environnement en toute période de l’année. Avec son design chaleureux et sa fenestration abondante orientée vers le panorama, il offre une vue imprenable sur le paysage environnant, qu’il s’agisse d’un lac, d’une montagne ou d’une forêt. Son allure authentique et intemporelle en fait un refuge idéal autant pour les vacances que pour la vie quotidienne.
Dès l’entrée, le vestibule accueillant donne le ton avec son garde-robe pratique et son coin laveuse-sécheuse intégré, parfait pour les retours de plein air. Le cœur de la maison se dévoile ensuite dans la salle de séjour spectaculaire, où un plafond cathédrale atteignant 25’7’’ apporte une impression d’espace grandiose et baigne l’intérieur de lumière naturelle.
La cuisine conviviale séduit par son chaleureux coin dînette, semi-ouverte sur le salon. Cet espace favorise les moments partagés, que ce soit pour un repas en famille, un brunch entre amis ou une soirée festive. L’atmosphère est sublimée par un foyer central spectaculaire, ouvert sur deux étages, qui devient le véritable cœur du chalet. Il rassemble les occupants dans une ambiance "cozy", idéale pour les soirées d’hiver comme pour les soirées d’été.
Le rez-de-chaussée accueille également la chambre principale, un véritable havre de paix. Avec sa salle de bain attenante, elle combine confort et intimité, permettant aux propriétaires de profiter d’un espace privé tout en restant proche des aires de vie principales.
À l’étage, on retrouve deux chambres secondaires lumineuses, parfaites pour la famille ou les invités. Une salle de bain complète ainsi qu’une mezzanine complètent cet étage. Cet espace supplémentaire peut être aménagé en coin lecture, bureau ou espace détente avec vue sur le panorama extérieur et le foyer central.
Le sous-sol non fini constitue une toile blanche à personnaliser selon vos besoins. Il peut facilement accueillir une salle familiale, des chambres additionnelles, une salle de jeux pour les enfants ou encore un espace gym. Sa flexibilité permet à la maison d’évoluer avec les besoins changeants de la famille.
En alliant style rustique, espaces lumineux et design fonctionnel, ce plan de chalet 4 saisons avec mezzanine et foyer central s’impose comme un choix idéal pour ceux qui rêvent d’un refuge à la fois chaleureux, moderne et en parfaite harmonie avec la nature.
Éléments distinctifs
Plan de Chalet 4 saisons de style rustique, conçu pour profiter pleinement de la nature tout au long de l’année.
Design lumineux avec une fenestration abondante orientée vers le panorama, offrant une vue imprenable en toute saison.
Vestibule accueillant à l’entrée principale avec garde-robe pratique, adjacent à un coin laveuse et sécheuse.
Salle de séjour spectaculaire avec plafond cathédrale atteignant 25’-7’’, créant une atmosphère grandiose et aérée.
La cuisine conviviale avec son coin dînette, semi-ouverte sur le salon, crée un espace chaleureux où il fait bon se retrouver en famille ou entre amis.
Le tout est sublimé par un foyer central spectaculaire, ouvert sur deux étages, qui devient le cœur de la maison et invite à la détente.
Chambre des maîtres au rez-de-chaussée, offrant tranquillité et confort, avec une salle de bain complète attenante.
À l’étage : deux chambres secondaires idéales pour la famille ou les invités, une salle de bain complète et une mezzanine lumineuse, parfaite comme coin lecture ou espace détente.
Sous-sol non fini offrant un vaste potentiel d’aménagement selon vos besoins : salle familiale, chambres additionnelles, salle de jeux ou espace gym.
Notes légales
Ce modèle est protégé par la Loi sur les Droits d'Auteur.
De plus, les illustrations présentées peuvent différer du plan détaillé que vous recevrez, car ces derniers sont régulièrement ajustés afin de respecter les normes de construction en vigueur.
Autres informations utiles sur ce plan
Description complète
Plan de chalet 4 saisons rustique avec plafond cathédrale et mezzanine lumineuse
Ce plan de chalet 4 saisons de style rustique a été pensé pour les amoureux de la nature qui souhaitent profiter pleinement de leur environnement en toute période de l’année. Avec son design chaleureux et sa fenestration abondante orientée vers le panorama, il offre une vue imprenable sur le paysage environnant, qu’il s’agisse d’un lac, d’une montagne ou d’une forêt. Son allure authentique et intemporelle en fait un refuge idéal autant pour les vacances que pour la vie quotidienne.
Dès l’entrée, le vestibule accueillant donne le ton avec son garde-robe pratique et son coin laveuse-sécheuse intégré, parfait pour les retours de plein air. Le cœur de la maison se dévoile ensuite dans la salle de séjour spectaculaire, où un plafond cathédrale atteignant 25’7’’ apporte une impression d’espace grandiose et baigne l’intérieur de lumière naturelle.
La cuisine conviviale séduit par son chaleureux coin dînette, semi-ouverte sur le salon. Cet espace favorise les moments partagés, que ce soit pour un repas en famille, un brunch entre amis ou une soirée festive. L’atmosphère est sublimée par un foyer central spectaculaire, ouvert sur deux étages, qui devient le véritable cœur du chalet. Il rassemble les occupants dans une ambiance "cozy", idéale pour les soirées d’hiver comme pour les soirées d’été.
Le rez-de-chaussée accueille également la chambre principale, un véritable havre de paix. Avec sa salle de bain attenante, elle combine confort et intimité, permettant aux propriétaires de profiter d’un espace privé tout en restant proche des aires de vie principales.
À l’étage, on retrouve deux chambres secondaires lumineuses, parfaites pour la famille ou les invités. Une salle de bain complète ainsi qu’une mezzanine complètent cet étage. Cet espace supplémentaire peut être aménagé en coin lecture, bureau ou espace détente avec vue sur le panorama extérieur et le foyer central.
Le sous-sol non fini constitue une toile blanche à personnaliser selon vos besoins. Il peut facilement accueillir une salle familiale, des chambres additionnelles, une salle de jeux pour les enfants ou encore un espace gym. Sa flexibilité permet à la maison d’évoluer avec les besoins changeants de la famille.
En alliant style rustique, espaces lumineux et design fonctionnel, ce plan de chalet 4 saisons avec mezzanine et foyer central s’impose comme un choix idéal pour ceux qui rêvent d’un refuge à la fois chaleureux, moderne et en parfaite harmonie avec la nature.
Éléments distinctifs
Plan de Chalet 4 saisons de style rustique, conçu pour profiter pleinement de la nature tout au long de l’année.
Design lumineux avec une fenestration abondante orientée vers le panorama, offrant une vue imprenable en toute saison.
Vestibule accueillant à l’entrée principale avec garde-robe pratique, adjacent à un coin laveuse et sécheuse.
Salle de séjour spectaculaire avec plafond cathédrale atteignant 25’-7’’, créant une atmosphère grandiose et aérée.
La cuisine conviviale avec son coin dînette, semi-ouverte sur le salon, crée un espace chaleureux où il fait bon se retrouver en famille ou entre amis.
Le tout est sublimé par un foyer central spectaculaire, ouvert sur deux étages, qui devient le cœur de la maison et invite à la détente.
Chambre des maîtres au rez-de-chaussée, offrant tranquillité et confort, avec une salle de bain complète attenante.
À l’étage : deux chambres secondaires idéales pour la famille ou les invités, une salle de bain complète et une mezzanine lumineuse, parfaite comme coin lecture ou espace détente.
Sous-sol non fini offrant un vaste potentiel d’aménagement selon vos besoins : salle familiale, chambres additionnelles, salle de jeux ou espace gym.










