Plan maison moderne 3 à 5 chambres, bureau, 2.5 sdb, suite des parents à l'étage, s-sol aménagé optionnel ($)
Vue par plancher
| Rez-de-chaussée | ||||
| Pièces | Dimensions | Plafond | ||
| Perron abrité | 10'0" x 4'0" | ~ 9'0" | ||
| Terrasse abritée | 18'0" x 12'0" | ~ 9'4" | ||
| Cuisine | 17'4" x 14'0" | ~ 9'0" | ||
| Îlot | 8'6" x 4'0" | ~ 0'0" | ||
| Bureau à domicile | 11'0" x 8'0" | ~ 9'0" | ||
| Coin toilette/lavabo | 5'8" x 5'8" | ~ 9'0" | ||
| Salle à manger | 17'4" x 9'4" | ~ 9'0" | ||
| Garde-manger | 5'8" x 7'0" | ~ 9'0" | ||
| Salle de séjour | 13'0" x 15'0" | ~ 9'0" | ||
| Entrée ou vestibule | 9'4" x 11'4" | ~ 9'0" | ||
| Vestiaire | 11'4" x 5'8" | ~ 9'0" | ||
| Étage | ||||
| Pièces | Dimensions | Plafond | ||
| Chambre à coucher | 13'0" x 11'4" | ~ 9'0" | ||
| Garde-robe | 6'0" x 2'0" | ~ 9'0" | ||
| Chambre à coucher | 13'0" x 11'0" | ~ 9'0" | ||
| Garde-robe | 6'0" x 2'0" | ~ 9'0" | ||
| Garde-robe | 4'8" x 2'0" | ~ 9'0" | ||
| Salle de bain | 8'4" x 8'6" | ~ 9'0" | ||
| Lingerie | 1'4" x 1'6" | ~ 0'0" | ||
| Salle de lavage | 8'0" x 6'0" | ~ 9'0" | ||
| Suite des maîtres | 12'0" x 14'0" | ~ 9'0" | ||
| Walk-in | 8'10" x 7'8" | ~ 9'0" | ||
| Salle de bain complète | 7'2" x 13'8" | ~ 9'0" | ||
| Douche | 5'8" x 3'0" | ~ 0'0" | ||
| Lingerie | 2'4" x 1'0" | ~ 0'0" | ||
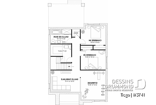
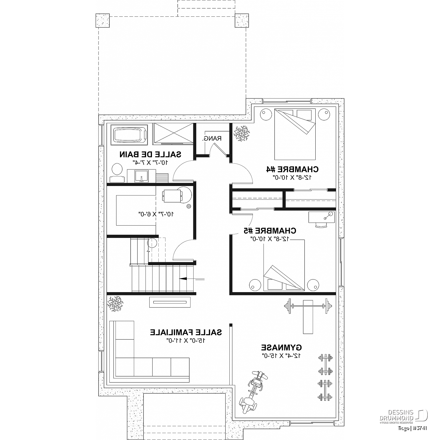
| Sous-sol aménagé (Optionel $) | ||||
| Pièces | Dimensions | Plafond | ||
| Chambre à coucher | 12'8" x 10'0" | ~ 8'0" | ||
| Garde-robe | 6'2" x 2'0" | ~ 8'0" | ||
| Rangement | 4'0" x 3'10" | ~ 8'0" | ||
| Salle de bain | 10'7" x 7'4" | ~ 8'0" | ||
| Lingerie | 1'6" x 1'2" | ~ 0'0" | ||
| Douche | 5'8" x 2'8" | ~ 0'0" | ||
| Chambre à coucher | 12'8" x 10'0" | ~ 8'0" | ||
| Garde-robe | 6'2" x 2'0" | ~ 8'0" | ||
| Pièce de mécanique | 10'7" x 6'0" | ~ 5'0" | ||
| Salle familiale | 15'0" x 11'0" | ~ 8'0" | ||
| Gym | 12'4" x 15'0" | ~ 8'0" | ||
| Sous-sol aménageable | ||||
Estimation
| Estimation des coûts approx. de construction | 435,615$ à 622,307$ |
Spécifications générales
| Surface aménagée totale | 2184 pi2 |
| Rez-de-chaussée | 1107 pi2 |
| Étage | 1077 pi2 |
| Sous-sol aménageable | 1101 pi2 |
| Sous-sol aménagé (Optionel $) | 1101 pi2 |
| Largeur | 30'0" |
| Profondeur | 40'0" |
| Hauteur dessus fondations au faite | 28'4" |
| Murs extérieurs | 2 X 6 |
| Type de fondation | Sous-sol aménageable |
| Code Entrepreneur | E |
Spécifications sur les pièces
| Chambre(s) | 5, 3, 4 |
| Salle(s) de bain complète(s) | 2 |
| Demi Salle(s) de Bain | 1 |
| Type de garage | - |
| Espace boni aménageable | - |
| Rangement boni | - |
| Estimation des coûts approx. de construction | 435,615$ à 622,307$ i |
| Surface aménagée totale | 2184 pi2 |
| Rez-de-chaussée | 1107 pi2 |
| Étage | 1077 pi2 |
| Sous-sol aménagé (Optionel $) | 1101 pi2 |
| Sous-sol aménageable | 1101 pi2 |
| Largeur | 30'0" |
| Profondeur | 40'0" |
| Hauteur dessus fondations au faite | 28'4" |
| Murs extérieurs | 2 X 6 |
| Type de fondation | Sous-sol aménageable i |
Salle de séjour
Note: Ces photos représentent une version modifiée, non-disponible à la vente, du plan d'origine duquel elles proviennent. Veuillez consulter l'un de nos 31 bureaux si vous souhaitez obtenir des modifications au plan d'origine de ce modèle.
Vue avant
Note: Ces photos représentent une version modifiée, non-disponible à la vente, du plan d'origine duquel elles proviennent. Veuillez consulter l'un de nos 31 bureaux si vous souhaitez obtenir des modifications au plan d'origine de ce modèle.
Salle de bain
Note: Ces photos représentent une version modifiée, non-disponible à la vente, du plan d'origine duquel elles proviennent. Veuillez consulter l'un de nos 31 bureaux si vous souhaitez obtenir des modifications au plan d'origine de ce modèle.
Salle de bain
Note: Ces photos représentent une version modifiée, non-disponible à la vente, du plan d'origine duquel elles proviennent. Veuillez consulter l'un de nos 31 bureaux si vous souhaitez obtenir des modifications au plan d'origine de ce modèle.
Cuisine
Note: Ces photos représentent une version modifiée, non-disponible à la vente, du plan d'origine duquel elles proviennent. Veuillez consulter l'un de nos 31 bureaux si vous souhaitez obtenir des modifications au plan d'origine de ce modèle.
Cuisine
Note: Ces photos représentent une version modifiée, non-disponible à la vente, du plan d'origine duquel elles proviennent. Veuillez consulter l'un de nos 31 bureaux si vous souhaitez obtenir des modifications au plan d'origine de ce modèle.
Bureau
Note: Ces photos représentent une version modifiée, non-disponible à la vente, du plan d'origine duquel elles proviennent. Veuillez consulter l'un de nos 31 bureaux si vous souhaitez obtenir des modifications au plan d'origine de ce modèle.
Chambre
Note: Ces photos représentent une version modifiée, non-disponible à la vente, du plan d'origine duquel elles proviennent. Veuillez consulter l'un de nos 31 bureaux si vous souhaitez obtenir des modifications au plan d'origine de ce modèle.
Salle à manger
Note: Ces photos représentent une version modifiée, non-disponible à la vente, du plan d'origine duquel elles proviennent. Veuillez consulter l'un de nos 31 bureaux si vous souhaitez obtenir des modifications au plan d'origine de ce modèle.
Salle à manger
Note: Ces photos représentent une version modifiée, non-disponible à la vente, du plan d'origine duquel elles proviennent. Veuillez consulter l'un de nos 31 bureaux si vous souhaitez obtenir des modifications au plan d'origine de ce modèle.
Salle de séjour
Note: Ces photos représentent une version modifiée, non-disponible à la vente, du plan d'origine duquel elles proviennent. Veuillez consulter l'un de nos 31 bureaux si vous souhaitez obtenir des modifications au plan d'origine de ce modèle.
Salle de séjour
Note: Ces photos représentent une version modifiée, non-disponible à la vente, du plan d'origine duquel elles proviennent. Veuillez consulter l'un de nos 31 bureaux si vous souhaitez obtenir des modifications au plan d'origine de ce modèle.
Escalier
Note: Ces photos représentent une version modifiée, non-disponible à la vente, du plan d'origine duquel elles proviennent. Veuillez consulter l'un de nos 31 bureaux si vous souhaitez obtenir des modifications au plan d'origine de ce modèle.
Description
Rez-de-chaussée: Entrée, vestiaire, salle de séjour, salle à manger, cuisine, bureau et salle d'eau. Étage: Suite des parents avec salle de bain privée, 2 chambres secondaires, salle de bain et salle de lavage. Terrasse abritée. *Sous-sol aménagé (optionnel $): 2 Chambres, salle familiale, gymnase, salle de bain et rangement. *Si vous souhaitez acheter le plan du sous-sol aménagé, tel que présenté sur la page de ce plan, veuillez sélectionner cette option dans le panier d'achat, dans la section "Sélectionner votre fondation". Si vous ne sélectionnez pas cette option, vous recevrez le sous-sol non fini, sans frais additionnel.
Autres informations utiles sur ce plan
Une maison intemporelle, conçue pour traverser les époques avec élégance!
Laissez-vous séduire par le plan de maison TIAGO (#3741), une demeure au design raffiné qui marie harmonieusement des matériaux bruts au charme naturel avec des lignes épurées et modernes. Avec 2184 pi² aménagés sur deux étages, et la *possibilité d’ajouter un sous-sol entièrement aménagé de 1101 pi², cette maison offre un espace de vie généreux et fonctionnel.
Dès l’entrée, vous serez accueilli par un spacieux vestiaire sur la droite et un banc pratique sur la gauche. Le salon, chaleureux et convivial, est agrémenté d’un foyer et peut accueillir plusieurs aménagements de soffas et fauteuils. La cuisine à aire ouverte donne sur la salle à manger et met en valeur un trio très prisé : garde-manger, cellier et grand îlot central. Un bureau, idéal pour le télétravail, complète cet espace et peut aisément être transformé en salle de jeux pour les enfants. Une salle d’eau, située à mi-palier vers le sous-sol, vient parfaire cet étage.
Un étage pensé pour le confort
L’étage est un véritable cocon pour la famille. La chambre des maîtres séduit par son walk-in spacieux et sa salle de bain privée digne d’un hôtel : bain autoportant devant une grande fenêtre, douche spacieuse et double lavabo pour un maximum de confort. Deux chambres secondaires, une seconde salle de bain complète, une salle de lavage et une grande penderie complètent cet étage fonctionnel et bien pensé.
*Un sous-sol aménagé en option ($)
Pour ceux qui recherchent encore plus d’espace, le sous-sol propose deux chambres supplémentaires, un grand gymnase, une salle familiale, une troisième salle de bain avec bain et douche séparée, ainsi que de nombreux espaces de rangement.
Une maison idéale pour les grandes familles
Avec ses 5 chambres, 2 salons, une salle de jeux et 2,5 salles de bain, cette maison répond aux besoins des familles modernes en quête de confort et de style. Son garage optionnel, accessible par l’entrée principale ou le palier intermédiaire, peut être ajouté facilement grâce à nos bureaux partout au Québec.
Faites de TIAGO votre maison de rêve et profitez d’un espace pensé pour le bien-être et la convivialité !
---
*Si vous souhaitez acheter le plan du sous-sol aménagé, tel que présenté sur la page de ce plan, veuillez sélectionner cette option dans le panier d'achat, dans la section "Sélectionner votre fondation". Si vous ne sélectionnez pas cette option, vous recevrez le sous-sol non fini, sans frais additionnel.
Éléments distinctifs
Maison à étage de style transitionnel proposant de 3 à 5 chambres.
Plafond à 9' sur les deux étages.
Grande entrée avant avec vestiaire et banc.
Foyer au salon.
Cellier, garde-manger et îlot à la cuisine.
Bureaux (ou salle de jeux) en retrait de la cuisine.
Salle d'eau.
Suite des parents avec walk-in et salle de bain privée.
Salle de lavage à l'étage.
*Sous-sol aménagé (optionnel $) avec 2 chambres, gymnase, salle familiale et salle de bain.
*Si vous souhaitez acheter le plan du sous-sol aménagé, tel que présenté sur la page de ce plan, veuillez sélectionner cette option dans le panier d'achat, dans la section "Sélectionner votre fondation". Si vous ne sélectionnez pas cette option, vous recevrez le sous-sol non fini, sans frais additionnel.
Notes légales
Ce modèle est protégé par la Loi sur les Droits d'Auteur.
De plus, les illustrations présentées peuvent différer du plan détaillé que vous recevrez, car ces derniers sont régulièrement ajustés afin de respecter les normes de construction en vigueur.
Autres informations utiles sur ce plan
Description complète
Une maison intemporelle, conçue pour traverser les époques avec élégance!
Laissez-vous séduire par le plan de maison TIAGO (#3741), une demeure au design raffiné qui marie harmonieusement des matériaux bruts au charme naturel avec des lignes épurées et modernes. Avec 2184 pi² aménagés sur deux étages, et la *possibilité d’ajouter un sous-sol entièrement aménagé de 1101 pi², cette maison offre un espace de vie généreux et fonctionnel.
Dès l’entrée, vous serez accueilli par un spacieux vestiaire sur la droite et un banc pratique sur la gauche. Le salon, chaleureux et convivial, est agrémenté d’un foyer et peut accueillir plusieurs aménagements de soffas et fauteuils. La cuisine à aire ouverte donne sur la salle à manger et met en valeur un trio très prisé : garde-manger, cellier et grand îlot central. Un bureau, idéal pour le télétravail, complète cet espace et peut aisément être transformé en salle de jeux pour les enfants. Une salle d’eau, située à mi-palier vers le sous-sol, vient parfaire cet étage.
Un étage pensé pour le confort
L’étage est un véritable cocon pour la famille. La chambre des maîtres séduit par son walk-in spacieux et sa salle de bain privée digne d’un hôtel : bain autoportant devant une grande fenêtre, douche spacieuse et double lavabo pour un maximum de confort. Deux chambres secondaires, une seconde salle de bain complète, une salle de lavage et une grande penderie complètent cet étage fonctionnel et bien pensé.
*Un sous-sol aménagé en option ($)
Pour ceux qui recherchent encore plus d’espace, le sous-sol propose deux chambres supplémentaires, un grand gymnase, une salle familiale, une troisième salle de bain avec bain et douche séparée, ainsi que de nombreux espaces de rangement.
Une maison idéale pour les grandes familles
Avec ses 5 chambres, 2 salons, une salle de jeux et 2,5 salles de bain, cette maison répond aux besoins des familles modernes en quête de confort et de style. Son garage optionnel, accessible par l’entrée principale ou le palier intermédiaire, peut être ajouté facilement grâce à nos bureaux partout au Québec.
Faites de TIAGO votre maison de rêve et profitez d’un espace pensé pour le bien-être et la convivialité !
---
*Si vous souhaitez acheter le plan du sous-sol aménagé, tel que présenté sur la page de ce plan, veuillez sélectionner cette option dans le panier d'achat, dans la section "Sélectionner votre fondation". Si vous ne sélectionnez pas cette option, vous recevrez le sous-sol non fini, sans frais additionnel.
Éléments distinctifs
Maison à étage de style transitionnel proposant de 3 à 5 chambres.
Plafond à 9' sur les deux étages.
Grande entrée avant avec vestiaire et banc.
Foyer au salon.
Cellier, garde-manger et îlot à la cuisine.
Bureaux (ou salle de jeux) en retrait de la cuisine.
Salle d'eau.
Suite des parents avec walk-in et salle de bain privée.
Salle de lavage à l'étage.
*Sous-sol aménagé (optionnel $) avec 2 chambres, gymnase, salle familiale et salle de bain.
*Si vous souhaitez acheter le plan du sous-sol aménagé, tel que présenté sur la page de ce plan, veuillez sélectionner cette option dans le panier d'achat, dans la section "Sélectionner votre fondation". Si vous ne sélectionnez pas cette option, vous recevrez le sous-sol non fini, sans frais additionnel.



















