Modèle de petite maison moderne ou chalet moderne, joli balcon abrité, 2 chambres, foyer central, air ouverte
Vue arrière - MODÈLE DE BASE
Vue avant - MODÈLE DE BASE
Vue avant - MODÈLE DE BASE
Vue arrière - MODÈLE DE BASE
Vue intérieure
Version couleur no. 2 - Vue avant
Version couleur no. 3 - Vue avant
Version couleur no. 2 - Vue arrière
Version couleur no. 3 - Vue arrière
Vue par plancher
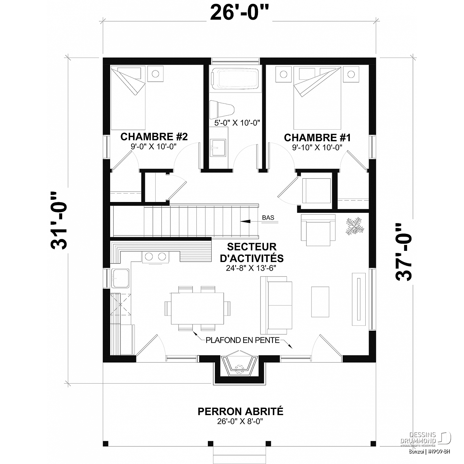
| Rez-de-chaussée | ||||
| Pièces | Dimensions | Plafond | ||
| Chambre à coucher | 9'11" x 10'0" | ~ 8'0" | ||
| Chambre à coucher | 9'0" x 10'0" | ~ 8'0" | ||
| Garde-robe | 3'2" x 3'1" | ~ 0'0" | ||
| Garde-robe | 3'2" x 3'1" | ~ 0'0" | ||
| Salle de séjour/salle à manger | 25'0" x 11'0" | ~ 12'0" | ||
| Salle de bain | 5'1" x 10'0" | ~ 8'0" | ||
| Perron abrité | 26'0" x 8'0" | ~ 0'0" | ||
| Garde-robe | 2'2" x 3'2" | ~ 10'0" | ||
| Coin laveuse/sécheuse | 3'2" x 3'0" | ~ 10'0" | ||
| Sous-sol aménageable (Optionel $) | ||||
| Rez-de-chaussée (Optionel $) | ||||
Estimation
| Estimation des coûts approx. de construction | 125,194$ à 178,849$ |
Spécifications générales
| Surface aménagée totale | 686 pi2 |
| Rez-de-chaussée | 686 pi2 |
| Rez-de-chaussée (Optionel $) | 764 pi2 |
| Sous-sol aménageable (Optionel $) | 764 pi2 |
| Largeur | 26'0" |
| Profondeur | 26'0" |
| Hauteur dessus fondations au faite | 15'0" |
| Murs extérieurs | 2 X 6 |
| Type de fondation | Dalle monolithique |
| Code Entrepreneur | AA |
Spécifications sur les pièces
| Chambre(s) | 2 |
| Salle(s) de bain complète(s) | 1 |
| Demi Salle(s) de Bain | - |
| Type de garage | - |
| Espace boni aménageable | - |
| Rangement boni | - |
| Estimation des coûts approx. de construction | 125,194$ à 178,849$ i |
| Surface aménagée totale | 686 pi2 |
| Rez-de-chaussée | 686 pi2 |
| Sous-sol aménageable (Optionel $) | 764 pi2 |
| Rez-de-chaussée (Optionel $) | 764 pi2 |
| Largeur | 26'0" |
| Profondeur | 26'0" |
| Hauteur dessus fondations au faite | 15'0" |
| Murs extérieurs | 2 X 6 |
| Type de fondation | Dalle monolithique i |
Vue avant
Note: Ces photos représentent une version modifiée, non-disponible à la vente, du plan d'origine duquel elles proviennent. Veuillez consulter l'un de nos 31 bureaux si vous souhaitez obtenir des modifications au plan d'origine de ce modèle.
Vue avant
Note: Ces photos représentent une version modifiée, non-disponible à la vente, du plan d'origine duquel elles proviennent. Veuillez consulter l'un de nos 31 bureaux si vous souhaitez obtenir des modifications au plan d'origine de ce modèle.
Vue avant
Note: Ces photos représentent une version modifiée, non-disponible à la vente, du plan d'origine duquel elles proviennent. Veuillez consulter l'un de nos 31 bureaux si vous souhaitez obtenir des modifications au plan d'origine de ce modèle.
Salle de bain
Note: Ces photos représentent une version modifiée, non-disponible à la vente, du plan d'origine duquel elles proviennent. Veuillez consulter l'un de nos 31 bureaux si vous souhaitez obtenir des modifications au plan d'origine de ce modèle.
Cuisine
Note: Ces photos représentent une version modifiée, non-disponible à la vente, du plan d'origine duquel elles proviennent. Veuillez consulter l'un de nos 31 bureaux si vous souhaitez obtenir des modifications au plan d'origine de ce modèle.
Cuisine
Note: Ces photos représentent une version modifiée, non-disponible à la vente, du plan d'origine duquel elles proviennent. Veuillez consulter l'un de nos 31 bureaux si vous souhaitez obtenir des modifications au plan d'origine de ce modèle.
Salle familiale
Note: Ces photos représentent une version modifiée, non-disponible à la vente, du plan d'origine duquel elles proviennent. Veuillez consulter l'un de nos 31 bureaux si vous souhaitez obtenir des modifications au plan d'origine de ce modèle.
Chambre
Note: Ces photos représentent une version modifiée, non-disponible à la vente, du plan d'origine duquel elles proviennent. Veuillez consulter l'un de nos 31 bureaux si vous souhaitez obtenir des modifications au plan d'origine de ce modèle.
Chambre
Note: Ces photos représentent une version modifiée, non-disponible à la vente, du plan d'origine duquel elles proviennent. Veuillez consulter l'un de nos 31 bureaux si vous souhaitez obtenir des modifications au plan d'origine de ce modèle.
Salle à manger
Note: Ces photos représentent une version modifiée, non-disponible à la vente, du plan d'origine duquel elles proviennent. Veuillez consulter l'un de nos 31 bureaux si vous souhaitez obtenir des modifications au plan d'origine de ce modèle.
Salle de séjour
Note: Ces photos représentent une version modifiée, non-disponible à la vente, du plan d'origine duquel elles proviennent. Veuillez consulter l'un de nos 31 bureaux si vous souhaitez obtenir des modifications au plan d'origine de ce modèle.
Secteur activité
Note: Ces photos représentent une version modifiée, non-disponible à la vente, du plan d'origine duquel elles proviennent. Veuillez consulter l'un de nos 31 bureaux si vous souhaitez obtenir des modifications au plan d'origine de ce modèle.
Secteur activité
Note: Ces photos représentent une version modifiée, non-disponible à la vente, du plan d'origine duquel elles proviennent. Veuillez consulter l'un de nos 31 bureaux si vous souhaitez obtenir des modifications au plan d'origine de ce modèle.
Description
PLAN DE BASE - sur dalle - 686 pi.ca. Rez-de-chaussé: Salle de séjour, salle à dîner et cuisine, 2 chambres avec walk-in, salle de bain, garde robe avec laveuse-sécheuse superposées, rangement. Fondation: dalle monolithique. --- *OPTION #1 - sous-sol aménageable - 764 pi.ca. au rez-de-chaussée Salle de séjour, salle à dîner et cuisine, escalier menant au sous-sol non fini, 2 chambres avec walk-in, salle de bain, garde robe avec laveuse-sécheuse superposées, rangement. Fondation: sous-sol non fini, à aménager. --- *Sous-sol aménageable (optionnel $): *Si vous souhaitez acheter la maison contenant un plan du sous-sol aménageable (non fini), tel que présenté sur la page de ce plan en Option #1, veuillez sélectionner cette option dans le panier d'achat, dans la section "Sélectionner votre fondation". Si vous ne sélectionnez pas cette option, vous recevrez la fondation en dalle monolithique.
Autres informations utiles sur ce plan
Plan de petite mini maison moderne 2 chambres abordable ou petit mini chalet moderne
Vous cherchez un lieu de vie lumineux, bien pensé et au style épuré pour vos escapades en nature ou votre quotidien ? Cette maison ou chalet au style moderne, à l’allure minimaliste mais chaleureuse, saura vous séduire dès le premier regard. Conçue pour allier confort, esthétique et fonctionnalité, BONZAI (#1909-BH) offre une ambiance douce et contemporaine, parfaite pour une vie paisible ou des moments de détente.
À l’avant, un grand patio couvert prolonge l’espace de vie vers l’extérieur. Véritable pièce additionnelle durant les beaux jours, il devient un lieu privilégié pour prendre le café le matin, lire en après-midi ou partager un repas en soirée. Surplombant ce patio, de larges fenêtres permettent à la lumière naturelle d’entrer généreusement dans l’espace principal, créant une atmosphère à la fois vivante et apaisante.
À l’intérieur, vous découvrirez une aire ouverte bien agencée, réunissant la cuisine, la salle à manger et le salon autour d’un foyer central qui vient réchauffer l’espace et renforcer le sentiment de convivialité. Que vous soyez en famille, entre amis ou en solo, cet espace est idéal pour se retrouver et profiter pleinement du moment présent.
Côté chambres, vous disposez de deux pièces confortables, chacune dotée de son petit walk-in — un atout pratique pour un rangement bien organisé, même dans un format compact. La coin salle de lavage, intégré de façon discrète, offre un coin laveuse-sécheuse avec du rangement astucieux, facilitant l’entretien sans nuire à l’esthétique.
La modèle de base de cette maison propose 684 pi.ca. au rez-de-chaussée et repose sur une *fondation en dalle monolithique, parfaite pour les terrains plats, mais vous pouvez choisir parmi d’autres options selon vos besoins et préférences, offertes en ligne ou par téléphone.
Un refuge moderne, lumineux et accueillant, à adapter selon votre style de vie, pour en faire un véritable chez-soi… ou votre escapade de rêve!!
---
*Sous-sol aménageable (optionnel $):OPTION #1 - 764 pi.ca. au rez-de-chaussée
*Si vous souhaitez acheter la maison contenant un plan du sous-sol aménageable (non fini), tel que présenté sur la page de ce plan en Option #1, veuillez sélectionner cette option dans le panier d'achat, dans la section "Sélectionner votre fondation". Si vous ne sélectionnez pas cette option, vous recevrez la fondation en dalle monolithique.
Éléments distinctifs
Maison ou chalet au style moderne, à l’allure épurée et chaleureuse.
Grand patio couvert à l’avant, idéal comme espace de vie supplémentaire lors des belles journées.
De grandes fenêtres, placées au-dessus du patio, inondent la pièce principale de lumière naturelle.
Plafond en pente de l'avant vers l'arrière de la maison.
Espace de vie à aire ouverte avec un foyer central, parfait pour créer une ambiance conviviale.
Deux chambres confortables, chacune avec son propre walk-in pour un rangement efficace.
Coin buanderie pratique avec espace laveuse-sécheuse et rangement intégré.
Fondation de base: dalle monolithique, avec plusieurs autres options offertes lors de l’achat en ligne ou par téléphone.
---
*Sous-sol aménageable (optionnel $): OPTION #1
*Si vous souhaitez acheter la maison contenant un plan du sous-sol aménageable (non fini), tel que présenté sur la page de ce plan en Option #1, veuillez sélectionner cette option dans le panier d'achat, dans la section "Sélectionner votre fondation". Si vous ne sélectionnez pas cette option, vous recevrez la fondation en dalle monolithique.
---
NOTE ADDITIONNELLE:
Le plan de base propose 686 pi.ca. au rez-de-chaussée.
L'Option #1 propose un placher légèrement plus spacieux à 764 pi.ca. au rez-de-chaussée et pareil au sous-sol aménageable.
Notes légales
Ce modèle est protégé par la Loi sur les Droits d'Auteur.
De plus, les illustrations présentées peuvent différer du plan détaillé que vous recevrez, car ces derniers sont régulièrement ajustés afin de respecter les normes de construction en vigueur.
Autres informations utiles sur ce plan
Description complète
Plan de petite mini maison moderne 2 chambres abordable ou petit mini chalet moderne
Vous cherchez un lieu de vie lumineux, bien pensé et au style épuré pour vos escapades en nature ou votre quotidien ? Cette maison ou chalet au style moderne, à l’allure minimaliste mais chaleureuse, saura vous séduire dès le premier regard. Conçue pour allier confort, esthétique et fonctionnalité, BONZAI (#1909-BH) offre une ambiance douce et contemporaine, parfaite pour une vie paisible ou des moments de détente.
À l’avant, un grand patio couvert prolonge l’espace de vie vers l’extérieur. Véritable pièce additionnelle durant les beaux jours, il devient un lieu privilégié pour prendre le café le matin, lire en après-midi ou partager un repas en soirée. Surplombant ce patio, de larges fenêtres permettent à la lumière naturelle d’entrer généreusement dans l’espace principal, créant une atmosphère à la fois vivante et apaisante.
À l’intérieur, vous découvrirez une aire ouverte bien agencée, réunissant la cuisine, la salle à manger et le salon autour d’un foyer central qui vient réchauffer l’espace et renforcer le sentiment de convivialité. Que vous soyez en famille, entre amis ou en solo, cet espace est idéal pour se retrouver et profiter pleinement du moment présent.
Côté chambres, vous disposez de deux pièces confortables, chacune dotée de son petit walk-in — un atout pratique pour un rangement bien organisé, même dans un format compact. La coin salle de lavage, intégré de façon discrète, offre un coin laveuse-sécheuse avec du rangement astucieux, facilitant l’entretien sans nuire à l’esthétique.
La modèle de base de cette maison propose 684 pi.ca. au rez-de-chaussée et repose sur une *fondation en dalle monolithique, parfaite pour les terrains plats, mais vous pouvez choisir parmi d’autres options selon vos besoins et préférences, offertes en ligne ou par téléphone.
Un refuge moderne, lumineux et accueillant, à adapter selon votre style de vie, pour en faire un véritable chez-soi… ou votre escapade de rêve!!
---
*Sous-sol aménageable (optionnel $):OPTION #1 - 764 pi.ca. au rez-de-chaussée
*Si vous souhaitez acheter la maison contenant un plan du sous-sol aménageable (non fini), tel que présenté sur la page de ce plan en Option #1, veuillez sélectionner cette option dans le panier d'achat, dans la section "Sélectionner votre fondation". Si vous ne sélectionnez pas cette option, vous recevrez la fondation en dalle monolithique.
Éléments distinctifs
Maison ou chalet au style moderne, à l’allure épurée et chaleureuse.
Grand patio couvert à l’avant, idéal comme espace de vie supplémentaire lors des belles journées.
De grandes fenêtres, placées au-dessus du patio, inondent la pièce principale de lumière naturelle.
Plafond en pente de l'avant vers l'arrière de la maison.
Espace de vie à aire ouverte avec un foyer central, parfait pour créer une ambiance conviviale.
Deux chambres confortables, chacune avec son propre walk-in pour un rangement efficace.
Coin buanderie pratique avec espace laveuse-sécheuse et rangement intégré.
Fondation de base: dalle monolithique, avec plusieurs autres options offertes lors de l’achat en ligne ou par téléphone.
---
*Sous-sol aménageable (optionnel $): OPTION #1
*Si vous souhaitez acheter la maison contenant un plan du sous-sol aménageable (non fini), tel que présenté sur la page de ce plan en Option #1, veuillez sélectionner cette option dans le panier d'achat, dans la section "Sélectionner votre fondation". Si vous ne sélectionnez pas cette option, vous recevrez la fondation en dalle monolithique.
---
NOTE ADDITIONNELLE:
Le plan de base propose 686 pi.ca. au rez-de-chaussée.
L'Option #1 propose un placher légèrement plus spacieux à 764 pi.ca. au rez-de-chaussée et pareil au sous-sol aménageable.






















