Lambert (3279)
Split-level contemporain, 4 à 5 chambres, salle familiale et salon, bureau, garage et plus!
Chambres
5, 2
Salle(s) de bain
2
Surface
1469 pi2
Type de garage
1 voiture
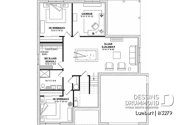
Vue par plancher
| Sous-sol aménagé (Optionel $) | ||||
| Pièces | Dimensions | Plafond | ||
| Chambre à coucher | 12'10" x 10'2" | ~ 8'0" | ||
| Garde-robe | 9'0" x 2'0" | ~ 8'0" | ||
| Salle de bain | 9'0" x 7'10" | ~ 8'0" | ||
| Douche | 4'0" x 3'0" | ~ 0'0" | ||
| Lingerie | 1'8" x 1'4" | ~ 0'0" | ||
| Rangement | 5'5" x 2'4" | ~ 8'0" | ||
| Salle de lavage | 9'0" x 10'5" | ~ 8'0" | ||
| Chambre à coucher | 12'8" x 13'2" | ~ 8'0" | ||
| Garde-robe | 9'0" x 2'0" | ~ 8'0" | ||
| Salle de lavage | 12'10" x 13'2" | ~ 8'0" | ||
| Salle familiale | 29'6" x 14'0" | ~ 8'0" | ||
| Bureau à domicile | 12'10" x 13'2" | ~ 8'0" | ||
| Rez-de-chaussée | ||||
| Pièces | Dimensions | Plafond | ||
| Perron | 9'6" x 5'8" | ~ 0'0" | ||
| Entrée ou vestibule | 7'6" x 5'9" | ~ 12'0" | ||
| Garde-robe | 5'6" x 2'0" | ~ 12'0" | ||
| Garage | 18'4" x 19'0" | ~ 10'2" | ||
| Chambre à coucher | 13'6" x 12'10" | ~ 8'0" | ||
| Walk-in | 9'3" x 3'6" | ~ 8'0" | ||
| Rangement | 3'6" x 2'0" | ~ 8'0" | ||
| Salle de bain complète | 11'10" x 9'3" | ~ 8'0" | ||
| Douche | 5'0" x 3'0" | ~ 0'0" | ||
| Lingerie | 1'6" x 1'10" | ~ 0'0" | ||
| Suite des maîtres | 13'0" x 13'6" | ~ 8'0" | ||
| Toilette en cabine | 9'0" x 5'0" | ~ 8'0" | ||
| Walk-in | 9'0" x 5'0" | ~ 8'0" | ||
| Salle à manger | 11'0" x 14'7" | ~ 8'0" | ||
| Salle de séjour | 15'10" x 14'7" | ~ 8'0" | ||
| Terrasse abritée | 13'0" x 13'10" | ~ 8'4" | ||
| Cuisine | 13'2" x 13'10" | ~ 8'0" | ||
| Îlot | 10'0" x 3'8" | ~ 0'0" | ||
| Sous-sol aménageable | ||||
| Estimation des coûts approx. de construction | 304,842$ à 435,488$ i |
| Surface aménagée totale | 1469 pi2 |
| Sous-sol aménagé (Optionel $) | 1469 pi2 |
| Rez-de-chaussée | 1469 pi2 |
| Sous-sol aménageable | 1469 pi2 |
| Largeur | 44'0" |
| Profondeur | 49'5" |
| Hauteur dessus fondations au faite | 18'3" |
| Murs extérieurs | 2 X 6 |
| Type de fondation | Sous-sol aménageable i |
Description
Rez-de-chaussée: Entrée split, cuisine, salle à manger, salon, suite des parents, salle de bain complète et chambre additionnelle. Sous-sol aménagé inclus au plan et dans l'estimation des coûts. 2 chambres, salle de bain, salle de lavage, bureau (ou chambre #5) et salle familiale. Terrasse abritée. Garage une voiture.
Autres informations utiles sur ce plan
Description complète
Magnifique maison contemporaine, de type split-level, offrant une belle luminosité dans toutes ses pièces!
.
Éléments distinctifs
Maison contemporaine proposant un garage et une galerie avant couverte.
Entrée split avec garde-robe.
Chambre des parents avec accès à une salle de bain via un grand walk-in. Ce dernier inclut une chute à linge vers la salle de lavage au sous-sol.
Salle de bain principale avec bain et douche séparés.
Salle de séjour ouverte sur la salle à manger.
Cuisine avec grand îlot et accès à la grande terrasse abritée arrière.
2 chambres additionnelles, une salle familiale, la salle de lavage, une salle de douche et un bureau (ou chambre #5) sont prévus au sous-sol.
Garage simple de bon format.




