Miranda 5 (3137-V3)
Modèle de plain-pied économique avec 3 chambres au rez-de-chaussée, possibilités de 2+ chambres au sous-sol
Chambres
5, 3, 4
Salle(s) de bain
2
Surface
1024 pi2
Type de garage
-
Vue par plancher
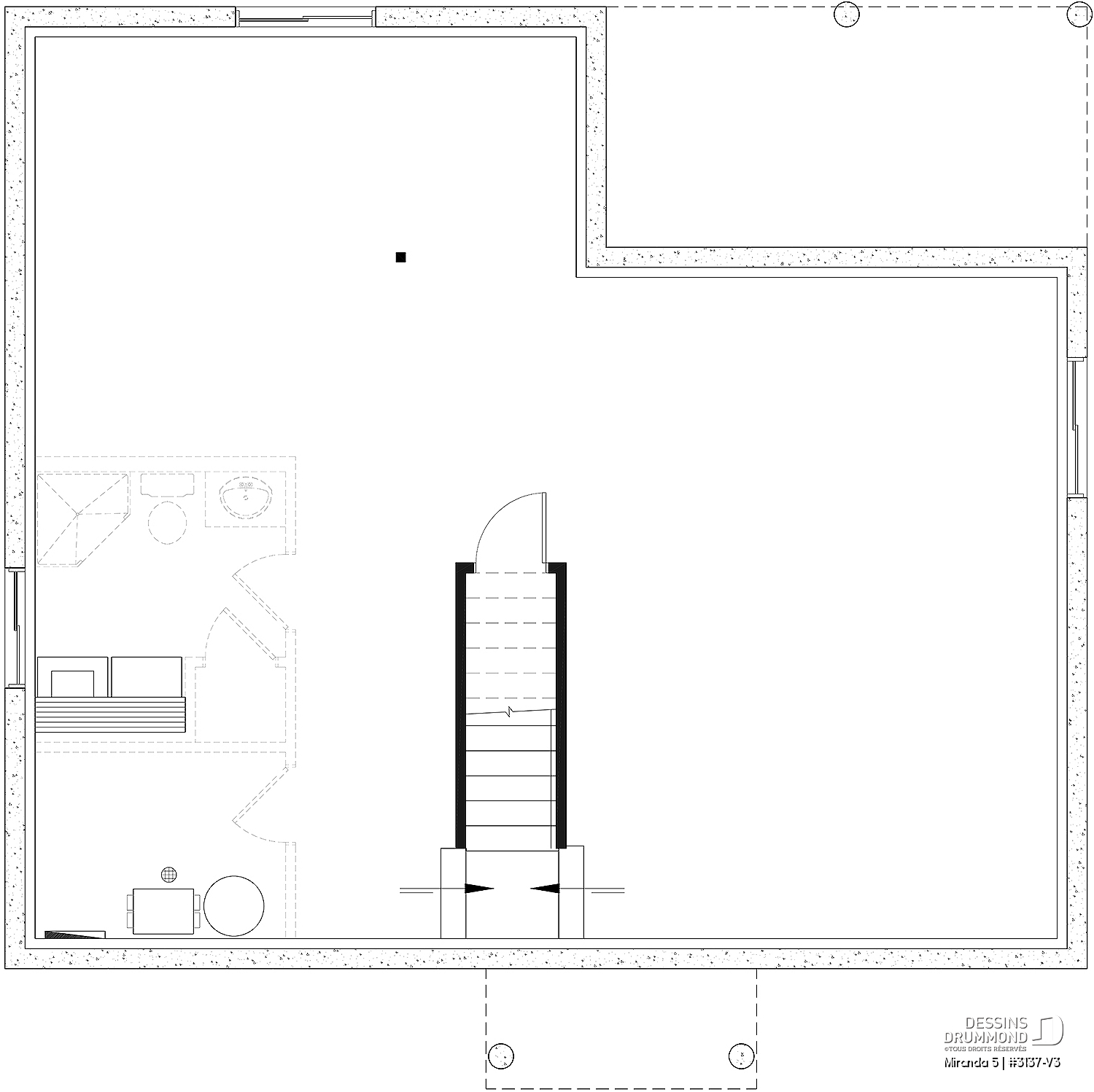
| Sous-sol aménageable | ||||
| Rez-de-chaussée | ||||
| Pièces | Dimensions | Plafond | ||
| Salle de séjour | 16'8" x 11'0" | ~ 8'0" | ||
| Walk-in | 3'0" x 3'6" | ~ 8'0" | ||
| Chambre à coucher | 12'0" x 11'0" | ~ 8'0" | ||
| Garde-robe | 2'0" x 5'0" | ~ 8'0" | ||
| Garde-robe | 2'0" x 5'0" | ~ 8'0" | ||
| Chambre à coucher | 9'2" x 11'6" | ~ 8'0" | ||
| Garde-robe | 4'8" x 2'0" | ~ 8'0" | ||
| Chambre à coucher | 9'2" x 11'6" | ~ 8'0" | ||
| Perron abrité | 9'0" x 4'0" | ~ 8'0" | ||
| Terrasse abritée | 16'0" x 8'0" | ~ 8'0" | ||
| Salle de bain | 8'4" x 7'6" | ~ 8'0" | ||
| Cuisine/salle à manger | 15'8" x 11'8" | ~ 8'0" | ||
| Lingerie | 2'0" x 1'10" | ~ 8'0" | ||
| Terrasse | 16'0" x 8'0" | ~ 0'0" | ||
| Sous-sol aménagé (Optionel $) | ||||
| Estimation des coûts approx. de construction | 192,495$ à 274,993$ i |
| Surface aménagée totale | 1024 pi2 |
| Sous-sol aménageable | 1024 pi2 |
| Rez-de-chaussée | 1024 pi2 |
| Sous-sol aménagé (Optionel $) | 1024 pi2 |
| Largeur | 36'0" |
| Profondeur | 32'0" |
| Hauteur dessus fondations au faite | 16'6" |
| Murs extérieurs | 2 X 6 |
| Type de fondation | Sous-sol aménageable i |
Description
Rez-de-chaussée: Salon, salle à manger, cuisine, 3 chambres, salle de bain. Salle de lavage prévue au sous-sol. Sous-sol à aménager. --- *Sous-sol aménagé (optionnel): 2 chambres, salle de bain, salle de jeux / familiale, salle de lavage, rangement intégré. --- *Si vous souhaitez acheter le plan du sous-sol aménagé, tel que présenté sur la page de ce plan, veuillez sélectionner cette option dans le panier d'achat, dans la section "Sélectionner votre fondation". Si vous ne sélectionnez pas cette option, vous recevrez le sous-sol non fini, sans frais additionnel.
Autres informations utiles sur ce plan
Description complète
Plan de maison Miranda 5 (#3137-V3) | Plain-pied moderne rustique jusqu’à 5 chambres
Le plan de maison plain-pied no. 3137-V3, aussi connu sous le nom Miranda 5, séduit d’emblée par son coût abordable, son style moderne rustique très recherché et son aménagement fonctionnel offrant trois chambres sur un même niveau. Il s’agit d’un choix particulièrement apprécié des jeunes familles à la recherche d’une maison pratique, chaleureuse et évolutive, sans compromis sur le design.
Ce modèle fait partie d’une collection exclusive de cinq plans proposant différentes configurations intérieures, avec ou sans garage, afin de s’adapter à divers budgets et modes de vie. Pour découvrir l’ensemble de la série, il suffit d’inscrire « 3137 » dans la barre de recherche de notre site web et comparer facilement les variantes offertes.
L’architecture extérieure se distingue par une esthétique épurée d’inspiration nordique, mise en valeur par un judicieux mélange de déclin gris, de pierre et d’accents noirs, créant une allure à la fois contemporaine et intemporelle. La galerie avant couverte ajoute une touche accueillante tout en offrant une protection appréciée contre les intempéries, peu importe la saison.
À l’intérieur, l’aménagement a été pensé pour maximiser l’espace et la convivialité. Dès l’entrée, une garde-robe de bon format procure un rangement généreux. L’aire de vie principale se déploie dans un concept entièrement ouvert, réunissant la cuisine, la salle à manger et le salon. La cuisine fonctionnelle, dotée d’un îlot central de type lunch, offre à la fois une surface de travail pratique et un espace rassembleur, tout en laissant suffisamment de place pour accueillir une grande table familiale.
La chambre des parents, confortable et bien proportionnée, comprend deux garde-robes, tandis que les deux chambres secondaires, la salle de bain complète et une lingerie complètent intelligemment le rez-de-chaussée.
Le sous-sol non fini, inclus au plan de base, offre une grande flexibilité d’aménagement.
*Une proposition optionnelle permet d’y ajouter deux chambres supplémentaires, pour un total de cinq chambres, ainsi qu’une deuxième salle de bain, une salle familiale ou salle de jeux, du rangement intégré et une salle de lavage fonctionnelle. Une solution idéale pour accompagner l’évolution des besoins de votre famille.
Économique, bien pensé et résolument actuel, le Miranda 5 (#3137-V3) est un plan de maison plain-pied qui combine simplicité de construction, confort au quotidien et potentiel d’avenir.
---
*Si vous souhaitez acheter le plan du sous-sol aménagé, tel que présenté sur la page de ce plan, veuillez sélectionner cette option dans le panier d'achat, dans la section "Sélectionner votre fondation". Si vous ne sélectionnez pas cette option, vous recevrez le sous-sol non fini, sans frais additionnel.
Éléments distinctifs
Plan de plain-pied économique de style nordique, à l’esthétique épurée et intemporelle.
Construction simple et efficace, parfaitement adaptée aux auto-constructeurs.
Galerie avant couverte, idéale pour se protéger des intempéries en toute saison.
Entrée avant fonctionnelle avec garde-robe de bon format.
Aire ouverte conviviale réunissant la cuisine, la salle à manger et le salon.
Disposition fluide, favorisant les échanges et les moments partagés lors de la préparation des repas.
Cuisine pratique avec îlot central, offrant surface de travail et coin rassembleur.
Trois chambres situées sur le même niveau, un atout recherché pour les jeunes familles.
Chambre des parents confortable, munie de deux garde-robes.
Sous-sol inclus au plan, présenté en version non finie pour plus de flexibilité.
---
*Proposition d’aménagement du sous-sol (optionnel) :
Possibilité d’ajouter deux chambres supplémentaires (pour un total de 5 chambres).
Salle de bain complète.
Salle familiale ou salle de jeux, idéale pour les enfants ou les invités.
Rangement intégré et salle de lavage fonctionnelle.
---
*Si vous souhaitez acheter le plan du sous-sol aménagé, tel que présenté sur la page de ce plan, veuillez sélectionner cette option dans le panier d'achat, dans la section "Sélectionner votre fondation". Si vous ne sélectionnez pas cette option, vous recevrez le sous-sol non fini, sans frais additionnel.




















