Plain-pied 4 chambres de style farmhouse, bureau, 2 salons, sous-sol aménagé, garde-manger, foyer
Vue par plancher
| Rez-de-chaussée | ||||
| Pièces | Dimensions | Plafond | ||
| Perron | 7'4" x 4'0" | ~ 0'0" | ||
| Entrée ou vestibule | 6'2" x 8'8" | ~ 9'0" | ||
| Bureau à domicile | 8'4" x 10'4" | ~ 9'0" | ||
| Garde-robe | 5'0" x 1'8" | ~ 9'0" | ||
| Rangement | 3'0" x 1'8" | ~ 9'0" | ||
| Salle de bain complète | 12'0" x 8'2" | ~ 9'0" | ||
| Cuisine | 14'0" x 11'2" | ~ 16'2" | ||
| Îlot | 8'10" x 4'0" | ~ 0'0" | ||
| Garde-manger | 5'0" x 9'0" | ~ 9'0" | ||
| Chambre à coucher | 9'0" x 10'4" | ~ 9'0" | ||
| Garde-robe | 3'8" x 2'0" | ~ 9'0" | ||
| Salle de bain | 8'5" x 5'8" | ~ 9'0" | ||
| Douche | 4'0" x 3'0" | ~ 0'0" | ||
| Lingerie | 1'4" x 2'0" | ~ 0'0" | ||
| Salle de séjour | 17'8" x 14'0" | ~ 16'2" | ||
| Salle à manger | 10'8" x 12'10" | ~ 9'0" | ||
| Terrasse | 23'0" x 14'0" | ~ 0'0" | ||
| Suite des maîtres | 12'0" x 13'0" | ~ 9'0" | ||
| Walk-in | 8'4" x 4'10" | ~ 9'0" | ||
| Salle de bain complète | 12'0" x 8'2" | ~ 9'0" | ||
| Douche | 3'0" x 5'0" | ~ 0'0" | ||
| Vestiaire | 3'10" x 6'4" | ~ 9'0" | ||
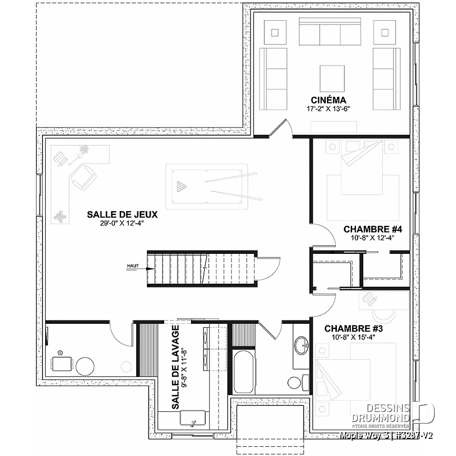
| Sous-sol aménagé (Optionel $) | ||||
| Pièces | Dimensions | Plafond | ||
| Pièce de mécanique | 10'0" x 13'4" | ~ 8'0" | ||
| Salle de lavage | 9'8" x 11'8" | ~ 8'0" | ||
| Salle de bain | 8'6" x 7'8" | ~ 8'0" | ||
| Chambre à coucher | 10'8" x 15'4" | ~ 8'0" | ||
| Chambre à coucher | 10'8" x 12'4" | ~ 8'0" | ||
| Salle de jeux | 29'0" x 12'4" | ~ 8'0" | ||
| Salle de cinéma | 17'2" x 13'6" | ~ 8'0" | ||
| Sous-sol aménageable | ||||
Estimation
| Estimation des coûts approx. de construction | 319,267$ à 456,096$ |
Spécifications générales
| Surface aménagée totale | 1585 pi2 |
| Rez-de-chaussée | 1585 pi2 |
| Sous-sol aménagé (Optionel $) | 1585 pi2 |
| Largeur | 42'0" |
| Profondeur | 47'10" |
| Hauteur dessus fondations au faite | 23'0" |
| Murs extérieurs | 2 X 6 |
| Type de fondation | Sous-sol aménageable |
| Code Entrepreneur | D |
Spécifications sur les pièces
| Chambre(s) | 2, 3, 4 |
| Salle(s) de bain complète(s) | 2 |
| Demi Salle(s) de Bain | - |
| Type de garage | - |
| Espace boni aménageable | - |
| Rangement boni | - |
| Estimation des coûts approx. de construction | 319,267$ à 456,096$ i |
| Surface aménagée totale | 1585 pi2 |
| Rez-de-chaussée | 1585 pi2 |
| Sous-sol aménagé (Optionel $) | 1585 pi2 |
| Sous-sol aménageable | 1585 pi2 |
| Largeur | 42'0" |
| Profondeur | 47'10" |
| Hauteur dessus fondations au faite | 23'0" |
| Murs extérieurs | 2 X 6 |
| Type de fondation | Sous-sol aménageable i |
Salle à manger
Note: Ces photos représentent une version modifiée, non-disponible à la vente, du plan d'origine duquel elles proviennent. Veuillez consulter l'un de nos 31 bureaux si vous souhaitez obtenir des modifications au plan d'origine de ce modèle.
Salle de bain
Note: Ces photos représentent une version modifiée, non-disponible à la vente, du plan d'origine duquel elles proviennent. Veuillez consulter l'un de nos 31 bureaux si vous souhaitez obtenir des modifications au plan d'origine de ce modèle.
Salle de bain
Note: Ces photos représentent une version modifiée, non-disponible à la vente, du plan d'origine duquel elles proviennent. Veuillez consulter l'un de nos 31 bureaux si vous souhaitez obtenir des modifications au plan d'origine de ce modèle.
Cuisine
Note: Ces photos représentent une version modifiée, non-disponible à la vente, du plan d'origine duquel elles proviennent. Veuillez consulter l'un de nos 31 bureaux si vous souhaitez obtenir des modifications au plan d'origine de ce modèle.
Entrée ou vestibule
Note: Ces photos représentent une version modifiée, non-disponible à la vente, du plan d'origine duquel elles proviennent. Veuillez consulter l'un de nos 31 bureaux si vous souhaitez obtenir des modifications au plan d'origine de ce modèle.
Secteur activité
Note: Ces photos représentent une version modifiée, non-disponible à la vente, du plan d'origine duquel elles proviennent. Veuillez consulter l'un de nos 31 bureaux si vous souhaitez obtenir des modifications au plan d'origine de ce modèle.
Description
Sous-sol aménagé: 2 chambres, salle de jeux, salle de bain, salle de lavage, pièce mécanique, cinéma maison. Rez-de-chaussée: Entrée, vestiaire, chambres des maîtres avec salle de bain privée et walk-in, chambre secondaire, bureau, salle de douche, cuisine avec garde-manger, salle à manger, salle familiale.
Autres informations utiles sur ce plan
Parfaite maison familiale 2 chambres au rez-de-chaussée et 2 chambres au sous-sol qui est entièrement aménagé!
Le plan de maison plain-pied Farmhouse MAPLE WAY 3 (#3287-V2) propose un total de 3170 pc. aménagés au rez-de-chaussée et au sous-sol. Les plafonds sont à 9’ partout au rez-de-chaussée, et il y a un plafond cathédrale de 16’2’’ de hauteur à la cuisine et à la salle de séjour. Ce plan est le 3ème de la très populaire collection MAPLE WAY, et le premier n’offrant pas de garage. Ce dernier pourrait aisément être ajouté selon vos besoins, via l’un de nos 26 bureaux au Québec.
L’entrée s’ouvre sur un vestiaire de type walk-in et comporte un pratique banc vous permettant d’y déposer un sac à main ou simplement de vous y asseoir. Puis tout de suite près de l’entrée se retrouve un bureau à domicile. Nous y avons aménagé une garde-robe vous permettant ainsi une versatilité avec cette pièce pour une chambre supplémentaire, une pouponnière ou une petite salle de jeux, par exemple. Puis, sur la droite, une chambre secondaire (ou bureau #2) et une pratique salle de douche fera le bonheur d’un enfant ou de vos invités!
La suite des maîtres comporte une garde-robe walk-in, ainsi qu’une salle de bain privée et complète, avec bain et douche séparés, et deux lavabos. De plus, cette chambre offre un accès direct à la terrasse arrière. Puis, à l’arrière du rez-de-chaussée vous retrouverez les espaces communs. La cuisine possède un grand îlot et un garde-manger (tellement populaire!!), et elle est ouverte sur la salle à manger d’un côté et la salle de séjour de l’autre. Cette dernière offre un foyer qui est visible de la cuisine, question de mettre de l’ambiance lors de la préparation des soupers en hiver! La salle à manger et la salle de séjour reçoivent beaucoup de lumière naturelle par une fenestration qui est très abondante à ce secteur.
Une terrasse non couverte est prévue à l’arrière de la maison, mais n’est pas incluse dans notre estimé de coût de construction. De plus, il sera possible de faire modifier le plan, par l’un de nos 26 bureaux, si vous souhaitez ajouter une terrasse abritée à l’arrière (et/ou un garage).
Nous avons aménagé le sous-sol avec une pensée familiale en y planifiant 2 chambres additionnelles ainsi qu’une salle de bain. Aussi, une salle de jeux (ou salle familiale) ainsi que la salle de lavage et la pièce mécanique se retrouvent à ce niveau. On aime MAPLE WAY 3 pour la versatilité de ses espaces qui sauront s’harmoniser avec les besoins de votre famille!
Éléments distinctifs
Plan de maison de type plain-pied Farmhouse.
Plafond à 9' partout au rez-de-chaussée, sauf à la cuisine et salle de séjour, où le plafond est cathédrale et à une hauteur de 16'2''.
Beaucoup de lumière au secteur salle à manger, salon et chambre des maîtres.
Cuisine avec grand îlot et garde-manger, et ouverte sur la salle de séjour avec foyer.
Chambre des parents avec garde-robe de type walk-in et grande salle de bain privée avec bain et douche séparés.
Bureau localisé près de l'entrée avant.
Entrée avec banc et garde-robe walk-in.
Chambre secondaire du rez-de-chaussée avec salle de douche localisée tout près.
Sous-sol aménagé avec 2 chambres, salle familiale (ou salle de jeux).
Grande salle de lavage prévue au sous-sol.
Terrasse prévue à l'arrière, mais non incluse dans nos coûts approx. de construction.
Notes légales
Ce modèle est protégé par la Loi sur les Droits d'Auteur.
De plus, les illustrations présentées peuvent différer du plan détaillé que vous recevrez, car ces derniers sont régulièrement ajustés afin de respecter les normes de construction en vigueur.
Autres informations utiles sur ce plan
Description complète
Parfaite maison familiale 2 chambres au rez-de-chaussée et 2 chambres au sous-sol qui est entièrement aménagé!
Le plan de maison plain-pied Farmhouse MAPLE WAY 3 (#3287-V2) propose un total de 3170 pc. aménagés au rez-de-chaussée et au sous-sol. Les plafonds sont à 9’ partout au rez-de-chaussée, et il y a un plafond cathédrale de 16’2’’ de hauteur à la cuisine et à la salle de séjour. Ce plan est le 3ème de la très populaire collection MAPLE WAY, et le premier n’offrant pas de garage. Ce dernier pourrait aisément être ajouté selon vos besoins, via l’un de nos 26 bureaux au Québec.
L’entrée s’ouvre sur un vestiaire de type walk-in et comporte un pratique banc vous permettant d’y déposer un sac à main ou simplement de vous y asseoir. Puis tout de suite près de l’entrée se retrouve un bureau à domicile. Nous y avons aménagé une garde-robe vous permettant ainsi une versatilité avec cette pièce pour une chambre supplémentaire, une pouponnière ou une petite salle de jeux, par exemple. Puis, sur la droite, une chambre secondaire (ou bureau #2) et une pratique salle de douche fera le bonheur d’un enfant ou de vos invités!
La suite des maîtres comporte une garde-robe walk-in, ainsi qu’une salle de bain privée et complète, avec bain et douche séparés, et deux lavabos. De plus, cette chambre offre un accès direct à la terrasse arrière. Puis, à l’arrière du rez-de-chaussée vous retrouverez les espaces communs. La cuisine possède un grand îlot et un garde-manger (tellement populaire!!), et elle est ouverte sur la salle à manger d’un côté et la salle de séjour de l’autre. Cette dernière offre un foyer qui est visible de la cuisine, question de mettre de l’ambiance lors de la préparation des soupers en hiver! La salle à manger et la salle de séjour reçoivent beaucoup de lumière naturelle par une fenestration qui est très abondante à ce secteur.
Une terrasse non couverte est prévue à l’arrière de la maison, mais n’est pas incluse dans notre estimé de coût de construction. De plus, il sera possible de faire modifier le plan, par l’un de nos 26 bureaux, si vous souhaitez ajouter une terrasse abritée à l’arrière (et/ou un garage).
Nous avons aménagé le sous-sol avec une pensée familiale en y planifiant 2 chambres additionnelles ainsi qu’une salle de bain. Aussi, une salle de jeux (ou salle familiale) ainsi que la salle de lavage et la pièce mécanique se retrouvent à ce niveau. On aime MAPLE WAY 3 pour la versatilité de ses espaces qui sauront s’harmoniser avec les besoins de votre famille!
Éléments distinctifs
Plan de maison de type plain-pied Farmhouse.
Plafond à 9' partout au rez-de-chaussée, sauf à la cuisine et salle de séjour, où le plafond est cathédrale et à une hauteur de 16'2''.
Beaucoup de lumière au secteur salle à manger, salon et chambre des maîtres.
Cuisine avec grand îlot et garde-manger, et ouverte sur la salle de séjour avec foyer.
Chambre des parents avec garde-robe de type walk-in et grande salle de bain privée avec bain et douche séparés.
Bureau localisé près de l'entrée avant.
Entrée avec banc et garde-robe walk-in.
Chambre secondaire du rez-de-chaussée avec salle de douche localisée tout près.
Sous-sol aménagé avec 2 chambres, salle familiale (ou salle de jeux).
Grande salle de lavage prévue au sous-sol.
Terrasse prévue à l'arrière, mais non incluse dans nos coûts approx. de construction.










