Plain-pied élégant avec foyer central, grand îlot et jusqu’à 4 chambres modulables
Vue avant - MODÈLE DE BASE
Vue avant - MODÈLE DE BASE
Vue avant - MODÈLE DE BASE
Vue avant - MODÈLE DE BASE
Vue arrière - MODÈLE DE BASE
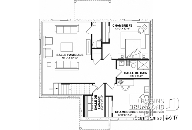
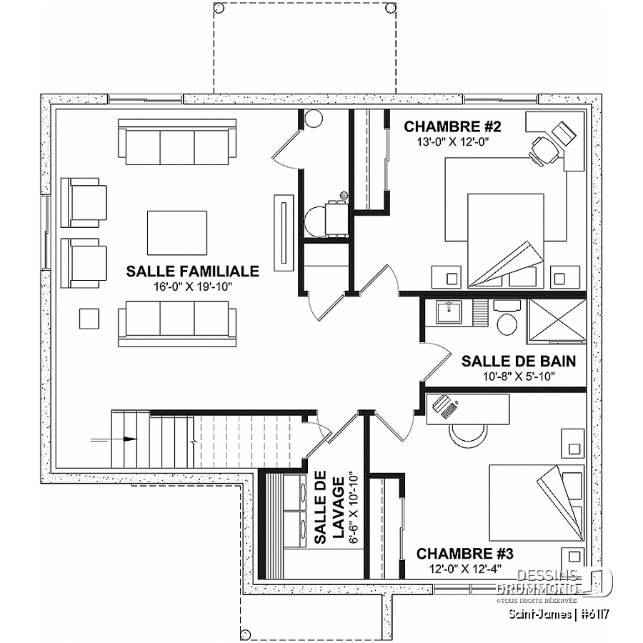
Vue par plancher
| Sous-sol aménagé (Optionel $) | ||||
| Pièces | Dimensions | Plafond | ||
| Salle de douche | 10'8" x 5'10" | ~ 8'0" | ||
| Douche | 4'0" x 3'0" | ~ 0'0" | ||
| Lingerie | 1'0" x 1'10" | ~ 0'0" | ||
| Chambre à coucher | 13'0" x 12'0" | ~ 8'0" | ||
| Garde-robe | 6'8" x 2'0" | ~ 8'0" | ||
| Chambre à coucher | 12'0" x 12'4" | ~ 8'0" | ||
| Garde-robe | 6'8" x 2'0" | ~ 8'0" | ||
| Rangement | 3'0" x 3'2" | ~ 8'0" | ||
| Pièce de mécanique | 8'6" x 3'0" | ~ 8'0" | ||
| Salle familiale | 16'0" x 19'10" | ~ 8'0" | ||
| Salle de lavage | 6'6" x 10'10" | ~ 8'0" | ||
| Rez-de-chaussée | ||||
| Pièces | Dimensions | Plafond | ||
| Patio | 12'0" x 6'0" | ~ 0'0" | ||
| Entrée ou vestibule | 6'0" x 7'0" | ~ 8'0" | ||
| Garde-robe | 7'0" x 2'0" | ~ 8'0" | ||
| Perron abrité | 6'4" x 3'0" | ~ 14'0" | ||
| Cuisine | 10'6" x 17'10" | ~ 8'0" | ||
| Îlot | 10'0" x 3'2" | ~ 0'0" | ||
| Garde-manger | 5'0" x 6'2" | ~ 8'0" | ||
| Salle de bain | 11'4" x 10'0" | ~ 8'0" | ||
| Douche | 5'6" x 4'0" | ~ 0'0" | ||
| Lingerie | 1'10" x 1'6" | ~ 8'0" | ||
| Bureau à domicile | 11'4" x 10'0" | ~ 8'0" | ||
| Lingerie | 2'2" x 1'10" | ~ 8'0" | ||
| Chambre froide | 11'4" x 11'0" | ~ 8'0" | ||
| Salle de séjour/salle à manger | 13'6" x 20'6" | ~ 8'0" | ||
| Chambre à coucher | 11'4" x 11'0" | ~ 8'0" | ||
| Chambre à coucher | 11'4" x 11'0" | ~ 8'0" | ||
| Garde-robe | 11'0" x 2'0" | ~ 8'0" | ||
| Sous-sol aménageable | ||||
Estimation
| Estimation des coûts approx. de construction | 229,116$ à 327,308$ |
Spécifications générales
| Surface aménagée totale | 1124 pi2 |
| Rez-de-chaussée | 1124 pi2 |
| Sous-sol aménageable | 1124 pi2 |
| Sous-sol aménagé (Optionel $) | 1124 pi2 |
| Largeur | 37'0" |
| Profondeur | 36'0" |
| Hauteur dessus fondations au faite | 27'8" |
| Murs extérieurs | 2 X 6 |
| Type de fondation | Sous-sol aménageable |
| Code Entrepreneur | B |
Spécifications sur les pièces
| Chambre(s) | 1, 2, 3, 4 |
| Salle(s) de bain complète(s) | 2 |
| Demi Salle(s) de Bain | - |
| Type de garage | - |
| Espace boni aménageable | - |
| Rangement boni | - |
| Estimation des coûts approx. de construction | 229,116$ à 327,308$ i |
| Surface aménagée totale | 1124 pi2 |
| Sous-sol aménagé (Optionel $) | 1124 pi2 |
| Rez-de-chaussée | 1124 pi2 |
| Sous-sol aménageable | 1124 pi2 |
| Largeur | 37'0" |
| Profondeur | 36'0" |
| Hauteur dessus fondations au faite | 27'8" |
| Murs extérieurs | 2 X 6 |
| Type de fondation | Sous-sol aménageable i |
Description
Rez-de-chaussée: Entrée, chambre principale, salle de bain, cuisine, salle à manger, salon et bureau. *Sous-sol aménagé (optionnel $): 2 chambres, salle familiale, salle de lavage et salle de bain. Plusieurs types de fondation disponibles pour chacun de nos modèles. *Si vous souhaitez acheter le plan du sous-sol aménagé, tel que présenté sur la page de ce plan, veuillez sélectionner cette option dans le panier d'achat, dans la section "Sélectionner votre fondation". Si vous ne sélectionnez pas cette option, vous recevrez le sous-sol non fini, sans frais additionnel.
Autres informations utiles sur ce plan
Plan de maison plain-pied compact et élégant avec foyer central, grand îlot et 1 à 4 chambres
Découvrez ce superbe plan de maison plain-pied alliant élégance, confort et fonctionnalité. Conçu pour s’adapter à toutes les étapes de la vie, il offre de 1 à 4 chambres selon vos besoins et la composition de votre famille. Que vous soyez un couple, une jeune famille ou des retraités souhaitant un espace sans escalier, ce modèle propose une organisation intérieure intelligente et chaleureuse.
Dès l’entrée, le ton est donné : un banc intégré et une grande garde-robe accueillent vos invités avec praticité, tandis qu’une arche décorative au plafond crée une belle transition vers la pièce de vie principale. Ce détail architectural ajoute une touche de raffinement tout en renforçant la fluidité entre les espaces.
Le salon lumineux, orné d’un foyer central, devient le cœur de la maison — un lieu idéal pour se détendre, recevoir ou simplement profiter de la chaleur d’un feu durant les soirées d’hiver. La cuisine séduit par son grand îlot central et son garde-manger spacieux, parfaits pour cuisiner et partager de bons moments en famille ou entre amis.
La chambre principale, située au rez-de-chaussée, assure intimité et tranquillité. On y retrouve tout le confort attendu d’une suite bien pensée, à proximité de la salle de bain principale, dotée d’un bain et d’une douche séparés, ainsi que de deux lavabos pour plus de commodité. Un bureau lumineux complète l’aménagement du rez-de-chaussée et peut aisément se transformer en quatrième chambre, selon vos besoins du moment.
Le sous-sol non fini offre un grand potentiel d’aménagement futur. Vous pourrez y créer l’espace de vos rêves : salle de jeux, atelier, rangement ou gym à domicile.
--
En option ($), le *sous-sol aménagé propose deux grandes chambres additionnelles, chacune avec garde-robe, une salle de douche moderne, une salle familiale conviviale et une salle de lavage indépendante bien organisée.
Ce plain-pied au design intemporel séduit par sa simplicité raffinée, ses volumes bien proportionnés et sa grande flexibilité. Il combine le meilleur du style contemporain et du confort quotidien, dans un format compact, pratique et chaleureux — un plan parfait pour ceux qui recherchent une maison facile à vivre, belle et durable.
---
*Si vous souhaitez acheter le plan du sous-sol aménagé, tel que présenté sur la page de ce plan, veuillez sélectionner cette option dans le panier d'achat, dans la section "Sélectionner votre fondation". Si vous ne sélectionnez pas cette option, vous recevrez le sous-sol non fini, sans frais additionnel.
Éléments distinctifs
Plain-pied compact et élégant offrant de 1 à 4 chambres selon vos besoins et votre style de vie.
Entrée accueillante avec banc intégré, garde-robe pratique et une arche au plafond marquant la transition vers le salon.
Chambre principale bien située au rez-de-chaussée pour plus de confort et d’intimité.
Bureau lumineux prévu au rez-de-chaussée, pouvant aussi servir de quatrième chambre selon vos besoins.
Cuisine fonctionnelle avec grand îlot central et garde-manger spacieux, idéale pour recevoir.
Foyer central créant une atmosphère chaleureuse et conviviale.
Salle de bain principale complète, avec bain et douche séparés, ainsi que deux lavabos pour plus de commodité.
Sous-sol non fini, à aménager.
---
*Sous-sol aménagé (optionnel $) :
Deux grandes chambres additionnelles, chacune dotée de sa propre garde-robe.
Salle de douche moderne et pratique.
Salle familiale conviviale, parfaite pour les loisirs ou le cinéma maison.
Salle de lavage indépendante, bien organisée pour un maximum d’efficacité.
---
*Si vous souhaitez acheter le plan du sous-sol aménagé, tel que présenté sur la page de ce plan, veuillez sélectionner cette option dans le panier d'achat, dans la section "Sélectionner votre fondation". Si vous ne sélectionnez pas cette option, vous recevrez le sous-sol non fini, sans frais additionnel.
Notes légales
Ce modèle est protégé par la Loi sur les Droits d'Auteur.
De plus, les illustrations présentées peuvent différer du plan détaillé que vous recevrez, car ces derniers sont régulièrement ajustés afin de respecter les normes de construction en vigueur.
Autres informations utiles sur ce plan
Description complète
Plan de maison plain-pied compact et élégant avec foyer central, grand îlot et 1 à 4 chambres
Découvrez ce superbe plan de maison plain-pied alliant élégance, confort et fonctionnalité. Conçu pour s’adapter à toutes les étapes de la vie, il offre de 1 à 4 chambres selon vos besoins et la composition de votre famille. Que vous soyez un couple, une jeune famille ou des retraités souhaitant un espace sans escalier, ce modèle propose une organisation intérieure intelligente et chaleureuse.
Dès l’entrée, le ton est donné : un banc intégré et une grande garde-robe accueillent vos invités avec praticité, tandis qu’une arche décorative au plafond crée une belle transition vers la pièce de vie principale. Ce détail architectural ajoute une touche de raffinement tout en renforçant la fluidité entre les espaces.
Le salon lumineux, orné d’un foyer central, devient le cœur de la maison — un lieu idéal pour se détendre, recevoir ou simplement profiter de la chaleur d’un feu durant les soirées d’hiver. La cuisine séduit par son grand îlot central et son garde-manger spacieux, parfaits pour cuisiner et partager de bons moments en famille ou entre amis.
La chambre principale, située au rez-de-chaussée, assure intimité et tranquillité. On y retrouve tout le confort attendu d’une suite bien pensée, à proximité de la salle de bain principale, dotée d’un bain et d’une douche séparés, ainsi que de deux lavabos pour plus de commodité. Un bureau lumineux complète l’aménagement du rez-de-chaussée et peut aisément se transformer en quatrième chambre, selon vos besoins du moment.
Le sous-sol non fini offre un grand potentiel d’aménagement futur. Vous pourrez y créer l’espace de vos rêves : salle de jeux, atelier, rangement ou gym à domicile.
--
En option ($), le *sous-sol aménagé propose deux grandes chambres additionnelles, chacune avec garde-robe, une salle de douche moderne, une salle familiale conviviale et une salle de lavage indépendante bien organisée.
Ce plain-pied au design intemporel séduit par sa simplicité raffinée, ses volumes bien proportionnés et sa grande flexibilité. Il combine le meilleur du style contemporain et du confort quotidien, dans un format compact, pratique et chaleureux — un plan parfait pour ceux qui recherchent une maison facile à vivre, belle et durable.
---
*Si vous souhaitez acheter le plan du sous-sol aménagé, tel que présenté sur la page de ce plan, veuillez sélectionner cette option dans le panier d'achat, dans la section "Sélectionner votre fondation". Si vous ne sélectionnez pas cette option, vous recevrez le sous-sol non fini, sans frais additionnel.
Éléments distinctifs
Plain-pied compact et élégant offrant de 1 à 4 chambres selon vos besoins et votre style de vie.
Entrée accueillante avec banc intégré, garde-robe pratique et une arche au plafond marquant la transition vers le salon.
Chambre principale bien située au rez-de-chaussée pour plus de confort et d’intimité.
Bureau lumineux prévu au rez-de-chaussée, pouvant aussi servir de quatrième chambre selon vos besoins.
Cuisine fonctionnelle avec grand îlot central et garde-manger spacieux, idéale pour recevoir.
Foyer central créant une atmosphère chaleureuse et conviviale.
Salle de bain principale complète, avec bain et douche séparés, ainsi que deux lavabos pour plus de commodité.
Sous-sol non fini, à aménager.
---
*Sous-sol aménagé (optionnel $) :
Deux grandes chambres additionnelles, chacune dotée de sa propre garde-robe.
Salle de douche moderne et pratique.
Salle familiale conviviale, parfaite pour les loisirs ou le cinéma maison.
Salle de lavage indépendante, bien organisée pour un maximum d’efficacité.
---
*Si vous souhaitez acheter le plan du sous-sol aménagé, tel que présenté sur la page de ce plan, veuillez sélectionner cette option dans le panier d'achat, dans la section "Sélectionner votre fondation". Si vous ne sélectionnez pas cette option, vous recevrez le sous-sol non fini, sans frais additionnel.






