Plain-pied abordable, sous-sol aménagé (optionel $), 2 à 4 chambres, 2 salles de séjour, 2 sdb.
Version couleur no. 3 - Vue avant
Vue avant - MODÈLE DE BASE
Vue arrière - MODÈLE DE BASE
Version couleur no. 1 - Vue avant
Version couleur no. 2 - Vue avant
Vue par plancher
| Rez-de-chaussée | ||||
| Pièces | Dimensions | Plafond | ||
| Perron | 9'0" x 4'0" | ~ 0'0" | ||
| Chambre à coucher | 10'0" x 9'4" | ~ 8'0" | ||
| Garde-robe | 10'0" x 9'4" | ~ 8'0" | ||
| Chambre à coucher | 12'0" x 12'8" | ~ 8'0" | ||
| Garde-robe | 2'0" x 7'0" | ~ 8'0" | ||
| Rangement | 2'0" x 1'8" | ~ 8'0" | ||
| Salle de bain | 8'0" x 8'0" | ~ 8'0" | ||
| Douche | 3'0" x 5'0" | ~ 0'0" | ||
| Lingerie | 2'8" x 2'6" | ~ 0'0" | ||
| Salle de séjour | 16'8" x 11'8" | ~ 8'0" | ||
| Vestiaire | 3'0" x 4'6" | ~ 8'0" | ||
| Cuisine/salle à manger | 16'0" x 13'0" | ~ 8'0" | ||
| Îlot | 2'0" x 6'4" | ~ 0'0" | ||
| Garde-manger | 1'10" x 2'0" | ~ 0'0" | ||
| Perron | 8'0" x 4'0" | ~ 0'0" | ||
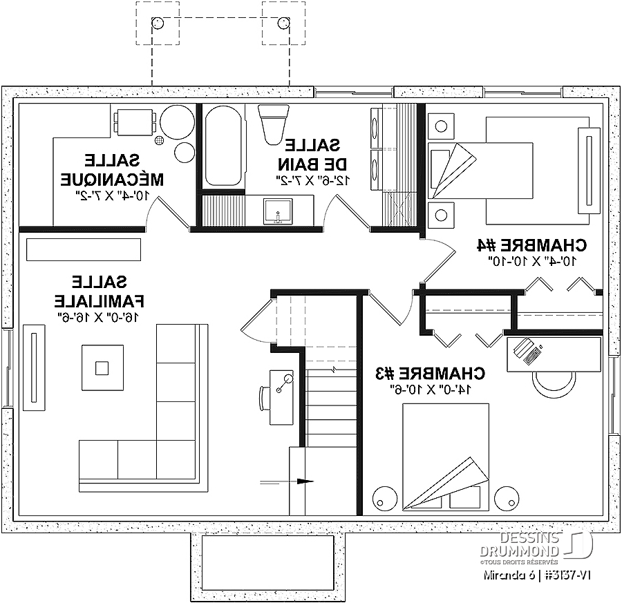
| Sous-sol aménagé (Optionel $) | ||||
| Pièces | Dimensions | Plafond | ||
| Salle familiale | 16'0" x 16'6" | ~ 8'0" | ||
| Pièce de mécanique | 10'4" x 7'2" | ~ 8'0" | ||
| Salle de bain/buanderie | 12'6" x 7'2" | ~ 8'0" | ||
| Lingerie | 1'10" x 2'6" | ~ 0'0" | ||
| Lingerie | 2'0" x 2'0" | ~ 0'0" | ||
| Chambre à coucher | 10'4" x 10'10" | ~ 8'0" | ||
| Garde-robe | 5'0" x 2'0" | ~ 8'0" | ||
| Chambre à coucher | 14'0" x 10'6" | ~ 8'0" | ||
| Garde-robe | 5'0" x 2'0" | ~ 8'0" | ||
| Sous-sol aménageable | ||||
Estimation
| Estimation des coûts approx. de construction | 176,299$ à 251,856$ |
Spécifications générales
| Surface aménagée totale | 936 pi2 |
| Rez-de-chaussée | 936 pi2 |
| Sous-sol aménageable | 936 pi2 |
| Sous-sol aménagé (Optionel $) | 936 pi2 |
| Largeur | 36'0" |
| Profondeur | 26'0" |
| Hauteur dessus fondations au faite | 17'0" |
| Murs extérieurs | 2 X 6 |
| Type de fondation | Sous-sol aménageable |
| Code Entrepreneur | A |
Spécifications sur les pièces
| Chambre(s) | 2, 3, 4 |
| Salle(s) de bain complète(s) | 2 |
| Demi Salle(s) de Bain | - |
| Type de garage | - |
| Espace boni aménageable | - |
| Rangement boni | - |
| Estimation des coûts approx. de construction | 176,299$ à 251,856$ i |
| Surface aménagée totale | 936 pi2 |
| Rez-de-chaussée | 936 pi2 |
| Sous-sol aménagé (Optionel $) | 936 pi2 |
| Sous-sol aménageable | 936 pi2 |
| Largeur | 36'0" |
| Profondeur | 26'0" |
| Hauteur dessus fondations au faite | 17'0" |
| Murs extérieurs | 2 X 6 |
| Type de fondation | Sous-sol aménageable i |
Description
Rez-de-chaussée: Entrée, salle de séjour, salle à manger, cuisine, 2 chambres, salle de douche avec chute à linge. *Sous sol aménagé (optionnel $): 2 chambres, salle de bain avec coin laveuse sécheuse, salle familiale et salle mécanique. *Si vous souhaitez acheter le plan du sous-sol aménagé, veuillez sélectionner cette option dans le panier d'achat, dans la section "Sélectionner votre fondation". Si vous ne sélectionnez pas cette option, vous recevrez le sous-sol non fini, sans frais additionnel.
Autres informations utiles sur ce plan
Maison économique avec option de sous-sol aménagé ($) permettant 4 chambres, 2 salles de bain et 2 salles familiales!
Le plan de maison MIRANDA 6 (#3137-V1), tout comme son nom l'indique, fait parti d'une collection regroupant 6 modèles au look similaire, mais aux planchers différents. Cette nouvelle version propose donc un sous-sol (optionel $) entièrement aménagé, donnant ainsi à une grande famille tout l'espace requis pour que chacun y trouve son intimité!
EN VRAC:
Une garde-robe de type walk-in est aménagée à l'entrée avant de la maison. Le salon est ouvert sur la salle à manger et la cuisine. Cette dernière propose un îlot de bon format. La salle de bain du rez-de-chaussée offre une grande douche de 3' x 5', deux lavabos ainsi qu'une chute à linge vers la salle de lavage qui est aménagée au sous-sol. 2 chambres complètent ce niveau.
*Sous sol aménagé (optionnel $):
Le sous-sol aménagé comporte 2 chambres dont l'une est de grand format (14, x 10'6''). De plus, une grande salle familiale, une salle de bain avec coin laveuse sécheuse ainsi que la salle mécanique se retrouvent à ce niveau.
*Si vous souhaitez acheter le plan du sous-sol aménagé, veuillez sélectionner cette option dans le panier d'achat, dans la section "Sélectionner votre fondation". Si vous ne sélectionnez pas cette option, vous recevrez le sous-sol non fini, sans frais additionnel.
Cette maison fera le bonheur des grandes familles qui souhaitent du confort à prix abordable!
Éléments distinctifs
Plan de plain-pied économique de style farmhouse avec sous-sol aménagé optionel ($).
4 chambres au total dont 2 au *sous-sol aménagé.
1 à 2 salles de bain complète.
Aire ouverte à la cuisine, salle à manger et salon.
Grande douche et chute à linge à la salle de bain du rez-de-chaussée.
Total de 2 salles familiales, selon aménagement du sous-sol.
*Si vous souhaitez acheter le plan du sous-sol aménagé, veuillez sélectionner cette option dans le panier d'achat, dans la section "Sélectionner votre fondation". Si vous ne sélectionnez pas cette option, vous recevrez le sous-sol non fini, sans frais additionnel.
Notes légales
Ce modèle est protégé par la Loi sur les Droits d'Auteur.
De plus, les illustrations présentées peuvent différer du plan détaillé que vous recevrez, car ces derniers sont régulièrement ajustés afin de respecter les normes de construction en vigueur.
Autres informations utiles sur ce plan
Description complète
Maison économique avec option de sous-sol aménagé ($) permettant 4 chambres, 2 salles de bain et 2 salles familiales!
Le plan de maison MIRANDA 6 (#3137-V1), tout comme son nom l'indique, fait parti d'une collection regroupant 6 modèles au look similaire, mais aux planchers différents. Cette nouvelle version propose donc un sous-sol (optionel $) entièrement aménagé, donnant ainsi à une grande famille tout l'espace requis pour que chacun y trouve son intimité!
EN VRAC:
Une garde-robe de type walk-in est aménagée à l'entrée avant de la maison. Le salon est ouvert sur la salle à manger et la cuisine. Cette dernière propose un îlot de bon format. La salle de bain du rez-de-chaussée offre une grande douche de 3' x 5', deux lavabos ainsi qu'une chute à linge vers la salle de lavage qui est aménagée au sous-sol. 2 chambres complètent ce niveau.
*Sous sol aménagé (optionnel $):
Le sous-sol aménagé comporte 2 chambres dont l'une est de grand format (14, x 10'6''). De plus, une grande salle familiale, une salle de bain avec coin laveuse sécheuse ainsi que la salle mécanique se retrouvent à ce niveau.
*Si vous souhaitez acheter le plan du sous-sol aménagé, veuillez sélectionner cette option dans le panier d'achat, dans la section "Sélectionner votre fondation". Si vous ne sélectionnez pas cette option, vous recevrez le sous-sol non fini, sans frais additionnel.
Cette maison fera le bonheur des grandes familles qui souhaitent du confort à prix abordable!
Éléments distinctifs
Plan de plain-pied économique de style farmhouse avec sous-sol aménagé optionel ($).
4 chambres au total dont 2 au *sous-sol aménagé.
1 à 2 salles de bain complète.
Aire ouverte à la cuisine, salle à manger et salon.
Grande douche et chute à linge à la salle de bain du rez-de-chaussée.
Total de 2 salles familiales, selon aménagement du sous-sol.
*Si vous souhaitez acheter le plan du sous-sol aménagé, veuillez sélectionner cette option dans le panier d'achat, dans la section "Sélectionner votre fondation". Si vous ne sélectionnez pas cette option, vous recevrez le sous-sol non fini, sans frais additionnel.







