Plan de maison moderne compacte avec aire ouverte, suite à l’étage et grande terrasse
Alternative
Vue avant - MODÈLE DE BASE
Vue avant - MODÈLE DE BASE
Élévation arrière
Alternative
Vue intérieure
Version couleur no. 3 - Vue avant
Version couleur no. 4 - Vue avant
Version couleur no. 5 - Vue avant
Vue par plancher
| Rez-de-chaussée | ||||
| Pièces | Dimensions | Plafond | ||
| Cuisine/dinette | 13'4" x 9'0" | ~ 8'0" | ||
| Salle de bain | 5'0" x 9'0" | ~ 8'0" | ||
| Entrée ou vestibule | 4'4" x 6'4" | ~ 8'0" | ||
| Garde-robe | 2'0" x 4'6" | ~ 8'0" | ||
| Salle de séjour | 11'10" x 10'8" | ~ 8'0" | ||
| Chambre à coucher | 9'8" x 10'8" | ~ 8'0" | ||
| Garde-robe | 6'6" x 2'0" | ~ 8'0" | ||
| Garde-robe | 2'0" x 1'4" | ~ 8'0" | ||
| Coin laveuse/sécheuse | 6'0" x 5'2" | ~ 8'0" | ||
| Perron abrité | 11'4" x 11'4" | ~ 0'0" | ||
| Étage | ||||
| Pièces | Dimensions | Plafond | ||
| Suite des maîtres | 12'10" x 11'6" | ~ 8'0" | ||
| Garde-robe | 2'0" x 5'6" | ~ 8'0" | ||
| Salle de douche | 5'4" x 6'4" | ~ 8'0" | ||
| Terrasse | 16'0" x 21'0" | ~ 0'0" | ||
| Sous-sol aménageable (Optionel $) | ||||
| Rez-de-chaussée (Optionel $) | ||||
Estimation
| Estimation des coûts approx. de construction | 189,529$ à 270,756$ |
Spécifications générales
| Surface aménagée totale | 924 pi2 |
| Rez-de-chaussée | 630 pi2 |
| Étage | 294 pi2 |
| Rez-de-chaussée (Optionel $) | 630 pi2 |
| Sous-sol aménageable (Optionel $) | 630 pi2 |
| Largeur | 30'0" |
| Profondeur | 21'0" |
| Hauteur dessus fondations au faite | 20'11" |
| Murs extérieurs | 2 X 6 |
| Type de fondation | Dalle flottante |
| Code Entrepreneur | A |
Spécifications sur les pièces
| Chambre(s) | 1, 2 |
| Salle(s) de bain complète(s) | 2 |
| Demi Salle(s) de Bain | - |
| Type de garage | - |
| Espace boni aménageable | - |
| Rangement boni | - |
| Estimation des coûts approx. de construction | 189,529$ à 270,756$ i |
| Surface aménagée totale | 924 pi2 |
| Rez-de-chaussée | 630 pi2 |
| Étage | 294 pi2 |
| Sous-sol aménageable (Optionel $) | 630 pi2 |
| Rez-de-chaussée (Optionel $) | 630 pi2 |
| Largeur | 30'0" |
| Profondeur | 21'0" |
| Hauteur dessus fondations au faite | 20'11" |
| Murs extérieurs | 2 X 6 |
| Type de fondation | Dalle flottante i |
Vue avant
Note: Ces photos représentent une version modifiée, non-disponible à la vente, du plan d'origine duquel elles proviennent. Veuillez consulter l'un de nos 31 bureaux si vous souhaitez obtenir des modifications au plan d'origine de ce modèle.
Vue avant
Note: Ces photos représentent une version modifiée, non-disponible à la vente, du plan d'origine duquel elles proviennent. Veuillez consulter l'un de nos 31 bureaux si vous souhaitez obtenir des modifications au plan d'origine de ce modèle.
Vue avant
Note: Ces photos représentent une version modifiée, non-disponible à la vente, du plan d'origine duquel elles proviennent. Veuillez consulter l'un de nos 31 bureaux si vous souhaitez obtenir des modifications au plan d'origine de ce modèle.
Vue avant
Note: Ces photos représentent une version modifiée, non-disponible à la vente, du plan d'origine duquel elles proviennent. Veuillez consulter l'un de nos 31 bureaux si vous souhaitez obtenir des modifications au plan d'origine de ce modèle.
Vue arrière
Note: Ces photos représentent une version modifiée, non-disponible à la vente, du plan d'origine duquel elles proviennent. Veuillez consulter l'un de nos 31 bureaux si vous souhaitez obtenir des modifications au plan d'origine de ce modèle.
Vue arrière
Note: Ces photos représentent une version modifiée, non-disponible à la vente, du plan d'origine duquel elles proviennent. Veuillez consulter l'un de nos 31 bureaux si vous souhaitez obtenir des modifications au plan d'origine de ce modèle.
Salle de bain
Note: Ces photos représentent une version modifiée, non-disponible à la vente, du plan d'origine duquel elles proviennent. Veuillez consulter l'un de nos 31 bureaux si vous souhaitez obtenir des modifications au plan d'origine de ce modèle.
Cuisine
Note: Ces photos représentent une version modifiée, non-disponible à la vente, du plan d'origine duquel elles proviennent. Veuillez consulter l'un de nos 31 bureaux si vous souhaitez obtenir des modifications au plan d'origine de ce modèle.
Cuisine
Note: Ces photos représentent une version modifiée, non-disponible à la vente, du plan d'origine duquel elles proviennent. Veuillez consulter l'un de nos 31 bureaux si vous souhaitez obtenir des modifications au plan d'origine de ce modèle.
Chambre
Note: Ces photos représentent une version modifiée, non-disponible à la vente, du plan d'origine duquel elles proviennent. Veuillez consulter l'un de nos 31 bureaux si vous souhaitez obtenir des modifications au plan d'origine de ce modèle.
Chambre
Note: Ces photos représentent une version modifiée, non-disponible à la vente, du plan d'origine duquel elles proviennent. Veuillez consulter l'un de nos 31 bureaux si vous souhaitez obtenir des modifications au plan d'origine de ce modèle.
Chambre
Note: Ces photos représentent une version modifiée, non-disponible à la vente, du plan d'origine duquel elles proviennent. Veuillez consulter l'un de nos 31 bureaux si vous souhaitez obtenir des modifications au plan d'origine de ce modèle.
Chambre
Note: Ces photos représentent une version modifiée, non-disponible à la vente, du plan d'origine duquel elles proviennent. Veuillez consulter l'un de nos 31 bureaux si vous souhaitez obtenir des modifications au plan d'origine de ce modèle.
Salon
Note: Ces photos représentent une version modifiée, non-disponible à la vente, du plan d'origine duquel elles proviennent. Veuillez consulter l'un de nos 31 bureaux si vous souhaitez obtenir des modifications au plan d'origine de ce modèle.
Salon
Note: Ces photos représentent une version modifiée, non-disponible à la vente, du plan d'origine duquel elles proviennent. Veuillez consulter l'un de nos 31 bureaux si vous souhaitez obtenir des modifications au plan d'origine de ce modèle.
Salle à manger
Note: Ces photos représentent une version modifiée, non-disponible à la vente, du plan d'origine duquel elles proviennent. Veuillez consulter l'un de nos 31 bureaux si vous souhaitez obtenir des modifications au plan d'origine de ce modèle.
Entrée ou vestibule
Note: Ces photos représentent une version modifiée, non-disponible à la vente, du plan d'origine duquel elles proviennent. Veuillez consulter l'un de nos 31 bureaux si vous souhaitez obtenir des modifications au plan d'origine de ce modèle.
Entrée ou vestibule
Note: Ces photos représentent une version modifiée, non-disponible à la vente, du plan d'origine duquel elles proviennent. Veuillez consulter l'un de nos 31 bureaux si vous souhaitez obtenir des modifications au plan d'origine de ce modèle.
Entrée ou vestibule
Note: Ces photos représentent une version modifiée, non-disponible à la vente, du plan d'origine duquel elles proviennent. Veuillez consulter l'un de nos 31 bureaux si vous souhaitez obtenir des modifications au plan d'origine de ce modèle.
Secteur activité
Note: Ces photos représentent une version modifiée, non-disponible à la vente, du plan d'origine duquel elles proviennent. Veuillez consulter l'un de nos 31 bureaux si vous souhaitez obtenir des modifications au plan d'origine de ce modèle.
Description
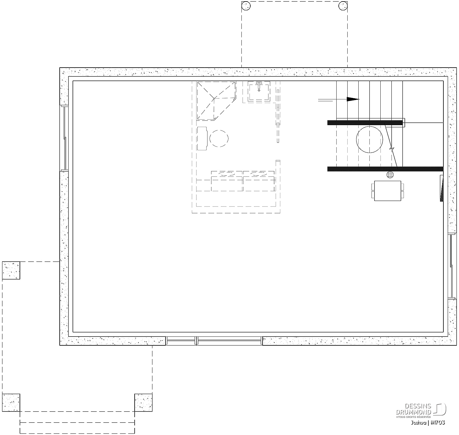
Rez-de-chaussée: Entrée avec garde-robe, cuisine, dinette et salle familiale, chambre #2, coin buanderie, salle de bain complète. Étage: Chambre des maîtres avec salle de douche, accès à la terrasse par porte patio. Grande terrasse à l'étage, incluse dans l'estimation du coût de construction. Fondation incluse au plan: *dalle flottante. --- *Sous-sol aménageable (optionnel $): Si vous souhaitez acheter l’option du plan de sous-sol aménageable (le plan de la maison vous sera livré avec un plan de sous-sol non fini), veuillez sélectionner cette option dans le panier d'achat, dans la section "Sélectionner votre fondation". Si vous ne sélectionnez pas cette option, vous recevrez une dalle flottante comme fondation, sans frais additionnel.
Autres informations utiles sur ce plan
Plan de maison moderne compacte et lumineuse au design contemporain et chaleureux
Cette maison moderne séduit dès le premier regard par son design moderne et équilibré, où la simplicité des lignes se marie à la chaleur des matériaux. Compacte, mais pensée dans les moindres détails, elle offre un style architectural intemporel qui allie esthétisme, fonctionnalité et confort.
Sa façade élégante combine la pierre naturelle, les colonnes décoratives et des garnitures soignées, créant un cachet unique qui s’harmonise aussi bien en milieu urbain qu’en campagne. À l’avant, une galerie couverte accueillante invite à profiter des saisons tout en ajoutant un charme indéniable à l’extérieur.
Dès l’entrée, le vestibule fermé avec sa grande garde-robe permet un rangement pratique et bien organisé, un détail essentiel pour un quotidien sans encombre. Cet espace mène vers un vaste espace familial à aire ouverte, où la lumière naturelle occupe une place de choix grâce à une fenestration abondante. Le salon, la salle à manger et la cuisine s’enchaînent harmonieusement, créant un environnement convivial et aéré.
La cuisine fonctionnelle séduit par sa disposition efficace et sa porte-patio donnant sur la cour arrière, parfaite pour accéder à la terrasse ou au jardin. Tout près, un coin salle de lavage discret accueille laveuse et sécheuse superposées, maximisant ainsi l’espace disponible.
Au rez-de-chaussée se trouve également une chambre polyvalente pouvant servir de bureau à domicile, de chambre d’amis ou d’espace pour un adolescent, selon les besoins des occupants. Une salle de bain complète vient compléter cet étage, alliant praticité et design contemporain.
À l’étage, la suite principale s’impose comme un véritable refuge privé. Occupant tout le niveau, elle propose une salle de douche élégante et un accès direct à une grande terrasse extérieure grâce à une porte-patio. Cet espace extérieur devient rapidement un lieu de détente privilégié, parfait pour un café matinal ou un moment de lecture au soleil.
Reposant sur une fondation de type dalle flottante, ce plan est idéal pour les terrains sans sous-sol ou pour ceux qui recherchent une maison compacte, simple à entretenir et écoénergétique.
Alliant style contemporain, luminosité et confort intelligent, cette maison de petite dimension offre tout ce qu’il faut pour vivre pleinement, sans compromis sur le charme ni sur la fonctionnalité.
Éléments distinctifs
Maison contemporaine compacte et lumineuse.
Design aux lignes épurées et aux matériaux chaleureux combinant pierre, colonnes décoratives et garnitures soignées.
Galerie couverte à l’avant, idéale pour profiter des saisons et rehausser le charme de la façade.
Entrée pratique avec vestibule fermé et grande garde-robe pour un rangement optimal.
Espace familial à aire ouverte, baigné de lumière naturelle grâce à une fenestration abondante.
Cuisine fonctionnelle avec porte-patio donnant sur l’extérieur et coin buanderie adjacent, prévu pour laveuse/sécheuse superposées.
Chambre secondaire ou bureau polyvalent au rez-de-chaussée, accompagné d’une salle de bain complète.
Suite principale à l’étage, occupant tout l’espace, avec salle de douche privée et accès direct à une grande terrasse via porte-patio.
Fondation incluse au plan: *dalle flottante.
---
*Sous-sol aménageable (optionnel $):
Si vous souhaitez acheter l’option du plan de sous-sol aménageable (le plan de la maison vous sera livré avec un plan de sous-sol non fini), veuillez sélectionner cette option dans le panier d'achat, dans la section "Sélectionner votre fondation". Si vous ne sélectionnez pas cette option, vous recevrez une dalle flottante comme fondation, sans frais additionnel.
Notes légales
Ce modèle est protégé par la Loi sur les Droits d'Auteur.
De plus, les illustrations présentées peuvent différer du plan détaillé que vous recevrez, car ces derniers sont régulièrement ajustés afin de respecter les normes de construction en vigueur.
Autres informations utiles sur ce plan
Description complète
Plan de maison moderne compacte et lumineuse au design contemporain et chaleureux
Cette maison moderne séduit dès le premier regard par son design moderne et équilibré, où la simplicité des lignes se marie à la chaleur des matériaux. Compacte, mais pensée dans les moindres détails, elle offre un style architectural intemporel qui allie esthétisme, fonctionnalité et confort.
Sa façade élégante combine la pierre naturelle, les colonnes décoratives et des garnitures soignées, créant un cachet unique qui s’harmonise aussi bien en milieu urbain qu’en campagne. À l’avant, une galerie couverte accueillante invite à profiter des saisons tout en ajoutant un charme indéniable à l’extérieur.
Dès l’entrée, le vestibule fermé avec sa grande garde-robe permet un rangement pratique et bien organisé, un détail essentiel pour un quotidien sans encombre. Cet espace mène vers un vaste espace familial à aire ouverte, où la lumière naturelle occupe une place de choix grâce à une fenestration abondante. Le salon, la salle à manger et la cuisine s’enchaînent harmonieusement, créant un environnement convivial et aéré.
La cuisine fonctionnelle séduit par sa disposition efficace et sa porte-patio donnant sur la cour arrière, parfaite pour accéder à la terrasse ou au jardin. Tout près, un coin salle de lavage discret accueille laveuse et sécheuse superposées, maximisant ainsi l’espace disponible.
Au rez-de-chaussée se trouve également une chambre polyvalente pouvant servir de bureau à domicile, de chambre d’amis ou d’espace pour un adolescent, selon les besoins des occupants. Une salle de bain complète vient compléter cet étage, alliant praticité et design contemporain.
À l’étage, la suite principale s’impose comme un véritable refuge privé. Occupant tout le niveau, elle propose une salle de douche élégante et un accès direct à une grande terrasse extérieure grâce à une porte-patio. Cet espace extérieur devient rapidement un lieu de détente privilégié, parfait pour un café matinal ou un moment de lecture au soleil.
Reposant sur une fondation de type dalle flottante, ce plan est idéal pour les terrains sans sous-sol ou pour ceux qui recherchent une maison compacte, simple à entretenir et écoénergétique.
Alliant style contemporain, luminosité et confort intelligent, cette maison de petite dimension offre tout ce qu’il faut pour vivre pleinement, sans compromis sur le charme ni sur la fonctionnalité.
Éléments distinctifs
Maison contemporaine compacte et lumineuse.
Design aux lignes épurées et aux matériaux chaleureux combinant pierre, colonnes décoratives et garnitures soignées.
Galerie couverte à l’avant, idéale pour profiter des saisons et rehausser le charme de la façade.
Entrée pratique avec vestibule fermé et grande garde-robe pour un rangement optimal.
Espace familial à aire ouverte, baigné de lumière naturelle grâce à une fenestration abondante.
Cuisine fonctionnelle avec porte-patio donnant sur l’extérieur et coin buanderie adjacent, prévu pour laveuse/sécheuse superposées.
Chambre secondaire ou bureau polyvalent au rez-de-chaussée, accompagné d’une salle de bain complète.
Suite principale à l’étage, occupant tout l’espace, avec salle de douche privée et accès direct à une grande terrasse via porte-patio.
Fondation incluse au plan: *dalle flottante.
---
*Sous-sol aménageable (optionnel $):
Si vous souhaitez acheter l’option du plan de sous-sol aménageable (le plan de la maison vous sera livré avec un plan de sous-sol non fini), veuillez sélectionner cette option dans le panier d'achat, dans la section "Sélectionner votre fondation". Si vous ne sélectionnez pas cette option, vous recevrez une dalle flottante comme fondation, sans frais additionnel.































