Boho (3976)

Plan de maison moderne avec sous-sol aménagé pour un total de 4 chambres, 2 salons et 2.5 salles de bain

Chambres

3, 4

Salle(s) de bain

2

Surface

855 pi2

Estimation ($)

192,032$ à 274,332$

  • Vue avant - MODÈLE DE BASE - Plan de maison moderne avec sous-sol aménagé pour un total de 4 chambres, 2 salons et 2.5 salles de bain - Boho
  • Élévation arrière - Boho

Vue avant - MODÈLE DE BASE

Élévation arrière

Vignette Vue avant - MODÈLE DE BASE - 3976
Vignette Élévation arrière - 3976

Vue par plancher

  • Rez-de-chaussée

    Rez-de-chaussée - Plan de maison moderne avec sous-sol aménagé pour un total de 4 chambres, 2 salons et 2.5 salles de bain - Boho
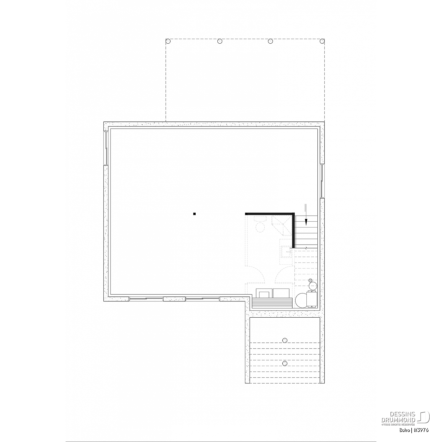
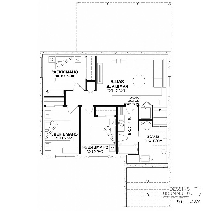
  • Sous-sol aménageable

    Sous-sol aménageable - Plan de maison moderne avec sous-sol aménagé pour un total de 4 chambres, 2 salons et 2.5 salles de bain - Boho
  • Sous-sol aménagé (Optionel $)

    Sous-sol aménagé (Optionel $) - Plan de maison moderne avec sous-sol aménagé pour un total de 4 chambres, 2 salons et 2.5 salles de bain - Boho
Vignette Rez-de-chaussée - 3976
Vignette Sous-sol aménageable - 3976
Vignette Sous-sol aménagé (Optionel $) - 3976

Consulter le détail des pièces pour chaque plancher

Consulter le détail des pièces pour chaque plancher

Rez-de-chaussée
Pièces Dimensions Plafond
Perron abrité 9'2" x 4'0" ~ 10'0"
Entrée ou vestibule 4'0" x 12'4" ~ 8'0"
Garde-robe 5'1" x 2'10" ~ 8'0"
Coin toilette/lavabo 2'10" x 6'9" ~ 8'0"
Suite des maîtres 9'2" x 10'4" ~ 8'0"
Garde-robe 5'2" x 2'0" ~ 8'0"
Salle de bain complète 7'7" x 10'4" ~ 8'0"
Douche 5'0" x 2'8" ~ 0'0"
Lingerie 2'0" x 1'8" ~ 0'0"
Cuisine 8'6" x 14'0" ~ 10'0"
Îlot 8'6" x 3'0" ~ 0'0"
Salle à manger 10'8" x 14'0" ~ 13'3"
Salle de séjour 11'6" x 14'0" ~ 10'0"
Terrasse 23'0" x 12'0" ~ 0'0"
Sous-sol aménagé (Optionel $)
Pièces Dimensions Plafond
Salle familiale 17'2" x 12'2" ~ 8'0"
Garde-robe 2'0" x 2'0" ~ 8'0"
Chambre à coucher 10'2" x 9'10" ~ 8'0"
Garde-robe 6'0" x 2'0" ~ 8'0"
Chambre à coucher 8'8" x 11'6" ~ 8'0"
Garde-robe 5'0" x 2'0" ~ 8'0"
Chambre à coucher 8'8" x 9'2" ~ 8'0"
Garde-robe 5'0" x 2'0" ~ 8'0"
Salle de bain 5'0" x 11'6" ~ 8'0"
Lingerie 2'0" x 1'6" ~ 0'0"
Pièce de mécanique 6'8" x 10'0" ~ 8'0"
Coin laveuse/sécheuse 3'0" x 3'0" ~ 8'0"
Sous-sol aménageable

Estimation

Estimation des coûts approx. de construction 192,032$ à 274,332$

Spécifications générales

Surface aménagée totale 855 pi2
Rez-de-chaussée 855 pi2
Sous-sol aménageable 855 pi2
Sous-sol aménagé (Optionel $) 855 pi2
Largeur 32'0"
Profondeur 28'0"
Hauteur dessus fondations au faite 21'10"
Murs extérieurs 2 X 6
Type de fondation Sous-sol aménageable
Code Entrepreneur A

Spécifications sur les pièces

Chambre(s) 3, 4
Salle(s) de bain complète(s) 2
Demi Salle(s) de Bain 1
Type de garage -
Espace boni aménageable -
Rangement boni -

Estimation ($)

Estimation des coûts approx. de construction 192,032$ à 274,332$ i

Spécifications générales

Surface aménagée totale 855 pi2
Rez-de-chaussée 855 pi2
Sous-sol aménagé (Optionel $) 855 pi2
Sous-sol aménageable 855 pi2
Largeur 32'0"
Profondeur 28'0"
Hauteur dessus fondations au faite 21'10"
Murs extérieurs 2 X 6
Type de fondation Sous-sol aménageable i

Spécifications sur les pièces

Chambre(s) 3, 4
Salle(s) de bain complète(s) 2
Demi Salle(s) de Bain 1
Type de garage -
Espace boni aménageable - i
Rangement boni - i
  • Photo Salle à manger - Boho
  • Photo Vue avant - Boho
  • Photo Vue avant - Boho
  • Photo Vue arrière - Boho
  • Photo Salle de bain - Boho
  • Photo Salle de bain - Boho
  • Photo Cuisine - Boho
  • Photo Chambre - Boho
  • Photo Entrée ou vestibule - Boho
  • Photo Salle de séjour - Boho

Salle à manger
Note: Ces photos représentent une version modifiée, non-disponible à la vente, du plan d'origine duquel elles proviennent. Veuillez consulter l'un de nos 31 bureaux si vous souhaitez obtenir des modifications au plan d'origine de ce modèle.

Vue avant
Note: Ces photos représentent une version modifiée, non-disponible à la vente, du plan d'origine duquel elles proviennent. Veuillez consulter l'un de nos 31 bureaux si vous souhaitez obtenir des modifications au plan d'origine de ce modèle.

Vue avant
Note: Ces photos représentent une version modifiée, non-disponible à la vente, du plan d'origine duquel elles proviennent. Veuillez consulter l'un de nos 31 bureaux si vous souhaitez obtenir des modifications au plan d'origine de ce modèle.

Vue arrière
Note: Ces photos représentent une version modifiée, non-disponible à la vente, du plan d'origine duquel elles proviennent. Veuillez consulter l'un de nos 31 bureaux si vous souhaitez obtenir des modifications au plan d'origine de ce modèle.

Salle de bain
Note: Ces photos représentent une version modifiée, non-disponible à la vente, du plan d'origine duquel elles proviennent. Veuillez consulter l'un de nos 31 bureaux si vous souhaitez obtenir des modifications au plan d'origine de ce modèle.

Salle de bain
Note: Ces photos représentent une version modifiée, non-disponible à la vente, du plan d'origine duquel elles proviennent. Veuillez consulter l'un de nos 31 bureaux si vous souhaitez obtenir des modifications au plan d'origine de ce modèle.

Cuisine
Note: Ces photos représentent une version modifiée, non-disponible à la vente, du plan d'origine duquel elles proviennent. Veuillez consulter l'un de nos 31 bureaux si vous souhaitez obtenir des modifications au plan d'origine de ce modèle.

Chambre
Note: Ces photos représentent une version modifiée, non-disponible à la vente, du plan d'origine duquel elles proviennent. Veuillez consulter l'un de nos 31 bureaux si vous souhaitez obtenir des modifications au plan d'origine de ce modèle.

Entrée ou vestibule
Note: Ces photos représentent une version modifiée, non-disponible à la vente, du plan d'origine duquel elles proviennent. Veuillez consulter l'un de nos 31 bureaux si vous souhaitez obtenir des modifications au plan d'origine de ce modèle.

Salle de séjour
Note: Ces photos représentent une version modifiée, non-disponible à la vente, du plan d'origine duquel elles proviennent. Veuillez consulter l'un de nos 31 bureaux si vous souhaitez obtenir des modifications au plan d'origine de ce modèle.

Vignette photo Salle à manger - Plan 3976
Vignette photo Vue avant - Plan 3976
Vignette photo Vue avant - Plan 3976
Vignette photo Vue arrière - Plan 3976
Vignette photo Salle de bain - Plan 3976
Vignette photo Salle de bain - Plan 3976
Vignette photo Cuisine - Plan 3976
Vignette photo Chambre - Plan 3976
Vignette photo Entrée ou vestibule - Plan 3976
Vignette photo Salle de séjour - Plan 3976

Acheter ce plan

À partir de : 1275$

Description

Rez-de-chaussée: Entrée, salle d'eau, suite parentale, cuisine, salle à manger et salle de séjour. Sous-sol aménagé: 3 chambres additionnelles, salle familiale, salle de bain, espace mécanique et coin laveuse-sécheuse. Autres types de fondation disponibles. *coûts de construction excluant le balcon arrière.

Autres informations utiles sur ce plan

Maison lumineuse et aménagée judicieusement pour une famille de 3 enfants!

.

Éléments distinctifs

Maison moderne très lumineuse, de petit format, avec sous-sol entièrement aménagé pour un total de 4 chambres.
Perron avant abrité.
Entrée avant avec garde-robe et salle d'eau.
Suite des parents, avec salle de bain privée, localisée au rez-de-chaussée. La salle de bain des parents propose un bain et une douche séparés.
Plafond cathédrale au secteur cuisine, salle à manger et salle de séjour.
Fenêtres originales, de grand format, dans la cuisine et aussi dans la salle de séjour.
Cuisine avec coin bar à café et comptoir lunch.
Salle à manger lumineuse avec portes patio doubles.
Salle de séjour avec foyer au gaz et petit coin pour présenter des bûches décoratives.
3 chambres du sous-sol sont de bon format et se partagent une salle familiale et une salle de bain.
Coin laveuse/sécheuse et salle mécanique sont au sous-sol.

Notes légales

Ce modèle est protégé par la Loi sur les Droits d'Auteur.

De plus, les illustrations présentées peuvent différer du plan détaillé que vous recevrez, car ces derniers sont régulièrement ajustés afin de respecter les normes de construction en vigueur.

Autres informations utiles sur ce plan

Description complète

Maison lumineuse et aménagée judicieusement pour une famille de 3 enfants!

.

Éléments distinctifs

Maison moderne très lumineuse, de petit format, avec sous-sol entièrement aménagé pour un total de 4 chambres.
Perron avant abrité.
Entrée avant avec garde-robe et salle d'eau.
Suite des parents, avec salle de bain privée, localisée au rez-de-chaussée. La salle de bain des parents propose un bain et une douche séparés.
Plafond cathédrale au secteur cuisine, salle à manger et salle de séjour.
Fenêtres originales, de grand format, dans la cuisine et aussi dans la salle de séjour.
Cuisine avec coin bar à café et comptoir lunch.
Salle à manger lumineuse avec portes patio doubles.
Salle de séjour avec foyer au gaz et petit coin pour présenter des bûches décoratives.
3 chambres du sous-sol sont de bon format et se partagent une salle familiale et une salle de bain.
Coin laveuse/sécheuse et salle mécanique sont au sous-sol.

Notes légales

Ce modèle est protégé par la Loi sur les Droits d'Auteur.

De plus, les illustrations présentées peuvent différer du plan détaillé que vous recevrez, car ces derniers sont régulièrement ajustés afin de respecter les normes de construction en vigueur.