Plan de maison avec planchers bien pensés: garde-manger, vestiaire, bureau, foyer, aire ouverte
Vue avant - MODÈLE DE BASE
Vue avant - MODÈLE DE BASE
Vue avant - MODÈLE DE BASE
Vue avant - MODÈLE DE BASE
Élévation arrière
Vue intérieure
Vue intérieure
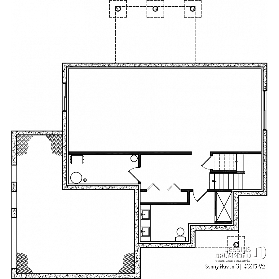
| Sous-sol aménageable | ||||
| Rez-de-chaussée | ||||
| Pièces | Dimensions | Plafond | ||
| Entrée ou vestibule | 7'8" x 5'10" | ~ 18'6" | ||
| Perron abrité | 8'0" x 3'0" | ~ 8'8" | ||
| Garage | 20'8" x 14'8" | ~ 10'4" | ||
| Bureau à domicile | 8'0" x 9'4" | ~ 10'4" | ||
| Vestiaire | 9'0" x 7'8" | ~ 9'0" | ||
| Salle de bain | 3'0" x 7'9" | ~ 9'0" | ||
| Salle de lavage | 7'8" x 7'9" | ~ 9'0" | ||
| Salle de séjour | 13'0" x 15'2" | ~ 9'0" | ||
| Salle à manger | 12'8" x 14'11" | ~ 9'0" | ||
| Cuisine | 9'4" x 13'4" | ~ 9'0" | ||
| Garde-manger | 10'4" x 7'4" | ~ 9'0" | ||
| Patio | 14'0" x 10'0" | ~ 0'0" | ||
| Étage | ||||
| Pièces | Dimensions | Plafond | ||
| Chambre à coucher | 9'0" x 12'4" | ~ 8'0" | ||
| Walk-in | 6'5" x 4'0" | ~ 8'0" | ||
| Chambre à coucher | 9'0" x 13'0" | ~ 8'0" | ||
| Walk-in | 3'0" x 7'0" | ~ 8'0" | ||
| Salle de bain complète | 5'5" x 14'10" | ~ 8'0" | ||
| Lingerie | 3'7" x 2'0" | ~ 0'0" | ||
| Rangement | 6'7" x 5'0" | ~ 8'0" | ||
| Suite des maîtres | 13'0" x 15'0" | ~ 8'0" | ||
| Salle de bain complète | 11'10" x 7'8" | ~ 8'0" | ||
| Douche | 3'0" x 5'0" | ~ 0'0" | ||
| Lingerie | 2'4" x 2'0" | ~ 0'0" | ||
Estimation
| Estimation des coûts approx. de construction | 461,936$ à 659,908$ |
Spécifications générales
| Surface aménagée totale | 1990 pi2 |
| Rez-de-chaussée | 1065 pi2 |
| Étage | 925 pi2 |
| Sous-sol aménageable | 972 pi2 |
| Largeur | 45'0" |
| Profondeur | 38'0" |
| Hauteur dessus fondations au faite | 33'6" |
| Murs extérieurs | 2 X 6 |
| Type de fondation | Sous-sol aménageable |
| Code Entrepreneur | E |
Spécifications sur les pièces
| Chambre(s) | 3 |
| Salle(s) de bain complète(s) | 2 |
| Demi Salle(s) de Bain | 1 |
| Type de garage | 1 voiture (345 pi2) |
| Espace boni aménageable | - |
| Rangement boni | - |
| Estimation des coûts approx. de construction | 461,936$ à 659,908$ i |
| Surface aménagée totale | 1990 pi2 |
| Sous-sol aménageable | 972 pi2 |
| Rez-de-chaussée | 1065 pi2 |
| Étage | 925 pi2 |
| Largeur | 45'0" |
| Profondeur | 38'0" |
| Hauteur dessus fondations au faite | 33'6" |
| Murs extérieurs | 2 X 6 |
| Type de fondation | Sous-sol aménageable i |
Vue avant
Note: Ces photos représentent une version modifiée, non-disponible à la vente, du plan d'origine duquel elles proviennent. Veuillez consulter l'un de nos 31 bureaux si vous souhaitez obtenir des modifications au plan d'origine de ce modèle.
Vue avant
Note: Ces photos représentent une version modifiée, non-disponible à la vente, du plan d'origine duquel elles proviennent. Veuillez consulter l'un de nos 31 bureaux si vous souhaitez obtenir des modifications au plan d'origine de ce modèle.
Secteur activité
Note: Ces photos représentent une version modifiée, non-disponible à la vente, du plan d'origine duquel elles proviennent. Veuillez consulter l'un de nos 31 bureaux si vous souhaitez obtenir des modifications au plan d'origine de ce modèle.
Secteur activité
Note: Ces photos représentent une version modifiée, non-disponible à la vente, du plan d'origine duquel elles proviennent. Veuillez consulter l'un de nos 31 bureaux si vous souhaitez obtenir des modifications au plan d'origine de ce modèle.
Description
Rez-de-chaussée: Plafond à 9' Vestiaire, salle d'eau, salle de lavage, salon, salle à manger et cuisine, garage latéral avec accès à un bureau. Étage: Suite des maîtres avec salle de bain et garde-robe walk-in, 2 chambres secondaire, salle de bain, et penderie. Sous-sol non fini, à aménager.
Autres informations utiles sur ce plan
Maison Farmhouse avec bureau, vestiaire, garde-manger et 3 chambres à l'étage!
Le plan de maison SUNNY HAVEN 3 (#3615-V2), est une version simplifiée du plan original (#3615-V1). Avec ses 1990 pieds carrés, cette maison reste tout de même grande, et propose beaucoup d’inclusions. De style Farmhouse américaine moderne, ce genre de maison est très tendance et populaire et peut s’adapter à plusieurs types de familles.
De l’extérieur, le revêtement blanc à la verticale rappelle le style évoqué plus haut, et la brique ajoute un cachet supplémentaire au design. L’apparence de la maison reste, sans équivoque, une valeur sûre.
En entrant dans la maison, un vestibule muni d’un espace vestiaire très éclairé, offre beaucoup de rangement. De ce même vestiaire, se trouve l’accès du garage latéral. Une particularité de ce plan, est l’installation d’un espace bureau à même le garage, avec un accès direct à l’extérieur en plus. Parfait pour le télétravail et pour pouvoir faire une coupure entre le bureau et la maison, le soir venu!
Suite au vestibule de l’entrée, se retrouve l’escalier menant au sous-sol aménageable et au deuxième étage où se trouve les chambres. En face de ce secteur, une salle d’eau ainsi que la salle de lavage y sont installées. La salle de lavage offre beaucoup de rangement, un grand comptoir pratique et une chute à linge, un petit ajout très apprécié de plusieurs! Les deux espaces peuvent être séparés par une porte coulissante permettant de laisser la salle de lavage hors de vue pour les invités.
L’espace de vie commune est à aire ouverte, avec une vue panoramique imprenable sur l’arrière de la maison, grâce aux plusieurs fenêtres dans la salle de séjour ainsi qu’à la porte patio double donnant sur la galerie arrière. Un foyer au gaz est installé pour permettre de profiter de la vue tout en restant au chaud durant les saisons froides. La cuisine, séparée du salon par l’espace salle à manger, possède un grand îlot central comprenant un évier double avec un accès pour le lave-vaisselle, pouvant accueillir facilement 4 convives. Beaucoup d’espace de rangement et surface de travail sont libérés grâces à un grand garde-manger de type walk-in. Un must, dans les nouvelles maisons familiales!
À l’étage, on retrouve 3 chambres, dont la suite des maîtres. Celle-ci offre une salle de bain privée avec une grande douche séparée de la baignoire, ainsi qu’un très grand walk-in. Les deux autres chambres sont de bonnes grandeurs, avec chacune une garde-robe style walk-in. Une autre salle de bain est à disposition, avec un bain douche ainsi qu’un grand comptoir et un lavabo. Du rangement est également possible. Pour compléter l’étage, une grande penderie offre tout le rangement nécessaire à la literie et bien plus. La chute à linge s’y trouve également.
Idéale pour la famille, cette maison saura comblée plusieurs besoins, à plusieurs étapes de la vie.
Éléments distinctifs
Plan de maison farmhouse américaine proposant plusieurs commodités.
Entrée avant ouverte sur 2 étages.
Grand vestiaire.
Salle de lavage avec chute à linge.
Aire ouverte à la cuisine, salle à manger et salon.
Cuisine avec grand îlot et garde-manger
Foyer au salon.
Suite des parents à l'étage avec salle de bain privée et walk-in.
2 chambres secondaires avec walk-in.
Grande penderie avec chute à linge.
Bureau accessible du garage et de l'extérieur.
Notes légales
Ce modèle est protégé par la Loi sur les Droits d'Auteur.
De plus, les illustrations présentées peuvent différer du plan détaillé que vous recevrez, car ces derniers sont régulièrement ajustés afin de respecter les normes de construction en vigueur.
Autres informations utiles sur ce plan
Description complète
Maison Farmhouse avec bureau, vestiaire, garde-manger et 3 chambres à l'étage!
Le plan de maison SUNNY HAVEN 3 (#3615-V2), est une version simplifiée du plan original (#3615-V1). Avec ses 1990 pieds carrés, cette maison reste tout de même grande, et propose beaucoup d’inclusions. De style Farmhouse américaine moderne, ce genre de maison est très tendance et populaire et peut s’adapter à plusieurs types de familles.
De l’extérieur, le revêtement blanc à la verticale rappelle le style évoqué plus haut, et la brique ajoute un cachet supplémentaire au design. L’apparence de la maison reste, sans équivoque, une valeur sûre.
En entrant dans la maison, un vestibule muni d’un espace vestiaire très éclairé, offre beaucoup de rangement. De ce même vestiaire, se trouve l’accès du garage latéral. Une particularité de ce plan, est l’installation d’un espace bureau à même le garage, avec un accès direct à l’extérieur en plus. Parfait pour le télétravail et pour pouvoir faire une coupure entre le bureau et la maison, le soir venu!
Suite au vestibule de l’entrée, se retrouve l’escalier menant au sous-sol aménageable et au deuxième étage où se trouve les chambres. En face de ce secteur, une salle d’eau ainsi que la salle de lavage y sont installées. La salle de lavage offre beaucoup de rangement, un grand comptoir pratique et une chute à linge, un petit ajout très apprécié de plusieurs! Les deux espaces peuvent être séparés par une porte coulissante permettant de laisser la salle de lavage hors de vue pour les invités.
L’espace de vie commune est à aire ouverte, avec une vue panoramique imprenable sur l’arrière de la maison, grâce aux plusieurs fenêtres dans la salle de séjour ainsi qu’à la porte patio double donnant sur la galerie arrière. Un foyer au gaz est installé pour permettre de profiter de la vue tout en restant au chaud durant les saisons froides. La cuisine, séparée du salon par l’espace salle à manger, possède un grand îlot central comprenant un évier double avec un accès pour le lave-vaisselle, pouvant accueillir facilement 4 convives. Beaucoup d’espace de rangement et surface de travail sont libérés grâces à un grand garde-manger de type walk-in. Un must, dans les nouvelles maisons familiales!
À l’étage, on retrouve 3 chambres, dont la suite des maîtres. Celle-ci offre une salle de bain privée avec une grande douche séparée de la baignoire, ainsi qu’un très grand walk-in. Les deux autres chambres sont de bonnes grandeurs, avec chacune une garde-robe style walk-in. Une autre salle de bain est à disposition, avec un bain douche ainsi qu’un grand comptoir et un lavabo. Du rangement est également possible. Pour compléter l’étage, une grande penderie offre tout le rangement nécessaire à la literie et bien plus. La chute à linge s’y trouve également.
Idéale pour la famille, cette maison saura comblée plusieurs besoins, à plusieurs étapes de la vie.
Éléments distinctifs
Plan de maison farmhouse américaine proposant plusieurs commodités.
Entrée avant ouverte sur 2 étages.
Grand vestiaire.
Salle de lavage avec chute à linge.
Aire ouverte à la cuisine, salle à manger et salon.
Cuisine avec grand îlot et garde-manger
Foyer au salon.
Suite des parents à l'étage avec salle de bain privée et walk-in.
2 chambres secondaires avec walk-in.
Grande penderie avec chute à linge.
Bureau accessible du garage et de l'extérieur.












