Sunny Creek (3742)
Maison à deux étages avec 5 chambres, une salle de jeux et des espaces familiaux lumineux et accueillants
Visite virtuelle
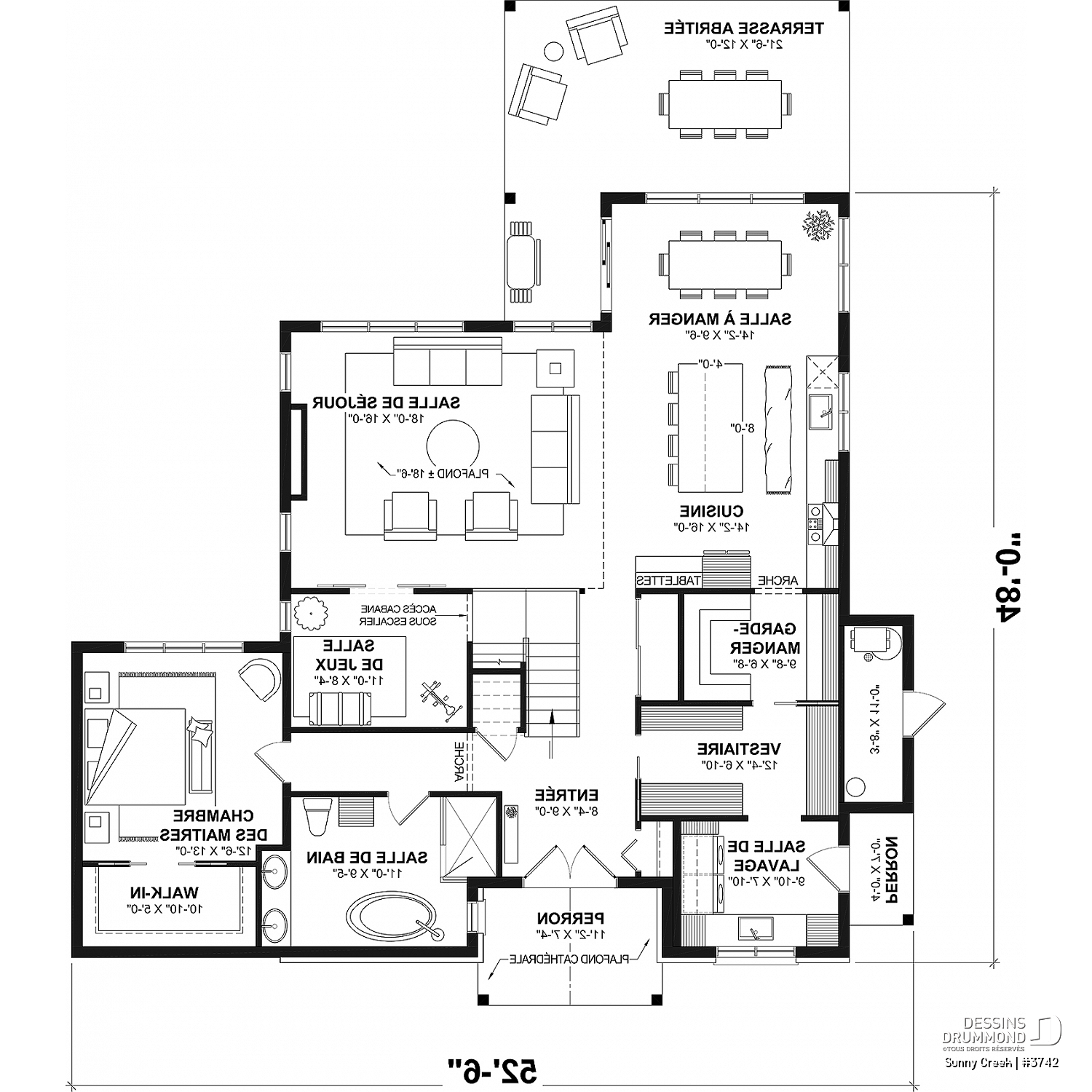
Vue par plancher
| Rez-de-chaussée | ||||
| Pièces | Dimensions | Plafond | ||
| Terrasse abritée | 21'6" x 12'0" | ~ 9'4" | ||
| Salle à manger | 14'2" x 9'6" | ~ 9'0" | ||
| Cuisine | 14'2" x 16'0" | ~ 9'0" | ||
| Îlot | 8'0" x 4'0" | ~ 0'0" | ||
| Salle de séjour | 18'0" x 16'0" | ~ 18'6" | ||
| Garde-manger | 9'8" x 6'8" | ~ 9'0" | ||
| Garde-robe | 6'8" x 2'4" | ~ 9'0" | ||
| Salle de jeux | 11'0" x 8'4" | ~ 9'0" | ||
| Suite des maîtres | 12'6" x 13'0" | ~ 9'0" | ||
| Walk-in | 10'10" x 5'0" | ~ 9'0" | ||
| Entrée ou vestibule | 8'4" x 9'0" | ~ 9'0" | ||
| Garde-robe | 3'6" x 2'0" | ~ 9'0" | ||
| Perron abrité | 11'2" x 7'4" | ~ 12'0" | ||
| Salle de lavage | 9'10" x 7'10" | ~ 9'0" | ||
| Perron abrité | 4'0" x 7'0" | ~ 9'4" | ||
| Pièce de mécanique | 11'0" x 3'8" | ~ 9'0" | ||
| Vestiaire | 12'4" x 6'10" | ~ 9'0" | ||
| Salle de bain complète | 11'0" x 9'5" | ~ 9'0" | ||
| Douche | 5'0" x 3'6" | ~ 0'0" | ||
| Lingerie | 2'2" x 1'10" | ~ 0'0" | ||
| Étage | ||||
| Pièces | Dimensions | Plafond | ||
| Chambre à coucher | 12'0" x 10'0" | ~ 8'0" | ||
| Garde-robe | 6'0" x 2'0" | ~ 8'0" | ||
| Chambre à coucher | 10'4" x 11'8" | ~ 8'0" | ||
| Walk-in | 4'0" x 3'4" | ~ 8'0" | ||
| Chambre à coucher | 10'4" x 12'4" | ~ 8'0" | ||
| Walk-in | 4'0" x 3'4" | ~ 8'0" | ||
| Coin lecture | 9'0" x 6'0" | ~ 8'0" | ||
| Chambre à coucher | 11'0" x 12'0" | ~ 8'0" | ||
| Walk-in | 5'8" x 2'10" | ~ 8'0" | ||
| Garde-robe | 3'4" x 1'8" | ~ 8'0" | ||
| Salle de bain | 11'0" x 9'6" | ~ 8'0" | ||
| Douche | 5'0" x 3'0" | ~ 0'0" | ||
| Lingerie | 2'0" x 1'10" | ~ 0'0" | ||
Description
Rez-de-chaussée: Entrée avant, vestiaire, salle de lavage, entrée latérale, cuisine, garde-manger, salle à dîner, salle de séjour, salle de jeux, chambre des maîtres, salle de bain. Étage: 4 chambres, salle de douche, coin lecture. Terrasse arrière abritée. Fondation: dalle flottante, plusieurs types de fondation disponibles pour chacun de nos plans.
Autres informations utiles sur ce plan
Description complète
Plan de Farmhouse proposant 5 chambres!
Découvrez ce magnifique plan de maison à étage de style Farmhouse, pensé pour allier charme rustique et confort moderne. Dès le premier regard, sa façade harmonieuse séduit par la combinaison élégante de pierres et de revêtement board & batten, offrant à la fois authenticité et raffinement. Cette allure semi-rustique s’intègre à merveille dans un cadre champêtre ou résidentiel et promet un coup de cœur assuré pour tous ceux qui franchiront votre allée.
À l’intérieur, l’espace de vie s’ouvre sous des plafonds de 9 pieds au rez-de-chaussée, tandis que la salle familiale culmine à 18’6’’, inondant l’arrière de la maison d’une lumière naturelle spectaculaire. Chaque moment passé ici devient une invitation à la détente et à la convivialité. L’entrée principale accueille vos invités avec élégance, tandis qu’une entrée latérale menant au vestiaire (via la salle de lavage) offre un passage pratique pour la vie de tous les jours.
La cuisine moderne et fonctionnelle constitue le cœur de la maison. Son grand îlot convivial est parfait pour cuisiner en famille, partager un café ou recevoir des amis. Ouverte sur la salle à dîner et la salle familiale, elle crée un espace à aire ouverte chaleureux où les rires et les échanges se mêlent naturellement. Juste à côté, la salle de lavage discrètement retirée rend le quotidien plus simple et organisé.
Pour les moments de loisirs, la salle de jeux attenante au salon fera le bonheur de toute la famille. Les enfants y découvriront même une petite cachette secrète sous l’escalier, un détail ludique qui fera briller leurs yeux. La chambre des maîtres se situe au rez-de-chaussée pour plus d’intimité et dispose d’un walk-in spacieux ainsi que d’un accès à une salle de bain complète, apportant un confort digne d’une suite privée.
À l’étage, quatre chambres, chacune avec son walk-in, répondent parfaitement aux besoins des grandes familles ou des réceptions d’amis. Ce niveau est complété par une salle de douche moderne et un coin bureau pratique, idéal pour le télétravail ou les devoirs des enfants.
Ce plan est conçu sur une dalle flottante, mais plusieurs options de fondation sont disponibles afin de l’adapter à votre terrain et à vos besoins. Cette maison Farmhouse élégante et lumineuse promet un quotidien confortable, convivial et plein de charme, où chaque détail a été pensé pour votre bien-être.
Éléments distinctifs
Plan de maison à étage de style Farmhouse.
Façade combinant pierres et board & batten pour un charme semi-rustique.
Plafonds de 9' au rez-de-chaussée et 18'6'' à la salle familiale, inondant l’arrière de lumière naturelle.
Entrée principale à l’avant et entrée latérale menant au vestiaire.
Salle de lavage pratique, discrètement retirée de la cuisine.
Cuisine avec grand îlot convivial, idéale pour recevoir.
Espace à aire ouverte reliant cuisine, salle à dîner et salle familiale pour des moments chaleureux en famille.
Salle de jeux près du salon avec petite cachette sous l’escalier que les enfants adoreront.
Chambre des maîtres au rez-de-chaussée avec walk-in et accès à une salle de bain complète.
4 chambres à l’étage, parfait pour les grandes familles.
Étage complété par une salle de douche et un coin bureau pratique.
Fondation prévue en dalle flottante, avec autres options disponibles dans le panier d’achat.















