Plain-pied économique 2 à 4 chambres, idéal pour famille, plafond cathédral, sous-sol aménagé optionnel ($)
Version couleur no. 6 - Vue avant
Vue avant - MODÈLE DE BASE
Élévation arrière
Vue intérieure
Version couleur no. 1 - Vue avant
Version couleur no. 3 - Vue avant
Version couleur no. 4 - Vue avant
Version couleur no. 5 - Vue avant














Vue par plancher
Rez-de-chaussée | ||||
Pièces | Dimensions | Plafond | ||
Salle de bain complète | 7'6" x 7'10" | ~ 8'0" | ||
Cuisine | 9'0" x 11'0" | ~ 11'9" | ||
Salle à manger | 9'0" x 11'0" | ~ 11'9" | ||
Salle de séjour | 14'2" x 14'0" | ~ 11'9" | ||
Chambre à coucher | 11'0" x 11'4" | ~ 8'0" | ||
Chambre à coucher | 8'4" x 10'4" | ~ 8'0" | ||
Garage | 12'8" x 22'8" | ~ 8'0" | ||
Garde-robe | 2'4" x 3'2" | ~ 11'9" | ||
Perron | 6'2" x 5'0" | ~ 0'0" | ||
Patio | 8'0" x 5'0" | ~ 0'0" |
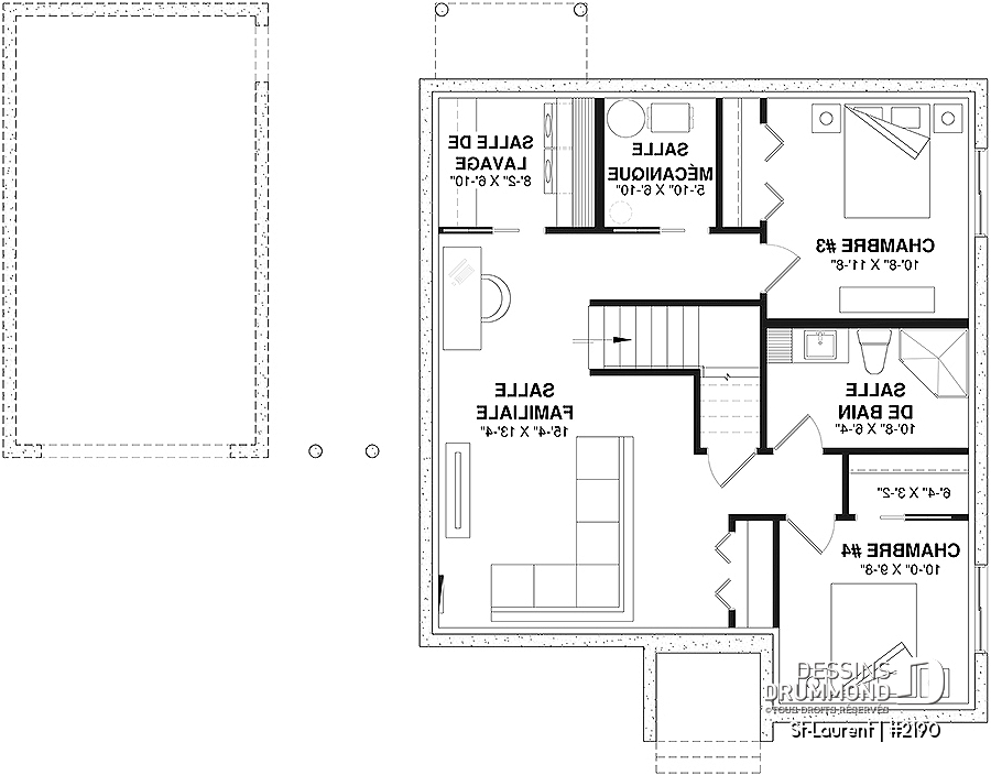
Sous-sol aménagé (Optionel $) | ||||
Pièces | Dimensions | Plafond | ||
Salle de lavage | 8'3" x 6'10" | ~ 8'0" | ||
Pièce de mécanique | 6'1" x 6'10" | ~ 8'0" | ||
Chambre à coucher | 10'8" x 11'8" | ~ 8'0" | ||
Garde-robe | 2'0" x 6'10" | ~ 8'0" | ||
Salle de bain | 7'6" x 7'10" | ~ 8'0" | ||
Salle familiale | 15'4" x 13'4" | ~ 8'0" | ||
Rangement | 2'0" x 5'8" | ~ 8'0" | ||
Chambre à coucher | 10'0" x 9'8" | ~ 8'0" | ||
Walk-in | 6'4" x 3'2" | ~ 8'0" |
Sous-sol aménageable |
Estimation
Estimation des coûts approx. de construction | 175,779$ à 251,113$ |
Spécifications générales
Surface aménagée totale | 948 pi2 |
Rez-de-chaussée | 948 pi2 |
Sous-sol aménageable | 948 pi2 |
Sous-sol aménagé (Optionel $) | 948 pi2 |
Largeur | 30'0" |
Profondeur | 34'0" |
Hauteur dessus fondations au faite | 18'8" |
Murs extérieurs | 2 X 6 |
Type de fondation | Sous-sol aménageable |
Code Entrepreneur | A |
Spécifications sur les pièces
Chambre(s) | 2, 3, 4 |
Salle(s) de bain complète(s) | 2 |
Demi Salle(s) de Bain | - |
Type de garage | - |
Espace boni aménageable | - |
Rangement boni | - |
Estimation des coûts approx. de construction | 175,779$ à 251,113$ i |
Surface aménagée totale | 948 pi2 |
Rez-de-chaussée | 948 pi2 |
Sous-sol aménagé (Optionel $) | 948 pi2 |
Sous-sol aménageable | 948 pi2 |
Largeur | 30'0" |
Profondeur | 34'0" |
Hauteur dessus fondations au faite | 18'8" |
Murs extérieurs | 2 X 6 |
Type de fondation | Sous-sol aménageable i |
Description
Rez-de-chaussée: Cuisine, salle à manger, salon, 2 chambres, salle de bain. *Sous sol aménagé (optionnel $): 2 chambres, salle familiale, salle de lavage, salle de douche, coin bureau et pièce mécanique. *Si vous souhaitez acheter le plan du sous-sol aménagé, veuillez sélectionner cette option dans le panier d'achat, dans la section "Sélectionner votre fondation". Si vous ne sélectionnez pas cette option, vous recevrez le sous-sol non fini, sans frais additionnel. **plan de garage #2973 inclus au plan que vous recevrez, mais exclus de l'estimation du coût de construction.
Autres informations utiles sur ce plan
Plan de maison 2 à 4 chambres, idéal pour acheteurs de première maison!
Vous remarquerez aussi un garage détaché (plan #2973) en pointillé permettant la construction futur d'un garage selon vos besoins. Cependant bien que le plan soit inclus au plan que vous recevrez, sa construction n'est pas prévue dans notre estimation du coût de construction.
*Sous sol aménagé (optionnel $):
2 chambres, salle familiale, salle de lavage, salle de douche, coin bureau et pièce mécanique.
*Si vous souhaitez acheter le plan du sous-sol aménagé, veuillez sélectionner cette option dans le panier d'achat, dans la section "Sélectionner votre fondation". Si vous ne sélectionnez pas cette option, vous recevrez le sous-sol non fini, sans frais additionnel.
Éléments distinctifs
Maison de style transitionnel, idéale pour petite famille.
Plan de garage séparé #2973, inclus sans frais additionnel!
Construction abordable permettant l'ajout éventuel d'un garage (coût de construction de ce dernier non inclus dans notre estimation du coût de construction).
2 à 4 chambres, selon la finition du sous-sol.
Cuisine avec garde-manger.
Plafond cathédrale à la salle à manger et au salon.
Salle familiale prévue au sous-sol aménagé, pour un total de 2 salons.
Salle de lavage localisée au sous-sol.
Fenêtrage abondant.
*Sous sol aménagé (optionnel $):
2 chambres, salle familiale, salle de lavage, salle de douche, coin bureau et pièce mécanique.
*Si vous souhaitez acheter le plan du sous-sol aménagé, veuillez sélectionner cette option dans le panier d'achat, dans la section "Sélectionner votre fondation". Si vous ne sélectionnez pas cette option, vous recevrez le sous-sol non fini, sans frais additionnel.
Notes légales
Ce modèle est protégé par la Loi sur les Droits d'Auteur.
De plus, les illustrations présentées peuvent différer du plan détaillé que vous recevrez, car ces derniers sont régulièrement ajustés afin de respecter les normes de construction en vigueur.
Autres informations utiles sur ce plan
Description complète
Plan de maison 2 à 4 chambres, idéal pour acheteurs de première maison!
Vous remarquerez aussi un garage détaché (plan #2973) en pointillé permettant la construction futur d'un garage selon vos besoins. Cependant bien que le plan soit inclus au plan que vous recevrez, sa construction n'est pas prévue dans notre estimation du coût de construction.
*Sous sol aménagé (optionnel $):
2 chambres, salle familiale, salle de lavage, salle de douche, coin bureau et pièce mécanique.
*Si vous souhaitez acheter le plan du sous-sol aménagé, veuillez sélectionner cette option dans le panier d'achat, dans la section "Sélectionner votre fondation". Si vous ne sélectionnez pas cette option, vous recevrez le sous-sol non fini, sans frais additionnel.
Éléments distinctifs
Maison de style transitionnel, idéale pour petite famille.
Plan de garage séparé #2973, inclus sans frais additionnel!
Construction abordable permettant l'ajout éventuel d'un garage (coût de construction de ce dernier non inclus dans notre estimation du coût de construction).
2 à 4 chambres, selon la finition du sous-sol.
Cuisine avec garde-manger.
Plafond cathédrale à la salle à manger et au salon.
Salle familiale prévue au sous-sol aménagé, pour un total de 2 salons.
Salle de lavage localisée au sous-sol.
Fenêtrage abondant.
*Sous sol aménagé (optionnel $):
2 chambres, salle familiale, salle de lavage, salle de douche, coin bureau et pièce mécanique.
*Si vous souhaitez acheter le plan du sous-sol aménagé, veuillez sélectionner cette option dans le panier d'achat, dans la section "Sélectionner votre fondation". Si vous ne sélectionnez pas cette option, vous recevrez le sous-sol non fini, sans frais additionnel.