Rocheleau (2699)
Maison à étage 2 à 4 chambres, garage, garde-manger, terrasse abritée, bureau, sous-sol aménagé optionnel ($)
Vue par plancher
| Rez-de-chaussée | ||||
| Pièces | Dimensions | Plafond | ||
| Entrée ou vestibule | 12'6" x 6'8" | ~ 18'6" | ||
| Garde-robe | 6'0" x 2'0" | ~ 9'0" | ||
| Bureau à domicile | 10'6" x 10'0" | ~ 9'0" | ||
| Garde-robe | 3'8" x 2'0" | ~ 9'0" | ||
| Salle de bain | 8'4" x 3'0" | ~ 9'0" | ||
| Garage | 13'4" x 25'0" | ~ 10'6" | ||
| Vestiaire | 8'6" x 9'10" | ~ 9'0" | ||
| Salle de lavage | 8'2" x 6'2" | ~ 9'0" | ||
| Cuisine | 13'2" x 14'4" | ~ 9'0" | ||
| Îlot | 9'0" x 3'6" | ~ 0'0" | ||
| Garde-manger | 8'8" x 5'0" | ~ 9'0" | ||
| Salle à manger | 12'8" x 12'4" | ~ 9'0" | ||
| Terrasse abritée | 13'0" x 9'0" | ~ 9'5" | ||
| Terrasse | 27'0" x 4'0" | ~ 0'0" | ||
| Salle de séjour | 13'0" x 18'0" | ~ 18'6" | ||
| Perron abrité | 13'0" x 7'0" | ~ 14'7" | ||
| Perron abrité | 17'6" x 3'6" | ~ 9'4" | ||
| Perron abrité | 3'6" x 10'0" | ~ 9'4" | ||
| Étage | ||||
| Pièces | Dimensions | Plafond | ||
| Chambre à coucher | 10'6" x 10'0" | ~ 8'0" | ||
| Garde-robe | 4'10" x 2'0" | ~ 8'0" | ||
| Salle de bain complète | 9'2" x 11'8" | ~ 8'0" | ||
| Douche | 4'0" x 5'0" | ~ 0'0" | ||
| Lingerie | 2'0" x 1'2" | ~ 0'0" | ||
| Suite des maîtres | 12'8" x 13'6" | ~ 8'0" | ||
| Walk-in | 9'2" x 4'10" | ~ 8'0" | ||
| Balcon | 13'0" x 9'0" | ~ 0'0" | ||
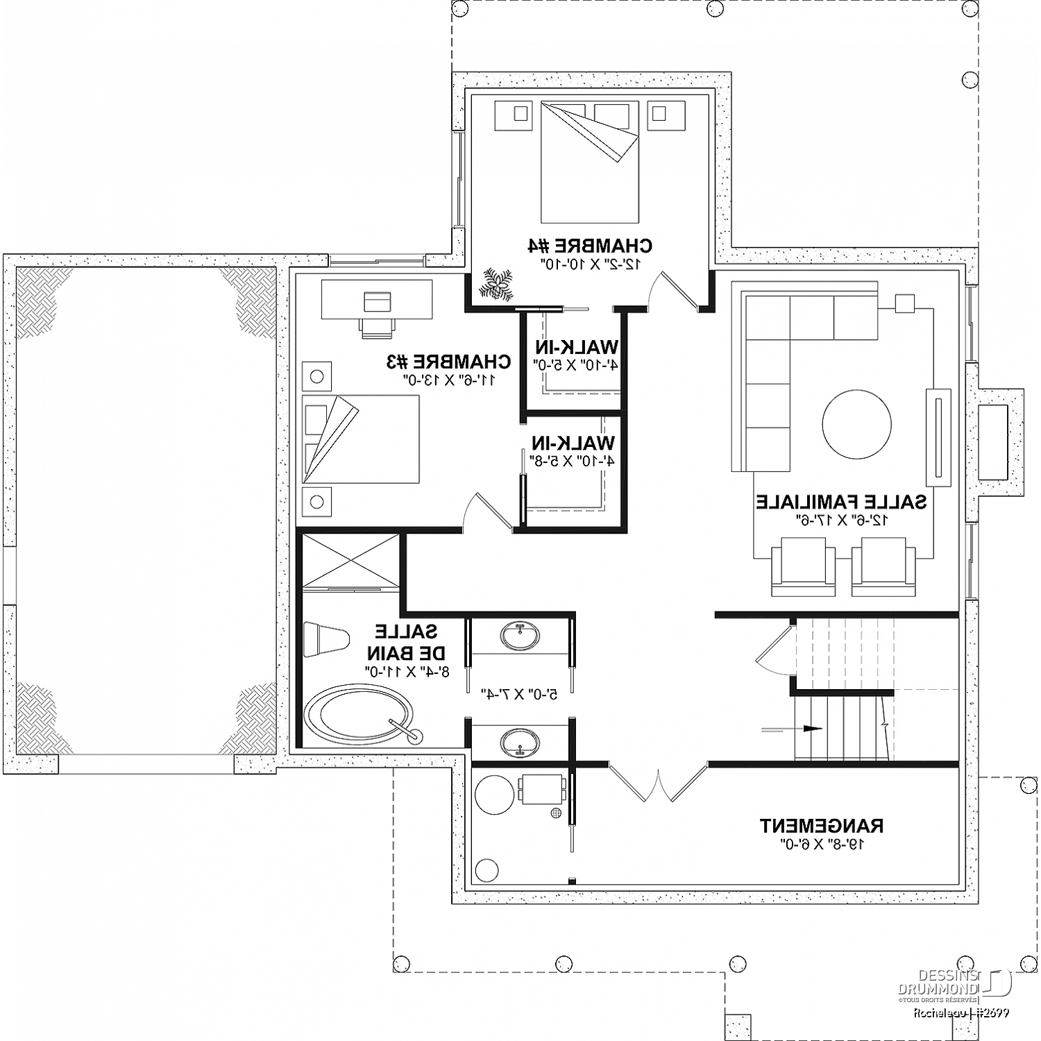
| Sous-sol aménagé (Optionel $) | ||||
| Pièces | Dimensions | Plafond | ||
| Chambre à coucher | 12'2" x 10'10" | ~ 8'0" | ||
| Walk-in | 4'10" x 5'0" | ~ 8'0" | ||
| Chambre à coucher | 11'6" x 13'0" | ~ 8'0" | ||
| Walk-in | 4'10" x 5'8" | ~ 8'0" | ||
| Salle familiale | 12'6" x 17'6" | ~ 8'0" | ||
| Rangement | 19'8" x 6'0" | ~ 8'0" | ||
| Salle de bain | 13'8" x 11'0" | ~ 8'0" | ||
| Douche | 5'0" x 3'0" | ~ 0'0" | ||
| Pièce de mécanique | 5'0" x 6'0" | ~ 8'0" | ||
| Sous-sol aménageable | ||||
| Estimation des coûts approx. de construction | 408,456$ à 583,508$ i |
| Surface aménagée totale | 1882 pi2 |
| Rez-de-chaussée | 1255 pi2 |
| Étage | 627 pi2 |
| Sous-sol aménagé (Optionel $) | 1255 pi2 |
| Sous-sol aménageable | 1255 pi2 |
| Largeur | 50'0" |
| Profondeur | 42'4" |
| Hauteur dessus fondations au faite | 32'4" |
| Murs extérieurs | 2 X 6 |
| Type de fondation | Sous-sol aménageable i |
Description
Rez-de-chaussée: Entrée, bureau, vestiaire, salle de lavage, salle d'eau, cuisine, garde-manger, salon, salle à manger. Étage: Suite des parents avec balcon privé et walk-in, salle de bain commune et une chambre secondaire. Terrasse arrière abritée. Garage. *Sous sol aménagé (optionnel $): 2 chambres et salle familiale, salle de bain, rangement. *Si vous souhaitez acheter le plan du sous-sol aménagé, veuillez sélectionner cette option dans le panier d'achat, dans la section "Sélectionner votre fondation". Si vous ne sélectionnez pas cette option, vous recevrez le sous-sol non fini, sans frais additionnel.
Autres informations utiles sur ce plan
Description complète
Maison Farmhouse aux accents rustiques tout en lumière!
Le plan de maison ROCHELEAU (plan #2699) propose 1882 pi.ca. aménagés sur 2 étages, en plus d'un sous-sol avec *proposition d'aménagement (à faire ou non selon vos besoins) amenant ainsi cette belle maison à 3137 pi.ca.!
Cette magnifique maison de style Farmhouse moderne à étage, s'ouvre sur un imposant hall d'entrée ouvert sur 2 étages, soit à plus de 18'6'' de hauteur ainsi que sur les escaliers ouvertes, menant à l'étage. Puis un bureau aménagé en façade de maison se retrouve près de la porte avant. L'accès au garage de la maison est situé directement à côté d'un grand vestiaire ainsi que de la salle de lavage.
La cuisine comporte un grand garde-manger et un îlot de bon format, et elle est ouverte sur la salle à manger et le salon. Ce dernier a un plafond d'une hauteur de 18'6'', ainsi qu'un foyer avec tablettes décoratives de chaque côté et des portes patio triple menant sur la terrasse couverte arrière. La salle à manger a aussi des portes patio, double, ainsi que plusieurs fenêtres amenant ainsi beaucoup de lumière naturelle vers la cuisine.
La chambre des maîtres se trouve à l'étage et propose un balcon privé aux parents, une garde-robe de type walk-in et un accès direct à la salle de bain de l'étage, qui est partagée par une autre chambre (#2). De l'étage une mezzanine vous permet de jeter un oeil sur ce qui se passe à la salle de séjour, au rez-de-chaussée.
*Sous sol aménagé (optionnel $):
Un aménagement de sous-sol est proposé et optionnel ($). Il offre entre autre 2 chambres additionnelles ainsi qu'une salle familiale, une salle de bain complète et un grand rangement.
*Si vous souhaitez acheter le plan du sous-sol aménagé, veuillez sélectionner cette option dans le panier d'achat, dans la section "Sélectionner votre fondation". Si vous ne sélectionnez pas cette option, vous recevrez le sous-sol non fini, sans frais additionnel.
Un garage simple ainsi qu'une belle terrasse arrière couverte complète ce petit bijou de maison qui saura plaire à bien des familles!
Éléments distinctifs
Superbe maison de style nordique avec garage.
Selon finition du sous-sol (ou pas) possibilité de 2 à 4+ chambres.
Accès du garage près de la cuisine et vestiaire.
Entrée avant ouverte sur 2 étages.
Salle de lavage au rez-de-chaussée, près du vestiaire.
Bureau à domicile (ou salle de jeux selon vos besoins).
Plafond à 9' sur tout le rez-de-chaussée sauf dans l'entrée et au salon (18'6'').
Cuisine avec amplement de comptoir pour créer un coin bar à café.
Grand îlot central pouvant accueillir 5 convives minimum!
Pratique garde manger.
Salon avec foyer et tablettes prévues de chaque côté.
Salle d'eau au rez-de-chaussée.
Fenestration abondante à l'arrière de la maison.
Suite des parents à l'étage avec balcon privé, walk-in et accès à la grande salle de bain. Cette dernière propose 2 lavabos en plus du bain et douche séparés.
Mezzanine à l'étage ouverte sur le salon et l'entrée de la maison.
Grande terrasse abritée à l'arrière.
Garage simple.
*Sous sol aménagé (optionnel $):
Sous-sol permettant l'aménagement de 2 chambres et salle familiale (ou 3 chambres), en plus d'une salle de bain complète.
Grand rangement prévu aussi au sous-sol.
*Si vous souhaitez acheter le plan du sous-sol aménagé, veuillez sélectionner cette option dans le panier d'achat, dans la section "Sélectionner votre fondation". Si vous ne sélectionnez pas cette option, vous recevrez le sous-sol non fini, sans frais additionnel.


















